Verbesserungsvorschläge für Grundriss Einfamilienhaus - Ideen?

4,80 Stern(e) 5 Votes
Zuletzt aktualisiert 20.11.2025
Sie befinden sich auf der Seite 3 der Diskussion zum Thema: Verbesserungsvorschläge für Grundriss Einfamilienhaus - Ideen?
>> Zum 1. Beitrag <<

E

Escroda

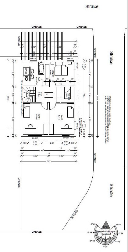
Die maximale Grenzbebauung zu einem Nachbarn durch privilegierte Anlagen (Carport, Geräteraum) beträgt in Bayern 9m und ist hier überschritten.
Gibt es tatsächlich keine Baugrenzen und für den Carport keinen Mindestabstand zur Straße?
 
RomeoZwo

RomeoZwo

Nunja, der Carport ist auch etwas sehr groß in der ersten Skizze eingezeichnet. Da man den Carport ja üblicherweise nicht als zusätzliche Abstellfläche für Gartengeräte, Fahrräder, etc. nutzt (Dafür gibt es ja hier den Geräteraum) müssten da ja 6m reichen (selbst Oberklasse Fahrzeuge sind selten länger als 5,5m). Dann noch 3m für den Geräteraum (auch sehr komfortabel) und die maximale Grenzbebauung wird eingehalten.
 
N

nitta

Erstmal vielen Dank für die vielen Rückmeldungen und vor allem auch die Mühe, die sich manche hier machen.

Um Dir mal ein paar weitere Anregungen zu geben. Anbei unser erster Entwurf.
Jetzt denke Dir den Kamin weg. Schiebe die Dielentür soweit runter wie es geht und vergrößere die Speise aka Technikraum und das Gäste-WC. Die Zeichnung basiert aber auf 11m x 8,25m Grundfläche.
Den Grundriss finde ich nicht schlecht, aber für uns nicht ganz passend, da wir die Treppe nicht im Wohnzimmerbereich haben möchten. Wenn wir da noch einen Flur planen würden, wäre es wieder so eng. Außerdem wäre die "Speise aka Technikraum" trotzdem noch zu klein.

1,10 ist der Flur im EG... das ist viel zu schmal. Da hatten wir ja im RH mehr mit 1,30, was aber zum bequemen rein und raus auch zu schmal war.
Das stimmt wohl, der Flur wäre wirklich zu schmal. Wir haben in unserer Wohnung derzeit 1,25 m in der Breite. Wir hätten gedacht, dass 1,10 m irgendwie schon gehen werden, aber ich glaube auf Dauer werden wir damit nicht glücklich, vor allem wenn wir mal zu viert sind.

Dusche im EG ist wofür?
Hätten wir gedacht als Ausweichmöglichkeit, falls mal alle gleichzeitig unter die Dusche wollen.

Erstmal muss man hier mal die 100%ig supergute Threaderöffnung lobend hervorheben. Da ist wirklich an einer Stelle alles zusammen, was man immer so fragt.
Und dann bringt es auch Spaß mal etwas zu testen.
Danke, hab mich ja auch bemüht

Technikraum .. was soll da alles rein, Tür sitzt dort ungünstig.
Im Technikraum brauchen wir wirklich einiges an Platz: Technik, Waschmaschine, Trockner, zusätzlicher Gefrierschrank, Staubsauger, später evtl. Stromspeicher. Viel kleiner geht also nicht...

OG .. beide Kinderzimmer nach Süd wäre besser und Elternschlafzimmer so, dass doch noch ein Schrank etc. passen könnte.
Tausch Kinderzimmer mit Schlafzimmer werden wir wohl auch so machen.

Dafür Platz unter der Treppe für Staubsauger und Konsorten und eine Vorratshaltung angedacht.
Treppe möchten wir gerne offen haben (aus optischen Gründen, auch wenn dadurch eine Stauraummöglichkeit entfällt... man hat halt so seine Vorstellungen...)

Dem OG-Bad habe ich noch ein schmales Fenster gegönnt und Dusche/WC getauscht.
Meinst du, dass es sonst zu dunkel wird?

Ja, der Flur ist auch in meiner Variante noch recht schmal. Daher der Abgang zum Büro mit Glastür zum Büro gedacht. Aber so 10 cm mehr bekämen dem Flur noch ganz gut, dann wäre man langsam bei 133 cm oder so .
Ja, etwas breiter müsste er auf jeden Fall sein.

Die maximale Grenzbebauung zu einem Nachbarn durch privilegierte Anlagen (Carport, Geräteraum) beträgt in Bayern 9m und ist hier überschritten.
Gibt es tatsächlich keine Baugrenzen und für den Carport keinen Mindestabstand zur Straße?
Nunja, der Carport ist auch etwas sehr groß in der ersten Skizze eingezeichnet. Da man den Carport ja üblicherweise nicht als zusätzliche Abstellfläche für Gartengeräte, Fahrräder, etc. nutzt (Dafür gibt es ja hier den Geräteraum) müssten da ja 6m reichen (selbst Oberklasse Fahrzeuge sind selten länger als 5,5m). Dann noch 3m für den Geräteraum (auch sehr komfortabel) und die maximale Grenzbebauung wird eingehalten.
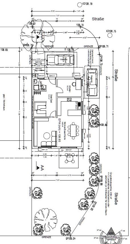
Stimmt, da ist mir tatsächlich ein Fehler unterlaufen. Der Carport hat 6m. Dazu 3m für den Geräteraum, somit kommen wir auf 9m.

Das Haus ist an der Baugrenze zur Straße geplant, der Carport etwas zurück versetzt.

Ohne Keller wirds mit dem Büro im EG schwierig.
Das denken wir mittlerweile auch. Wir überlegen deshalb gerade, ob wir das Büro im EG streichen und dafür die Ankleide im OG zum Büro machen.
Außerdem wäre es zu überlegen, ob wir das Haus vielleicht 25cm breiter machen, also 8,74m statt 8,49m. Das müsste vom Bebauungsplan her gehen, wobei wir das schon noch abklären müssten. Kostet dann zwar etwas mehr, aber am Finanziellen soll es nicht scheitern... bevor man sich dann ein Leben lang ärgert über die Enge. Dann könnten wir den Flur großzügiger machen und das Wohnzimmer bekäme auch noch ein paar cm, und oben wären dann Kinderzimmer und Büro auch noch etwas größer. Was meint ihr dazu?
 
kbt09

kbt09

Im Technikraum brauchen wir wirklich einiges an Platz: Technik, Waschmaschine, Trockner, zusätzlicher Gefrierschrank, Staubsauger, später evtl. Stromspeicher. Viel kleiner geht also nicht...
Einfach mal wirklich alles einzeichnen. Und, mal klären, ob es gut ist, dass der Technikraum soweit von der Straße weg ist, wie er es in eurer Planung ist. Zuleitungen müssen ja von der Straße kommen.

Offene Treppe ... da würde ich ohne Keller und bei gewendelter Treppe eher verzichten. Da gibt es dann diese offene Fläche unter der Treppe, die eigentlich gebraucht wird und dann entweder doch vollgestellt wird und das sieht dann doof aus .. oder man beschränkt sich unnötig am Platz.

Zusätzliches Fenster am WC im OG-Bad .. ich finde einfach ein Fenster macht es freundlicher, als wenn man in der dunklen Ecke auf dem WC sitzt. Und Platz ist ja dafür.

-------------
Grundsätzlich solltest du bei Planungen darauf achten, dass Türen so gesetzt werden können, dass in den Räumen hinter der Tür ca. 70 cm Platz sind. Dann können dort auch handelstypische Schränke gut untergebracht werden und Stauraum schaffen.
 
Y

ypg

Zur Treppe:
Sie muss nicht vollständig eingemauert werden. Aber wenn die Stufen Setzstufen bekommen und unterhalb die Mauer schräg gezogen wird, kann darunter ein kleiner eigenständiger Raum entstehen. Mit einer Tür im höchsten Bereich ein wertvoller Raum.
Und dennoch kann die Treppe mit schickem Geländer toll aussehen. Und mal ehrlich: die Treppe steht im Flur, nicht im Wohnraum
 
Zuletzt aktualisiert 20.11.2025
Im Forum Grundrissplanung / Grundstücksplanung gibt es 2535 Themen mit insgesamt 87978 Beiträgen


Ähnliche Themen zu Verbesserungsvorschläge für Grundriss Einfamilienhaus - Ideen?
Nr.ErgebnisBeiträge
1Grundrissfrage, Treppe, Fenster, Ausrichtung 12
2Einfamilienhaus Grundriss mit Keller, Version 2 23
3Treppe im Flur, Grundriss steht eigentlich schon :o( - Seite 320
4Grundriss Einfamilienhaus ohne Keller, 3 Kinderzimmer und Büro 18
5Entwurf Einfamilienhaus mit 3 Kinderzimmer, Keller und Grenzbebauung 32
6Umbau Kinderzimmer - Fenster in zwei Fenster aufteilen? 20
7Grundrissfrage, Garage, Treppe - Seite 533
8160m2 Einfamilienhaus in Holzständerbauweise am Nordhang mit Keller - Seite 2100
9Einfamilienhaus bauen mit/ohne Keller bei kleinem Grundstück - Seite 965
10Grundrissoptimierung Stadtvilla ca. 180qm mit Keller in Berlin 40
11Grundriss 120 m², Einfamilienhaus 1,5, Carport. Meinungen, Ideen, Vorschläge 42
12Grundriss Einfamilienhaus ~165m² plus Keller - Seite 7165
13Grundriss-Entwurf: Einfamilienhaus mit Keller; 560qm Grundstück 65
14Grundriss Einfamilienhaus 136m² mit Garage & Keller 17
15Grundriss Einfamilienhaus mit Keller, 150qm, nur eingeschossig erlaubt - Seite 10115
16Grundriss Einfamilienhaus geplant, Fenster gefallen uns - Seite 343
17Grundrissentwurf Stadtvilla mit Keller Verbesserungsvorschlag? - Seite 677
18Grundriss Einfamilienhaus ca. 200qm Doppelgarage Keller - Seite 232
19Grundriss Bungalow 160-170qm mit Keller - Seite 13175
20Fußbodenheizung im Keller sinnvoll?? 60

Oben