Verbesserungsvorschläge für Grundriss Einfamilienhaus - Ideen?

4,80 Stern(e) 6 Votes
Zuletzt aktualisiert 10.01.2026
Sie befinden sich auf der Seite 4 der Diskussion zum Thema: Verbesserungsvorschläge für Grundriss Einfamilienhaus - Ideen?
>> Zum 1. Beitrag <<

kaho674

kaho674

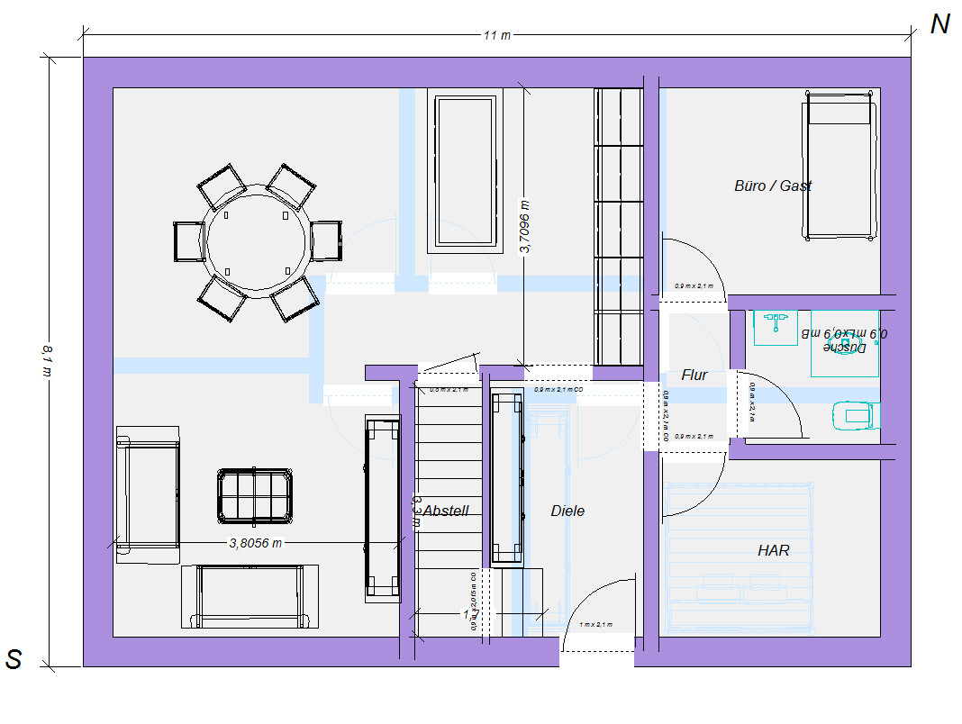
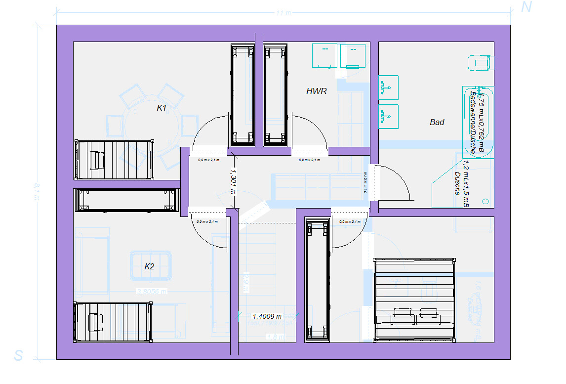
Ich würde ja auch noch mal einen Entwurf testen, wo Ihr das Haus dreht. Mich stört im OG, dass das Schlafzimmer neben dem Kind ist. Das könnte man so wegbekommen.

Mal schnell ne Skizze mit 11m x 8,1m ohne Anspruch auf Perfektion:


Grundriss eines Hauses (11 m x 8 m): Räume K1, K2, HWR, Bad, zentrale Treppe, Türen.

Grundriss eines Hauses: Wohnzimmer links mit Esstisch/Sofa, Diele in der Mitte, Büro/Gast rechts.
 
11ant

11ant

Wir kaufen schlüsselfertig vom Bauträger, der uns drei Vorschläge für den Grundriss erstellt hat. Zwei davon sind bei uns gleich durchgefallen,
In solchen Fällen hege ich oft den Verdacht: wenn die durchgefallenen Entwürfe ebenfalls gezeigt würden - freilich mit Kommentar, warum sie nicht in Frage kommen - könnten die Mitdiskutanten dadurch genauer auf die Spur gebracht werden. Aber das nur ´mal allgemein zu solchen Situationen, im speziellen Fall dieses Threads scheint es ja auch ohnedem zu gedeihen.

Wir haben einen ähnlichen Grundriss.
Ja, lustig daß Du auch gleich geantwortet hast - sonst hätte ich Dein Haus zum Vergleich empfohlen.
 
Y

ypg

Mich würde eigentlich schon interessieren, wie die @nitta Deine Vorschläge so findet. Die Diskussion führt sonst nicht weiter.
Hätten wir gedacht als Ausweichmöglichkeit, falls mal alle gleichzeitig unter die Dusche wollen.
Aber dann müssen’s ja vier Duschen sein Ich finde, man kann auch als Notdusche die Wanne nehmen. Überdenken sollte man Platzfresser, welche nur seltene Eventuellpositionen sind.

Im Technikraum brauchen wir wirklich einiges an Platz: Technik, Waschmaschine, Trockner, zusätzlicher Gefrierschrank, Staubsauger, später evtl. Stromspeicher. Viel kleiner geht also nicht...
Also wird der Duschplatz eigentlich für Deine Technik gebraucht? Dann doch lieber komfortables Wäschewaschen

Treppe möchten wir gerne offen haben (aus optischen Gründen, auch wenn dadurch eine Stauraummöglichkeit entfällt... man hat halt so seine Vorstellungen...)
Man mag vieles leiden, aber man muss nicht alles haben, wenn man abwägt...

Außerdem wäre es zu überlegen, ob wir das Haus vielleicht 25cm breiter machen, also 8,74m statt 8,49m. Das müsste vom Bebauungsplan her gehen, wobei wir das schon noch abklären müssten. Kostet dann zwar etwas mehr, aber am Finanziellen soll es nicht scheitern...
Wenn es am Finanziellen nicht scheitert, dann nimm gleich einen Meter mehr.
Lieber im Haus entspannter Wohnen als sich andauernd über Enge oder Gequetsche zu stören und sich ärgern. Dabei wird es nicht das WZ sein, aber der Flur, die schlechte Bedienung der Waschmaschine, keine Möglichkeit zum Wäschelagern, weil die Schmutzschuhe auch genau da stehen. Usw.
 
Zuletzt aktualisiert 10.01.2026
Im Forum Grundrissplanung / Grundstücksplanung gibt es 2565 Themen mit insgesamt 88791 Beiträgen


Ähnliche Themen zu Verbesserungsvorschläge für Grundriss Einfamilienhaus - Ideen?
Nr.ErgebnisBeiträge
1Duschen Pufferspeicher 15

Oben