Da es bei uns jetzt dann im September los geht, möchte ich euch meinen Grundriss nicht vorenthalten.
Gebaut wird ein Fertighaus, KFW 55 mit Luft-Wasser-Wärmepumpe und Kontrollierte-Wohnraumlüftung. Des Weiteren wird noch im EG eine Rollosteuerung für die Ost, Süd und Westseite installiert.
Bebauungsplan/Einschränkungen
Größe des Grundstücks 1550m²
Hang leicht abschüssig
Grundflächenzahl
Geschossflächenzahl
Baufenster, Baulinie und -grenze
Randbebauung
Anzahl Stellplatz 2Fertiggragen
Geschossigkeit 2 Vollgeschosse
Dachform Sattel
Stilrichtung Modern
Ausrichtung
Maximale Höhen/Begrenzungen
weitere Vorgaben
Anforderungen der Bauherren
Stilrichtung, Dachform, Gebäudetyp
Keller, Geschosse kein Keller, 2 Geschosse
Anzahl der Personen, Alter 3 Personen, 36, 33 und 14 Monate
Raumbedarf im EG, OG
Büro: Familiennutzung oder Homeoffice? Familie
Schlafgäste pro Jahr 0
offene oder geschlossene Architektur
konservativ oder moderne Bauweise
offene Küche, Kochinsel Ja,Ja
Anzahl Essplätze 6-8
Kamin
Musik/Stereowand
Balkon, Dachterrasse Ja
Garage, Carport
Nutzgarten, Treibhaus
weitere Wünsche/Besonderheiten/Tagesablauf






Gebaut wird ein Fertighaus, KFW 55 mit Luft-Wasser-Wärmepumpe und Kontrollierte-Wohnraumlüftung. Des Weiteren wird noch im EG eine Rollosteuerung für die Ost, Süd und Westseite installiert.
Bebauungsplan/Einschränkungen
Größe des Grundstücks 1550m²
Hang leicht abschüssig
Grundflächenzahl
Geschossflächenzahl
Baufenster, Baulinie und -grenze
Randbebauung
Anzahl Stellplatz 2Fertiggragen
Geschossigkeit 2 Vollgeschosse
Dachform Sattel
Stilrichtung Modern
Ausrichtung
Maximale Höhen/Begrenzungen
weitere Vorgaben
Anforderungen der Bauherren
Stilrichtung, Dachform, Gebäudetyp
Keller, Geschosse kein Keller, 2 Geschosse
Anzahl der Personen, Alter 3 Personen, 36, 33 und 14 Monate
Raumbedarf im EG, OG
Büro: Familiennutzung oder Homeoffice? Familie
Schlafgäste pro Jahr 0
offene oder geschlossene Architektur
konservativ oder moderne Bauweise
offene Küche, Kochinsel Ja,Ja
Anzahl Essplätze 6-8
Kamin
Musik/Stereowand
Balkon, Dachterrasse Ja
Garage, Carport
Nutzgarten, Treibhaus
weitere Wünsche/Besonderheiten/Tagesablauf
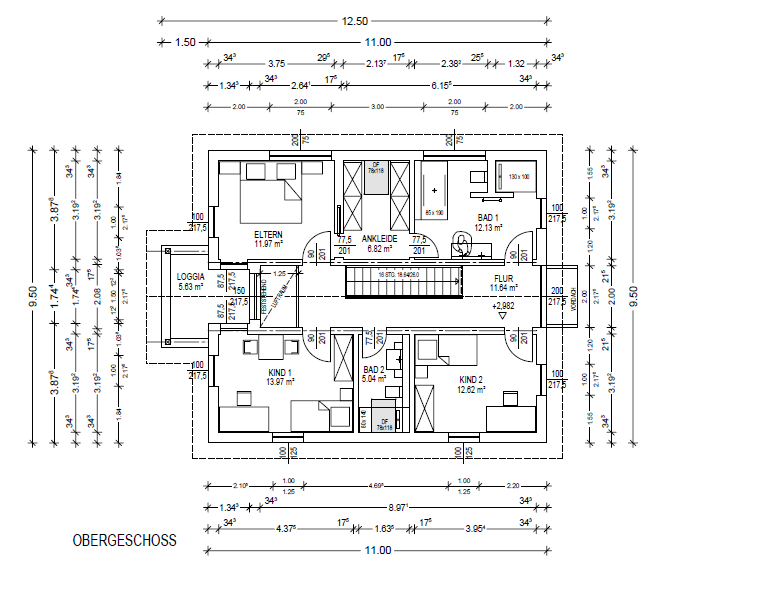
- unklar ob die 12 qm der Kinder den 31 qm des Elternreichs in angemessener Proportion gegenüber stehen
- ggf. wird es ein rangieren, wenn man aus dem Kinderbad gehen möchte, wenn man sich die Hände Gewaschen hat
- Luftraum ist wegen Schall immer so eine Sache... einer guckt fern, Kind 1 wird verrückt
- 1,25 ist für einen Durchgang + Garderobe zu wenig, da habt ihr dann immer Stau
- Zugang zum Gäste-WC ist ähnlich kritisch wie der im Kinderbad
- 3 m breite im Wohnzimmer ist eher wenig - das sind sehr schmeichelhafte Sofas, die da eingezeichnet sind
- Sitzsituation im Erker ist mit den 2.6 okay, aber eher schmal (80 cm je Gast und Stuhl)
- Von wo aus ist der Wintergarten zugänglich?
- ohne Keller sind die 6.7 qm Hauswirtschaftsraum mit einer Stellwand überschaubar. Unklar, ob ich die Speis nicht Streichen und dafür den Hauswirtschaftsraum größer machen würde.
- ggf. wird es ein rangieren, wenn man aus dem Kinderbad gehen möchte, wenn man sich die Hände Gewaschen hat
- Luftraum ist wegen Schall immer so eine Sache... einer guckt fern, Kind 1 wird verrückt
- 1,25 ist für einen Durchgang + Garderobe zu wenig, da habt ihr dann immer Stau
- Zugang zum Gäste-WC ist ähnlich kritisch wie der im Kinderbad
- 3 m breite im Wohnzimmer ist eher wenig - das sind sehr schmeichelhafte Sofas, die da eingezeichnet sind
- Sitzsituation im Erker ist mit den 2.6 okay, aber eher schmal (80 cm je Gast und Stuhl)
- Von wo aus ist der Wintergarten zugänglich?
- ohne Keller sind die 6.7 qm Hauswirtschaftsraum mit einer Stellwand überschaubar. Unklar, ob ich die Speis nicht Streichen und dafür den Hauswirtschaftsraum größer machen würde.
B
Bauexperte22.08.15 12:39Hallo,
ich möchte den TE mal für einen Augenblick "entführen" 😀
Alex: kannst Du bitte mal einen Blick auf diesen Thread https://www.hausbau-forum.de/threads/1-vorentwurf-bitte-um-eure-meinungen.12969/page-3 - post 19, werfen. Wer, wenn nicht Du, ist prädestiniert, die darin enthaltene Frage fachlich zu beantworten?
Danke + Grüße, Bauexperte
ich möchte den TE mal für einen Augenblick "entführen" 😀
Alex: kannst Du bitte mal einen Blick auf diesen Thread https://www.hausbau-forum.de/threads/1-vorentwurf-bitte-um-eure-meinungen.12969/page-3 - post 19, werfen. Wer, wenn nicht Du, ist prädestiniert, die darin enthaltene Frage fachlich zu beantworten?
Danke + Grüße, Bauexperte
BeHaElJa schrieb:
- unklar ob die 12 qm der Kinder den 31 qm des Elternreichs in angemessener Proportion gegenüber stehen
- ggf. wird es ein rangieren, wenn man aus dem Kinderbad gehen möchte, wenn man sich die Hände gewaschen hat
- Luftraum ist wegen Schall immer so eine Sache... einer guckt fern, Kind 1 wird verrückt
- 1,25 ist für einen Durchgang + Garderobe zu wenig, da habt ihr dann immer Stau
- Zugang zum Gäste-WC ist ähnlich kritisch wie der im Kinderbad
- 3 m breite im Wohnzimmer ist eher wenig - das sind sehr schmeichelhafte Sofas, die da eingezeichnet sind
- Sitzsituation im Erker ist mit den 2.6 okay, aber eher schmal (80 cm je Gast und Stuhl)
- Von wo aus ist der Wintergarten zugänglich?
- ohne Keller sind die 6.7 qm Hauswirtschaftsraum mit einer Stellwand überschaubar. Unklar, ob ich die Speis nicht streichen und dafür den Hauswirtschaftsraum größer machen würde.Hier ist nicht von Kindern die rede. Es wird bei 1 Kind bleiben und somit ist mehr als genug platz.Zugänge zu Bad und Wc ist meines erachtens ausreichend, da ja nie mehr als 1 Person drin sind.
Wintergarten ist nur über Küche oder Terrasse zugänglich, was auch so gewollt war.
lastdrop schrieb:
Wenns in wenigen Tagen mit dem Bau losgehen soll ... halte ich mich mit Kommentaren zurück ...Ich mich nicht :-D
Mal schauen, wann das 2. Haus gebaut wird, weil das Erste zu viele Mängel (in der Planung) aufweist ;-)
- Essbereich zu schmal, Wohnzimmer ebenso.
- Luftbereich direkt neben Kinderzimmer - mal schauen wen es eher nervt: die Eltern weil die in Ruhe mit Freunden essen wollen und das Kind Musik hört oder auch nur im Kinderzimmer spielt. Oder das Kind, weil Essensgerüche ins Kinderzimmer wabbern genauso wie die Gespräche und der TV.
- Warum bekommt das Kinderbad nur ein Dachfenster? Warum macht ihr nicht ein Kinderzimmer etwas kleiner und dafür das Bad etwas größer? Warum braucht ihr überhaupt 2 Kinderzimmer wenn nur 1 Kind gewünscht ist? Reserve?
- Treppenaufgang aus dem Essbereich auch sehr ungünstig. Bedenke, dass dein Kind auch mal Freunde nach Hause bringt, wenn ihr bereits im Schlaf seid.
Fazit: schicker Grundriss für ein Pärchen. Aber nicht mit und für Kinder. Privatsphäre ist bei dem Grundriss so gut wie nicht vorhanden.
Ähnliche Themen