Umbauplanung Bestandsimmobilie - Tipps und Vorschläge erbeten

4,20 Stern(e) 5 Votes
Zuletzt aktualisiert 08.10.2025
Sie befinden sich auf der Seite 2 der Diskussion zum Thema: Umbauplanung Bestandsimmobilie - Tipps und Vorschläge erbeten
>> Zum 1. Beitrag <<

Y

ypg

Ah, ich erkenne jetzt auch das OG :)

Ich würde keine Galerie machen, da es sich dann oberhalb der Küche befinden würde. Das klackert dann tatsächlich nicht schön da oben. Außerdem gibt es ja noch den Balkon, der zu begehen ist.
Das Haus, auch das OG und die Idee mit der Galerie hat tatsächlich sehr viel Ähnlichkeit mit einem Thread, der vor einigen Wochen war - es ging im Titel um die Deckenhöhe. Kannst ja mal suchen .
 
F

Flasher

Guest
@Chiloe
Bezüglich der Leseecke und Anzahl der Kinderzimmer möchte ich trotzdem nochmal anmerken:
Aktuell plant ihr mit Anfang 30 mit einem Kinderzimmer. Ich kann dir aus meinem Umfeld berichten, dass aus einem Kind sehr schnell zwei werden können, sobald das erste Kind da ist. Ich habe sogar mehrere Beispiele, wo man nur ein Kind wollte und dann auf einen Schlag zwei entstanden sind... Also ich würde zumindest 1 Kinderzimmer + 1 Gästezimmer.

Noch eine Anmerkung zu eurem Wohnzimmer:
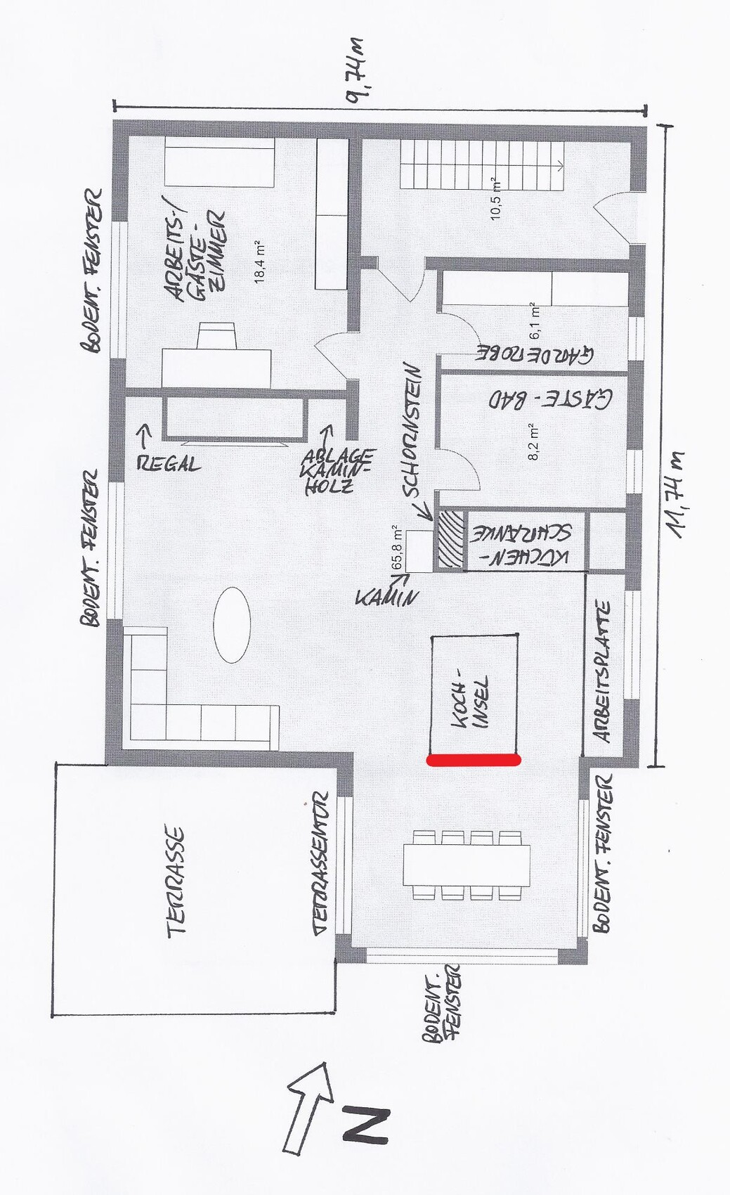
Wieviel Holz plant ihr pro Saison zu verheizen? Ich bin ein fleißiger Heizer und plane deswegen mit einer optimierten Route zwischen Brennholzlagerort im Garten und Brennholzlagerplatz im Haus. Jedes Reinholen von Brennholz ist mit Dreck verbunden. Aus diesem Grund muss die Route möglichst kurz sein. Würdest du das Brennholz über die Terrasse reinholen?

Bezüglich Bad im 1.OG:
Ich verstehe dass du den Platz in diesem Bereich für ein Bad hast. Du könntest mal das Bad ausplanen, d.h. wo wird Dusche, Badewanne usw platziert. Dann könnte man besser einschätzen, ob es Flächen gibt, welche leer wären und man evtl. doch lieber einen anderen Raum zuschlagen möchte.
 
C

Chiloe

@ypg
-> Ecke des Hauses/Anbau sichtbar lassen, 1,50/2,00 Meter frei, dann eine Wandscheibe...
Kannst Du uns noch einmal erläutern, was Du damit genau meinst?

Höhe der Räume: kein Problem, schau mal in den letzten 5 Wochen im Forum, gleiches Thema
Das Thema haben wir verfolgt. Eigentlich kam daher sogar die Idee mit dem Luftraum, da einige der Beitragenden der Meinung waren, dass das Raumgefühl in einem Raum mit großer Grundfläche und gleichzeitig recht niedriger Deckenhöhe doch arg leide. Vielleicht haben wir da aber auch etwas missverstanden, wir werden das Thema noch einmal durchlesen.

@Flasher
Aktuell plant ihr mit Anfang 30 mit einem Kinderzimmer.
Naja, eigentlich planen wir mit einem Kinderzimmer im Obergeschoss und bei Bedarf mit zwei weiteren Kinderzimmern im Dachgeschoss. Als bedarfsweises Gästezimmer planen wir aktuell die Nutzung des Arbeitszimmers im Erdgeschoss ein.

Würdest du das Brennholz über die Terrasse reinholen?
Wahrscheinlich werden wir einen weiteren Durchbruch im Treppenhaus einplanen (müssen). Aktuell gibt es zwischen Haus und Garage einen Durchgang in den Garten. Nach der Dämmung und Verklinkerung des Haupthauses und Verklinkerung der Garage bleibt für einen anständigen Durchgang an dieser Stelle wohl nicht mehr genügend Platz übrig - zumal man bei Verzicht auf den Durchgang auch den Eingangsbereich etwas freier gestalten könnte. Daher planen wir, hinter der Haustür in der nördlichen Außenwand (vor der Treppe hinunter in den Keller) eine zusätzliche Tür nach draußen einzubauen. Ich denke, dass sich diese dann auch eher zum Holztransport eignet.

Ich verstehe dass du den Platz in diesem Bereich für ein Bad hast. Du könntest mal das Bad ausplanen, d.h. wo wird Dusche, Badewanne usw platziert.
Wir haben bereits Kontakt mit einem Sanitärfachgeschäft zwecks Planung der Bäder im Erd- und Obergeschoss aufgenommen. Falls dabei herauskommt, dass man unsere Wünsche auch auf deutlich kleinerer Fläche realisieren kann, so käme tatsächlich eine veränderte Grundrissplanung des Obergeschosses in Betracht. Wir wollen nur vermeiden, dass der Flur im Obergeschoss - wie im jetzigen unsanierten Zustand - keinerlei Tageslicht abbekommt. Außerdem soll man möglichst auf den Balkon gelangen können, ohne zuvor zwangsweise durch ein Kinder- oder Schlafzimmer laufen zu müssen. Da bliebe als Alternative wohl nur ein langer Schlauch mit Balkontür in der südlichen Außenwand übrig und das begrenzt dann wiederum die Nutzfläche eines vollwertigen Zimmers anstelle der Lese- bzw. Spielecke.
 
Y

ypg

Optisch sowie auch praktisch: eine Wandscheibe stehen lassen...
-> Ecke des Hauses/Anbau sichtbar lassen, 1,50/2,00 Meter frei, dann eine Wandscheibe...

Höhe der Räume: kein Problem, schau mal in den letzten 5 Wochen im Forum, gleiches Thema
Ich würde die Ecke zw WZ und Essbereich stehen lassen. Die ist schön
Ich würde allerdings (so ca. mittig) eine Wandscheibe stehen lassen. Als Begrenzung, Untermalung des Offenen, als Akzent oder/und als Sichtschutz...

Sorry,
War etwas umständlich geschrieben, da ich zuerst von einem Wandstummel am Sofa sprach...
 
C

Chiloe

Also eine Wand planunten als "Abschluss" der Kochinsel zur Trennung von Koch- und Essbereich?


Grundriss eines Hauses mit Terrasse, Kamin, Wohnzimmer und Eingängen
 
Zuletzt aktualisiert 08.10.2025
Im Forum Grundrissplanung / Grundstücksplanung gibt es 2512 Themen mit insgesamt 87199 Beiträgen


Ähnliche Themen zu Umbauplanung Bestandsimmobilie - Tipps und Vorschläge erbeten
Nr.ErgebnisBeiträge
1Grundriss Doppelhaushälfte mit Pultdach und Balkonterrasse - Feedback - Seite 749
2 2 Vollgeschosse, Durchgang Garage, Hauswirtschaftsraum unter Treppe 25
3Balkon auf Garage auf Grenze 11
4Stadtvilla 160-170 m², Problematik Anschluss Windfang mit Garage - Seite 332
5Hanghaus 235 qm mit Garage im Keller auf 3600 qm Grundstück 15
6Grundriss Doppelhaushälfte mit Gästezimmer 53
7Braucht man LAN Kabel in der Garage? - Seite 7107
8Grundriss 3 Kinderzimmer Einfamilienhaus - Potenziale? 43
9Grundriss Einfamilienhaus 240 m² mit teilüberbauter Garage 96
10Grundriss Einfamilienhaus 155m², ohne Keller, 3 Kinderzimmer, 1 Büro - Seite 538
11Grundriss Einfamilienhaus mit Garage - Seite 218
12Grundriss Einfamilienhaus (ca. 170 qm) mit Garage - Hanglage - Seite 335
13Grundriss Landhausneubau in großem Garten nach §34 (mit Abriss) 37
14Wie Gebäude platzieren? Haus Terrasse Garage Werkstatt - Seite 324
15Grundrissentwurf eines Passivhauses 170m² mit Garage - Seite 218
16Ups...! Wir brauchen jetzt doch ein Kinderzimmer... 19
17Kinderzimmer mit bodentiefen Fenstern 22
18Grundrissplanung Hanghaus mit 5 Kinderzimmer 370
19Grundriss, längliches Einfamilienhaus, integrierte Garage kein Keller 16
20Grundrissplanung Einfamilienhaus (Stadtvilla) ca.140m² (3 Kinderzimmer) 42

Oben