Moin zusammen,
Wir werden kommendes Jahr (hoffentlich) mit der Sanierung / Erneuerung unseres Hauses beginnen.
In den meisten Punkten sind wir uns bereits sicher, was wir benötigen oder wollen.
Unser Knackpunkt zur Zeit, für den wir noch keine wirklich gute Lösung gefunden haben, ist unsere Küche.
Unsere derzeitige Küche
- hat kaum Arbeitsfläche
- ist ebenfalls Ankleidebereich
- beherbergt die von uns meistgenutzte Haustür (die Haupthaustür vorne nutzen wir deutlich weniger, da die Autos näher an der Küche parken)
- hat ein wunderschönes Fenster direkt zur Terrasse unserer Nachbarn, sodass sie bei uns reinschauen und wir die Zierde körperlicher Anmut im Sommer bewundern können
Ich habe vier Arten von Plänen mitgebracht:
1. Original - Ist Zustand Erdgeschoss
1.1 Original - Ist Zustand Küche
1.2 Original - Ist Zustand Bad
2. Variante 1
2.1 Variante 1 Küche
2.2 Variante 1 Bad
3. Variante 2
3.1 Variante 2 Küche
3.2 Variante 2 Bad
4. Variante unseres Architekten, mit dem wir die Zusammenarbeit aufgrund mangelnden Vertrauens beendet haben...
Derzeit bevorzuge ich Variante 1.
Bei dieser Variante müssten wir einige Türen verschieben, dafür müsste man nach dem Reinkommen nicht mehr durch die komplette Küche tingeln.
Die neue Haustür planrechts würde dann auf unserer Terrasse enden, was wir sehr schön fänden (ja, zur Zeit lüftet das Bad auf die Terrasse...).
Vielleicht habt Ihr ja noch ein paar bessere Ideen für uns, an die wir aufgrund von Betriebsblindheit noch nicht gedacht haben?
Danke schonmal im Voraus 🙂









Wir werden kommendes Jahr (hoffentlich) mit der Sanierung / Erneuerung unseres Hauses beginnen.
In den meisten Punkten sind wir uns bereits sicher, was wir benötigen oder wollen.
Unser Knackpunkt zur Zeit, für den wir noch keine wirklich gute Lösung gefunden haben, ist unsere Küche.
Unsere derzeitige Küche
- hat kaum Arbeitsfläche
- ist ebenfalls Ankleidebereich
- beherbergt die von uns meistgenutzte Haustür (die Haupthaustür vorne nutzen wir deutlich weniger, da die Autos näher an der Küche parken)
- hat ein wunderschönes Fenster direkt zur Terrasse unserer Nachbarn, sodass sie bei uns reinschauen und wir die Zierde körperlicher Anmut im Sommer bewundern können
Ich habe vier Arten von Plänen mitgebracht:
1. Original - Ist Zustand Erdgeschoss
1.1 Original - Ist Zustand Küche
1.2 Original - Ist Zustand Bad
2. Variante 1
2.1 Variante 1 Küche
2.2 Variante 1 Bad
3. Variante 2
3.1 Variante 2 Küche
3.2 Variante 2 Bad
4. Variante unseres Architekten, mit dem wir die Zusammenarbeit aufgrund mangelnden Vertrauens beendet haben...
Derzeit bevorzuge ich Variante 1.
Bei dieser Variante müssten wir einige Türen verschieben, dafür müsste man nach dem Reinkommen nicht mehr durch die komplette Küche tingeln.
Die neue Haustür planrechts würde dann auf unserer Terrasse enden, was wir sehr schön fänden (ja, zur Zeit lüftet das Bad auf die Terrasse...).
Vielleicht habt Ihr ja noch ein paar bessere Ideen für uns, an die wir aufgrund von Betriebsblindheit noch nicht gedacht haben?
Danke schonmal im Voraus 🙂
O
os24laenger19.09.22 19:34Noch ein Tipp wegen Bestandsgebäude messen/scannen:
Die bessere IPhones haben ein LiDAR Scanner eingebaut, mit der passende App ( ich nutze Polycam) ist es möglich ein Haus ( oder Grundstück) selber recht schnell in 3d und erstaunlich genau ein zu scannen. Der App bietet viele Export Formate an welche wieder in andere Zeichnungsprogramme importiert werden können. Habe damit der Höheverlauf von unseres Grundstücks vermessen. Ein iPhone kostet zwar inzwischen auch fast 1500€, kann aber noch für andere Dinge benutzt werden.
Die bessere IPhones haben ein LiDAR Scanner eingebaut, mit der passende App ( ich nutze Polycam) ist es möglich ein Haus ( oder Grundstück) selber recht schnell in 3d und erstaunlich genau ein zu scannen. Der App bietet viele Export Formate an welche wieder in andere Zeichnungsprogramme importiert werden können. Habe damit der Höheverlauf von unseres Grundstücks vermessen. Ein iPhone kostet zwar inzwischen auch fast 1500€, kann aber noch für andere Dinge benutzt werden.
Moin zusammen,
zwischendurch von mir ein kurzes Update. Vermessung via Arbeitshandy hat nicht geklappt, da scheinbar erst das iPhone 12 Pro den Sensor drin hat.
Also Abstandsmesser und Zollstock genommen und von Grundauf vermessen und daraus einen neuen Plan je Geschoss erstellt.
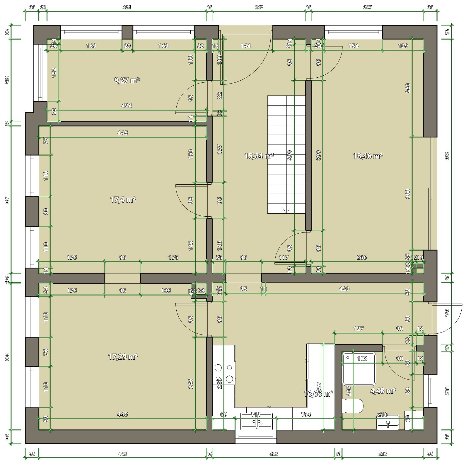
Darauf aufbauend habe ich die verschiedenen Varianten für die Küche im Plan umgesetzt und mit meiner besseren Hälfte durchgesprochen. Es wird nun aller Voraussicht nach die Variante im Anhang (noch nicht auf den cm genau geplant).
Ich hätte gerne das Bad noch etwas geschmälert, allerdings passt es so direkt mit einem Balken, den wir derzeit in der Küche (sichtbar) und im Bad (in der Wand) haben und ist direkt unter der Wand des OG, sodass es für mich die logischere Variante ist, einfach die Wand, die es dort scheinbar früher gab, wieder aufzubauen.
Parallel zu den Vermessungen haben wir jetzt ein Bauunternehmen an der Hand, welches einen guten Ruf hat und einen guten Teil seines Geschäfts mit Altbausanierungen macht.
Zusätzlich haben wir kommende Woche einen Termin mit einem Ingenieurbüro und einem Energieberater, sodass wir in die Planung starten können. Die Bank hat zwar generell grünes Licht gegeben, aber auch da haben wir nochmal einen Termin, um das maximale Budget zu klären, da der letzte Termin schon einige Wochen her war.
Es bleibt spannend...
Danke nochmal für Euren Input!

zwischendurch von mir ein kurzes Update. Vermessung via Arbeitshandy hat nicht geklappt, da scheinbar erst das iPhone 12 Pro den Sensor drin hat.
Also Abstandsmesser und Zollstock genommen und von Grundauf vermessen und daraus einen neuen Plan je Geschoss erstellt.
Darauf aufbauend habe ich die verschiedenen Varianten für die Küche im Plan umgesetzt und mit meiner besseren Hälfte durchgesprochen. Es wird nun aller Voraussicht nach die Variante im Anhang (noch nicht auf den cm genau geplant).
Ich hätte gerne das Bad noch etwas geschmälert, allerdings passt es so direkt mit einem Balken, den wir derzeit in der Küche (sichtbar) und im Bad (in der Wand) haben und ist direkt unter der Wand des OG, sodass es für mich die logischere Variante ist, einfach die Wand, die es dort scheinbar früher gab, wieder aufzubauen.
Parallel zu den Vermessungen haben wir jetzt ein Bauunternehmen an der Hand, welches einen guten Ruf hat und einen guten Teil seines Geschäfts mit Altbausanierungen macht.
Zusätzlich haben wir kommende Woche einen Termin mit einem Ingenieurbüro und einem Energieberater, sodass wir in die Planung starten können. Die Bank hat zwar generell grünes Licht gegeben, aber auch da haben wir nochmal einen Termin, um das maximale Budget zu klären, da der letzte Termin schon einige Wochen her war.
Es bleibt spannend...
Danke nochmal für Euren Input!
Ähnliche Themen