Moin zusammen,
Wir werden kommendes Jahr (hoffentlich) mit der Sanierung / Erneuerung unseres Hauses beginnen.
In den meisten Punkten sind wir uns bereits sicher, was wir benötigen oder wollen.
Unser Knackpunkt zur Zeit, für den wir noch keine wirklich gute Lösung gefunden haben, ist unsere Küche.
Unsere derzeitige Küche
- hat kaum Arbeitsfläche
- ist ebenfalls Ankleidebereich
- beherbergt die von uns meistgenutzte Haustür (die Haupthaustür vorne nutzen wir deutlich weniger, da die Autos näher an der Küche parken)
- hat ein wunderschönes Fenster direkt zur Terrasse unserer Nachbarn, sodass sie bei uns reinschauen und wir die Zierde körperlicher Anmut im Sommer bewundern können
Ich habe vier Arten von Plänen mitgebracht:
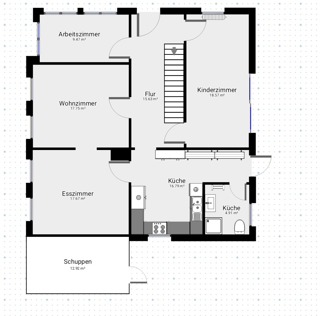
1. Original - Ist Zustand Erdgeschoss
1.1 Original - Ist Zustand Küche
1.2 Original - Ist Zustand Bad
2. Variante 1
2.1 Variante 1 Küche
2.2 Variante 1 Bad
3. Variante 2
3.1 Variante 2 Küche
3.2 Variante 2 Bad
4. Variante unseres Architekten, mit dem wir die Zusammenarbeit aufgrund mangelnden Vertrauens beendet haben...
Derzeit bevorzuge ich Variante 1.
Bei dieser Variante müssten wir einige Türen verschieben, dafür müsste man nach dem Reinkommen nicht mehr durch die komplette Küche tingeln.
Die neue Haustür planrechts würde dann auf unserer Terrasse enden, was wir sehr schön fänden (ja, zur Zeit lüftet das Bad auf die Terrasse...).
Vielleicht habt Ihr ja noch ein paar bessere Ideen für uns, an die wir aufgrund von Betriebsblindheit noch nicht gedacht haben?
Danke schonmal im Voraus 🙂









Wir werden kommendes Jahr (hoffentlich) mit der Sanierung / Erneuerung unseres Hauses beginnen.
In den meisten Punkten sind wir uns bereits sicher, was wir benötigen oder wollen.
Unser Knackpunkt zur Zeit, für den wir noch keine wirklich gute Lösung gefunden haben, ist unsere Küche.
Unsere derzeitige Küche
- hat kaum Arbeitsfläche
- ist ebenfalls Ankleidebereich
- beherbergt die von uns meistgenutzte Haustür (die Haupthaustür vorne nutzen wir deutlich weniger, da die Autos näher an der Küche parken)
- hat ein wunderschönes Fenster direkt zur Terrasse unserer Nachbarn, sodass sie bei uns reinschauen und wir die Zierde körperlicher Anmut im Sommer bewundern können
Ich habe vier Arten von Plänen mitgebracht:
1. Original - Ist Zustand Erdgeschoss
1.1 Original - Ist Zustand Küche
1.2 Original - Ist Zustand Bad
2. Variante 1
2.1 Variante 1 Küche
2.2 Variante 1 Bad
3. Variante 2
3.1 Variante 2 Küche
3.2 Variante 2 Bad
4. Variante unseres Architekten, mit dem wir die Zusammenarbeit aufgrund mangelnden Vertrauens beendet haben...
Derzeit bevorzuge ich Variante 1.
Bei dieser Variante müssten wir einige Türen verschieben, dafür müsste man nach dem Reinkommen nicht mehr durch die komplette Küche tingeln.
Die neue Haustür planrechts würde dann auf unserer Terrasse enden, was wir sehr schön fänden (ja, zur Zeit lüftet das Bad auf die Terrasse...).
Vielleicht habt Ihr ja noch ein paar bessere Ideen für uns, an die wir aufgrund von Betriebsblindheit noch nicht gedacht haben?
Danke schonmal im Voraus 🙂
kbt09 schrieb:
Wo wollt ihr denn Terrasse machen? Vorm Kinderzimmer?Da ist sie imho schon. Daher bleibt sie vermutlich dort.Am gefällisten finde ich diese Variante:
Allerdings wohl auch der größte Aufwand. Der Bad-Fenstersturz wird für die breite Haustür wohl nicht ausreichen. Also neuer Sturz und aufsägen. Evtl. muss man sogar den Statiker fragen. Dagegen ist die andere Variante vermutlich easy.
Was mich bei beiden stört ist die Nähe des GWCs zur Küche. Wie heißt es so schön:" Friss nicht wo Du schei..t.
Deswegen hier mein radikaler Vorschlag, der vermutlich weniger Aufwand ist, als man zuerst denkt:
Vielleicht macht man die Diele nicht ganz so breit und schließt die Tür zum Flur. Dafür Küche breiter. Aber das kann der TE ja selbst hin und her schieben, bis es passt. Ob das Kind allerdings mit erheblich weniger Platz auskommt oder auskommen soll, bleibt die Frage. 🙂
Die radikake Variante mag ich, die sieht gut, danke.
Vom Platz her müsste ich das mit meiner besseren Hälfte mal durchsprechen, wieviel sie wirklich BRAUCHT.
Von der Diele und Küche her, ist die Variante aber sehr gut, habe es mir gerade vor Ort mal durchdacht.
Einen Nachteil, den ich bei der Variante aber noch sehe, ist, dass das Gäste-WC zur Terrasse entlüften.
Wenn wir im Sommer mit Freunden auf der Terrasse sitzen, dann muss jeder, der ins Bad geht Fenster bei Eintritt schließen und nach dem Geschäft öffnen. Oder halt Geräusch- und Geruchskulisse für die Anwesenden erzeugen...
Vom Platz her müsste ich das mit meiner besseren Hälfte mal durchsprechen, wieviel sie wirklich BRAUCHT.
Von der Diele und Küche her, ist die Variante aber sehr gut, habe es mir gerade vor Ort mal durchdacht.
Einen Nachteil, den ich bei der Variante aber noch sehe, ist, dass das Gäste-WC zur Terrasse entlüften.
Wenn wir im Sommer mit Freunden auf der Terrasse sitzen, dann muss jeder, der ins Bad geht Fenster bei Eintritt schließen und nach dem Geschäft öffnen. Oder halt Geräusch- und Geruchskulisse für die Anwesenden erzeugen...
SoL schrieb:
Einen Nachteil, den ich bei der Variante aber noch sehe, ist, dass das Gäste-WC zur Terrasse entlüften.
Wenn wir im Sommer mit Freunden auf der Terrasse sitzen, dann muss jeder, der ins Bad geht Fenster bei Eintritt schließen und nach dem Geschäft öffnen. Oder halt Geräusch- und Geruchskulisse für die Anwesenden erzeugen...Das hatte ich auch schon gedacht. Das ist Schade. Innen finde ich die Variante dennoch am besten. Wäre Terrasse verlegen eine Option?Oder kann man das Gäste-WC auf die andre Seite schieben? Sind da Leitungen denkbar? Das wäre dann natürlich noch besser.
SoL schrieb:
sodass die Entwässerung schwierig werden würde. Unterkellert sind Küche, Gäste-WC und Flur.Nach der Entwässerung bzw Wasseranschluss hätte ich jetzt als Nächstes gefragt. Wo ist denn der? Und: man könnte natürlich auch alle im Garten so umleiten, dass sie (gefälligst) den richtigen Eingang nehmen… was wäre damit?
Ähnliche Themen