Hausbau - Ratgeber
Bauherrenhilfe
- Bauherrenhilfe vor Vertragsabschluss
-- Warum einen unabhängigen Baubetreuer?
-- Vertragsgrundlagen
-- Bausumme
-- Zahlungsplan zur Kostenkontrolle
-- Pflichten des Bauherren vor Vertragsabschluss
-- Unterlagen beim Hausbau vor Vertragsabschluss
- Bauherrenhilfe nach Vertragsabschluss
-- Bauantrag bei Behörden
-- Bau-Genehmigungsverfahren bei Baubehörden
-- Bauspezifische Versicherungen
-- Bauzeitenplan
-- Baubeginn - die Letzten Pflichten der Bauherrschaft
- Bauherrenhilfe während der Bauzeit
- Gewährleistungsansprüche
- Bauabnahme
Baufinanzierung
- Baufinanzierung - Allgemeine Fragen
- Kreditarten
- Kredit-Konditionen
- Bausparen
- Staatliche Förderungen
- Verkehrswert
- Haushaltsrechnung und Bonität
Hausbau Planung
- Haustypen
- Hausbau Vorbereitungsarbeiten
- Das Baugrundstück
- Baugrund beim Hausbau
- Baurecht
- Gebäudeschutz
- Erdarbeiten und Wasserhaltung
- Stützmauern
- Einfriedung
- Untergeschoss
- Kanalisation
- Tragende Elemente
- Nichttragende Innenwände
- Fundation / Fundament
- Deckenkonstruktionen
- Dächer
- Kaminanlagen
- Treppen Rampen Leitern
- Dachbeläge und Spengler
- Fenster
- Sonnen und Wetterschutz
- Aussenputze
- Einbauten, Küchen, Türen
- Bodenbeläge und Unterlagsböden
- Parkett
- Gips, Wand, Decke
Haustechnik und Energie
- Heiztechnik
- Lüftung und Klimatechnik
- Sanitärtechnik
- Elektrotechnik
- Erneuerbare Energie
Whirlpools / Jacuzzi
Hausbau Magazin
- Baufinanzierung trotz Krise?
- Das Blockhaus
- Moderne Dämmstoffe im Vergleich
- Erker Vor- und Nachteile
- Glasflächen beim Hausbau
- Günstig ein Haus Bauen
- Mediterraner Hausbaustil
- Mehrgenerationenhaus
- Moderne Architektur
- Gartengestaltung leicht gemacht
- Traditioneller Ziegelbau
- Villa als höchster Traum
- Im Eigenheim Ruhestand geniessen
- Altbau sanieren
- Kauf einer Holzgarage
- Immobilienmakler
- Arbeitshandschuhe für den Winter
- Zuhause verschönern
- Outdoor-Plissees
- Schlafzimmer planen
- Terrassenüberdachung
- Wohngebäudeversicherung
- Zaunarten und Eigenschaften
- Hauseingang gestalten
- Der perfekte Grundriss
- Sparsamer heizen im Altbau
- Einfamilienhaus smart finanzieren
- Planung einer PV-Anlage
- Neues Haus
- Immobilienfinanzierung
- Installation einer Photovoltaikanlage
- Asbest erkennen und entfernen
- Gartenpflege im Frühling – worauf achten
- Sauna im Fokus - Wellness zuhause
- Erfolgreich vermieten
- Die perfekte Winterbekleidung
- Das Niedrigenergiehaus
- Der April und seine Stürme
- Architektonische Vielfalt
- Ökologisch und nachhaltig bauen
- Das perfekte Schlafzimmer
- Nachhaltige Energieversorgung
- Zukunftsorientiert bauen
- Nachhaltigkeit beim Hausbau
- Tiny Houses
- Wärmepumpen als nachhaltige Heizvariante
- Maßgeschneiderten Kleiderschrank
- Der richtige Baukredit
- Ratgeber für erfolgreichen Hausbau
- Haus als Altersvorsorge
Do-it-yourself Anleitungen
- Verlegeanleitung für Bodenbeläge und Parkett
- Bodenbeläge und Parkett reinigen und pflegen
- Malerarbeiten am Haus
- Garten Tipps
- Umzug und Reinigung

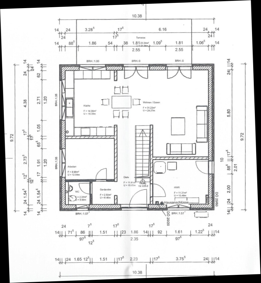
ᐅ Grundriss Halboffene Küche mit großem Essbereich - Detailfragen

Erstellt am: 01.05.15 11:50
B
Bieber0815
B
Bieber0815
01.05.15 11:50
Hey, wir planen ein Einfamilienhaus (Stadtvilla), ca. 158 m², 5 Zimmer, ohne Keller, mit Doppelgarage/Werkstatt. Wir sind uns relativ sicher, was wir wollen und was wir nicht wollen . Besonders jedoch grübeln wir über die Küche. Dazu dann unten mehr.

Bebauungsplan/Einschränkungen
--> Spielt hier IMHO keine Rolle.

Anforderungen der Bauherren
1.) Halboffene Küche ohne Insel. Halboffen heißt, offen zum Ess-/Wohnzimmer, aber nicht komplett einsehbar für Gäste, die am esstisch sitzen. Eine Ecke soll bleiben, in der schmutziges Geschirr oder ähnliches unansehnliches gestapelt werden kann.
2.) Im Wohnzimmer würden wir gerne bei Bedarf (4 x im Jahr?) einen langen Esstisch stellen und ~16 Personen bewirten. Der Couch-Bereich kann als Senioneren- oder Kinder-Tisch berücksichtigt werden. Also Platz ist eigentlich genug, es geht um die Feinheiten der Grundrissgestaltung.
3.) 2 Erwachsene, 2 Kinder leben gemeinsam im Haus. Gegessen wird am Esstisch nahe der Küche. Häufig sind insgesamt 8 Essplätze erforderlich (selten dann mehr).

Hausentwurf
--> Entwurf vom Bauunternehmer nach Durchsprache mit uns.


Konkrete Fragen/Anmerkungen:
1.) Der Entwurf zeigt eine U-Küche. Unsere derzeitigen Küchenmöbel reichen bereits nicht aus, ein L zu stellen. Schon mit der L-Küche hätten wir zukünftig mehr Arbeitsfläche und Schrankvolumen als heute. Andererseits müssten wir (aufgrund der Fenster) auf einen 90er Wandschrank verzichten (Hängeschrank, da sind die Gläser drin).
2.) Der untere Wandstummel zwischen Küche und Wohnzimmer (gegenüber Treppe) ist uns zu kurz. Den wollen wir länger, damit man nicht so direkt die Küche einsehen kann.
3.) Den oberen Wandstummel ... Keine Ahnung .

Grundriss eines Hauses mit Küche, Wohn- und Essbereich, Diele, HWR, Arbeitszimmer.

Die Oberseite des Grundrisses ist Westen. Dort befindet sich die Terrasse.

Habt Ihr Ideen oder andere hilfreiche Hinweise?
Y
ypg
01.05.15 12:50
Wofür wären denn die Stummel? Keine Tür... Kein Sichtschutz, die am Essplatz können immer schön auf den Allerwertesten der Person in der Küche schauen. Für mich ein No-go, schutzlos den Rücken dem Feind entgegen zu strecken
B
Bieber0815
01.05.15 14:54
ypg schrieb:
Wofür wären denn die Stummel?
Die sollen wohl den Küchenbereich abgrenzen, sie geben der Arbeitsplatte ein klares Ende. Ich neige dazu, den unteren Stummel deutlich zu verlängern, dafür den oberen wegzulassen. Den Essplatz kann man auf der Skizze auch ein Stück nach rechts sich denken. Dann wirkt es anders.

Es gibt noch einen Stummel (an der Garderobe). Den würde ich vielleicht auch weglassen ...

Unsere Allerwerteste sind durchaus vorzeigbar , aber ich verstehe, was Du meinst. Deswegen ja "halboffen/teiloffen" und nicht komplett offen.
Y
ypg
01.05.15 15:16
Ist die Küche nicht etwas gross? Die Schrankfläche wird man brauchen, dennoch sind die Wege eventuell sehr weit.
Wir haben übrigens (fast) den gleichen Grundriss, wenn auch völlig anders
Mal in mein Profil nach dem Baublog schauen...

ich würde den Stummel in der Garderobe wegnehmen (ausser, Ihr plant einen Einbauschrank).
Vlt wäre in der Küche eine Wandscheibe angebracht... ich kann leider die Maße nicht erkennen...
B
Bieber0815
01.05.15 16:41
Die Küche ist 3,20 m breit und 4,20 m lang. Was ist eine Wandscheibe? Wie würde das aussehen?

Ui, hab kurz in Deinen Blog geschaut, tolles Haus! Ich erkenne tatsächlich eine gewisse Ähnlichkeit .
K
kbt09
03.05.15 17:41
Bei der Küchengröße würde ich zunächst mal einen direkten Zugang von Küche zu Terrasse einplanen. Dann ist auch nicht erkennbar, warum keine Insel.

Nimm dir etwas Zeit, studiere andere Planungsthreads, suche vielleicht deine alten Küchenkaufunterlagen heraus, damit man prüfen kann, was weiterverwendbar wäre usw.

Deine Raumplanung gibt da auf jeden Fall einiges her.
küchewohnzimmeresstischentwurfwandstummelterrasseessplatzgarderobewandscheibe