Moin zusammen,
Wir werden kommendes Jahr (hoffentlich) mit der Sanierung / Erneuerung unseres Hauses beginnen.
In den meisten Punkten sind wir uns bereits sicher, was wir benötigen oder wollen.
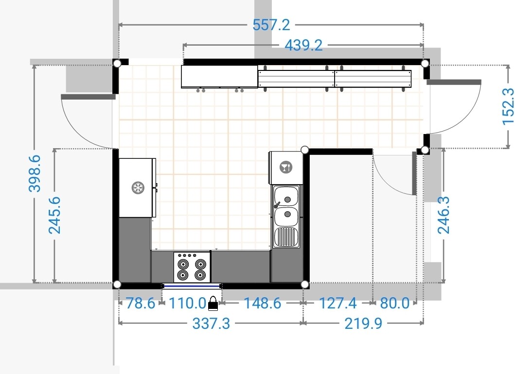
Unser Knackpunkt zur Zeit, für den wir noch keine wirklich gute Lösung gefunden haben, ist unsere Küche.
Unsere derzeitige Küche
- hat kaum Arbeitsfläche
- ist ebenfalls Ankleidebereich
- beherbergt die von uns meistgenutzte Haustür (die Haupthaustür vorne nutzen wir deutlich weniger, da die Autos näher an der Küche parken)
- hat ein wunderschönes Fenster direkt zur Terrasse unserer Nachbarn, sodass sie bei uns reinschauen und wir die Zierde körperlicher Anmut im Sommer bewundern können
Ich habe vier Arten von Plänen mitgebracht:
1. Original - Ist Zustand Erdgeschoss
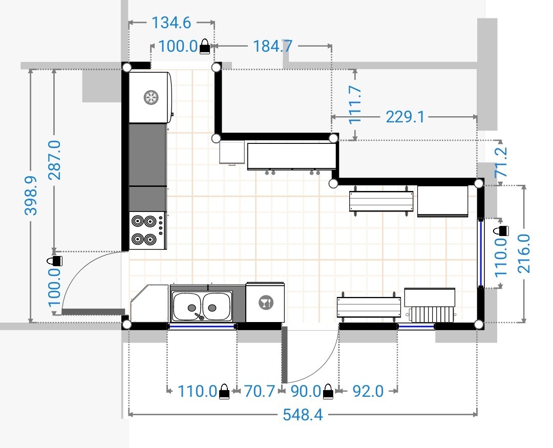
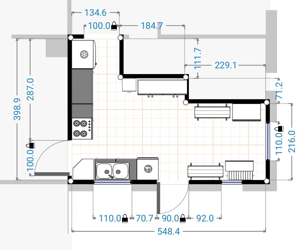
1.1 Original - Ist Zustand Küche
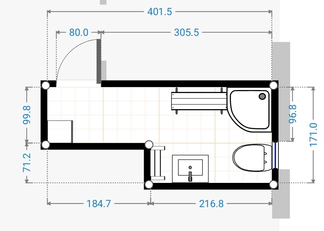
1.2 Original - Ist Zustand Bad
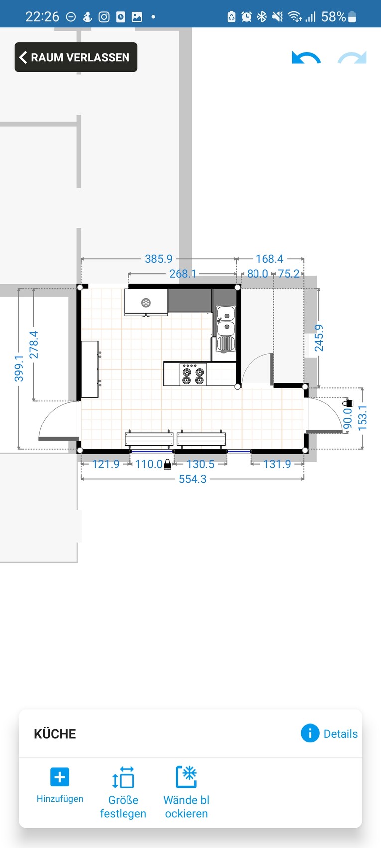
2. Variante 1
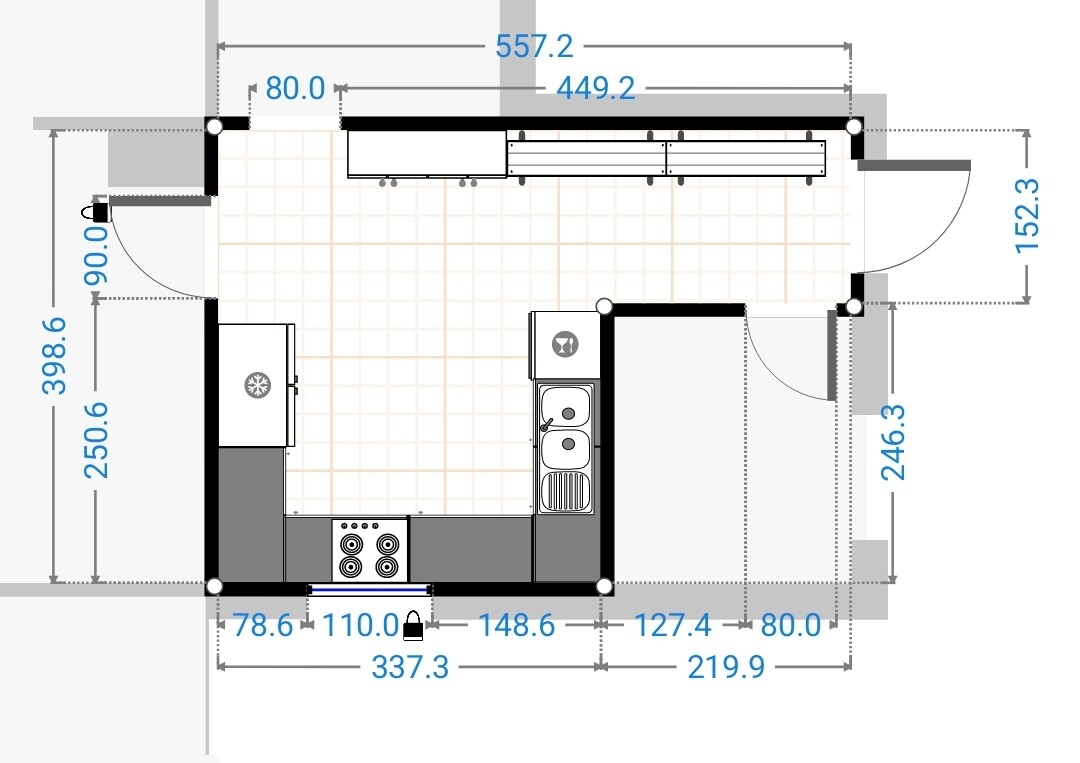
2.1 Variante 1 Küche
2.2 Variante 1 Bad
3. Variante 2
3.1 Variante 2 Küche
3.2 Variante 2 Bad
4. Variante unseres Architekten, mit dem wir die Zusammenarbeit aufgrund mangelnden Vertrauens beendet haben...
Derzeit bevorzuge ich Variante 1.
Bei dieser Variante müssten wir einige Türen verschieben, dafür müsste man nach dem Reinkommen nicht mehr durch die komplette Küche tingeln.
Die neue Haustür planrechts würde dann auf unserer Terrasse enden, was wir sehr schön fänden (ja, zur Zeit lüftet das Bad auf die Terrasse...).
Vielleicht habt Ihr ja noch ein paar bessere Ideen für uns, an die wir aufgrund von Betriebsblindheit noch nicht gedacht haben?
Danke schonmal im Voraus 🙂










Wir werden kommendes Jahr (hoffentlich) mit der Sanierung / Erneuerung unseres Hauses beginnen.
In den meisten Punkten sind wir uns bereits sicher, was wir benötigen oder wollen.
Unser Knackpunkt zur Zeit, für den wir noch keine wirklich gute Lösung gefunden haben, ist unsere Küche.
Unsere derzeitige Küche
- hat kaum Arbeitsfläche
- ist ebenfalls Ankleidebereich
- beherbergt die von uns meistgenutzte Haustür (die Haupthaustür vorne nutzen wir deutlich weniger, da die Autos näher an der Küche parken)
- hat ein wunderschönes Fenster direkt zur Terrasse unserer Nachbarn, sodass sie bei uns reinschauen und wir die Zierde körperlicher Anmut im Sommer bewundern können
Ich habe vier Arten von Plänen mitgebracht:
1. Original - Ist Zustand Erdgeschoss
1.1 Original - Ist Zustand Küche
1.2 Original - Ist Zustand Bad
2. Variante 1
2.1 Variante 1 Küche
2.2 Variante 1 Bad
3. Variante 2
3.1 Variante 2 Küche
3.2 Variante 2 Bad
4. Variante unseres Architekten, mit dem wir die Zusammenarbeit aufgrund mangelnden Vertrauens beendet haben...
Derzeit bevorzuge ich Variante 1.
Bei dieser Variante müssten wir einige Türen verschieben, dafür müsste man nach dem Reinkommen nicht mehr durch die komplette Küche tingeln.
Die neue Haustür planrechts würde dann auf unserer Terrasse enden, was wir sehr schön fänden (ja, zur Zeit lüftet das Bad auf die Terrasse...).
Vielleicht habt Ihr ja noch ein paar bessere Ideen für uns, an die wir aufgrund von Betriebsblindheit noch nicht gedacht haben?
Danke schonmal im Voraus 🙂
Die Gäste kommen von der anderen Seite, weil die Straßenseite planlinks ist und sie dann vorne zur Tür kommen.
Unsere Autos parken in der Einfahrt, die über einen separaten Stichweg erreichbar ist. Diese Einfahrt liegt dann planrechtsunten und somit deutlich näher an der Küchentür, als an der "Haustür".
Das Bad hat eine Dusche, da es unser Zweitbad ist. Guter Hinweis, danke, hier fehlt nämlich noch etwas Wichtiges von uns: Wir sind 6 Personen (38, 38, 8, 7, 2, 2). Daher auch die zwei Bänke zum Anziehen.
Bzgl. der Gesamt EG Pläne: Kann ich machen, es ändert sich im EG nach derzeitiger Planung allerdings nichts an den Raumaufteilungen. Die bleiben im Rest des EG wie im Originalplan.
Unsere Autos parken in der Einfahrt, die über einen separaten Stichweg erreichbar ist. Diese Einfahrt liegt dann planrechtsunten und somit deutlich näher an der Küchentür, als an der "Haustür".
Das Bad hat eine Dusche, da es unser Zweitbad ist. Guter Hinweis, danke, hier fehlt nämlich noch etwas Wichtiges von uns: Wir sind 6 Personen (38, 38, 8, 7, 2, 2). Daher auch die zwei Bänke zum Anziehen.
Bzgl. der Gesamt EG Pläne: Kann ich machen, es ändert sich im EG nach derzeitiger Planung allerdings nichts an den Raumaufteilungen. Die bleiben im Rest des EG wie im Originalplan.
SoL schrieb:
Bzgl. der Gesamt EG Pläne: Kann ich machen, es ändert sich im EG nach derzeitiger Planung allerdings nichts an den Raumaufteilungen. Die bleiben im Rest des EG wie im Originalplan.Es macht es aber einfacher den Gesamteindruck zu gewinnen 😉SoL schrieb:
Vielleicht habt Ihr ja noch ein paar bessere Ideen für uns, an die wir aufgrund von Betriebsblindheit noch nicht gedacht haben?SoL schrieb:
Unser Knackpunkt zur Zeit, für den wir noch keine wirklich gute Lösung gefunden haben, ist unsere Küche.Was wollt Ihr denn? Was strebt Ihr an? Varianten sind in den Ansichten zu zerstückelt… man sieht nicht, was zusammengehört…ich suche aber auch die Zielsetzung und den Bedarf, warum Ihr umbauen wollt. Die Ansichten des Nachbarn werden es wohl nicht sein?!Am meisten irritieren mich diese Umkleideraum-Bänke 😱
Ähnliche Themen