Treppe DIN 18065 verpflichtend oder nicht?

4,80 Stern(e) 12 Votes
Zuletzt aktualisiert 06.01.2026
Sie befinden sich auf der Seite 12 der Diskussion zum Thema: Treppe DIN 18065 verpflichtend oder nicht?
>> Zum 1. Beitrag <<

T

Timotheus

Bei der Hausbreite fehlen halt Infos zum OG .. OG=Vollgeschoss oder Dachgeschoss mit welcher Kniestockhöhe?

Denn platzsparender und raumfreundlicher lassen sich Treppen bei der Hausbreite meist an Außenwänden planen.

Und ja, dein letzter Treppenstand entsprach vom Wert her der Norm, aber, die 23,2 cm Auftrittstiefe sind wirklich nicht besonders praktisch. Wie hier auch schon geschildert insbesondere beim Runtergehen. Mess mal deine Fußlänge.

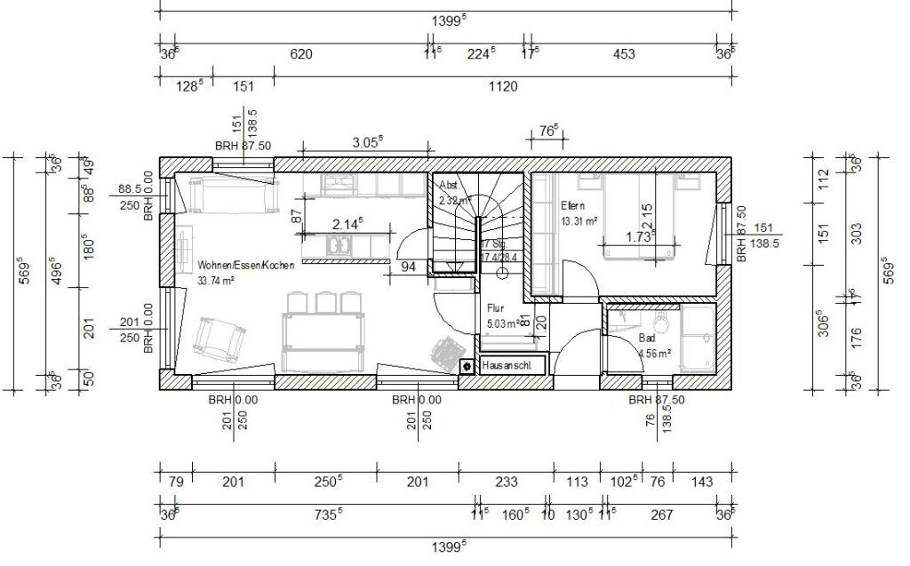
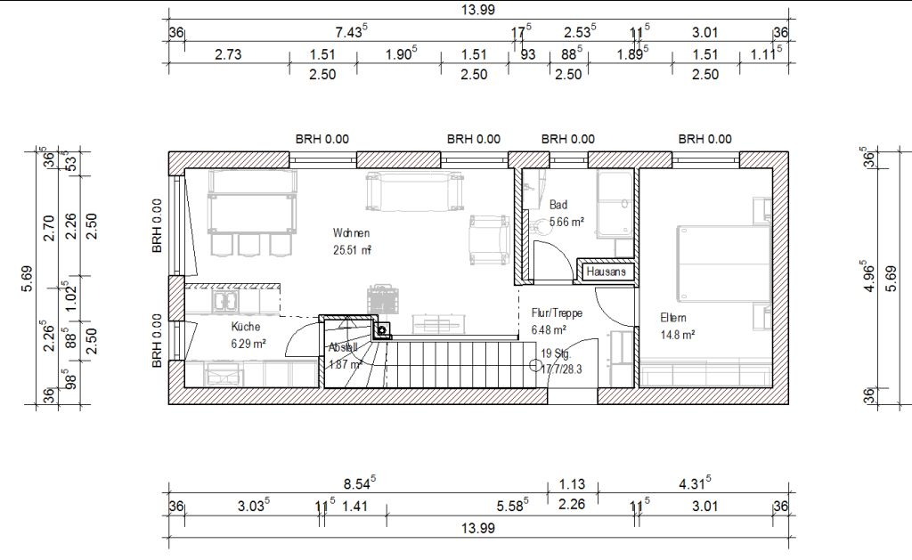
Ich habe vor Jahren mal für ein schmaleres Haus 2 Pläne gemacht. Die Beispiele sind jetzt nur als Anregung gedacht. In diesen ist im EG nur eine kleine Fläche für das Ankommen der externen Anschlüsse, die eigentliche Technik steht dann im OG. Das Raumprogramm entspricht auch nicht so ganz deinem, aber es soll ja nur Vorstellungen vermitteln. Hier wurden auch 2 Vollgeschosse gedacht. Die Innenbreite beträgt sogar nur 5 m. Es ging um eine Familie mit 3 Kindern.

Variante 1 könnte auch mit Kniestock funktionieren

Anhang anzeigen 88905 Anhang anzeigen 88906

Variante 2 erfordert im OG Vollgeschoss
Anhang anzeigen 88907 Anhang anzeigen 88908
Danke für die zwei Eindrücke.
Die Geschosshöhe beträgt 295cm und die Lichte Raumhöhe 278cm. Der Kniestock ist bei liegt bei drei Blockbohlen mit je 17,5cm...also 52,5cm.
Das OG verläuft bis zur Küche. Der Wohnbereich ist nach oben offen(Luftraum). Ich hoffe das ist verständlich.

Es fällt mir schwer eine andere Position für ein richtiges Treppenhaus zu finden.
Wenn ich auf 26cm Auftritt kommen möchte ragt die Treppe zu sehr in den Wohnbereich.
 
T

Timotheus

Unsere offene Treppe zum DG hat eine Auftrittsbreite von 230 - 260mm (je nach Stufe). Niemals nie würde ich mir diese Auftrittsbreite für die Treppe vom EG ins OG einbauen lassen. Vor zwei Jahren musste ich ein paar Wochen eine Orthese am Fuß tragen. Rauf ging gut, runter musste ich echt aufpassen. Aber gut, es wurde euch schon oft genug gesagt, offensichtlich auch vom Architekten und Treppenbauer. Am Ende müsste ihr damit leben.
Wir haben uns das wirklich zu Herzen genommen.
Selbst wir sehen die möglichen Probleme die eine solche Treppe bereiten kann. Jetzt wird ein Kompromiss zwischen bequemer Treppe und Wohnraum gesucht.

Meinst du nicht 26cm Auftrittsbreite reichen aus?
Wie würdest du dir eine Treppe vorstellen?
 
T

Timotheus

Verständlicherweise nervt Dich die wiederholte Benennung aber die Leute reagieren auch darauf, dass Du schon dieses Treppenteil quasi mit vielerlei Argumenten verteidigst, was wiederum zu Kritik führt(e). Freu Dich, die Leute sind aktiv bei Deinem Thema dabei !
Auf der anderen Seite kann es Dir auch verdeutlichen, wie fundamental wichtig dieses Bauteil ist und wie immens nachteilig es sein kann, dabei etwas zu übersehen oder vlt. nicht tiefgründig genug die Dinge bewertet zu haben.
Ich habe mal in einem Neubau eines öffentlichen Gebäudes gearbeitet. Aus dem riesigen Eingangsbereich heraus führte eine 4m breite Treppe ins 1. OG (DIN bei öff. Gebäude sicherlich eingehalten). Diese Treppe wurde von vielen Mitarbeitern nicht genutzt, weil sie schlichtweg zu steil und die Auftrittfläche zu kurz war; es gab ja einen Aufzug.
Kurzum: Die DIN ist wichtig und regelt grundsätzliche Dinge, hinzukommt aber die ganz persönliche DIN-DNA, die mir mein Leben auch dauerhaft komfortabler gestalten kann (zu diesem Zweck baut man ja auch ein Haus). Sie gibt Dir also nicht auch die Sicherheit, dass Dein Leben damit dann komfortabel genug wird. Insofern muss die DIN zwar eingehalten werden, sinnvollerweise können deren Werte aber auch deutlich übererfüllt werden, um für Dich das gewünschte Ergebnis zu erzielen.
Stichwort "ungewünschte, wiederholte Umplanung": Gerade kleine Wohneinheiten bedürfen einem höheren Maß an Planung und Planungsgeschick.

Genau - ich glaube, das wird spannend - in positivem Sinne !
Ja da hast du natürlich recht. Ich bin auch für Tipps dankbar.
Wir versuchen gerade eine längere Treppe in den Grundriss einzubauen. Leider fällt uns das in Moment sehr schwer.

Was für eine Winkel findest du für bequem? In Moment liegen wir bei 38-39°.
 
kbt09

kbt09

Der Kniestock ist bei liegt bei drei Blockbohlen mit je 17,5cm...also 52,5cm.
Das OG verläuft bis zur Küche.
Und welche Steigung hat dann das Dach? Wo wäre also 2 m - Linie. Du lässt dir wirklich jede Info einzeln entziehen, Treppe EG und OG damit sind halt eine Einheit, insbesondere bei diesen Flächenmaßen.
Wenn ihr mit Fullwood baut, dann nehmt ihr doch sicherlich eines der Standardhäuser als Basis - oder? Dann nenne doch mal das Modell, dann kann man sich das auf der Internetseite mal ansehen. Link geht ja nicht, weil hier nicht erlaubt.

Zu deiner Zeichnung in Beitrag 62, da ist eine Länge von 15,5 m angegeben .. würde man normal auf Außenmaß denken. Du schreibst dann aber, der Wohnteil hat 12x6 m Innenmaß .. dann Wand dann Praxis mit 3,5 m und wieder Außenwand. Das wäre dann irgendwo knapp an die 16,5 m Außenmaß.
 
T

Timotheus

Das sieht aus wie ein 40-Fuß-Container im Maßstab 2,5 : 1 hochskaliert bzw. erinnert an einen Schaustellerwohnwaggon mit ausziehbarem Erker. Wart Ihr Workation Globetrotter ?
Schön, dass es dir aufgefallen ist. Genau das war unsere Idee. Wir nehmen einen 40 Fuß Container und machen ihn einfach etwas größer, packen noch ein Satteldach drauf und fertig. Ach und damit es nicht aussieht wie am Container-Hafen bauen wir alles aus Holz! Unser Schaustellerwohnwagen kann sogar während der Bauphase als Zwischenlösung dienen...einfach perfekt. Wer möchte nicht ein Jahr lang aus seinem Erker im Wohnwagen auf den wunderschönen Container schauen.

Spaß beiseite. Behalt solche Kommentare in Zukunft für dich. Das ist nur abwertend und in keinster Weise konstruktiv.
 
S

Schorsch_baut

Ich hab gerade mal nachgemessen, was unsere Treppe hat. 26 cm Auftritt und 19,5 cm Steigung. Ich hab Schuhgröße 44 und die Treppe empfinde ich als bequem und sicher. Unsere Hunde mögen die Treppe nicht. Was nicht so schlecht ist.
 
Zuletzt aktualisiert 06.01.2026
Im Forum Bauplanung gibt es 5081 Themen mit insgesamt 100906 Beiträgen


Ähnliche Themen zu Treppe DIN 18065 verpflichtend oder nicht?
Nr.ErgebnisBeiträge
1Einfamilienhaus mit Splitlevelstufe für Wohnbereich 25
2Treppe im Flur, Grundriss steht eigentlich schon :o( - Seite 320
3Treppe im Wohnzimmer als Hype - Pro & Contra? - Seite 426
4Planung der Auffahrt für großes Hanggrundstück - 25% Steigung - Seite 443
5Auffahrt erstellen mit 25% Steigung? - Seite 323
6Grundrissfrage, Garage, Treppe 33
7Entwurf - alle Richtungen bei Neubau vom Einfamilienhaus - Seite 391
8Wohin mit der Treppe? Dachausbau Walmdachbungalow - Seite 319
9Was ist bei einer Treppe beachten/Unterschie Wendeluing 22
10Grundrissfrage, Treppe, Fenster, Ausrichtung 12
11Treppe Grundriss Planung, Auftritt und Unterzug - Seite 221
12Technikraum so klein wie möglich - Unter der Treppe? 10
13Treppe ohne Geländer geliefert und ich muss nun nachzahlen? - Seite 319
14Welche Treppe habt ihr genommen 77
15Gerade Treppe - warum? 14
16Baumangel - Treppe nicht in Ordnung - Seite 212
17Treppe - Sind die Treppenmaße 2.00x2.00m in Ordnung? - Seite 668
18Einfamilienhaus ca. 150 qm Grundriss - Treppe wie planen? 65
19Stadtvilla mit gerader Treppe, offene moderne Bauweise, 140m² - Seite 218
20Fliesen auf halbgewendelter Treppe - Wer hat da Erfahrungen? - Seite 638

Oben