ᐅ Stadtvilla Grundriss - Änderungsvorschläge?
Erstellt am: 11.10.19 22:17
Hi wir bauen mit einer sehr bekannten Fertighausfirma ein Haus und dies ist der vorläufige Grundriss.
Bebauungsplan/Einschränkungen
Größe des Grundstücks 1100qm
Kein Bebauungsplan
Anforderungen der Bauherren
Stilrichtung, Dachform, Gebäudetyp - Stadtvilla mit Walmdach
Keller, Geschosse - ohne Keller, 2 Vollgeschosse
Anzahl der Personen, Alter - Mama, Papa, 2 Jungs und Oma, Opa
Büro: wird als Naturheilpraxis genutzt
Schlafgäste pro Jahr:. Viele!
offene oder geschlossene Architektur: offen
offene Küche
Anzahl Essplätze: 6
Garage, Carport: evtl Carport
Wünsche/Besonderheiten/Tagesablauf: gemeinsame Nutzung der Praxis und Bauherrin und Oma, die im Anbau wohnt. Eventuell drittes Kind (daher Zimmer im EG mit Dusche)
Hausentwurf
Von wem stammt die Planung:
-Abgeänderter Standardplan einer großen Fertighausfirma
Was gefällt besonders? Warum?
- Galerie + Offenes EG, große bodentiefe Doppelfenster
Was gefällt nicht? Warum?
- Eventuell zu kleines Wohnzimmer
Preisschätzung lt Architekt/Planer:
- ca. 475.000€ (nur Häuser ohne Grundstück)
Persönliches Preislimit fürs Haus, inkl Ausstattung: 500.000€
favorisierte Heiztechnik: Gastherme und Fußbodenheizung
Wenn Ihr verzichten müsst, auf welche Details/Ausbauten
-könnt Ihr verzichten: eventuell andere Fensteranordnung, eventuell 2 Bäder im OG
-könnt Ihr nicht verzichten: 3. Kinderzimmer und Praxis
Warum ist der Entwurf so geworden, wie er jetzt ist? ZB
Siehe oben: Praxis, eventuell 3 Kinder, Mehrgenerationenhaus
Was ist die wichtigste/grundlegende Frage zum Grundriss in 130 Zeichen zusammengefasst?
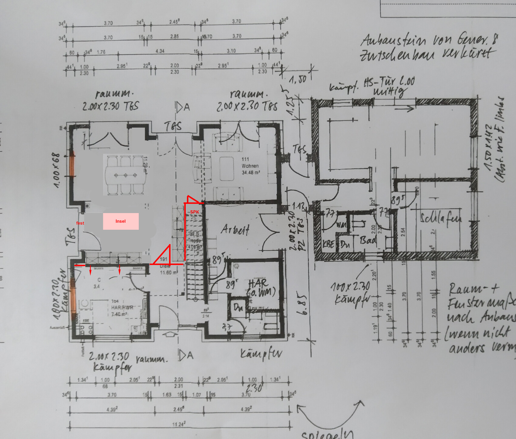
wir haben sehr lange nach dem idealen Haus für uns und meine Eltern gesucht und sind endlich fündig geworden. Nun wollten wir nur noch einmal drüber schauen lassen bevor wir das ganze nächste Woche unterschreiben und den offiziellen Baustart einleiten. Habt ihr vll einen Verbesserungsvorschlag? Eventuell um das Wohnzimmer zu vergrößern? Vielen Dank schon Mal PS die gelb markierten Fenster wollten wir gerne entfernen lassen. Alle Fenster im Haus sind bodentief.



Bebauungsplan/Einschränkungen
Größe des Grundstücks 1100qm
Kein Bebauungsplan
Anforderungen der Bauherren
Stilrichtung, Dachform, Gebäudetyp - Stadtvilla mit Walmdach
Keller, Geschosse - ohne Keller, 2 Vollgeschosse
Anzahl der Personen, Alter - Mama, Papa, 2 Jungs und Oma, Opa
Büro: wird als Naturheilpraxis genutzt
Schlafgäste pro Jahr:. Viele!
offene oder geschlossene Architektur: offen
offene Küche
Anzahl Essplätze: 6
Garage, Carport: evtl Carport
Wünsche/Besonderheiten/Tagesablauf: gemeinsame Nutzung der Praxis und Bauherrin und Oma, die im Anbau wohnt. Eventuell drittes Kind (daher Zimmer im EG mit Dusche)
Hausentwurf
Von wem stammt die Planung:
-Abgeänderter Standardplan einer großen Fertighausfirma
Was gefällt besonders? Warum?
- Galerie + Offenes EG, große bodentiefe Doppelfenster
Was gefällt nicht? Warum?
- Eventuell zu kleines Wohnzimmer
Preisschätzung lt Architekt/Planer:
- ca. 475.000€ (nur Häuser ohne Grundstück)
Persönliches Preislimit fürs Haus, inkl Ausstattung: 500.000€
favorisierte Heiztechnik: Gastherme und Fußbodenheizung
Wenn Ihr verzichten müsst, auf welche Details/Ausbauten
-könnt Ihr verzichten: eventuell andere Fensteranordnung, eventuell 2 Bäder im OG
-könnt Ihr nicht verzichten: 3. Kinderzimmer und Praxis
Warum ist der Entwurf so geworden, wie er jetzt ist? ZB
Siehe oben: Praxis, eventuell 3 Kinder, Mehrgenerationenhaus
Was ist die wichtigste/grundlegende Frage zum Grundriss in 130 Zeichen zusammengefasst?
wir haben sehr lange nach dem idealen Haus für uns und meine Eltern gesucht und sind endlich fündig geworden. Nun wollten wir nur noch einmal drüber schauen lassen bevor wir das ganze nächste Woche unterschreiben und den offiziellen Baustart einleiten. Habt ihr vll einen Verbesserungsvorschlag? Eventuell um das Wohnzimmer zu vergrößern? Vielen Dank schon Mal PS die gelb markierten Fenster wollten wir gerne entfernen lassen. Alle Fenster im Haus sind bodentief.
Die Einordnung ins Grundstück erschließt sich nur dem, der weiß, was was in der Zeichnung bedeutet - mir also zumindest einmal nicht. Was versprecht Ihr Euch von den Sicken / Anti-Erkern ?
Ohne Erklärung sagen die Zeichnungen wenig bzw. werfen Fragen auf. Ich sehe beispielsweise zweierlei Wandaufbauten: beim Haupthaus scheint es WDVS zu geben, eher ungewöhnlich bei Fertigbauern; und der Großelternanbau hat dann Massivwände ?
Warum ist der Brücken-Bau nicht als gemeinsamer Eingangsbau gedacht ?; ich finde ihn übrigens auch ungewöhnlich schmal ausgefallen. Im Pflegealter könnte wünschenswert sein, trockenen Fußes zwischen den Generationenbereichen wechseln zu können. Zufahrt, Garage und Kellerersatzraum sehe ich nicht.
Durchgehend bodentief klingt für mich nach "Function follows Form", wie übrigens die ganze Symmetrie / Geometrie. Die Praxisbesucher blicken voll in den Wohnbereich durch, gleiches gilt hinsichtlich ihrer akustischen Anteilnahme am Familienleben dank des Luftraumes.
Weshalb überhaupt ein angepaßter Standardplan, Ihr seid doch keine angepaßte Standardfamilie ? - in diesem Preisrahmen würde ich keine Kataloggrundlage nehmen, da spart sie nichts. Meine Lesetipps sind die Threads von @Grantlhaua https://www.hausbau-forum.de/threads/Haus-Garage-auf-dem-Grundstück-platzieren.28491/ mit praktikabler Dimensionierung des Brücken-Baus bzw. von @Arifas https://www.hausbau-forum.de/threads/grundrissplanung-hanghaus-mit-5-Kinderzimmer.24670/ mit Praxis im Haus (ersetze im Geiste dort Kinder mit hier Großeltern, dann sieht man die Ähnlichkeit stärker). Ich sehe Euren Thread am Anfang, also mitnichten kurz vor dem nur noch als Formsache reingehenden Elfmeter.
https://www.instagram.com/11antgmxde/
https://www.linkedin.com/company/bauen-jetzt/
Ohne Erklärung sagen die Zeichnungen wenig bzw. werfen Fragen auf. Ich sehe beispielsweise zweierlei Wandaufbauten: beim Haupthaus scheint es WDVS zu geben, eher ungewöhnlich bei Fertigbauern; und der Großelternanbau hat dann Massivwände ?
Warum ist der Brücken-Bau nicht als gemeinsamer Eingangsbau gedacht ?; ich finde ihn übrigens auch ungewöhnlich schmal ausgefallen. Im Pflegealter könnte wünschenswert sein, trockenen Fußes zwischen den Generationenbereichen wechseln zu können. Zufahrt, Garage und Kellerersatzraum sehe ich nicht.
Durchgehend bodentief klingt für mich nach "Function follows Form", wie übrigens die ganze Symmetrie / Geometrie. Die Praxisbesucher blicken voll in den Wohnbereich durch, gleiches gilt hinsichtlich ihrer akustischen Anteilnahme am Familienleben dank des Luftraumes.
Weshalb überhaupt ein angepaßter Standardplan, Ihr seid doch keine angepaßte Standardfamilie ? - in diesem Preisrahmen würde ich keine Kataloggrundlage nehmen, da spart sie nichts. Meine Lesetipps sind die Threads von @Grantlhaua https://www.hausbau-forum.de/threads/Haus-Garage-auf-dem-Grundstück-platzieren.28491/ mit praktikabler Dimensionierung des Brücken-Baus bzw. von @Arifas https://www.hausbau-forum.de/threads/grundrissplanung-hanghaus-mit-5-Kinderzimmer.24670/ mit Praxis im Haus (ersetze im Geiste dort Kinder mit hier Großeltern, dann sieht man die Ähnlichkeit stärker). Ich sehe Euren Thread am Anfang, also mitnichten kurz vor dem nur noch als Formsache reingehenden Elfmeter.
https://www.instagram.com/11antgmxde/
https://www.linkedin.com/company/bauen-jetzt/
Zusätzlich zu 11ant’s Anmerkungen
So wie ihr spiegeln einzeichnet paßt es nicht zum Lageplan.
Sind die Grundrisse genordet?
Budget wird nichts
Es fehlen Aufmunterungen, Baunebenkosten, Garage, Carport, Außenanlage
Der ganze Grundriss ist Bestimmt von einen Flur.
Zeichnet unbedingt richtige Möbel im Maßstab ein.
Man betritt das Haus und hängt seine Jacke auf. Äh wo?
Es fehlt eine Garderobe. Mit 5 Hacken an der Wand ist es nicht getan
Bad EG. Mini Dusche, 77 Türe verbaut man seit 40 Jahren nicht mehr ohne Not. Platznot gäbe es nicht, wenn man funktioneller plant.
Haustechnik sehr klein. Vielleicht geht alles rein, jedoch paßt keine Kiste Wasser rein. Stauraum gibt es nicht.
Das Arbeitszimmer bitte möblieren.
Wo ist der Besuchereingang
Besuchertoilette
Kochen, Essen, Wohnen schön um die Sichtachse Flur gruppiert.
Großeltern dürfen nicht zum Essen kommen, wenn ein 3. Kind kommt. Es gibt keinen Platz am Esstisch
Das Kinderspielzeug ist schön in der stylischen Sichtachse Eingang - Garden. Aus der Küche hat man keinen Blick auf die Kleinen
Das Wohnzimmer kann nur mit kleinen Zweisitzern bestückt werden wovon noch einer vor dem Fenster steht
Wo kommt die Terrasse hin?
OG
Jetzt währen Himmelsrichtungen nicht schlecht
Ich vermute mal das Elternschlafzimmer bekommt die Südseite und ein Kind den Norden.
Auch hier
Große Galerie mit welchem Nutzen?
Großer Elternteil mit extrem dunkler Ankleide.
Die gestrichenen Fenster unbedingt wieder einbauen. Es gibt noch andere Formate als Bodentief.
In beiden Stockwerk gehört der dominante Flur/Galerie weg. bodentief durch normal ersetzt
Mehr Funktion, weniger Form
Die Kinder bekommen relativ kleine Zimmer für Schlafen, Hausaufgaben, Spielen, Freunde
Elternbereich
Haustechnik so gestalten das spätere Vermietung möglich ist
Barrierefrei ist nicht gegeben
Die gleiche Nasszelle wie in eurem Teil
Keine Garderobe
Kein Stauraum
So wie ihr spiegeln einzeichnet paßt es nicht zum Lageplan.
Sind die Grundrisse genordet?
Budget wird nichts
Es fehlen Aufmunterungen, Baunebenkosten, Garage, Carport, Außenanlage
Der ganze Grundriss ist Bestimmt von einen Flur.
Zeichnet unbedingt richtige Möbel im Maßstab ein.
Man betritt das Haus und hängt seine Jacke auf. Äh wo?
Es fehlt eine Garderobe. Mit 5 Hacken an der Wand ist es nicht getan
Bad EG. Mini Dusche, 77 Türe verbaut man seit 40 Jahren nicht mehr ohne Not. Platznot gäbe es nicht, wenn man funktioneller plant.
Haustechnik sehr klein. Vielleicht geht alles rein, jedoch paßt keine Kiste Wasser rein. Stauraum gibt es nicht.
Das Arbeitszimmer bitte möblieren.
Wo ist der Besuchereingang
Besuchertoilette
Kochen, Essen, Wohnen schön um die Sichtachse Flur gruppiert.
Großeltern dürfen nicht zum Essen kommen, wenn ein 3. Kind kommt. Es gibt keinen Platz am Esstisch
Das Kinderspielzeug ist schön in der stylischen Sichtachse Eingang - Garden. Aus der Küche hat man keinen Blick auf die Kleinen
Das Wohnzimmer kann nur mit kleinen Zweisitzern bestückt werden wovon noch einer vor dem Fenster steht
Wo kommt die Terrasse hin?
OG
Jetzt währen Himmelsrichtungen nicht schlecht
Ich vermute mal das Elternschlafzimmer bekommt die Südseite und ein Kind den Norden.
Auch hier
Große Galerie mit welchem Nutzen?
Großer Elternteil mit extrem dunkler Ankleide.
Die gestrichenen Fenster unbedingt wieder einbauen. Es gibt noch andere Formate als Bodentief.
In beiden Stockwerk gehört der dominante Flur/Galerie weg. bodentief durch normal ersetzt
Mehr Funktion, weniger Form
Die Kinder bekommen relativ kleine Zimmer für Schlafen, Hausaufgaben, Spielen, Freunde
Elternbereich
Haustechnik so gestalten das spätere Vermietung möglich ist
Barrierefrei ist nicht gegeben
Die gleiche Nasszelle wie in eurem Teil
Keine Garderobe
Kein Stauraum
Das nenn ich mal Verwirrung.
Geh ich recht in der Annahme, dass das ganze noch gespiegelt wird? Zudem ist der bezeichnete HAR der Gästeraum bzw. 3. Kind?
Eine mutige Entscheidung mit den Rücksprüngen. Ich gebe zu, ich mag den Kitsch auch. Sieht von außen echt cool aus. Innen muss man dafür meist große Opfer bringen. Am Ende muss man abwägen, ob es die noch wert sind. Ich finde, hier geht es schon noch. Als größtes Manko sehe ich das relativ kleine WZ - aber auch das geht mit 3,70m noch gerade so.
Was die Freude hier m.E. erheblich trübt, ist die Wand der Küche. Das Ding macht gleich doppelt und dreifach Probleme: Es teilt den Raum so ungünstig, dass für den Esstisch nirgends mehr genug Platz bleibt. Noch dazu ist dieser Platz jetzt echt häßlich und ungemütlich. Das ganze WZ wird so zerhackstückt und der Traum von der großen Freiheit ist dahin.
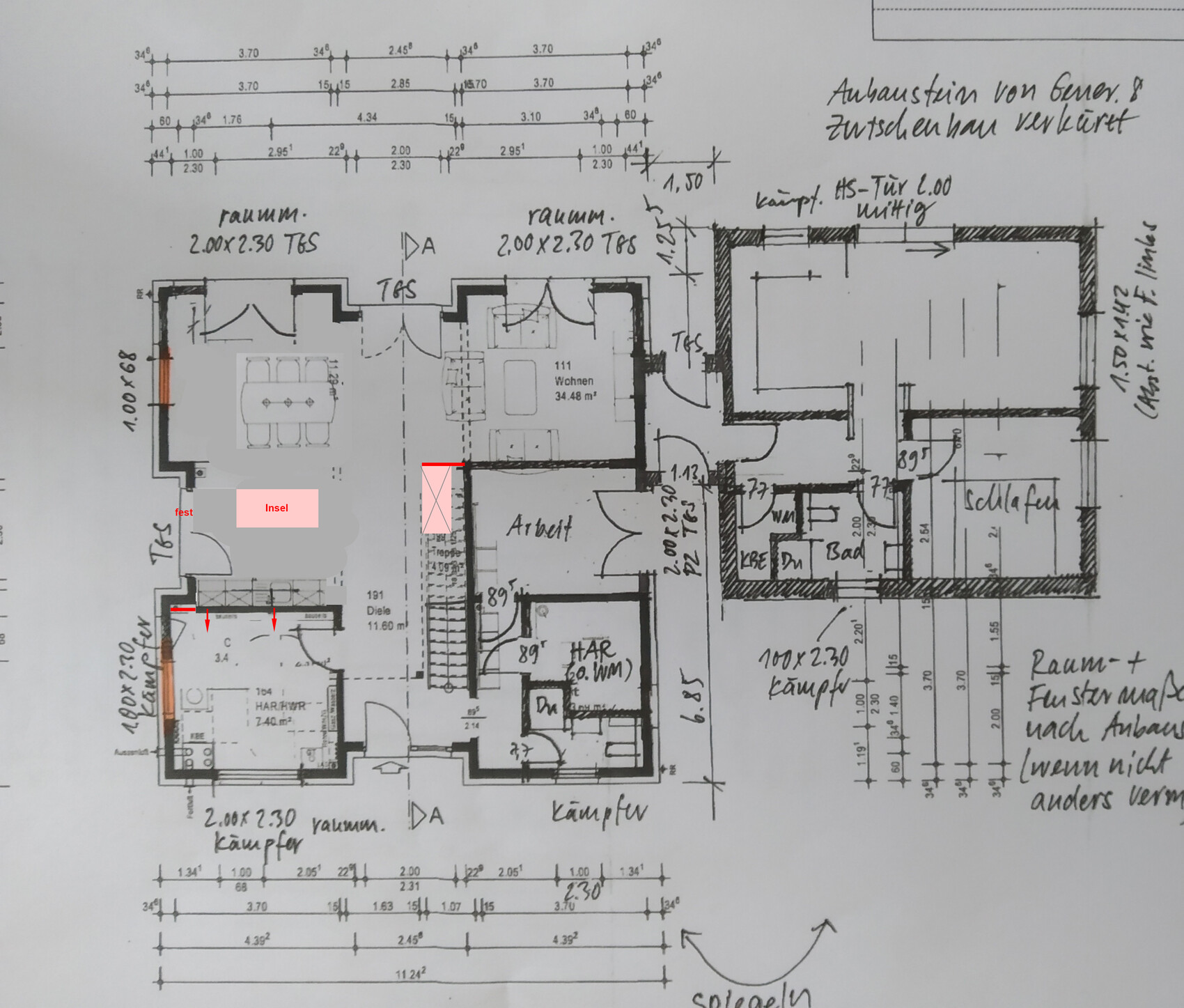
Ich würde daher überlegen, vor die Treppe eine Wand zu stellen, um hier eine schöne große offene Küche mit Kochinsel zu etablieren. (Ich hoffe mal, die Treppe war jetzt nicht ausgerechnet eine Designer-Faltwerktreppe aus Glas, die der Kindheits-Traum der Bauherrin ist.)

Garderobe wurde schon erwähnt. Ich würde auch noch mal die Stellfläche für das Bett checken. Eventuell läßt man hier lieber die Schränke hinter der Tür weg. Badaufteilung ist auch noch etwas unklar mit den Maßen - aber alles lösbar.
Fenster entfernen lassen würde ich nirgends.
Ansonsten find ich's ganz gut. Das würd ich natürlich gern mal sehen, wenn es soweit ist.
Geh ich recht in der Annahme, dass das ganze noch gespiegelt wird? Zudem ist der bezeichnete HAR der Gästeraum bzw. 3. Kind?
Eine mutige Entscheidung mit den Rücksprüngen. Ich gebe zu, ich mag den Kitsch auch. Sieht von außen echt cool aus. Innen muss man dafür meist große Opfer bringen. Am Ende muss man abwägen, ob es die noch wert sind. Ich finde, hier geht es schon noch. Als größtes Manko sehe ich das relativ kleine WZ - aber auch das geht mit 3,70m noch gerade so.
Was die Freude hier m.E. erheblich trübt, ist die Wand der Küche. Das Ding macht gleich doppelt und dreifach Probleme: Es teilt den Raum so ungünstig, dass für den Esstisch nirgends mehr genug Platz bleibt. Noch dazu ist dieser Platz jetzt echt häßlich und ungemütlich. Das ganze WZ wird so zerhackstückt und der Traum von der großen Freiheit ist dahin.
Ich würde daher überlegen, vor die Treppe eine Wand zu stellen, um hier eine schöne große offene Küche mit Kochinsel zu etablieren. (Ich hoffe mal, die Treppe war jetzt nicht ausgerechnet eine Designer-Faltwerktreppe aus Glas, die der Kindheits-Traum der Bauherrin ist.)
Garderobe wurde schon erwähnt. Ich würde auch noch mal die Stellfläche für das Bett checken. Eventuell läßt man hier lieber die Schränke hinter der Tür weg. Badaufteilung ist auch noch etwas unklar mit den Maßen - aber alles lösbar.
Fenster entfernen lassen würde ich nirgends.
Ansonsten find ich's ganz gut. Das würd ich natürlich gern mal sehen, wenn es soweit ist.
Ähnliche Themen