ᐅ Stadtvilla 200qm + großzügige Doppelgarage im Saarland geplant
Erstellt am: 06.03.19 16:05
K
Kevinius
Hallo Zusammen,
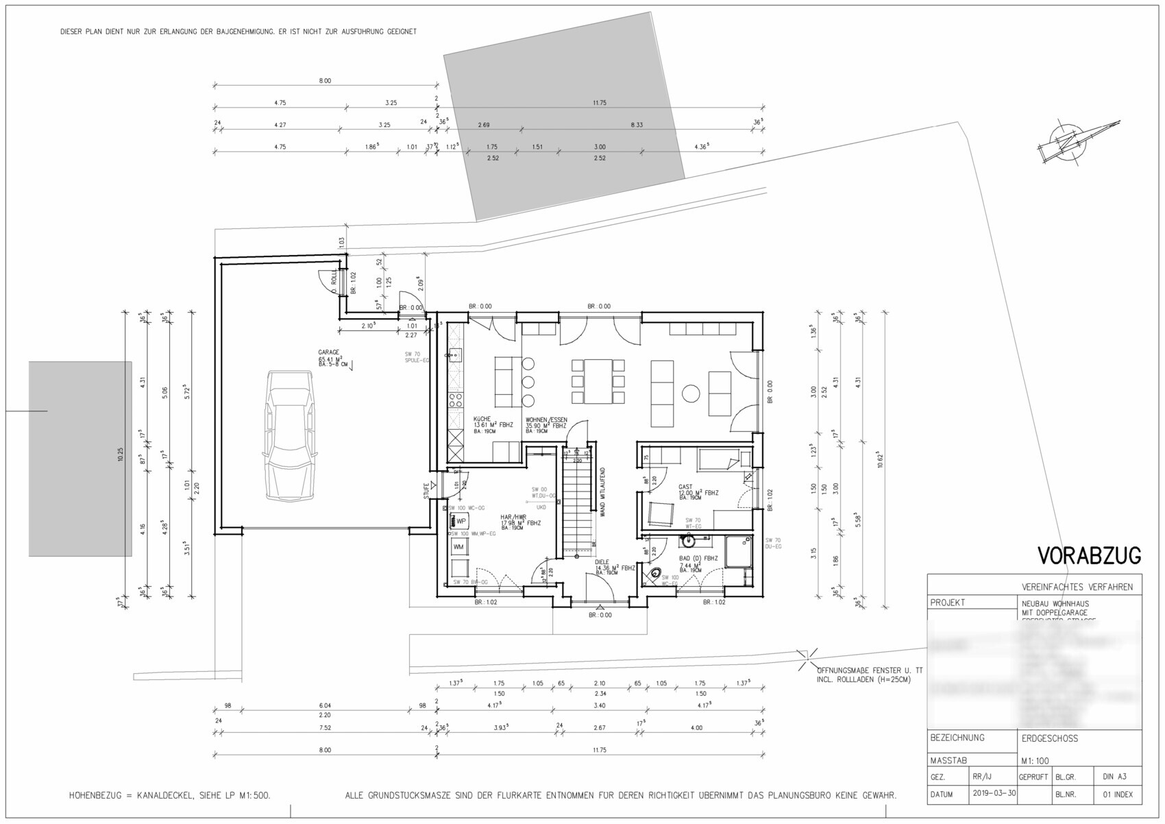
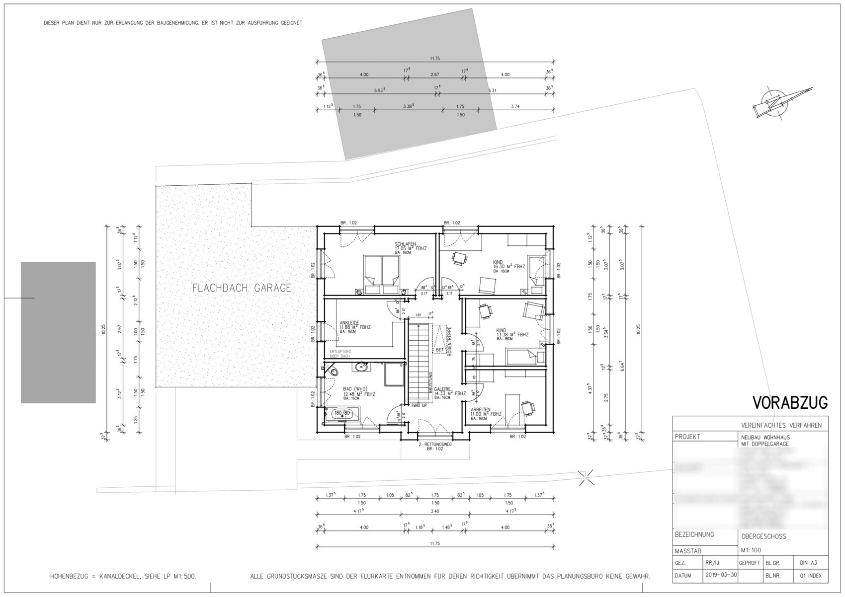
wir planen den Neubau einer Stadtvilla im Kreis Homburg/Saar.
Wir sind seit etwa 6 Wochen bei einem freien Architekten und nähern uns langsam dem Ende der Planung, denn der Entwurf entspricht bis auf die Küche unseren Vorstellungen.
Es gibt keinen Bebauungsplan, wir müssen uns also an der Nachbarschaft orientieren.
Dort stehen ausschließlich Häuser mit zwei Vollgeschossen und Dachspeicher.
Die Gemeinde war diesbezüglich offen, da hinter unserem Grundstück ein Flachdachbungalow steht, der völlig aus der Reihe tanzt.
Bebauungsplan/Einschränkungen
Anforderungen der Bauherren
Hausentwurf
Wir würden uns über Feedback von euch freuen.
Fragen beantworten wir gerne - keine Scheu.
Der Lageplan ist noch nicht ganz aktuell und ist nicht genordet - Norden liegt in der rechten, oberen Ecke.
Grüße
Kevin

wir planen den Neubau einer Stadtvilla im Kreis Homburg/Saar.
Wir sind seit etwa 6 Wochen bei einem freien Architekten und nähern uns langsam dem Ende der Planung, denn der Entwurf entspricht bis auf die Küche unseren Vorstellungen.
Es gibt keinen Bebauungsplan, wir müssen uns also an der Nachbarschaft orientieren.
Dort stehen ausschließlich Häuser mit zwei Vollgeschossen und Dachspeicher.
Die Gemeinde war diesbezüglich offen, da hinter unserem Grundstück ein Flachdachbungalow steht, der völlig aus der Reihe tanzt.
Bebauungsplan/Einschränkungen
- Größe des Grundstücks 504qm
- Hang Ja (von West nach Ost)
- Anzahl Stellplatz 2 Stück vor der Garage
- Dachform Zeltdach
- Stilrichtung Stadtvilla
Anforderungen der Bauherren
- Stilrichtung, Dachform, Gebäudetyp Stadtvilla mit Zeltdach
- Keller, Geschosse kein Keller
- Anzahl der Personen, Alter zwei Personen, 28 Jahre alt, ein oder zwei Kinder in Planung
- Büro: Familiennutzung oder Homeoffice? Familiennutzung
- Schlafgäste pro Jahr bisher keine
- offene Küche, Kochinsel offene Küche mit Kochinsel
- Anzahl Essplätze 6 Stück
- Garage, Carport Doppelgarage für zwei Autos, Werkbank, zwei Motorräder
Hausentwurf
- Von wem stammt die Planung: freier Architekt
- Was gefällt nicht? Warum? Küche wird offen mit verglaster Tür hinter's Haus
- Persönliches Preislimit fürs Haus, inkl Ausstattung: 400.000
- favorisierte Heiztechnik: Gas oder Luft-Wasser-Wärmepumpe
Wir würden uns über Feedback von euch freuen.
Fragen beantworten wir gerne - keine Scheu.
Der Lageplan ist noch nicht ganz aktuell und ist nicht genordet - Norden liegt in der rechten, oberen Ecke.
Grüße
Kevin
Kevinius schrieb:
Egal wie ich das Haus auf dem Grundstück drehe ... wenn ich den Garten zum planlinken Haus setze hab ich dort auch überwiegend Schatten, weil das Haus 2,5 Geschosse hoch ist (plus Keller, der über 1m über aktuellem Gelände steht) und daher haben wir das Haus so ausgerichtet. Es ging mir auch nicht um die Ausrichtung an sich, sondern eher um Verbesserungen zum Grundriss allgemein - Ideenfindung quasi.Der Grundriss beginnt mit der Ausrichtung. Nicht nur des Hauses sondern auch der Garage.
Ich würde es mal mit der Garage planrechts versuchen.
Wenn ich das auf dem Sonnenstandsbild richtig interpretiere (nicht so ganz einfach mit den Bäumen) hättest von Mittag ab dann Sonne, da ist wäre die doch an dem Haus vorbei oder?
ypg schrieb:
Das macht man nicht, das Abwerben der Diskussionskandidaten.Allerdings: drei Meter Höhenunterschied hier und ein halbes Meterchen da, da sehe ich keine einen solchen Querverweis rechtfertigende Ähnlichkeit.face26 schrieb:
Der Grundriss beginnt mit der Ausrichtung. Nicht nur des Hauses sondern auch der Garage.Ersteinmal müssen Grundstück und Grundriss zusammenpassen. Ersteres ist nicht variabel, also muß hier das Haus kleiner werden. Zweitens ist die Marschrichtung, damit zu beginnen, daß man dem Nachbarn Häßlichhaus die Garage hinschiebt und dann nur noch in zweiter Priorität die Räume des Hauses positionieren kann, eher kein Glücksweg. Drittens sind Höhenunterschiede nicht ausblendbare und nur mäßig und teuer veränderliche Realitäten.https://www.instagram.com/11antgmxde/
https://www.linkedin.com/company/bauen-jetzt/
face26 schrieb:
Der Grundriss beginnt mit der Ausrichtung. Nicht nur des Hauses sondern auch der Garage.Jupp Stimmt genau. Guter Tipp weiß ja nicht jeder
Ähnliche Themen