Schmales Grundstück wg. Süd-Zuwegung nach hinten?

4,80 Stern(e) 4 Votes
Zuletzt aktualisiert 05.10.2025
Sie befinden sich auf der Seite 3 der Diskussion zum Thema: Schmales Grundstück wg. Süd-Zuwegung nach hinten?
>> Zum 1. Beitrag <<

kbt09

kbt09

Büro nach oben ... was soll denn noch nach oben? Gibt ja leider keine ausgefüllte Liste. Sehe Büro oben evtl. eher eng werdend.
 
kaho674

kaho674

Ich auch nicht. Könntest Du noch mal lesen
OT: Hihi, ich glaub, wir verstehen uns mal wieder gar nicht.
Ich wollte nur sagen, dass ich bei schmalen Häusern auch keinen Standard versuchen würde. Ist immer was besonderes. Ob man es noch betont, bei 8m bin ich da noch nicht so überzeugt. Bei 6 bis 7 wird es dann interessant.
 
E

Escroda

nzwischen bin ich von der Idee abgekommen, das Haus quer zu „quetschen“.
Gequetscht bzw. unpassend wäre es mit den Außenmaßen deines ersten Grundrisses gewesen.
oder über die Zuwegung (wäre rechtlich möglich / zusicherbar)?
Das wäre die schlechteste Lösung. Dann bist Du automatisch mit in der Unterhaltungspflicht und kannst dich ständig mit 6 Miteigentümern 'rumschlagen.
so weit wie möglich nach Norden
d.h. 2,5m Grenzabstand. Das nimmt Dir die Möglichkeit für eine später vielleicht mal gewünschte Garage.
im Süden Platz für eine kleine Terrasse
die maximal 2,9m bis zur Grenze hätte. Mit dem von Dir gewünschten Sichtschutz lädt sie sicher nicht zum Verweilen ein und auch die Aussicht aus dem Esszimmer wäre bescheiden.
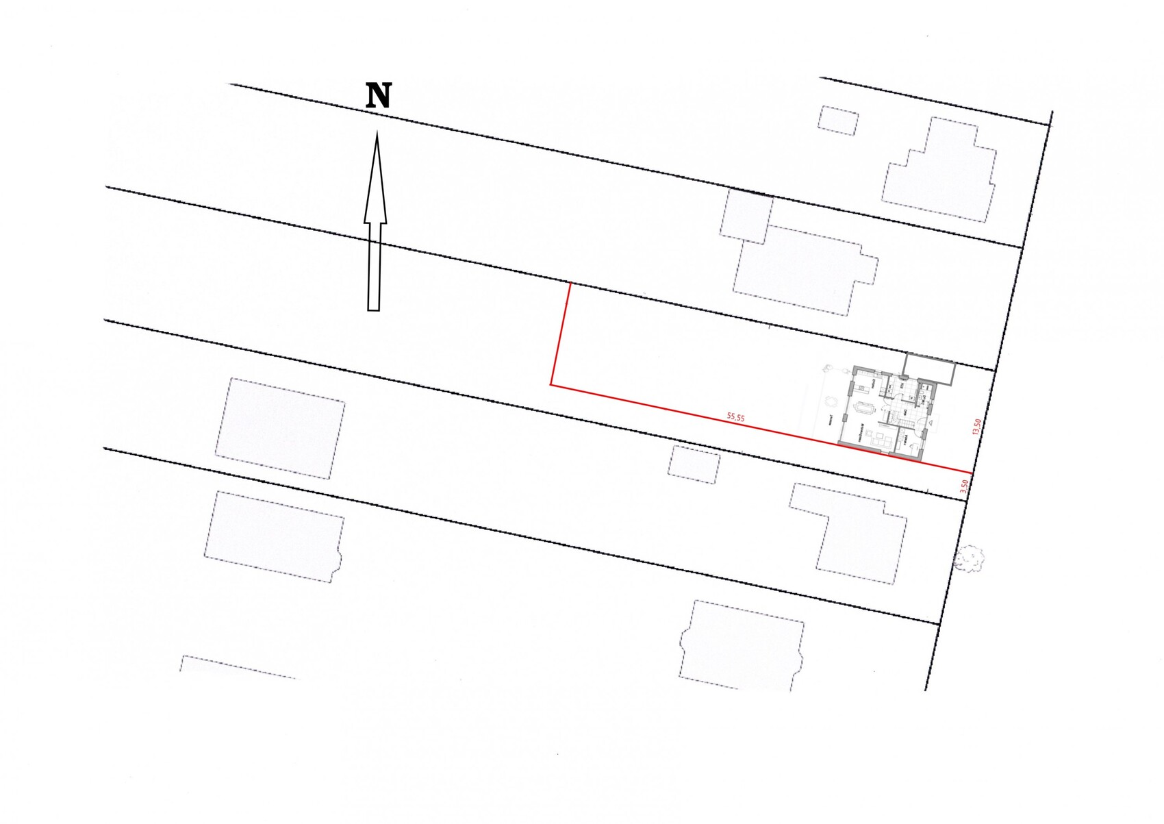
Anhängend mal deine Variante und mein Gegenvorschlag:
Lageplan eines Grundstücks mit Parzellen, Nordrichtung und roter Bauparzelle

Grundstücksplan mit Nordpfeil, Grundstücksgrenzen und rotem Bauumriss


PS.: Mit den 2m-Linien im DG dürfte es zum Vollgeschoss werden, es sei denn, die Dachneigung bleibt unter 25°.
 
Zuletzt bearbeitet:
H

Hamburch

d.h. 2,5m Grenzabstand. Das nimmt Dir die Möglichkeit für eine später vielleicht mal gewünschte Garage.
Wenn der Eingang im Norden ist, passt da eh keine Garage hin und auch 2,50m wäre zu schmal.
Oder hab ich dich falsch verstanden?

Ich hab mir sagen lassen, dass mit Baulast des Nachbars auch 2m möglich wären. Dessen Haus steht wohl 3m weg.

Bei der Süd-Terrasse geht es mir gar nicht so sehr ums Verweilen, die West-Terrasse hat ja auch Süd-Sonne. Mir geht es eher um das Licht, das ich dann weitestgehend aussperren würde.

Und dafür sollten doch 3m Abstand abzgl.. Sichtschutz reichen, oder?

Mit der Aussicht aus dem Esszimmer hast du allerdings recht... guter Punkt!
 
Zuletzt aktualisiert 05.10.2025
Im Forum Grundrissplanung / Grundstücksplanung gibt es 2510 Themen mit insgesamt 87167 Beiträgen


Ähnliche Themen zu Schmales Grundstück wg. Süd-Zuwegung nach hinten?
Nr.ErgebnisBeiträge
1Terrasse vom Nachbar grenzt an Garage 11
2Wie Gebäude platzieren? Haus Terrasse Garage Werkstatt 24
3Sichtschutz / Windschutz an Terrasse / Straße - Ideen? 26
4Idee für schönen Sichtschutz für Terrasse vor Doppelhaus gesucht 10
5Grundriss Einfamilienhaus mit Doppelgarage und Terrasse 19
6Hausausrichtung / Hauseingang und Garage - Seite 214
7Grundriss mit Garage auf Grundstück realisierbar? - Seite 229
8Terrasse auf Flachdach - Aufbau - Belag 12
9Grundstück - Baufenster - Lage von Haus und Garage - Seite 344
10Lage von Haus & Garage im Baufenster planen *Vorplanung* - Seite 2129
11Grundrissplanungen Einfamilienhaus und Garage - Seite 532
12Bebaute Fläche: Gehören Garage / Carport zur bebauten Fläche? 19
13Haus und Garage - Wie am besten auf den Grundstücken platzieren? - Seite 267
14Haus und Garage - Ideen für die Planung erwünscht - Seite 321
15Bebauungsplan: Garage auf Grenze außerhalb Baufenster - Seite 353
16Platzierung Haus und Garage auf leerem Grundstück - Ideen? - Seite 317
17Haus, Garage / Carport auf dem Grundstück platzieren 93
18Grundriss 140 m2 Einfamilienhaus mit Garage - Hausausrichtung ok? 18
19Grundrissplanung Einfamilienhaus (190 qm) mit Garage 18
20Einfamilienhaus mit Garage am leichten Hang - Seite 217

Oben