Hausbau - Ratgeber
Bauherrenhilfe
- Bauherrenhilfe vor Vertragsabschluss
-- Warum einen unabhängigen Baubetreuer?
-- Vertragsgrundlagen
-- Bausumme
-- Zahlungsplan zur Kostenkontrolle
-- Pflichten des Bauherren vor Vertragsabschluss
-- Unterlagen beim Hausbau vor Vertragsabschluss
- Bauherrenhilfe nach Vertragsabschluss
-- Bauantrag bei Behörden
-- Bau-Genehmigungsverfahren bei Baubehörden
-- Bauspezifische Versicherungen
-- Bauzeitenplan
-- Baubeginn - die Letzten Pflichten der Bauherrschaft
- Bauherrenhilfe während der Bauzeit
- Gewährleistungsansprüche
- Bauabnahme
Baufinanzierung
- Baufinanzierung - Allgemeine Fragen
- Kreditarten
- Kredit-Konditionen
- Bausparen
- Staatliche Förderungen
- Verkehrswert
- Haushaltsrechnung und Bonität
Hausbau Planung
- Haustypen
- Hausbau Vorbereitungsarbeiten
- Das Baugrundstück
- Baugrund beim Hausbau
- Baurecht
- Gebäudeschutz
- Erdarbeiten und Wasserhaltung
- Stützmauern
- Einfriedung
- Untergeschoss
- Kanalisation
- Tragende Elemente
- Nichttragende Innenwände
- Fundation / Fundament
- Deckenkonstruktionen
- Dächer
- Kaminanlagen
- Treppen Rampen Leitern
- Dachbeläge und Spengler
- Fenster
- Sonnen und Wetterschutz
- Aussenputze
- Einbauten, Küchen, Türen
- Bodenbeläge und Unterlagsböden
- Parkett
- Gips, Wand, Decke
Haustechnik und Energie
- Heiztechnik
- Lüftung und Klimatechnik
- Sanitärtechnik
- Elektrotechnik
- Erneuerbare Energie
Whirlpools / Jacuzzi
Hausbau Magazin
- Baufinanzierung trotz Krise?
- Das Blockhaus
- Moderne Dämmstoffe im Vergleich
- Erker Vor- und Nachteile
- Glasflächen beim Hausbau
- Günstig ein Haus Bauen
- Mediterraner Hausbaustil
- Mehrgenerationenhaus
- Moderne Architektur
- Gartengestaltung leicht gemacht
- Traditioneller Ziegelbau
- Villa als höchster Traum
- Im Eigenheim Ruhestand geniessen
- Altbau sanieren
- Kauf einer Holzgarage
- Immobilienmakler
- Arbeitshandschuhe für den Winter
- Zuhause verschönern
- Outdoor-Plissees
- Schlafzimmer planen
- Terrassenüberdachung
- Wohngebäudeversicherung
- Zaunarten und Eigenschaften
- Hauseingang gestalten
- Der perfekte Grundriss
- Sparsamer heizen im Altbau
- Einfamilienhaus smart finanzieren
- Planung einer PV-Anlage
- Neues Haus
- Immobilienfinanzierung
- Installation einer Photovoltaikanlage
- Asbest erkennen und entfernen
- Gartenpflege im Frühling – worauf achten
- Sauna im Fokus - Wellness zuhause
- Erfolgreich vermieten
- Die perfekte Winterbekleidung
- Das Niedrigenergiehaus
- Der April und seine Stürme
- Architektonische Vielfalt
- Ökologisch und nachhaltig bauen
- Das perfekte Schlafzimmer
- Nachhaltige Energieversorgung
- Zukunftsorientiert bauen
- Nachhaltigkeit beim Hausbau
- Tiny Houses
- Wärmepumpen als nachhaltige Heizvariante
- Maßgeschneiderten Kleiderschrank
- Der richtige Baukredit
- Ratgeber für erfolgreichen Hausbau
- Haus als Altersvorsorge
Do-it-yourself Anleitungen
- Verlegeanleitung für Bodenbeläge und Parkett
- Bodenbeläge und Parkett reinigen und pflegen
- Malerarbeiten am Haus
- Garten Tipps
- Umzug und Reinigung

ᐅ Satteldachhaus mit 130qm auf Nordgrundstück

Erstellt am: 27.06.19 11:48
D
desixtor
desixtor27.06.19 11:48
Hallo zusammen,
wir haben ein Haus auf unser Grundstück planen lassen.
Wie sieht die allgemeine Meinung zu den Planungen aus?

Bebauungsplan/Einschränkungen
Größe des Grundstücks 950qm
Grundflächenzahl 0,16
Baugrenze - Grundstücksgrenze: 5m
Maximale Höhen/Begrenzungen Traufhöhe 3,5m, Firsthöhe 10m

Anforderungen der Bauherren
Stilrichtung, Dachform, Gebäudetyp: Einfamilienhaus, Satteldach
Keller, Geschosse: Nein, 1,5
Anzahl der Personen, Alter: 2, ~30
Anzahl Essplätze: 2-4
Kamin: Ja
Garage, Carport: Doppelcarport

Hausentwurf
Von wem stammt die Planung: Abwandlung eines bereits erstellten Hauses des GU
Erstellung: -Architekt
Was gefällt besonders? Warum?
Was gefällt nicht? Warum?
Preisschätzung lt Architekt/Planer: 240000 (excl. Nebenkosten, Grundstück)
Persönliches Preislimit fürs Haus, inkl Ausstattung: 250000 (excl. Nebenkosten, Grundstück)
favorisierte Heiztechnik: Gas

Warum ist der Entwurf so geworden, wie er jetzt ist?
Eckgrundstück -> Einsichtigkeit Garten begrenzen
Westterrasse in L Form nach Nord um das Haus

Grundriss eines Bauplans mit roten Baukörpern, Maßangaben und einer schwarzen Skizze.


Architekturzeichnungen: Süd- und Westansicht eines Hauses mit Garage (Schnitt B-B).


Architekturzeichnung eines Hauses mit Satteldach Nord- und Ostansicht sowie Schnitt A-A.


Dachboden-Grundriss (Spitzboden) mit zwei Dachflächen, zentralem Gang und Maßangaben.


Grundriss Dachgeschoss: Schlafen, Kind 1, Kind 2, Bad, Flur, Treppe; Maßangaben.


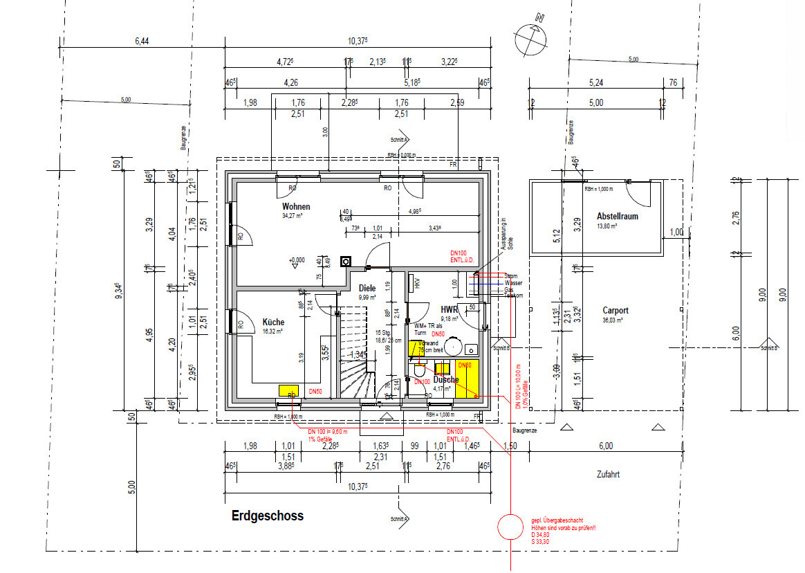
Grundriss Erdgeschoss mit Wohnen, Küche, Diele, HWR, Dusche, Abstellraum und Carport.


Lageplan: magenta umrissenes Grundstücksrechteck, von schwarzen Linien eingefasst.
M
Mottenhausen
27.06.19 12:26
Ich würde das Haus auch an die Straße stellen, die Nachmittag/Abendsonne wird immer schön in den Garten und auch seitlich ins Wohnzimmer scheinen.

Haus ist optimal darauf abgestimmt, das gefällt MIR persönlich alles sehr gut. Die 3,5m Traufhöhe lässt natürlich wenig Möglichkeiten bei der Gestaltung zu. Ich würde ggf. eine Gaube hinten mittig in Erwägung ziehen. Dort drunter dann das Bett und den Ankleidebereich eher Richtung Osten. So als kleines Highlight. Denn... insgesamt muss man schon sagen: der Entwurf ist praktisch (ggf. etwas zu wenig Abstellfläche) und man macht damit wahrscheinlich nichts falsch, aber... gähn! Ihr seit 30 Jahre, das Leben ist noch nicht vorbei. Ihr baut nur einmal, muss es da wirklich ein so klassischer Grundriss sein, wie er seit Jahrzehnten schon tausendfach in D gebaut wurde? Man baut ja auch, um sich selbst zu verwirklichen und etwas "eigenes" zu erschaffen. Seit ruhig etwas kreativ! Eine große Glasfront mit Blick in den Garten, schmale, halbhohe Fensterbänder in der Küche. Eine offene Treppe im offenen Wohn-Essbereich? Eine Heimkino-Wand mit 75" Screen. Von irgendwas muss man doch träumen? Wenn, dann jetzt!
Climbee27.06.19 13:00
Ich gebe Mottenhausen recht: GÄHHHN

Selbst mit ein paar wenigen Änderungen könnte man hier schon viel raus holen.

Die abgeschrägten Wände oben sind so 80er, auch die Badewanne - ich habe überhaupt den Eindruck, daß der Architekt hier einen wenig indivduellen, aber funktionalen Grundriss heraus gezogen hat, den er seit 30 Jahren mit jeweils ein paar persönlichen Anpassungen gut verkauft.

Außenansichten sind öd.

Das funktioniert - aber schön ist was anderes. Und man könnte hier viel raus holen ohne daß es viel mehr Geld kostet und das ganze würde Pfiff kriegen.

Die schrägen Wände oben weg - bei den Kinderzimmern kann es sein, daß sie nötig sind um die Türen unter zu kriegen (hab jetzt nicht genau auf die Maße geschaut), aber bei Schlafzimmer und Bad kann man einfach eine gerade Wand machen. Tür in Schlafzimmer über Ankleidebereich.

Küche wirklich getrennt? Da ihr beim Fragebogen viel rausgekürzt habt, hier noch mal die Frage.

Dusche im EG obwohl kein Gast/Arbeiten unten ist? Wer soll die nutzen?
Lieber eine Nische für Garderobe oder Schuhe machen und WC verkleinern. Oder Eingangstüre verschieben, dann ist der Treppenantritt auch nicht im größten Schmutzbereich.

Fenster würde ich alle überdenken. Bei den Fronten kann nichts kaputt gemacht werden - man kann nur gewinnen.
Insgesamt würde ich die Fenster größer wählen und moderner. Wie Mottenhausen auch schon bemerkte: Fensterbänder, große Fensterfronten etc.

Also insgesamt: das funktioniert so, aber wenn ihr mir das vorgelegt hättet und gesagt hättet, wir wollen da ein 30 Jahre altes Einfamilienhaus kaufen, ich hätte es sofort geglaubt. Auch beim Anblick auf die Außenansichten.

Ich persönlich würde dafür kein Geld ausgeben wollen. Der Gähn-Faktor wäre mir zu hoch.
H
haydee
27.06.19 13:23
Plant ihr ein Haus für 2 oder eines für bis zu 4 Personen?
Y
ypg
27.06.19 14:59
desixtor schrieb:

Anforderungen der Bauherren
Stilrichtung, Dachform, Gebäudetyp: Einfamilienhaus, Satteldach
Keller, Geschosse: Nein, 1,5
Anzahl der Personen, Alter: 2, ~30
Anzahl Essplätze: 2-4
Kamin: Ja
Garage, Carport: Doppelcarport

Es darf ruhig etwas mehr sein
Allerdings geht es um die Anforderungen von Euch. Wenn ich da von der Kürze auf das Haus schließe, passt es.
Seid ihr tatsächlich so anforderungsfrei?

Das scheint schon die Ausführungsplanung zu sein, oder_
Dann ist da jetzt gar nichts mehr zu ändern...
lastdrop27.06.19 15:04
Warum die ganzen Ecken, wenn man sie nicht mal braucht?

Ansonsten habe ich nichts gegen "langweilige" Häuser. Was 1.000ende Mal gebaut wurde ist nicht unbedingt schlecht. Was nicht heißt, dass man situationsbezogen Dinge besser machen kann.
fensterbändergrundstückarchitektgartentraufhöheeinfamilienhausnebenkostenentwurfankleidebereichgrundriss