B
BananaJoe06.12.20 16:00Hallo zusammen,
ich bin gerade unsicher, ob wir für unser Bauvorhaben eine Rückstausicherung benötigen oder nicht. Unser Architekt war dabei nur so mittel-hilfreich und meint, dass wir "eigentlich" keine benötigen, aber wenn wir auf Nummer sicher gehen wollten natürlich eine einbauen lassen könnten.
Folgende Eckdaten:
Das Grundstück ist an ein Trennsystem angeschlossen.
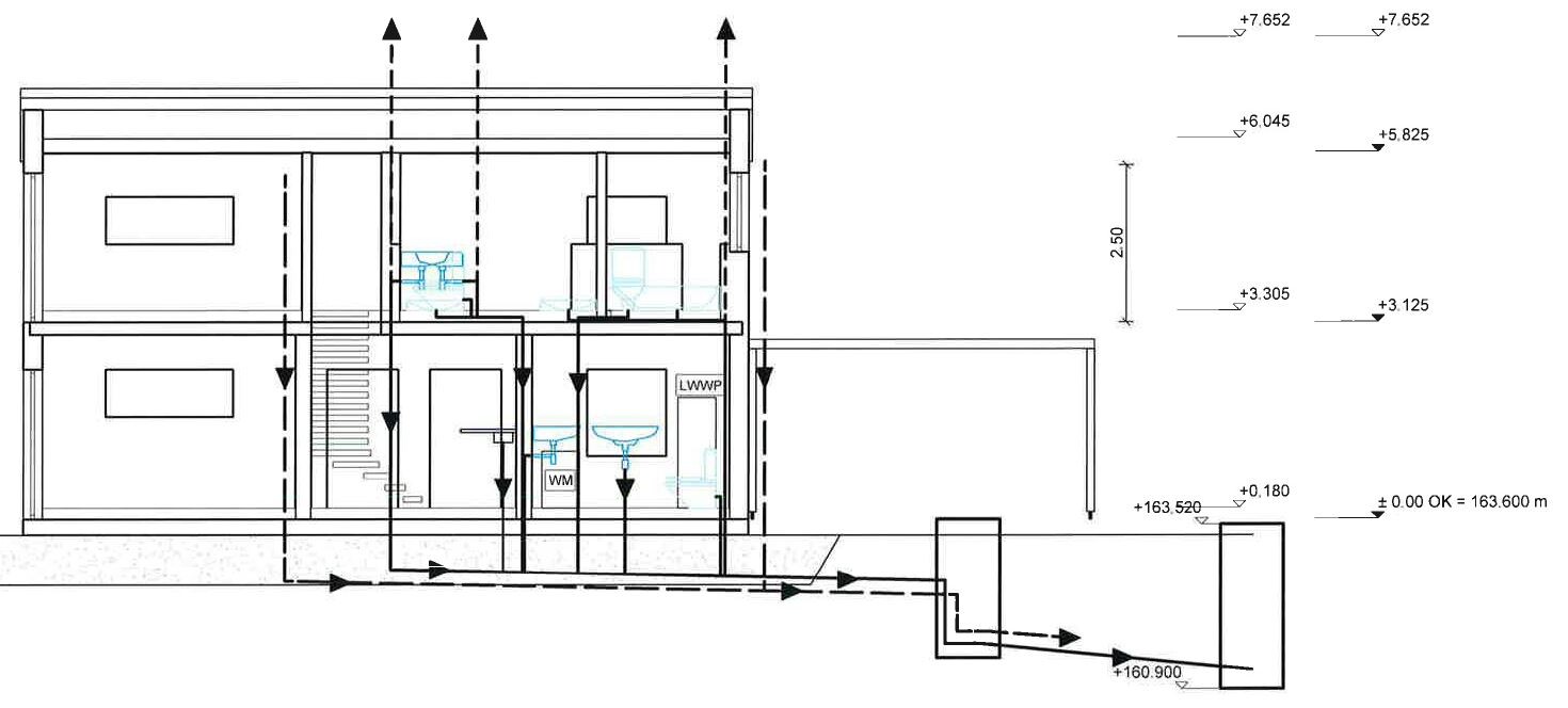
Wir bauen ohne Keller und haben im EG keine Dusche, d.h. der tiefste Schmutzwasseranschluss im Haus dürfte die Toilette im EG sein.
Das Grundstück liegt an einer leicht abschüssigen Straße (auf dem Plan abschüssig von oben nach unten). Anbei der Entwässerungsplan der Stadt sowie ein Schnitt des geplanten Hauses, beides mit Höhenangaben.
Die Entwässerungssatzung der Stadt enthält keine Angaben zur Rückstauebene, was nach meinem Verständnis gleichbedeutend ist damit, dass die Straßenhöhe die Rückstauebene ist (falls das falsch ist, bitte korrigiert mich).
Danach ergibt sich für mich folgendes Bild:
- Der nächstgelegene Kanaldeckel oberhalb unseres Grundstücks liegt auf 163,52m NHN (nach dem Plan, den unser Vermesser für unseren Bauantrag erstellt hat, auf 163,48m NHN), der nächstgelegene straßenabwärts auf 162,23m NHN.
- OK Bodenplatte ist auf 163,30m NHN, plus 0,18m Fußbodenaufbau, plus ca. 0,20m bis zu Abfluss der Toilette = 163,68m NHN
Daraus würde ich als Laie schließen, dass eine Rückstausicherung nicht notwendig ist, da der tiefstgelegene Abfluss 16 (bzw. 20) cm höher liegt als der nächstgelegene Kanaldeckel straßenaufwärts. Richtig?
Ich frage mich dann allerdings, warum der Architekt meinte, dass ich "um auf Nummer sicher zu gehen" natürlich eine Rückstauisicherung einbauen könnte. Klar, ich kann ihn einfach fragen, wollte mich aber hier erst einmal aufschlauen, damit ich seine Antwort besser einordnen kann.
Vielen Dank euch allen im Voraus und einen schönen 2. Advent!


ich bin gerade unsicher, ob wir für unser Bauvorhaben eine Rückstausicherung benötigen oder nicht. Unser Architekt war dabei nur so mittel-hilfreich und meint, dass wir "eigentlich" keine benötigen, aber wenn wir auf Nummer sicher gehen wollten natürlich eine einbauen lassen könnten.
Folgende Eckdaten:
Das Grundstück ist an ein Trennsystem angeschlossen.
Wir bauen ohne Keller und haben im EG keine Dusche, d.h. der tiefste Schmutzwasseranschluss im Haus dürfte die Toilette im EG sein.
Das Grundstück liegt an einer leicht abschüssigen Straße (auf dem Plan abschüssig von oben nach unten). Anbei der Entwässerungsplan der Stadt sowie ein Schnitt des geplanten Hauses, beides mit Höhenangaben.
Die Entwässerungssatzung der Stadt enthält keine Angaben zur Rückstauebene, was nach meinem Verständnis gleichbedeutend ist damit, dass die Straßenhöhe die Rückstauebene ist (falls das falsch ist, bitte korrigiert mich).
Danach ergibt sich für mich folgendes Bild:
- Der nächstgelegene Kanaldeckel oberhalb unseres Grundstücks liegt auf 163,52m NHN (nach dem Plan, den unser Vermesser für unseren Bauantrag erstellt hat, auf 163,48m NHN), der nächstgelegene straßenabwärts auf 162,23m NHN.
- OK Bodenplatte ist auf 163,30m NHN, plus 0,18m Fußbodenaufbau, plus ca. 0,20m bis zu Abfluss der Toilette = 163,68m NHN
Daraus würde ich als Laie schließen, dass eine Rückstausicherung nicht notwendig ist, da der tiefstgelegene Abfluss 16 (bzw. 20) cm höher liegt als der nächstgelegene Kanaldeckel straßenaufwärts. Richtig?
Ich frage mich dann allerdings, warum der Architekt meinte, dass ich "um auf Nummer sicher zu gehen" natürlich eine Rückstauisicherung einbauen könnte. Klar, ich kann ihn einfach fragen, wollte mich aber hier erst einmal aufschlauen, damit ich seine Antwort besser einordnen kann.
Vielen Dank euch allen im Voraus und einen schönen 2. Advent!
BananaJoe schrieb:
Ich frage mich dann allerdings, warum der Architekt meinte, dass ich "um auf Nummer sicher zu gehen" natürlich eine Rückstausicherung einbauen könnte.Nun, sagen wir mal so, ich kennen jemanden, der wohnt an einer wirklich stark abschüssigen Straße. Wegen der Hanglage schaut dessen ganzer Keller an der Straßenseite zu 100% aus dem Erdreich heraus. Der Kanal liegt tief in der Straße vor dem Haus in Straßenmitte vergraben. Da fühlt sich wegen des Höhenunterschieds und der starken Hanglage, wo alles auf natürlichem Wege abfließt, eigentlich jeder ziemlich sicher ...... und dann ist es doch passiert: Ein wirklich starker Platzregen hat solche Wassermassen mit sich gebracht, dass oberirdisch ein ganzer Sturzbach den Hang hinunter spülte und unterirdisch war der Kanal so überlastet, dass es überall herausgedrückt hat - Kanaldeckel, Gullydeckel, und eben auch bei besagtem Bekannten kam es als Fontäne aus dem Bodenablauf im Keller gesprudelt. Da war selbst mehr als 1 Meter Höhenunterschied nicht mehr sicher. Und was da hinterher alles im Keller schwamm, das will kein Mensch dort haben ...
... also: Lange Rede, kurzer Sinn: Ich würde auf jeden Fall eine Rückstausicherung einbauen.
B
BananaJoe06.12.20 19:33Nida35a schrieb:
rage die Nachbarn ob die Strassenkanaldeckel bei Starkregen schon mal hochgekommen sindGuter Punkt. Leider ist die ganze Gegend ein Neubaugebiet, entsprechend wenig Erfahrungen gibt es bislang bei den vorhandenen Nachbarn...AxelH. schrieb:
[...] ich kennen jemanden, der wohnt an einer wirklich stark abschüssigen Straße. Wegen der Hanglage schaut dessen ganzer Keller an der Straßenseite zu 100% aus dem Erdreich heraus. Der Kanal liegt tief in der Straße vor dem Haus in Straßenmitte vergraben. [...]An einer stark abschüssigen Straße ist das Risiko doch ohnehin eher größer als kleiner? Denn an einer steilen Straße ist der nächste Kanaldeckel bergaufwärts (und auf den kommt es ja an) typischerweise höher gelegen als die niedrigste Dusche/Toilette - vor allem wenn man mit Keller baut. Oder habe ich hier einen Denkfehler?
AxelH. schrieb:
[...] und unterirdisch war der Kanal so überlastet, dass es überall herausgedrückt hat - Kanaldeckel, Gullydeckel, und eben auch bei besagtem Bekannten kam es als Fontäne aus dem Bodenablauf im Keller gesprudelt. Da war selbst mehr als 1 Meter Höhenunterschied nicht mehr sicher. [...]Worauf bezieht sich denn der 1 Meter Höhenunterschied? Lag wirklich der nächste höhergelegene Kanal-/Gullydeckel 1 Meter tiefer (!) als der Bodenablauf im Keller?
Bei uns fällt die Straße ja wirklich nur ganz leicht ab (lt. Plan um ca. 1m auf 30m Länge)
BananaJoe schrieb:
Worauf bezieht sich denn der 1 Meter Höhenunterschied? Lag wirklich der nächste höhergelegene Kanal-/Gullydeckel 1 Meter tiefer (!) als der Bodenablauf im Keller?Das kann ich so nicht beantworten und müsste mir das bei Gelegenheit mal vor Ort anschauen. Aber aus eigener Erfahrung weiß ich, dass eine Rückstausicherung nun wirklich nicht die Welt kostet. Einen Kanal-Revisionsschacht hat unser Haus ohnehin und die Rückstauklappe hat mit Einbau netto gerad mal € 268,50 gekostet. Einmal Wasser im Keller kommt da sicher teurer ...B
BananaJoe06.12.20 20:06AxelH. schrieb:
Das kann ich so nicht beantworten und müsste mir das bei Gelegenheit mal vor Ort anschauen. Aber aus eigener Erfahrung weiß ich, dass eine Rückstausicherung nun wirklich nicht die Welt kostet. Einen Kanal-Revisionsschacht hat unser Haus ohnehin und die Rückstauklappe hat mit Einbau netto gerad mal € 268,50 gekostet. Einmal Wasser im Keller kommt da sicher teurer ...Hm... Also Keller haben wir nicht, aber ich dachte, wenn das relevante Abwasser Fäkalien enthält (was bei uns bei Toilette der Fall wäre) bräuchte man eine Rückstauklappe Typ 3F - die sehe ich bei der ersten Google Suche bei über 1000 Euro. Da das aber immer noch erheblich weniger ist, als ein überflutetes EG kosten würde, werde ich das wohl investieren, damit ich nachts ruhig schlafen kann
Ähnliche Themen