ᐅ Grundrissplanung: Ausrichtung Einfamilienhaus und Optimierung
Erstellt am: 28.07.23 21:17
H
Häuslebauer132H
Häuslebauer13228.07.23 21:17Hallo Community,
wir sind absolute Laien und hoffen auf eure Hilfe.
Wir planen gerade ein Einfamilienhaus(ca. 200m2). Wir haben ein Grundstück am Ortsrand(mit schönem Ausblick nach Osten und Süden) und haben nun mithilfe eines Bauzeichners zwei Grundrisse entworfen(ausgerichtet 1x Richtung Süden, 1x Richtung Osten), sind uns jedoch unschlüssig für welche Variante wir uns entscheiden sollten, bezogen auf die Himmelsrichtungen und das Grundstück.
Wir würden uns sehr über eure Meinungen/ Ideen / Verbesserungsvorschläge freuen.
Besten Dank im Voraus : )
Hier die Details:
Bebauungsplan/Einschränkungen
Größe des Grundstücks: 1.100m2
Hang: nein
Grundflächenzahl: 0,35
Anzahl Stellplatz: 2
Geschossigkeit: 2 Vollgeschosse
Dachform: Satteldach 18-30°; Walmdach 18-30°; Pultdach 2-15° (Dachform von Haupt und Nebengebäuden ist aufeinander abzustimmen)
weitere Vorgaben: Ortsabrundung, Ausgleichsflächenfaktor 0,4(Grundstücksrand wird begrünt)
Anforderungen der Bauherren
Stilrichtung, Dachform, Gebäudetyp: modern, Einfamilienhaus, SD oder WD
Keller, Geschosse: keinen Keller, 2Vollgeschosse
Anzahl der Personen, Alter: 2Erwachsene + 2Kinder(3+1Jahre) evtl. noch 3. Kind
Raumbedarf im EG: Duschbad, offener Küche-Essbereich- und Wohnbereich mit Kamin und viel Fenster/Glasfront zur Aussicht, Hauswirtschaftsraum/Schmutzschleuse mit Zugang zur Garage, Gästezimmer, Speisekammer, Eingangsbereich
OG: Elternschlafzimmer mit Ankleide, 2 Kinderzimmer, 1 Büro (was evtl. später noch als Kinderzimmer genutzt werden kann), Bad, ggf. Abstellraum
Büro: Familiennutzung oder Homeoffice?: zunächst Homeoffice, evtl. später als weiteres Kinderzimmer für 3.Kind
Schlafgäste pro Jahr: regelmäßig Freunde/Großeltern
offene oder geschlossene Architektur: offener Koch-/Ess-/Wohnbereich, sonst eher geschlossen
konservativ oder moderne Bauweise: modern
offene Küche, Kochinsel: offene Küche mit Kochinsel
Anzahl Essplätze: 8
Kamin: ja
Musik/Stereowand: nein
Balkon, Dachterrasse: nein
Garage, Carport: Garage mit 2 Stellplätzen
Nutzgarten, Treibhaus: nein
weitere Wünsche/Besonderheiten/Tagesablauf, gern auch Begründungen, warum dieses oder das nicht sein soll:
- großzügiger Hauswirtschaftsraum(dass auch evtl. Wäsche darin aufgehängt werden kann)
- Zugang von Garage zum Haus über Hauswirtschaftsraum(um Arbeitsklamotten zu wechseln) --Technikraum in Garage -evtl. Bad über Hauswirtschaftsraum wegen Wäscheabwurf
- viel Stauraum bzgl. der Kinder
Hausentwurf
Von wem stammt die Planung: Bauzeichner mit Einbezug eigener Ideen
Was gefällt besonders? Warum?: Ausrichtung der wichtigsten Räume auf die schönsten Seiten
Was gefällt nicht? Warum?
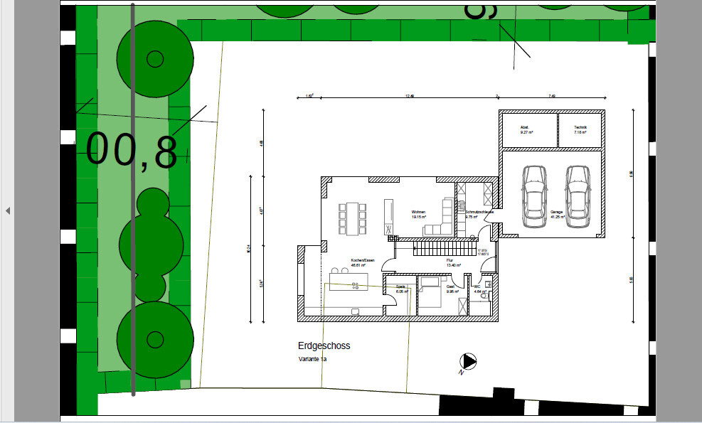
Variante 1: -Haupteingang nicht zur Straßenseite(wäre sinnvoll oder nicht?)
- keine Terrassenmöglichkeit im Westen
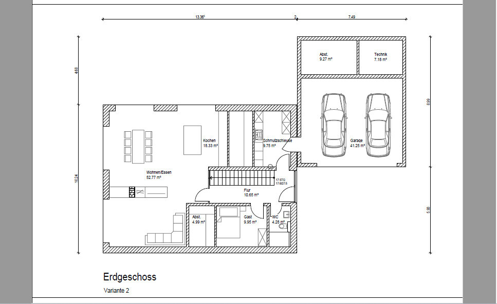
Variante 2: -relativ kleiner Koch/Ess/Wohnbereich -Ausrichtung nach Osten
Preisschätzung lt Architekt/Planer: noch nicht vorhanden
Persönliches Preislimit fürs Haus, inkl Ausstattung: 550-600k
favorisierte Heiztechnik: an bestehendes Wärmenetz anschließen
Wenn Ihr verzichten müsst, auf welche Details/Ausbauten
-könnt Ihr verzichten: Wäscheabwurf, Direkter Zugang von Garage ins Haus(dann aber mit Nebeneingang)
-könnt Ihr nicht verzichten: offener Wohn-Esse-Küche-Bereich, Gästezimmer im EG
Warum ist der Entwurf so geworden, wie er jetzt ist? ZB
Standardentwurf vom Planer? Nein!
Entsprechende/Welche Wünsche wurden vom Architekten umgesetzt?
Was macht ihn in Euren Augen besonders gut oder schlecht?
kein Standardentwurf, Zusammenarbeit und Versuch all unsere Wünsche irgendwie bestmöglich und kosteneffizient umzusetzen und unterzubringen. Viel Fensterfläche Richtung Süd-Ost
Was ist die wichtigste/grundlegende Frage zum Grundriss in 130 Zeichen zusammengefasst?
Würdet ihr euch für Variante 1(zwar Süden, trotzdem schöner Ausblick aber eher Richtung Dorf) oder Variante 2(top Ausblick aber eher Richtung Nord-Osten) entscheiden?
Ist die Ausrichtung der Räume, Garage und Terrasse bezogen auf die Himmelsrichtungen so sinnvoll?
Welche Verbesserungsvorschläge/Optimierungen könnt ihr uns mitgeben?







wir sind absolute Laien und hoffen auf eure Hilfe.
Wir planen gerade ein Einfamilienhaus(ca. 200m2). Wir haben ein Grundstück am Ortsrand(mit schönem Ausblick nach Osten und Süden) und haben nun mithilfe eines Bauzeichners zwei Grundrisse entworfen(ausgerichtet 1x Richtung Süden, 1x Richtung Osten), sind uns jedoch unschlüssig für welche Variante wir uns entscheiden sollten, bezogen auf die Himmelsrichtungen und das Grundstück.
Wir würden uns sehr über eure Meinungen/ Ideen / Verbesserungsvorschläge freuen.
Besten Dank im Voraus : )
Hier die Details:
Bebauungsplan/Einschränkungen
Größe des Grundstücks: 1.100m2
Hang: nein
Grundflächenzahl: 0,35
Anzahl Stellplatz: 2
Geschossigkeit: 2 Vollgeschosse
Dachform: Satteldach 18-30°; Walmdach 18-30°; Pultdach 2-15° (Dachform von Haupt und Nebengebäuden ist aufeinander abzustimmen)
weitere Vorgaben: Ortsabrundung, Ausgleichsflächenfaktor 0,4(Grundstücksrand wird begrünt)
Anforderungen der Bauherren
Stilrichtung, Dachform, Gebäudetyp: modern, Einfamilienhaus, SD oder WD
Keller, Geschosse: keinen Keller, 2Vollgeschosse
Anzahl der Personen, Alter: 2Erwachsene + 2Kinder(3+1Jahre) evtl. noch 3. Kind
Raumbedarf im EG: Duschbad, offener Küche-Essbereich- und Wohnbereich mit Kamin und viel Fenster/Glasfront zur Aussicht, Hauswirtschaftsraum/Schmutzschleuse mit Zugang zur Garage, Gästezimmer, Speisekammer, Eingangsbereich
OG: Elternschlafzimmer mit Ankleide, 2 Kinderzimmer, 1 Büro (was evtl. später noch als Kinderzimmer genutzt werden kann), Bad, ggf. Abstellraum
Büro: Familiennutzung oder Homeoffice?: zunächst Homeoffice, evtl. später als weiteres Kinderzimmer für 3.Kind
Schlafgäste pro Jahr: regelmäßig Freunde/Großeltern
offene oder geschlossene Architektur: offener Koch-/Ess-/Wohnbereich, sonst eher geschlossen
konservativ oder moderne Bauweise: modern
offene Küche, Kochinsel: offene Küche mit Kochinsel
Anzahl Essplätze: 8
Kamin: ja
Musik/Stereowand: nein
Balkon, Dachterrasse: nein
Garage, Carport: Garage mit 2 Stellplätzen
Nutzgarten, Treibhaus: nein
weitere Wünsche/Besonderheiten/Tagesablauf, gern auch Begründungen, warum dieses oder das nicht sein soll:
- großzügiger Hauswirtschaftsraum(dass auch evtl. Wäsche darin aufgehängt werden kann)
- Zugang von Garage zum Haus über Hauswirtschaftsraum(um Arbeitsklamotten zu wechseln) --Technikraum in Garage -evtl. Bad über Hauswirtschaftsraum wegen Wäscheabwurf
- viel Stauraum bzgl. der Kinder
Hausentwurf
Von wem stammt die Planung: Bauzeichner mit Einbezug eigener Ideen
Was gefällt besonders? Warum?: Ausrichtung der wichtigsten Räume auf die schönsten Seiten
Was gefällt nicht? Warum?
Variante 1: -Haupteingang nicht zur Straßenseite(wäre sinnvoll oder nicht?)
- keine Terrassenmöglichkeit im Westen
Variante 2: -relativ kleiner Koch/Ess/Wohnbereich -Ausrichtung nach Osten
Preisschätzung lt Architekt/Planer: noch nicht vorhanden
Persönliches Preislimit fürs Haus, inkl Ausstattung: 550-600k
favorisierte Heiztechnik: an bestehendes Wärmenetz anschließen
Wenn Ihr verzichten müsst, auf welche Details/Ausbauten
-könnt Ihr verzichten: Wäscheabwurf, Direkter Zugang von Garage ins Haus(dann aber mit Nebeneingang)
-könnt Ihr nicht verzichten: offener Wohn-Esse-Küche-Bereich, Gästezimmer im EG
Warum ist der Entwurf so geworden, wie er jetzt ist? ZB
Standardentwurf vom Planer? Nein!
Entsprechende/Welche Wünsche wurden vom Architekten umgesetzt?
Was macht ihn in Euren Augen besonders gut oder schlecht?
kein Standardentwurf, Zusammenarbeit und Versuch all unsere Wünsche irgendwie bestmöglich und kosteneffizient umzusetzen und unterzubringen. Viel Fensterfläche Richtung Süd-Ost
Was ist die wichtigste/grundlegende Frage zum Grundriss in 130 Zeichen zusammengefasst?
Würdet ihr euch für Variante 1(zwar Süden, trotzdem schöner Ausblick aber eher Richtung Dorf) oder Variante 2(top Ausblick aber eher Richtung Nord-Osten) entscheiden?
Ist die Ausrichtung der Räume, Garage und Terrasse bezogen auf die Himmelsrichtungen so sinnvoll?
Welche Verbesserungsvorschläge/Optimierungen könnt ihr uns mitgeben?
S
Schorsch_baut28.07.23 22:16Ich kann mir nicht vorstellen, dass das Budget reichen wird. Drei Vollbäder, große Küche und Kamin und viel Fenster und Fläche, das sind schon alles Kostentreiber.
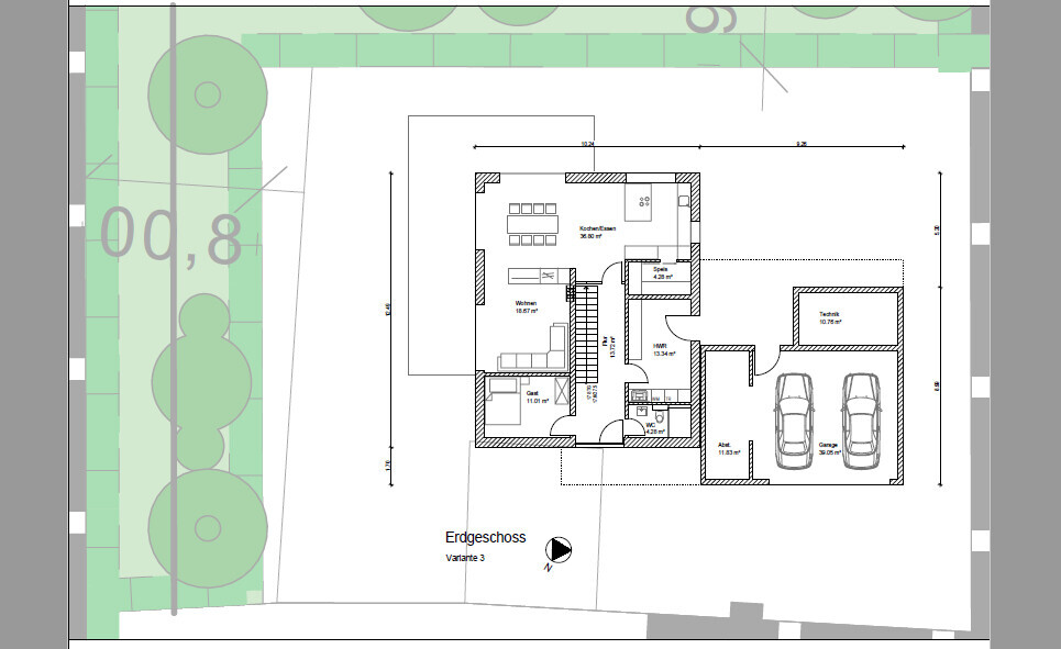
… was man so sieht:
Der Kamin bzw. der lange Aufbau wirkt wie ein Störfaktor und gibt dem Raum nichts Positives. Ganz im Gegenteil.
Dann fehlt nicht nur eine kleine Garderobe, sondern der Platz für Bewegung und Garderobe von geplanten 5 Petsonen, quasi 3 laufende Schrankmeter.
Im Westen ist die Garage wegen des Ausblickes? Wo geht er denn hin, der Ausblick?
Technik außerhalb der thermischen Hülle und noch dazu mehrere Meter vom Haus entfernt? Das würde ich grundsätzlich nicht so planen. Ist nicht effektiv und teuer.
Budget reflektiert auch die Wünsche auch nicht, sorry.
3500€/qm bei den Wünschen und die Doppelgarage mit 60000€ würde ich kalkulieren. Dazu dann Baunebenkosten etc.
Der Kamin bzw. der lange Aufbau wirkt wie ein Störfaktor und gibt dem Raum nichts Positives. Ganz im Gegenteil.
Dann fehlt nicht nur eine kleine Garderobe, sondern der Platz für Bewegung und Garderobe von geplanten 5 Petsonen, quasi 3 laufende Schrankmeter.
Im Westen ist die Garage wegen des Ausblickes? Wo geht er denn hin, der Ausblick?
Technik außerhalb der thermischen Hülle und noch dazu mehrere Meter vom Haus entfernt? Das würde ich grundsätzlich nicht so planen. Ist nicht effektiv und teuer.
Budget reflektiert auch die Wünsche auch nicht, sorry.
3500€/qm bei den Wünschen und die Doppelgarage mit 60000€ würde ich kalkulieren. Dazu dann Baunebenkosten etc.
X
xMisterDx28.07.23 22:52Kannst du knicken.
Seriös kriegst du 150m² schlüsselfertig aktuell für um die 330.000 EUR, mit einem Bad. Das auf eure Vorstellungen hochskaliert ergeben alleine fürs Haus locker 500.000, plus gehobene Ausstattung, plus Küche, plus möbel(?), plus Baunebenkosten... plus Garage... und dann müsst ihr noch 1.100m² Grundstück halbwegs vernünftig anlegen...
Da wird ne 7 vorne stehen am Ende.
Seriös kriegst du 150m² schlüsselfertig aktuell für um die 330.000 EUR, mit einem Bad. Das auf eure Vorstellungen hochskaliert ergeben alleine fürs Haus locker 500.000, plus gehobene Ausstattung, plus Küche, plus möbel(?), plus Baunebenkosten... plus Garage... und dann müsst ihr noch 1.100m² Grundstück halbwegs vernünftig anlegen...
Da wird ne 7 vorne stehen am Ende.
Häuslebauer132 schrieb:
wir sind absolute Laien und hoffen auf eure Hilfe.
Wir planen gerade ein Einfamilienhaus(ca. 200m2). Wir haben ein Grundstück am Ortsrand(mit schönem Ausblick nach Osten und Süden) und haben nun mithilfe eines Bauzeichners zwei Grundrisse entworfenIhr kennt nicht zufällig denselben Bauzeichner wie @HausBaus https://www.hausbau-forum.de/threads/grundrissplanung-optimierung-einfamilienhaus-ohne-keller.45778/ ?200 qm ist eine Größenordnung, wo schon ordentlich Musik in dem Sparfehler drinsteckt, als Planer einen Bauzeichner zu nehmen ;-)
https://www.instagram.com/11antgmxde/
https://www.linkedin.com/company/bauen-jetzt/
Ähnliche Themen