ᐅ Grundriss Einfamilienhaus mit Einliegerwohnung am Südhang oberhalb der Straße
Erstellt am: 19.06.21 11:53
O
Olle QuitteO
Olle Quitte19.06.21 11:53Hallo zusammen,
wir planen aktuell ein Einfamilienhaus in Hanglage oberhalb der Straße. Durch die Hanglage ist das Kellergeschoss zur Straße hin freigelegt und dort soll auch die Einliegerwohnung entstehen. Auch der Haupteingang ins Einfamilienhaus soll auf Straßenniveau sein und dann über eine lange Treppe ins Erdgeschoss führen. Bin gespannt was ihr davon haltet. Danke!
Bebauungsplan/Einschränkungen
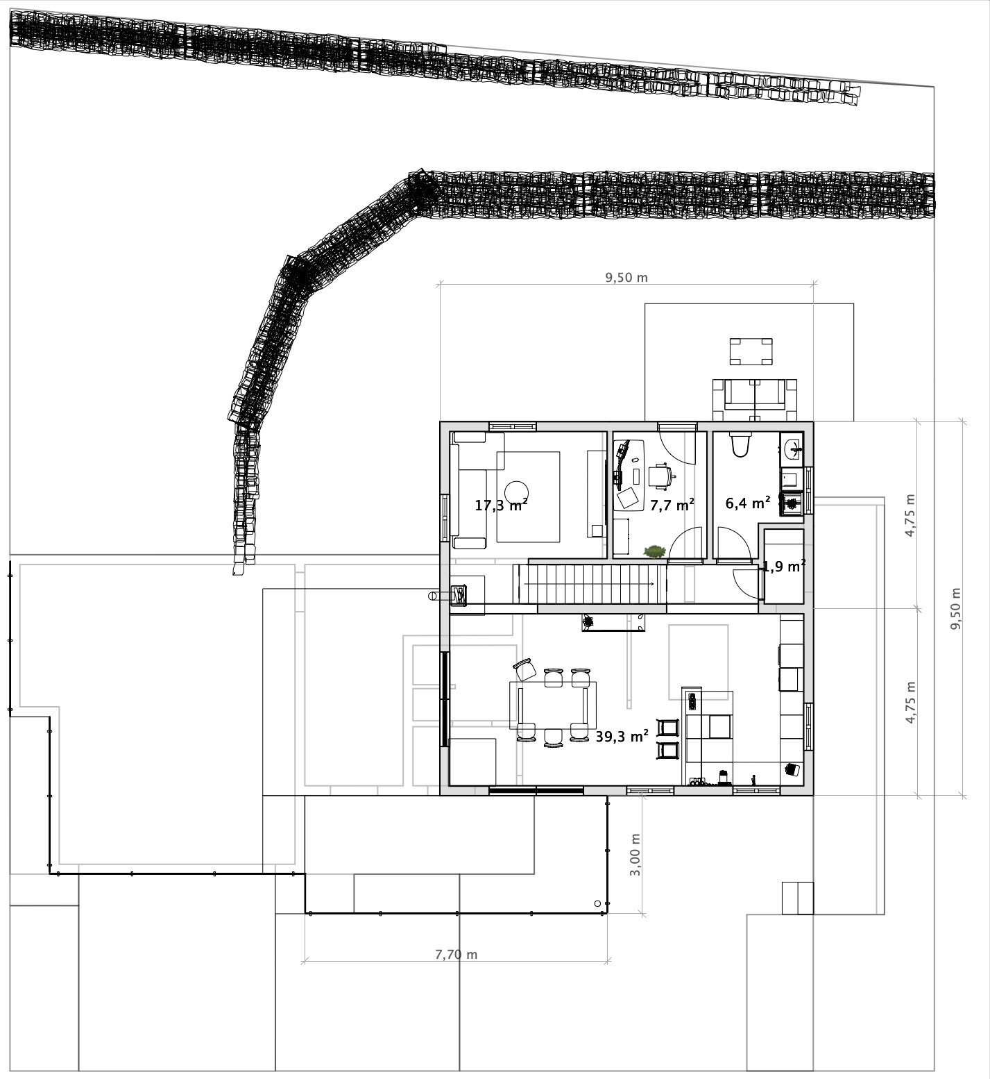
Größe des Grundstücks: 627qm
Hang: Ja, das Grundstück ist oberhalb der Straße. Gemessen vom Straßenniveau hinten links ca. 5,5m und hinten rechts 4,2m.
Grundflächenzahl: 0,4
Geschossflächenzahl: Keine Vorgabe
Baufenster, Baulinie und -grenze: Siehe Bilder
Randbebauung: gem. Art 6 BayBO
Anzahl Stellplatz: 2 pro Wohneinheit
Geschossigkeit: 3 Geschosse
Dachform: Satteldach
Stilrichtung: Ziegel in rot oder anthrazit
Ausrichtung: Hauptfirstrichtung parallel zur Straße +- 10°
Maximale Höhen/Begrenzungen: Neigung 18-26° / Dachüberstände 0,4 - 1,2m in beide Richtungen
Anforderungen der Bauherren
Stilrichtung, Dachform, Gebäudetyp: Satteldach mit 18° Neigung / Ziegel in anthrazit
Keller, Geschosse: Kellergeschoss nach vorn freigelegt und nach hinten im Hang, Erdgeschoss, Obergeschoss mit Kniestock von ca. 1,9m
Anzahl der Personen, Alter: Einfamilienhaus Planung für 2 Erwachsene und 2 Kinder / Einliegerwohnung für max. 2 Personen (Paar)
Raumbedarf im EG, OG: Einliegerwohnung = ca. 50qm / EG = ca. 70qm / OG = ca. 70qm
Büro: Home Office (siehe EG)
Schlafgäste pro Jahr: Keine (Wenn doch, ab aufs Sofa)
offene oder geschlossene Architektur: Siehe Bilder
konservativ oder moderne Bauweise: Siehe Bilder
offene Küche, Kochinsel: Offene Küche in U-Form
Anzahl Essplätze: 8
Kamin: Schwedenofen mit Edelstahlkamin außen
Musik/Stereowand: Nein
Balkon, Dachterrasse: Keine Balkone / Terrasse mit Süd-West Ausrichtung
Garage, Carport: Doppelgarage
Nutzgarten, Treibhaus: Siehe Bilder
Hausentwurf
Planer: Bisher Do-it-Yourself
Was gefällt besonders? Durch die Hanglage bietet sich die Einliegerwohnung unten gut an, da man dennoch zwei getrennte Gärten auf unterschiedlichen Etagen hat.
Was gefällt nicht?
Persönliches Preislimit fürs Haus, inkl. Ausstattung: max. 600k€ (Davon kommen hoffentlich ca. 50k€ durch KfW wieder zurück)
favorisierte Heiztechnik: Sole-Wärmepumpe (Tiefenbohrung)
Warum ist der Entwurf so geworden, wie er jetzt ist?
Wir haben ein anderes Haus in demselben Baugebiet besichtigt und das steht ebenfalls am Hang oberhalb der Straße und hat unten eine Einliegerwohnung. Hier haben wir uns Einiges abgeschaut. Uns war wichtig, dass wir nicht außen am Haus nach oben laufen muss und den Haupteingang im Erdgeschoss hat. Wir wollten direkt auf Straßenniveau und überdacht das Haus betreten können.
Was ist die wichtigste/grundlegende Frage zum Grundriss in 130 Zeichen zusammengefasst?
Vielleicht habt ihr ein paar gute Ideen zum Thema Hangbebauung und Lichthof für die Fenster der Einliegerwohnung. Ansonsten würde mich eure allgemeine Meinung zu unserer aktuellen Planung interessieren
Ich freue mich auf Euren Input und Danke vorab!










wir planen aktuell ein Einfamilienhaus in Hanglage oberhalb der Straße. Durch die Hanglage ist das Kellergeschoss zur Straße hin freigelegt und dort soll auch die Einliegerwohnung entstehen. Auch der Haupteingang ins Einfamilienhaus soll auf Straßenniveau sein und dann über eine lange Treppe ins Erdgeschoss führen. Bin gespannt was ihr davon haltet. Danke!
Bebauungsplan/Einschränkungen
Größe des Grundstücks: 627qm
Hang: Ja, das Grundstück ist oberhalb der Straße. Gemessen vom Straßenniveau hinten links ca. 5,5m und hinten rechts 4,2m.
Grundflächenzahl: 0,4
Geschossflächenzahl: Keine Vorgabe
Baufenster, Baulinie und -grenze: Siehe Bilder
Randbebauung: gem. Art 6 BayBO
Anzahl Stellplatz: 2 pro Wohneinheit
Geschossigkeit: 3 Geschosse
Dachform: Satteldach
Stilrichtung: Ziegel in rot oder anthrazit
Ausrichtung: Hauptfirstrichtung parallel zur Straße +- 10°
Maximale Höhen/Begrenzungen: Neigung 18-26° / Dachüberstände 0,4 - 1,2m in beide Richtungen
Anforderungen der Bauherren
Stilrichtung, Dachform, Gebäudetyp: Satteldach mit 18° Neigung / Ziegel in anthrazit
Keller, Geschosse: Kellergeschoss nach vorn freigelegt und nach hinten im Hang, Erdgeschoss, Obergeschoss mit Kniestock von ca. 1,9m
Anzahl der Personen, Alter: Einfamilienhaus Planung für 2 Erwachsene und 2 Kinder / Einliegerwohnung für max. 2 Personen (Paar)
Raumbedarf im EG, OG: Einliegerwohnung = ca. 50qm / EG = ca. 70qm / OG = ca. 70qm
Büro: Home Office (siehe EG)
Schlafgäste pro Jahr: Keine (Wenn doch, ab aufs Sofa)
offene oder geschlossene Architektur: Siehe Bilder
konservativ oder moderne Bauweise: Siehe Bilder
offene Küche, Kochinsel: Offene Küche in U-Form
Anzahl Essplätze: 8
Kamin: Schwedenofen mit Edelstahlkamin außen
Musik/Stereowand: Nein
Balkon, Dachterrasse: Keine Balkone / Terrasse mit Süd-West Ausrichtung
Garage, Carport: Doppelgarage
Nutzgarten, Treibhaus: Siehe Bilder
Hausentwurf
Planer: Bisher Do-it-Yourself
Was gefällt besonders? Durch die Hanglage bietet sich die Einliegerwohnung unten gut an, da man dennoch zwei getrennte Gärten auf unterschiedlichen Etagen hat.
Was gefällt nicht?
- Mit dieser Planung setzen wir das Haus genau in die Südecke des Grundstücks, damit die Einliegerwohnung möglich wird
- Wir sind allerdings der Meinung, dass es verkraftbar ist, weil wir eine Morgenterrasse mit Ost-Ausrichtung haben und sich eine weitere große Fläche/Terrasse in Richtung Abendsonne ergibt
- Durch die Einliegerwohnung sind unsere Kellerräume sehr rar
Persönliches Preislimit fürs Haus, inkl. Ausstattung: max. 600k€ (Davon kommen hoffentlich ca. 50k€ durch KfW wieder zurück)
favorisierte Heiztechnik: Sole-Wärmepumpe (Tiefenbohrung)
Warum ist der Entwurf so geworden, wie er jetzt ist?
Wir haben ein anderes Haus in demselben Baugebiet besichtigt und das steht ebenfalls am Hang oberhalb der Straße und hat unten eine Einliegerwohnung. Hier haben wir uns Einiges abgeschaut. Uns war wichtig, dass wir nicht außen am Haus nach oben laufen muss und den Haupteingang im Erdgeschoss hat. Wir wollten direkt auf Straßenniveau und überdacht das Haus betreten können.
Was ist die wichtigste/grundlegende Frage zum Grundriss in 130 Zeichen zusammengefasst?
Vielleicht habt ihr ein paar gute Ideen zum Thema Hangbebauung und Lichthof für die Fenster der Einliegerwohnung. Ansonsten würde mich eure allgemeine Meinung zu unserer aktuellen Planung interessieren
Ich freue mich auf Euren Input und Danke vorab!
Es fehlen Maße
Im OG die 2 m Linie
Budget könnte sehr knapp werden. Tippe ihr baut im Südlichen teuren Teil.
Warum wollt ihr euch eine Einliegerwohnung antun.
Ich würde meinen Südgarten nicht hergeben. Also wir haben ohne ETW gebaut.
So finde ich die Treppe nicht gut. Gibt Kelleratmospähre
Im OG die 2 m Linie
Budget könnte sehr knapp werden. Tippe ihr baut im Südlichen teuren Teil.
Warum wollt ihr euch eine Einliegerwohnung antun.
Ich würde meinen Südgarten nicht hergeben. Also wir haben ohne ETW gebaut.
So finde ich die Treppe nicht gut. Gibt Kelleratmospähre
H
hampshire19.06.21 12:36Mir gefällt der Entwurf sehr gut von der Grundidee. Schöne Trennung der Wohneinheiten innen und außen und gute Integration der Garage und Stellplätze. Da ich weniger praktisch als Andere hier denke, kommen sicher noch gute Tipps, wenn die Masse da sind.
Für 600T€ wirst Du jede Position genau rechnen und bist in der Wahl von Ausstattung und Materialien ziemlich eingeschränkt. Die Bewohner der Wohneinheiten sind besser keine Sammler, denn der Platz zur Unterbringung von viel Hab und Gut ist rar. Muss man nur wissen. Einliegerwohnung Fenster würde ich „niederländisch“ groß machen.
Für 600T€ wirst Du jede Position genau rechnen und bist in der Wahl von Ausstattung und Materialien ziemlich eingeschränkt. Die Bewohner der Wohneinheiten sind besser keine Sammler, denn der Platz zur Unterbringung von viel Hab und Gut ist rar. Muss man nur wissen. Einliegerwohnung Fenster würde ich „niederländisch“ groß machen.
O
Olle Quitte19.06.21 12:37@haydee
- Welche 2m Linie im OG meinst du?
- Das einzige 2m Maß (bzw. 1,99m) ist im Moment im Kellergeschoss eingezeichnet und zeigt den Vorsprung der Garage gegenüber der Hausfront
- Ja wir bauen im teueren südlichen Teil
- Genau aus diesem Grund planen wir mit Einliegerwohnung, um uns bei der Finanzierung helfen zu lassen
- Wohnraum ist in unserer Region sehr gefragt
- Welche Treppe meinst du?
- Vom Kellergeschoss ins Erdgeschoss?
Ich finde die Haustüre nicht! (ernst gemeint) 😕
Ach, neben der Garage, wo 23,4 qm steht? Zugang quasi über Keller?
Nach Wohnen gelangt man über die Schleuse Essen?
Türe Büro direkt an der Treppe?
WC in Sichtweite Küche?
Man „stolpert“ quasi in die Küche, wenn man reinkommt?
Puh, mir gefällt das so überhaupt nicht (ok, muss es auch nicht), aber einladend ist der Zugang nicht.
RH, wo die Garage im Haus ist, haben das z.T. auch so.
Die gerade Treppe gehört da nicht rein.
Zu den Bildern:
Haus erinnert mich an „Ferien auf dem Bauernhof“.
600k€ für was nochmal? Haus+Einrichtung? Baunebenkosten, Außenanlagen, DG... onTop?
Ach, neben der Garage, wo 23,4 qm steht? Zugang quasi über Keller?
Nach Wohnen gelangt man über die Schleuse Essen?
Türe Büro direkt an der Treppe?
WC in Sichtweite Küche?
Man „stolpert“ quasi in die Küche, wenn man reinkommt?
Puh, mir gefällt das so überhaupt nicht (ok, muss es auch nicht), aber einladend ist der Zugang nicht.
RH, wo die Garage im Haus ist, haben das z.T. auch so.
Die gerade Treppe gehört da nicht rein.
Zu den Bildern:
Haus erinnert mich an „Ferien auf dem Bauernhof“.
600k€ für was nochmal? Haus+Einrichtung? Baunebenkosten, Außenanlagen, DG... onTop?
Olle Quitte schrieb:
Genau aus diesem Grund planen wir mit Einliegerwohnung, um uns bei der Finanzierung helfen zu lassenHab ihr euch dies ehrlich durch gerechnet? Für die Zusatzkosten der EWL muss lange jemand drin wohnen bis diese Einnahmen euch bei der Finanzierung helfen, wenn überhaupt mal. Der größte Vorteil eines Einfamilienhaus (alleine zu Wohnen) geht durch die EWL auch verloren.
Ähnliche Themen