Hausbau - Ratgeber
Bauherrenhilfe
- Bauherrenhilfe vor Vertragsabschluss
-- Warum einen unabhängigen Baubetreuer?
-- Vertragsgrundlagen
-- Bausumme
-- Zahlungsplan zur Kostenkontrolle
-- Pflichten des Bauherren vor Vertragsabschluss
-- Unterlagen beim Hausbau vor Vertragsabschluss
- Bauherrenhilfe nach Vertragsabschluss
-- Bauantrag bei Behörden
-- Bau-Genehmigungsverfahren bei Baubehörden
-- Bauspezifische Versicherungen
-- Bauzeitenplan
-- Baubeginn - die Letzten Pflichten der Bauherrschaft
- Bauherrenhilfe während der Bauzeit
- Gewährleistungsansprüche
- Bauabnahme
Baufinanzierung
- Baufinanzierung - Allgemeine Fragen
- Kreditarten
- Kredit-Konditionen
- Bausparen
- Staatliche Förderungen
- Verkehrswert
- Haushaltsrechnung und Bonität
Hausbau Planung
- Haustypen
- Hausbau Vorbereitungsarbeiten
- Das Baugrundstück
- Baugrund beim Hausbau
- Baurecht
- Gebäudeschutz
- Erdarbeiten und Wasserhaltung
- Stützmauern
- Einfriedung
- Untergeschoss
- Kanalisation
- Tragende Elemente
- Nichttragende Innenwände
- Fundation / Fundament
- Deckenkonstruktionen
- Dächer
- Kaminanlagen
- Treppen Rampen Leitern
- Dachbeläge und Spengler
- Fenster
- Sonnen und Wetterschutz
- Aussenputze
- Einbauten, Küchen, Türen
- Bodenbeläge und Unterlagsböden
- Parkett
- Gips, Wand, Decke
Haustechnik und Energie
- Heiztechnik
- Lüftung und Klimatechnik
- Sanitärtechnik
- Elektrotechnik
- Erneuerbare Energie
Whirlpools / Jacuzzi
Hausbau Magazin
- Baufinanzierung trotz Krise?
- Das Blockhaus
- Moderne Dämmstoffe im Vergleich
- Erker Vor- und Nachteile
- Glasflächen beim Hausbau
- Günstig ein Haus Bauen
- Mediterraner Hausbaustil
- Mehrgenerationenhaus
- Moderne Architektur
- Gartengestaltung leicht gemacht
- Traditioneller Ziegelbau
- Villa als höchster Traum
- Im Eigenheim Ruhestand geniessen
- Altbau sanieren
- Kauf einer Holzgarage
- Immobilienmakler
- Arbeitshandschuhe für den Winter
- Zuhause verschönern
- Outdoor-Plissees
- Schlafzimmer planen
- Terrassenüberdachung
- Wohngebäudeversicherung
- Zaunarten und Eigenschaften
- Hauseingang gestalten
- Der perfekte Grundriss
- Sparsamer heizen im Altbau
- Einfamilienhaus smart finanzieren
- Planung einer PV-Anlage
- Neues Haus
- Immobilienfinanzierung
- Installation einer Photovoltaikanlage
- Asbest erkennen und entfernen
- Gartenpflege im Frühling – worauf achten
- Sauna im Fokus - Wellness zuhause
- Erfolgreich vermieten
- Die perfekte Winterbekleidung
- Das Niedrigenergiehaus
- Der April und seine Stürme
- Architektonische Vielfalt
- Ökologisch und nachhaltig bauen
- Das perfekte Schlafzimmer
- Nachhaltige Energieversorgung
- Zukunftsorientiert bauen
- Nachhaltigkeit beim Hausbau
- Tiny Houses
- Wärmepumpen als nachhaltige Heizvariante
- Maßgeschneiderten Kleiderschrank
- Der richtige Baukredit
- Ratgeber für erfolgreichen Hausbau
- Haus als Altersvorsorge
Do-it-yourself Anleitungen
- Verlegeanleitung für Bodenbeläge und Parkett
- Bodenbeläge und Parkett reinigen und pflegen
- Malerarbeiten am Haus
- Garten Tipps
- Umzug und Reinigung

ᐅ Meinungen zum Grundriss Einfamilienhaus Doppelhaushälfte

Erstellt am: 10.07.16 16:37
A
Alpandian89
A
Alpandian89
10.07.16 16:37
Hallo zusammen,

anbei unser vorläufiger Grundriss. Keller habe ich mal raus gelassen, da noch offen ist, welche Heiztechnik wir nehmen werden.

Wir freuen uns auf eure Meinungen.


Bebauungsplan/Einschränkungen
Größe des Grundstücks: 740 qm
Hang: nein
Grundflächenzahl: 0,4
Geschossflächenzahl: 0,6
Baufenster, Baulinie und -grenze: 3 Meter von der Grundstücksgrenze
Randbebauung: ja (Garage)
Geschossigkeit: max. 2 Vollgeschosse
Dachform: keine Vorgabe
Stilrichtung: Einfamilienhaus/Doppelhaushälfte
Maximale Höhen/Begrenzungen: 6,30 Meter Draufhöhe u. 10 Meter Firsthöhe

Anforderungen der Bauherren
Stilrichtung, Dachform, Gebäudetyp: Klassisch, Satteldach, Einfamilienhaus
Keller, Geschosse: ja, 1,5 Geschosse
Anzahl der Personen, Alter: 2, später zwei Kinder geplant
Raumbedarf im EG, OG: s. Grundrisse
Büro: Familiennutzung
Schlafgäste pro Jahr: ca. 10
offene oder geschlossene Architektur: geschlossen
konservativ oder moderne Bauweise: konservativ
Anzahl Essplätze: 6
Kamin: ja
Musik/Stereowand: nein
Balkon, Dachterrasse: optional
Garage, Carport: wird separat gemacht
Nutzgarten, Treibhaus

Hausentwurf
Von wem stammt die Planung:
Das sind unsere Ideen, welche von einer Baufirma zu Papier gebracht wurden.
Was gefällt nicht?
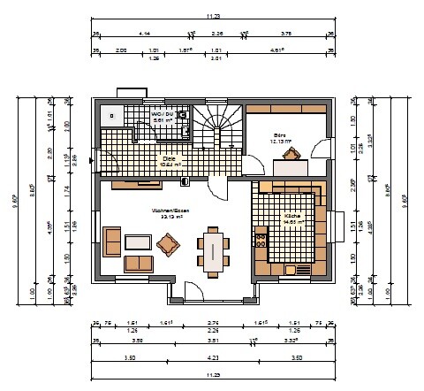
Der Weg von der Haustüre in die Küche. Das muss noch geändert werden.
Preisschätzung lt. Architekt/Planer:
300.000€ inkl. Keller ohne separaten Kellereingang
Persönliches Preislimit fürs Haus, inkl Ausstattung:
330.000 €
favorisierte Heiztechnik:
Keine. Hier gehen die Meinungen verschiedener Firmen auseinander.

Wenn Ihr verzichten müsst, auf welche Details/Ausbauten
Separate Kellereingang

Der Hauseingang befindet sich im Norden. Die Zimmer sind entsprechend der
Wetterseiten ausgerichtet.

Vielen Dank für eure Meinungen.


Anhänge:
Y
ypg
10.07.16 21:25
Hallo,
Der Zugang zur Küche wird geändert? Das ist nämlich das erste, was mir auffällt. Die Garderobe kann planrechts vom Eingang, sodass dann eine Tür zur Küche führen kann. Tür zum Abstellraum würde ich dann aber auch vom Flur aus machen.
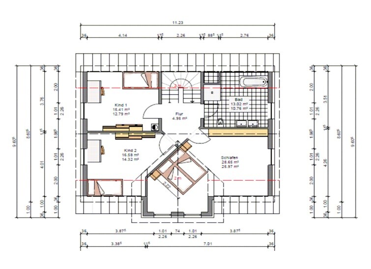
Im OG kann die Toilette an die Seitenwand von der Dusche.

Ein Lageplan sowie die Hausausrichtung wäre interessant.
K
kbt09
10.07.16 23:18
Es wäre zunächst mal sinnvoll, die Möblierung nicht mit Puppenmöbeln, sondern mit echten Möbelgrößen darzustellen 😉 ...Im Wohnbereich sind die "Sofas" nichtmal 150 cm breit.

Die Wanne wird unterhalb der 2m-Linie bestiegen ...., die Dusche geht auch in einen Bereich über, der unterhalb von 2m liegt. Spritzt alles wundervoll an die Decke.

Das Schlafzimmer ist irre groß, bietet aber nur für gut 300 cm Stauraum.

Die Treppe ist sehr knapp kalkuliert.

In der aktuellen Küchenplanung paßt genau 1 Hochschrank, vermutlich der für den Kühlschrank. Backofen oder ähnliches hochgesetzt klappt so nicht.
A
Alpandian89
09.11.16 15:39
Es sind nun überarbeitete Entwürfe für EG und DG angehängt.

Wir freuen uns über Eure Meinungen.
R
RobsonMKK
09.11.16 15:43
Könntest du die als JPG hochladen? Das wird auch die Resonanz erhöhen. Die wenigsten haben Lust sich PDFs runterladen zu müssen.
A
Alpandian89
09.11.16 15:53
Gerne.


Grundrissplan des oberen Stockwerks mit Flur, Bad, Kind 1, Kind 2 und Elternzimmer

Grundrissplan eines Wohnhauses mit Wohnzimmer, Küche, Diele und Treppe
kellereingangkücheheiztechnikgaragedachformeinfamilienhausgeschossetürdusche