ᐅ Planung Einfamilienhaus, 4-köpfige Familie Westmünsterland, Erstentwurf Architekt
Erstellt am: 20.10.25 12:17
-
-Malte-Das Haus von Tolentino bzw. die Treppenlage ist eine, ich sag es mal so, Querform eines Hauses, wo die Grundstücksbreite es auch hergeben muss, dass man Eingang neben Treppe UND links und rechts giebelseitig zwei Räume hinbekommt. Die Treppenlage definiert die beiden Räume im OG, die gern etwas ü300cm breit sein sollen, um einen Kleiderschrank auf Breite stellen zu können. Dann bewegt man sich schnell auf eine Hausbreite von knapp 12 Metern zu. Das sehe ich nämlich auch gerade bei dem Alto 650. Schande auf mein Haupt, aber es gibt halt sicherlich noch genug Häuser, die mit knapp 11 Metern auskommen. Problem ist außerdem, dass man bei 2-Geschossigkeit mit der Treppe flexibler ist, weil man sie drehen kann.
Ja, den Schmutzraum vor der Treppe gilt es zu vermeiden. Dennoch gelten auch andere Dinge einschränkend bzw. möcht man dies und das. Und einige Dinge stehen bei einer Planung im Konflikt. Nur weil 50% anders bauen, heißt es nicht, dass ein Treppenantritt an der Tür das Haus nicht mehr funktionell macht. Ein gut und „langweilig“ geplantes Doppelhaus mit Treppe an der Tür kann besser funktionieren und großzügiger aussehen als ein mit Platzfressern Nice-to-Haves vollgestopftes Haus.
Ja, den Schmutzraum vor der Treppe gilt es zu vermeiden. Dennoch gelten auch andere Dinge einschränkend bzw. möcht man dies und das. Und einige Dinge stehen bei einer Planung im Konflikt. Nur weil 50% anders bauen, heißt es nicht, dass ein Treppenantritt an der Tür das Haus nicht mehr funktionell macht. Ein gut und „langweilig“ geplantes Doppelhaus mit Treppe an der Tür kann besser funktionieren und großzügiger aussehen als ein mit Platzfressern Nice-to-Haves vollgestopftes Haus.
Genau das sind die Themen, bei denen wir uns vom Architekten entsprechenden Input/Führung erwartet haben, weil wir sie nicht überblicken. Tatsächlich scheinen wir das allerdings nicht in der Form zu bekommen. Wenn uns klar gesagt würde was ein geäußerter Wunsch oder Anmerkung für Konsequenzen hat, kann man auch drüber nachdenken auf Dinge zu verzichten. Ohne den Input klappt es aber nicht und es kommt dann letztlich Schmarrn heraus.
Um es kurz zu machen sind unsere wesentlichen Anforderungen nämlich aus unserer Sicht nicht zu kompliziert:
- 4-köpfige Familie mit einem festen Home Office
- 1,5 Geschosser mit Satteldach ohne Keller auf flachem & nahezu quadratischen Grundstück (21m breit/22m lang; Straße im Nord-Osten)
- keine aufwändige Architektur (Galerie, zig Vorsprünge etc)
- Wohnen/Essen/Kochen nicht komplett offen direkt nebeneinander; etwas Abgrenzung gewünscht
- vernünftigen Stauraum im EG, um Garderobe, Waschen etc. für Familienalltag unterzubringen
- Treppe möglichst nicht im Schmutzbereich
Höre ich aus deinem letzten Beitrag raus, dass wir ggfls. den Wunsch "Verzicht auf Treppe an der Haustür" ernsthaft überdenken sollten, um uns hier nicht bzgl. vieler sinnvoller Varianten zu stark einzuschränken?
Um es kurz zu machen sind unsere wesentlichen Anforderungen nämlich aus unserer Sicht nicht zu kompliziert:
- 4-köpfige Familie mit einem festen Home Office
- 1,5 Geschosser mit Satteldach ohne Keller auf flachem & nahezu quadratischen Grundstück (21m breit/22m lang; Straße im Nord-Osten)
- keine aufwändige Architektur (Galerie, zig Vorsprünge etc)
- Wohnen/Essen/Kochen nicht komplett offen direkt nebeneinander; etwas Abgrenzung gewünscht
- vernünftigen Stauraum im EG, um Garderobe, Waschen etc. für Familienalltag unterzubringen
- Treppe möglichst nicht im Schmutzbereich
Höre ich aus deinem letzten Beitrag raus, dass wir ggfls. den Wunsch "Verzicht auf Treppe an der Haustür" ernsthaft überdenken sollten, um uns hier nicht bzgl. vieler sinnvoller Varianten zu stark einzuschränken?
Hallo zusammen,
Wir haben die vergangenen zwei Wochen genutzt und Standardgrundrisse gewälzt, um hier eine Idee zu entwickeln, die wir dann mit dem Architekten diskutieren und als Basis nutzen können. Sehr gerne würden wir vorab von euch einmal Feedback einholen, ob das grundsätzlich in eine sinnvolle Richtung geht.
Wichtig

Gedanken zum Entwurf

Erdgeschoss - Variante 1: Kochen/Essen/Wohnen in Reihe

Erdgeschoss - Variante 2: Kochen/Essen/Wohnen über Eck

Fragen an euch
Viele Grüße
Malte
Wir haben die vergangenen zwei Wochen genutzt und Standardgrundrisse gewälzt, um hier eine Idee zu entwickeln, die wir dann mit dem Architekten diskutieren und als Basis nutzen können. Sehr gerne würden wir vorab von euch einmal Feedback einholen, ob das grundsätzlich in eine sinnvolle Richtung geht.
Wichtig
- Es ist kein fertiger Grundriss, sondern ein Grobentwurf, bei dem es uns grundsätzlich um Machbarkeit und sinnvolle Anordnung/Aufteilung der Räume geht. Fenster, Türen, Rastermaße und weitere Details sind daher nicht vollständig bedacht und auch nicht Ziel unserer Anfrage.
- Vollständiger Fragebogen in Beitrag #1
- 4-köpfige Familie mit einem festen Home Office
- 1 Vollgeschoss mit Satteldach ohne Keller auf flachem & nahezu quadratischen Grundstück (21m breit/22m lang; Straße im Nord-Osten)
- keine aufwändige Architektur (Galerie, zig Vorsprünge etc)
- Wohnen/Essen/Kochen nicht komplett offen direkt nebeneinander; etwas Abgrenzung gewünscht
- vernünftigen Stauraum im EG, um Garderobe, Waschen etc. für Familienalltag unterzubringen
- Treppe möglichst nicht im Schmutzbereich
Gedanken zum Entwurf
- Grundriss basiert auf zahlreichen sehr ähnlichen Standardgrundrissen
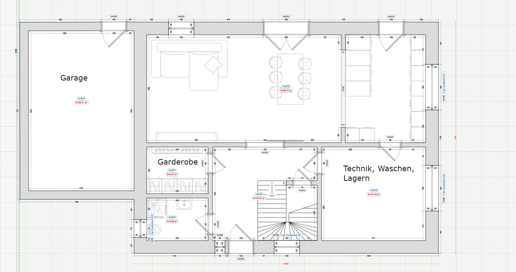
- Haus rechteckig mit ca. 12,00m*9,15m und parallel zur Straße um den Garten im Süden zu maximieren.
- Effizientes Obergeschoss, wenig Flurfläche und alle Räume in für uns sinnvoller Größe angeordnet
- Durch Vorgabe 1 Vollgeschoss, steiles Satteldach mit ~40% Neigung und ~1m Kniestock (kann in der Software nicht dargestellt werden). Im Büro Nutzung eines Zwerchgiebels, um dieses sinnvoll ohne Dachschräge nutzbar zu machen.
- 12m Hausbreite notwendig, damit im Eltern-Schlafzimmer 3m Schrank gestellt werden können
- Fensterplanung nicht beachten, es ist klar, dass ggfls. Dachflächenfenster für vernünftig Licht hinzukommen müssten
Erdgeschoss - Variante 1: Kochen/Essen/Wohnen in Reihe
- Kochen/Essen/Wohnen in Reihe alles zum Garten ausgerichtet (Herausforderung: Küche leicht abgrenzen, damit nicht ein zu "schlauchiger" Allraum entsteht)
- Großer HTR, da hier neben Technik auch Vorräte sowie Waschen inkl. Trocknen stattfinden soll
Erdgeschoss - Variante 2: Kochen/Essen/Wohnen über Eck
- Kochen/Essen/Wohnen über Eck. Küche zum Garten macht aus unserer Sicht Sinn, könnte aber auch mit Wohnen getauscht werden.
- HTR zum Garten nicht optimal (bspw. Anschlüsse), aber anders nicht sinnvoll platzierbar
Fragen an euch
- Seht ihr die Grundrissideen als generell sinnvoll an oder gibt es klare KO-Kriterien?
- Wir stellen fest, dass viele Standardgrundrisse in vergleichbarer Größe ins EG noch ein Büro bringen und dafür HTR und Garderobe sehr klein gestalten. Ohne Keller sind wir aber der Meinung im EG diese Fläche für Technik, Waschen, Trocknen, Garderobe für die ganze Familie, als auch Lagerfläche für Küche zu benötigen. Wir sehen es daher eher sinnvoll an hier die Fläche zu investieren, im OG auf eine separate Ankleide zu verzichten und das Büro unterzubringen. Sind wir hier komplett auf dem Holzweg, weil das scheinbar im Standard niemand so macht?
- Gibt es klare Gründe eine der beiden Anordnungen (Allraum in Reihe vs. über Eck) zu bevorzugen? Wir sind uns selber total unschlüssig, ob wir alles Richtung Garten ausrichten sollten (Herausforderung: optische Abtrennung der Bereiche voneinander und Vermeidung "Schlauchgefühl") oder bewusst doch entweder Wohnen oder Küche über Eck nach vorne zur Straße bringen sollten.
Viele Grüße
Malte
M
MachsSelbst05.12.25 19:10Irgendwie ist es immer dasselbe. Speisekammer unsinnig, viel Platz für 2 Schränke am Ende. HAR und(!) Hauswirtschaftsraum viel zu groß, Tanzflächen in der Mitte. Küche und Wohnzimmer dagegen recht klein.
Oben die Kinderzimmer zu klein, das Büro zu groß, Abstellnische vor dem Bad streichen und Bad vergrößern oder das Kinderzimmer.. und die Diele oben. 20m² irrsinnig groß für meinen Geschmack, diese riesige Fläche neben der Treppe... wofür?
Macht das Schlafzimmer breiter, nicht so "hoch" und dafür das zweite Kinderzimmer auch größer.
Das mag nach tollem Design aussehen, aber im Alltag braucht das kein Mensch, große Kinderzimmer, großes Wohnzimmer, große Küche braucht man aber schon.
Oben die Kinderzimmer zu klein, das Büro zu groß, Abstellnische vor dem Bad streichen und Bad vergrößern oder das Kinderzimmer.. und die Diele oben. 20m² irrsinnig groß für meinen Geschmack, diese riesige Fläche neben der Treppe... wofür?
Macht das Schlafzimmer breiter, nicht so "hoch" und dafür das zweite Kinderzimmer auch größer.
Das mag nach tollem Design aussehen, aber im Alltag braucht das kein Mensch, große Kinderzimmer, großes Wohnzimmer, große Küche braucht man aber schon.
-Malte- schrieb:
Fragen an euch
- [1]Seht ihr die Grundrissideen als generell sinnvoll an oder gibt es klare KO-Kriterien?
- [2]Wir stellen fest, dass viele Standardgrundrisse in vergleichbarer Größe ins EG noch ein Büro bringen und dafür HTR und Garderobe sehr klein gestalten. Ohne Keller sind wir aber der Meinung im EG diese Fläche für Technik, Waschen, Trocknen, Garderobe für die ganze Familie, als auch Lagerfläche für Küche zu benötigen. Wir sehen es daher eher sinnvoll an hier die Fläche zu investieren, im OG auf eine separate Ankleide zu verzichten und das Büro unterzubringen. Sind wir hier komplett auf dem Holzweg, weil das scheinbar im Standard niemand so macht?
- [3]Gibt es klare Gründe eine der beiden Anordnungen (Allraum in Reihe vs. über Eck) zu bevorzugen? Wir sind uns selber total unschlüssig, ob wir alles Richtung Garten ausrichten sollten (Herausforderung: optische Abtrennung der Bereiche voneinander und Vermeidung "Schlauchgefühl") oder bewusst doch entweder Wohnen oder Küche über Eck nach vorne zur Straße bringen sollten.
Wir würden uns freuen weitere Gedankenanstöße von euch zu bekommen.
Viele Grüße
MalteMein Kopf hat ein großes Problem: Die Ausrichtung des Technikraums. In vielen Baugebieten muss der Technikraum zur Straße ausgerichtet sein. Das beeinflusst natürlich stark den Grundriss.Daher zu den Fragen:
1.
Was mir zu Variante 2 einfällt (Fenster ignoriert):
-> ich würde den Zugang zum Gäste-WC nach "oben" packen (aus dem Schmutzbereich heraus), dafür direkt neben der Tür einen kleinen Garderobenbereich schaffen. So ganz gefällt mir das Ende des Flurs vor der Treppe nicht, mir fällt da jedoch keine gute Lösung spontan ein.
Was mir zu Variante 1 einfällt:
-> gefällt mir weniger gut. Technik/Lagerraum zu viel nicht nutzbare Tanzfläche in der Mitte. Garderobe per Tür separiert (würde ich nicht machen). Zugang WC über Schmutzbereich nicht veränderbar.
Was mir zum Obergeschoss einfällt:
-> Hier ist ja die zentrale Frage, wie das Haus ausgerichtet wird! Ich würde Kinderzimmer in den Süden packen (beide). Badezimmer und Elternschlafzimmer in den Norden.
-> Büro zwischen den Kinderzimmern muss man auch mögen.
2. Viele Grundrisse haben ein Büro oder Gästezimmer unten, weil das viele Leute wünschen. Individuelle Bedürfnisse > allgemeine Bedürfnisse. Laut Fragebögen braucht ihr kein Büro / Gästezimmer unten, weshalb also eins bauen?
3. Ja, es gibt einen Grund: Persönliche Präferenz!
Das meine ich nicht als Scherz. Es gibt Leute, die mögen es gerade. Es gibt Leute, die mögen es separiert. Es gibt Leute, die mögen die L-Form.
Natürlich wirkt sich alles auf den Rest des Grundrisses aus. Aber... hey, persönliche Präferenz! Schaut euch da mal in entsprechenden Musterhäusern um und guckt dann, was euch mehr anspricht.
Ähnliche Themen