ᐅ Planung Einfamilienhaus, 4-köpfige Familie Westmünsterland, Erstentwurf Architekt
Erstellt am: 20.10.25 12:17
Danke schon mal für euer Feedback und schön zu hören, dass wir als mittlerweile "betriebsblinde" offenbar keine groben Schnitzer übersehen.
Thema Treppe: Ich hätte liebend gerne statt der halbgewendelten eine Podesttreppe. Passt platztechnisch in den Grundriss so aber aus meiner Sicht leider nicht rein (da bräuchten wir ja doch mindestens ~80cm mehr Treppentiefe).
Thema Tür HTR/Hauswirtschaftsraum: Haben wir auch überlegt, aber das würde noch mehr Wandfläche klauen. Wir haben durch die beiden Fenster zur Straße vorne schon viel Fläche, die nicht gut genutzt werden kann. Gleichzeitig glauben wir aber, dass wir auf die Fenster zur Straße nicht verzichten können, ohne dass die Hausfront "komisch" aussieht, weil dann nur links von WC und Garderobe Fenster verbleiben. Alternativvorschläge sind gerne willkommen!
Thema Treppe: Ich hätte liebend gerne statt der halbgewendelten eine Podesttreppe. Passt platztechnisch in den Grundriss so aber aus meiner Sicht leider nicht rein (da bräuchten wir ja doch mindestens ~80cm mehr Treppentiefe).
Thema Tür HTR/Hauswirtschaftsraum: Haben wir auch überlegt, aber das würde noch mehr Wandfläche klauen. Wir haben durch die beiden Fenster zur Straße vorne schon viel Fläche, die nicht gut genutzt werden kann. Gleichzeitig glauben wir aber, dass wir auf die Fenster zur Straße nicht verzichten können, ohne dass die Hausfront "komisch" aussieht, weil dann nur links von WC und Garderobe Fenster verbleiben. Alternativvorschläge sind gerne willkommen!
Danke für den Vorschlag, ypg! Sagt uns bzgl. Garderobe und auch Außenansicht leider nicht zu. Ich denke wir verzichten auf die Türe im HTR/Hauswirtschaftsraum und bleiben bei den vier kleinen Fenstern an der Frontfassade.
Aktuell treibt mich ein Gedanke um:
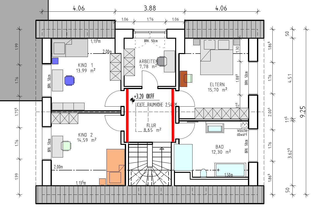
Im Dachgeschoss ist momentan ein kleiner Versatz von den Treppenaußenwänden zu den Zimmern geplant (durchgängige Wand in Bezug aufs Büro). Theoretisch könnte man ja sicherlich den Versatz auch streichen - ich habe den denkbaren alternativen Wandverlauf mal rot skizziert. Kind 2 hätte dadurch keinen nervigen Wandvorsprung mehr, dafür wäre bei Kind 1 beim reinkommen rechts ein kleiner Vorsprung. Im Elternschlafzimmer würde die Tür auf jeden Fall vor einen 3m Schrank laufen können (aktuell sonst recht knapp alles). Gleichzeitig würden alle Zimmer minimal an Fläche gewinnen. Nachteil ist, dass man beim Austreten aus dem Bad recht nah an der ersten Treppenstufe ist. Haben wir aktuell aber auch und sehen das nicht als so kritisch an. Klar, Flur würde noch etwas kleiner, aber das ist eh nur Durchgangsbereich.
Übersehen wir etwas? Aus statischen Gründen dürfte das ja eigentlich egal sein.

Aktuell treibt mich ein Gedanke um:
Im Dachgeschoss ist momentan ein kleiner Versatz von den Treppenaußenwänden zu den Zimmern geplant (durchgängige Wand in Bezug aufs Büro). Theoretisch könnte man ja sicherlich den Versatz auch streichen - ich habe den denkbaren alternativen Wandverlauf mal rot skizziert. Kind 2 hätte dadurch keinen nervigen Wandvorsprung mehr, dafür wäre bei Kind 1 beim reinkommen rechts ein kleiner Vorsprung. Im Elternschlafzimmer würde die Tür auf jeden Fall vor einen 3m Schrank laufen können (aktuell sonst recht knapp alles). Gleichzeitig würden alle Zimmer minimal an Fläche gewinnen. Nachteil ist, dass man beim Austreten aus dem Bad recht nah an der ersten Treppenstufe ist. Haben wir aktuell aber auch und sehen das nicht als so kritisch an. Klar, Flur würde noch etwas kleiner, aber das ist eh nur Durchgangsbereich.
Übersehen wir etwas? Aus statischen Gründen dürfte das ja eigentlich egal sein.
-Malte- schrieb:
Übersehen wir etwas?Den Lichtschalter neben der Treppe.
Ob Vor- oder Rücksprung. Er ist minimal und kaum negativ wahrnehmbar.
Ähnliche Themen