ᐅ Planung Einfamilienhaus, 4-köpfige Familie Westmünsterland, Erstentwurf Architekt
Erstellt am: 20.10.25 12:17
-
-Malte-Ich habe gerade einmal versucht den Sonnenverlauf grob für unser Grundstück zu simulieren. Gar nicht so einfach als Laie, wenn man versucht noch nicht vorhandene Straßen/Bebauung über online verfügbare Overlays zu legen. Nicht perfekt, aber hab mal für Mai, Juli und Oktober Sonnenverlauf von Aufgang bis Untergang dargestellt.
Ganz hilfreich das nochmal direkt vor Augen zu haben. Zeigt klar, dass wenn wir den Fokus eher auf Nachmittags-/Abendsonne legen, wir - wie von euch genannt - die Garage und Wirtschaftsräume eher Richtung Osten legen sollten. Falls Garage doch im Westen platziert werden würde, sollten wir auf jeden Fall Abstand davon nehmen diese so weit in den Garten überstehen zu lassen.



Ganz hilfreich das nochmal direkt vor Augen zu haben. Zeigt klar, dass wenn wir den Fokus eher auf Nachmittags-/Abendsonne legen, wir - wie von euch genannt - die Garage und Wirtschaftsräume eher Richtung Osten legen sollten. Falls Garage doch im Westen platziert werden würde, sollten wir auf jeden Fall Abstand davon nehmen diese so weit in den Garten überstehen zu lassen.
Wir haben in der Zwischenzeit eine zweite Runde mit unserem Architekten gedreht. Er hat einen neuen Grundriss skizziert, der aus unserer Sicht aber wesentliche Knackpunkte hat. Hierzu hätten wir gerne eure Meinung, um zu schauen, wie wir die Entwurfsplanung in die richtige Richtung schieben können.
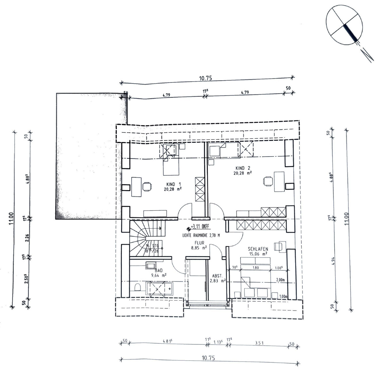
Zweiter Entwurf
Alternativen
Wir würden uns freuen, wenn ihr uns weitere Gedankenanstöße geben könntet.
Viele Grüße
Malte






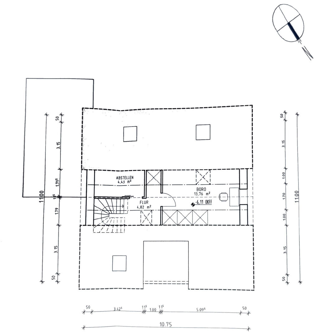
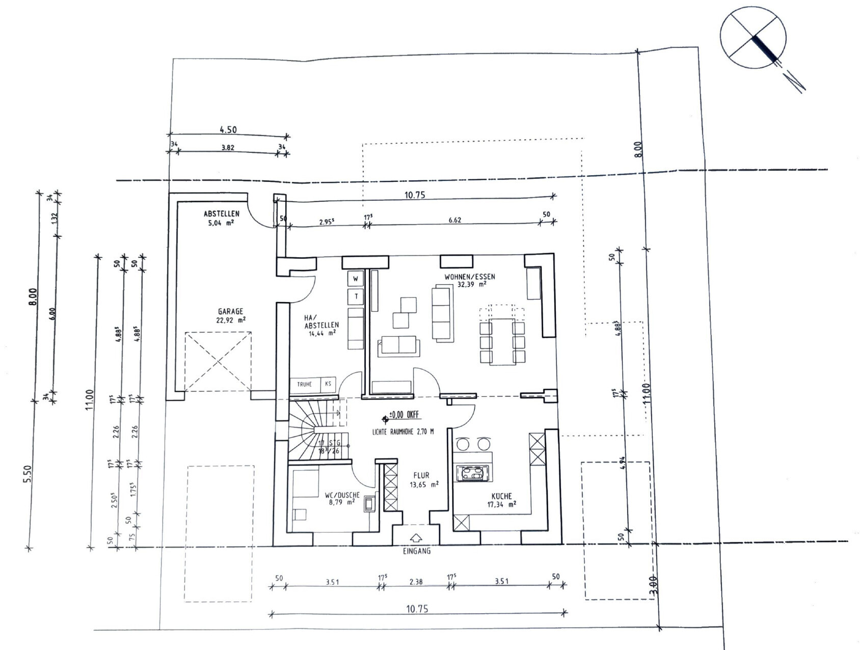
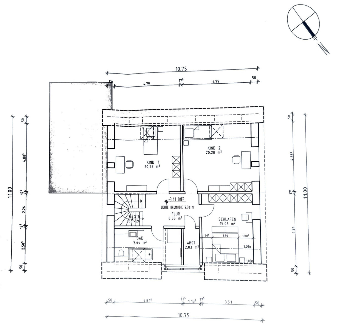
Zweiter Entwurf
- Wesentliche Anpassungen
- Einbezug des Dachgeschosses für Büronutzung
- Verzicht auf vorgesprungene Zwerchgiebel/Erker
- Treppenantritt nicht im Schmutzbereich
- Ausrichtung Wohnräume nach Südwesten
- Probleme, die wir sehen
- Zu großer Grundriss (insgesamt 186m² Wohnfläche bei Einbezug WF Dachgeschoss)
- EG grundsätzlich OK, wobei großes Bad nicht notwendig
- OG passt nicht: Kinderzimmer deutlich zu groß, Bad durch Treppenplatzierung schlauchig unter Dachschräge, Zwerchgiebel nicht sinnvoll
- Wir bezweifeln, dass sich die Probleme im OG durch rumrücken lösen lassen. Das Haus müsste eigentlich von den Außenmaßen kleiner gestaltet werden, was die Probleme im OG durch die Treppenplatzierung (insbesondere schlauchiges Bad) aber noch verstärkt.
- Schön ist, dass das vorhandene Dachgeschoss genutzt wird - es führt aber letztlich nicht dazu, dass die Außenmaße des Hauses reduziert werden.
Alternativen
- Wir überlegen daher nach Alternativen, die sinnvoll sein könnten und einen Entwurf in Richtung unserer Vorstellungen bringen könnten.
- Grundsätzlich glauben wir, dass wir mit einem Standardgrundriss in Richtung Rensch-Haus "Lichthaus 152", "Rensch-Haus Life 159" oder "Rensch-Haus Clou 159" glücklich wären.
- Ein rechteckiger Grundriss mit ~11m*9m Grundfläche
- 1 Vollgeschoss (Vorgabe Bebauungsplan), steile Dachneigung (~45%), so dass man mit einem Drempel von ~1m hinkommen sollte
- Zweifach gewendelte Treppe mittig der Traufseite mit Abstand zum Hauseingang
- EG: Wohnen/Essen/Kochen über Eck, großer HTR, Garderobe und kleines Duschbad
- OG: 2 Kinderzimmer, 1 Elternzimmer, Büro, Badezimmer
- DG: reine Abstellfläche mit Zugang über Einschubtreppe
- Wir haben mal zwei Varianten mit unterschiedlichem Eingang (einmal seitlich, einmal von vorne) grob skizziert, wie wir sie uns vorstellen könnten.
Wir würden uns freuen, wenn ihr uns weitere Gedankenanstöße geben könntet.
Viele Grüße
Malte
Soll das ein Witz sein? Habe ich etwas verpasst? Der Architekt kann nix.
Ich sehe bei diesem Entwurf mind. 50cm weniger seitlich wie auch.. warte.. ca. 100cm in der Tiefe, die man einsparen kann, ohne nennenswert Einbußen im Nutzen und Funktion zu bekommen. Dach Dachgeschoss mal außen vor.
Allerdings sehe ich jetzt spontan auch den Fehler, dass man das Haus recht tief plant und durch den (immer mittigen?) Eingang alles recht weitläufig wird. Der seitliche Eingang ist besser.
Jeder GU hat so ein Typenhaus im Angebot. Für einen Bruchteil an Planungskosten, weil standardisiert.
-Malte- schrieb:.. und wie nennst man das, was er da immer schabloniert?
Verzicht auf vorgesprungene Zwerchgiebel/Erker
Ich sehe bei diesem Entwurf mind. 50cm weniger seitlich wie auch.. warte.. ca. 100cm in der Tiefe, die man einsparen kann, ohne nennenswert Einbußen im Nutzen und Funktion zu bekommen. Dach Dachgeschoss mal außen vor.
Allerdings sehe ich jetzt spontan auch den Fehler, dass man das Haus recht tief plant und durch den (immer mittigen?) Eingang alles recht weitläufig wird. Der seitliche Eingang ist besser.
Jeder GU hat so ein Typenhaus im Angebot. Für einen Bruchteil an Planungskosten, weil standardisiert.
Wir sind nach dem nun erhaltenen Vorschlag vom Architekten gerade ziemlich enttäuscht. Unsere Einschätzung war ebenfalls, dass der Entwurf in der Form einfach fachlich schlecht ist und so keinen Sinn ergibt. Das wurde hier ja nun auch nochmal bestätigt. Ja, wir hatten in einem Gespräch erwähnt, dass man ja drüber nachdenken könnte das Dachgeschoss als Büro mit eiinzubeziehen. Dabei aber auch der klare Hinweis, nur wenn das überhaupt Sinn ergibt und wir das als Laien schlecht einschätzen können. Uns scheint als wurde nun auf Teufel komm raus versucht das DG anzubinden. Als Architekt hätte ich dann aber gesagt, "ne macht vermutlich keinen Sinn" bzw. in dieser Form den Grundrissentwurf gar nicht erst zur Diskussion gestellt sondern verworfen und andere Lösungen gesucht.
Als Wünsche/Anforderungen hat sich bei uns ein wenig rauskristallisiert, dass wir den Treppenantritt nicht im Schmutzbereich wünschen und zudem keinen "Schlauch" aus Wohnen/Essen/Kochen wünschen. Das schränkt es dann doch ein bisschen ein, weil Treppenantritt vor Haustür gefühlt in 3/4 aller Grundrisse gesetzt ist. Der Grundriss von Tolentino ist bspw. eigentlich auch recht passend - auch weil Wohnen/Essen/Kochen alles Richtung Südgarten gehen würde, aber es ist halt ein großer Allraum, der die Bereiche nicht voneinander abgrenzt. Vermutlich ist Wohnen/Essen/Kochen über Eck wie beim zuvor verlinkten Alto 650 daher für uns besser.
ypg schrieb:Wir schauen am Wochenende nochmal Standardgrundrisse rauf und runter. Wir sind auch der Meinung, dass man das Rad bei unseren Anforderungen keinesfalls neu erfinden muss. Einen 1,5 Geschosser für 4-köpfige Familie plus Büro gibt es ja oft. Du hast ja zwei Beispiele nochmal verlinkt.
Jeder GU hat so ein Typenhaus im Angebot. Für einen Bruchteil an Planungskosten, weil standardisiert.
Als Wünsche/Anforderungen hat sich bei uns ein wenig rauskristallisiert, dass wir den Treppenantritt nicht im Schmutzbereich wünschen und zudem keinen "Schlauch" aus Wohnen/Essen/Kochen wünschen. Das schränkt es dann doch ein bisschen ein, weil Treppenantritt vor Haustür gefühlt in 3/4 aller Grundrisse gesetzt ist. Der Grundriss von Tolentino ist bspw. eigentlich auch recht passend - auch weil Wohnen/Essen/Kochen alles Richtung Südgarten gehen würde, aber es ist halt ein großer Allraum, der die Bereiche nicht voneinander abgrenzt. Vermutlich ist Wohnen/Essen/Kochen über Eck wie beim zuvor verlinkten Alto 650 daher für uns besser.
Ähnliche Themen