ᐅ Neubau Einfamilienhaus ca. 190m² mit Doppelgarage ohne Keller - Entwurf Nr. 3
Erstellt am: 19.02.20 20:20
T
Thorsten78
Hallo zusammen,
wir haben gerade ein Grundstück erworben und sind nun bei der Hausplanung angelangt.
Nachdem die ersten beiden Eigenversuche bei der Planung nicht so erfolgreich waren, haben wir uns nun mit einem Bauingenieur getroffen und einen Grundriss nach unseren Bedürfnissen entworfen.
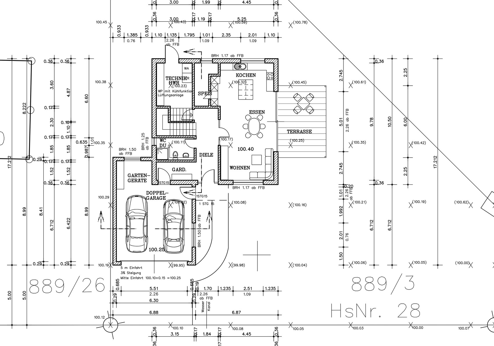
Diesen Entwurf würde ich nun gerne zur Diskussion stellen.
Wir haben uns bereits für einen regionalen Bauträger entschieden. Geplant ist ein Holzständerhaus mit Massivholzwänden innen und einer Holzständerwand mit eingeblasener Holzfaserdämmung außen.
Das ganze Haus soll am Ende den Kfw 40+ Standard erreichen.
Bebauungsplan/Einschränkungen
Größe des Grundstücks 760m²
Hang nein, Höhenunterschied Max. 90cm
Grundflächenzahl 0,3 (wurde aber durch vorherige Bauten nicht eingehalten)
Geschossflächenzahl 0,6 (wurde aber durch vorherige Bauten nicht eingehalten)
Baufenster, Baulinie und -grenze siehe Anhang
Randbebauung ja, Garage
Anzahl Stellplatz zwei pro Grundstück, min. 5m vor der Garage
Geschossigkeit Kniestock Max. 0,50m (wurde aber durch vorherige Bauten nicht eingehalten)
Dachform Satteldach 30-38°, Walmdach, Pult-/Flachdach 25%
Stilrichtung ---
Ausrichtung ---
Maximale Höhen/Begrenzungen ---
weitere Vorgaben naturrote Ziegeln
Anforderungen der Bauherren
Wir sind eine kleine Familie, zwei Erwachsene 41 Jahre und ein Kind 6 Jahre. Die Familienplanung ist abgeschlossen.
Wir hätten gerne ein Einfamilienhaus mit zwei Vollgeschossen, ohne Keller, mit Doppelgarage und Abstellraum als Kellerersatz.
Die Architektur sollte modern, hell und mit offenen Wohn-/ Ess-/ Küchenbereich sein.
Stilrichtung, Dachform, Gebäudetyp
- Modern
- als Dachform favorisieren wir im Moment ein Satteldach mit 22° Dachneigung.
- Ebenso würde uns ein Zeltdach gefallen, aber diese Dachform ist leider für eine Photovoltaikanlage nicht so Ideal.
- große Fenster für viel Licht im Haus, inkl. Raffstores für die Beschattung
Keller, Geschosse
nein, zwei Vollgeschosse
Anzahl der Personen, Alter
2 Erwachsene 41 Jahre und ein Kind 6 Jahre
Raumbedarf im EG, OG
Gesamtwohnfläche 180-200m²
Büro: Familiennutzung oder Homeoffice?
Büro im EG oder OG
Schlafgäste pro Jahr
keine geplant
offene oder geschlossene Architektur
offen
konservativ oder moderne Bauweise
modern
offene Küche, Kochinsel
ja, ja
Anzahl Essplätze
esstisch mit Platz für 6-8 Personen
Kamin
Nein
Musik/Stereowand
wenn möglich Multiroom Audio
Balkon, Dachterrasse
Nein
Garage, Carport
Doppelgarage + Abstellraum als Kellerersatz
Nutzgarten, Treibhaus
pflegeleichter Garten, Rasen mit Bewässerungsanlage und evtl. Hochbeete
weitere Wünsche/Besonderheiten:
Photovoltaik inkl. Batteriespeicher, KNX Smarthome
Hausentwurf
Von wem stammt die Planung:
-Planer eines Bauunternehmens
Bauingenieur
-Architekt
nein
-Do-it-Yourself
Was gefällt besonders? Warum?
trockener Zugang von Garage zum Haus,
geräumiger Wohnbereich mit schöner Terrasse
Was gefällt nicht? Warum?
Trotz kleiner Kompromisse alles in Ordnung
Preisschätzung lt Architekt/Planer:
440.000 Euro (Haus KFW 40+ inkl. Doppelgarage
Persönliches Preislimit komplett:
580.000 Euro inkl. Grundstück (65.000 Euro), Außenanlage, Küche, Einrichtung
favorisierte Heiztechnik:
Wärmepumpe und zentrale Wohnraumbelüftung
Wenn Ihr verzichten müsst, auf welche Details/Ausbauten
-könnt Ihr verzichten:
auf SmartHome und Batteriespeicher
-könnt Ihr nicht verzichten:
zwei Vollgeschosse, Doppelgarage, offene moderne Bauweise
Warum ist der Entwurf so geworden, wie er jetzt ist?
Wir wollten das bestmögliche aus dem Grundstück herausholen.
Grundsätzlich wollten wir die Terrasse gerne Richtung SW ausrichten, doch da ist leider die Straße und ich möchte nicht direkt auf dem Präsentierteller sitzen.
Zudem ist der Westen die Wetterseite mit viel Wind.
Was macht ihn in Euren Augen besonders gut oder schlecht?
???
Was ist die wichtigste/grundlegende Frage zum Grundriss in 130 Zeichen zusammengefasst?
Was haltet Ihr von dem Entwurf bzw. was könnte man anders machen?
Das Bad würden wir evtl. gerne noch umgestalten. T-Mauer?
Würdet ihr von der Fensteranordnung etwas anders machen?
Wir wären euch für jede Idee bzw. konstruktive Kritik sehr dankbar.



wir haben gerade ein Grundstück erworben und sind nun bei der Hausplanung angelangt.
Nachdem die ersten beiden Eigenversuche bei der Planung nicht so erfolgreich waren, haben wir uns nun mit einem Bauingenieur getroffen und einen Grundriss nach unseren Bedürfnissen entworfen.
Diesen Entwurf würde ich nun gerne zur Diskussion stellen.
Wir haben uns bereits für einen regionalen Bauträger entschieden. Geplant ist ein Holzständerhaus mit Massivholzwänden innen und einer Holzständerwand mit eingeblasener Holzfaserdämmung außen.
Das ganze Haus soll am Ende den Kfw 40+ Standard erreichen.
Bebauungsplan/Einschränkungen
Größe des Grundstücks 760m²
Hang nein, Höhenunterschied Max. 90cm
Grundflächenzahl 0,3 (wurde aber durch vorherige Bauten nicht eingehalten)
Geschossflächenzahl 0,6 (wurde aber durch vorherige Bauten nicht eingehalten)
Baufenster, Baulinie und -grenze siehe Anhang
Randbebauung ja, Garage
Anzahl Stellplatz zwei pro Grundstück, min. 5m vor der Garage
Geschossigkeit Kniestock Max. 0,50m (wurde aber durch vorherige Bauten nicht eingehalten)
Dachform Satteldach 30-38°, Walmdach, Pult-/Flachdach 25%
Stilrichtung ---
Ausrichtung ---
Maximale Höhen/Begrenzungen ---
weitere Vorgaben naturrote Ziegeln
Anforderungen der Bauherren
Wir sind eine kleine Familie, zwei Erwachsene 41 Jahre und ein Kind 6 Jahre. Die Familienplanung ist abgeschlossen.
Wir hätten gerne ein Einfamilienhaus mit zwei Vollgeschossen, ohne Keller, mit Doppelgarage und Abstellraum als Kellerersatz.
Die Architektur sollte modern, hell und mit offenen Wohn-/ Ess-/ Küchenbereich sein.
Stilrichtung, Dachform, Gebäudetyp
- Modern
- als Dachform favorisieren wir im Moment ein Satteldach mit 22° Dachneigung.
- Ebenso würde uns ein Zeltdach gefallen, aber diese Dachform ist leider für eine Photovoltaikanlage nicht so Ideal.
- große Fenster für viel Licht im Haus, inkl. Raffstores für die Beschattung
Keller, Geschosse
nein, zwei Vollgeschosse
Anzahl der Personen, Alter
2 Erwachsene 41 Jahre und ein Kind 6 Jahre
Raumbedarf im EG, OG
Gesamtwohnfläche 180-200m²
Büro: Familiennutzung oder Homeoffice?
Büro im EG oder OG
Schlafgäste pro Jahr
keine geplant
offene oder geschlossene Architektur
offen
konservativ oder moderne Bauweise
modern
offene Küche, Kochinsel
ja, ja
Anzahl Essplätze
esstisch mit Platz für 6-8 Personen
Kamin
Nein
Musik/Stereowand
wenn möglich Multiroom Audio
Balkon, Dachterrasse
Nein
Garage, Carport
Doppelgarage + Abstellraum als Kellerersatz
Nutzgarten, Treibhaus
pflegeleichter Garten, Rasen mit Bewässerungsanlage und evtl. Hochbeete
weitere Wünsche/Besonderheiten:
Photovoltaik inkl. Batteriespeicher, KNX Smarthome
Hausentwurf
Von wem stammt die Planung:
-Planer eines Bauunternehmens
Bauingenieur
-Architekt
nein
-Do-it-Yourself
Was gefällt besonders? Warum?
trockener Zugang von Garage zum Haus,
geräumiger Wohnbereich mit schöner Terrasse
Was gefällt nicht? Warum?
Trotz kleiner Kompromisse alles in Ordnung
Preisschätzung lt Architekt/Planer:
440.000 Euro (Haus KFW 40+ inkl. Doppelgarage
Persönliches Preislimit komplett:
580.000 Euro inkl. Grundstück (65.000 Euro), Außenanlage, Küche, Einrichtung
favorisierte Heiztechnik:
Wärmepumpe und zentrale Wohnraumbelüftung
Wenn Ihr verzichten müsst, auf welche Details/Ausbauten
-könnt Ihr verzichten:
auf SmartHome und Batteriespeicher
-könnt Ihr nicht verzichten:
zwei Vollgeschosse, Doppelgarage, offene moderne Bauweise
Warum ist der Entwurf so geworden, wie er jetzt ist?
Wir wollten das bestmögliche aus dem Grundstück herausholen.
Grundsätzlich wollten wir die Terrasse gerne Richtung SW ausrichten, doch da ist leider die Straße und ich möchte nicht direkt auf dem Präsentierteller sitzen.
Zudem ist der Westen die Wetterseite mit viel Wind.
Was macht ihn in Euren Augen besonders gut oder schlecht?
???
Was ist die wichtigste/grundlegende Frage zum Grundriss in 130 Zeichen zusammengefasst?
Was haltet Ihr von dem Entwurf bzw. was könnte man anders machen?
Das Bad würden wir evtl. gerne noch umgestalten. T-Mauer?
Würdet ihr von der Fensteranordnung etwas anders machen?
Wir wären euch für jede Idee bzw. konstruktive Kritik sehr dankbar.
Thorsten78 schrieb:
Was findet ihr beim Kinderzimmer besser?2 Kinderzimmer, wo das Kind jedes Mal über den Flur muss, um das Zimmer zu wechseln, finde ich unpraktisch. Es ist schön, dass ihr eurem Kind so viel Platz gönnen möchtet. Aber was soll es denn mit über 30m² anfangen? Ich denke auch nicht, dass zwei Räume nötig sind. Zwackt doch da was ab, dann habt ihr euren Abstellraum wieder.T
Thorsten7821.02.20 10:49Nochmal alles von Null beginnen möchten wir nicht, da uns der Grundriss schon gefällt.
Selbstverständlich muss man immer mit einigen Kompromissen rechnen. Das perfekte Haus gibt es nicht. Zumindest nicht wenn man auf das liebe Geld achten muss.
Ich wollte vielleicht nur hier und da noch ein paar kleine Änderungen, falls sinnvoll.
Der lange gerade Wohnraum war bewusst so gewählt und soll auch so bleiben. Ebenso die gerade Treppe.
Bzgl. Kinderzimmer würden wir noch eine Schiebetür als Verbindung der beiden Zimmer mit einplanen.
Der Weg über den Flur würde da natürlich wenig Sinn machen.
Selbstverständlich muss man immer mit einigen Kompromissen rechnen. Das perfekte Haus gibt es nicht. Zumindest nicht wenn man auf das liebe Geld achten muss.
Ich wollte vielleicht nur hier und da noch ein paar kleine Änderungen, falls sinnvoll.
Der lange gerade Wohnraum war bewusst so gewählt und soll auch so bleiben. Ebenso die gerade Treppe.
Bzgl. Kinderzimmer würden wir noch eine Schiebetür als Verbindung der beiden Zimmer mit einplanen.
Der Weg über den Flur würde da natürlich wenig Sinn machen.
Ein separates Spielzimmer hat was. Hat unsere Tochter unfreiwillig auch bekommen. Aber hier sind es 30 qm mehr als in vielen Häusern 2 Kinder haben. Da können locker 5 weg.
Gerader Allraum warum nicht, aber keine 4 m breit viel zu schmal.
Kann mir die Terrasse mit den Seitenwänden nicht recht vorstellen. Sitzt gerade an meinem Tisch und jedes Mal wenn der Blick rausgeht, hängt er an der Wand.
Warum eine gerade Treppe? Ist hier kein Design Objekt und macht gerade im EG einiges kaputt. Habt ihr sie mal um 90 Grad gedreht oder im Allraum integriert und den dann breiter.
Euer Haus ist groß für 3 Personen und trotzdem wird Enge erzeugt.
Gerader Allraum warum nicht, aber keine 4 m breit viel zu schmal.
Kann mir die Terrasse mit den Seitenwänden nicht recht vorstellen. Sitzt gerade an meinem Tisch und jedes Mal wenn der Blick rausgeht, hängt er an der Wand.
Warum eine gerade Treppe? Ist hier kein Design Objekt und macht gerade im EG einiges kaputt. Habt ihr sie mal um 90 Grad gedreht oder im Allraum integriert und den dann breiter.
Euer Haus ist groß für 3 Personen und trotzdem wird Enge erzeugt.
haydee schrieb:
Sitzt gerade an meinem Tisch und jedes Mal wenn der Blick rausgeht, hängt er an der Wand.Nicht nur an den Wänden. Darüber soll ein Flachdach. Durchs schöne Panoramafenster fällt noch nicht einmal Licht, geschweige denn dass man in den Himmel schauen kann
T
Thorsten7819.05.20 16:33Wir haben uns die letzten 3 Monate noch mal Gedanken gemacht und sind nun zu diesen Entwurf gekommen.
Das Haus wird mit etwa 175m² statt 190m² etwas kleiner, da das Budget doch etwas knapp gewesen wäre.
Lediglich bei den Fenstern im Norden werden die Unterlichter noch entfernt (Sichtschutz zum Nachbarn), und das Fenster in der Küche wird noch 3tlg. mit 2,50m x 1,00m.
So soll dann der Plan in der Gemeinde eingereicht werden. Gerne freue ich mich über weitere Anregungen bzw. Diskussionen.







Das Haus wird mit etwa 175m² statt 190m² etwas kleiner, da das Budget doch etwas knapp gewesen wäre.
Lediglich bei den Fenstern im Norden werden die Unterlichter noch entfernt (Sichtschutz zum Nachbarn), und das Fenster in der Küche wird noch 3tlg. mit 2,50m x 1,00m.
So soll dann der Plan in der Gemeinde eingereicht werden. Gerne freue ich mich über weitere Anregungen bzw. Diskussionen.
Meine Punkte:
- Tür in den Hauswirtschaftsraum. Funktioniert die Tür unter der Treppe wirklich?
- Speis ist ein schmaler Schlauch und mit dem Eck am Ende fast ein Labyrinth.
- Warum 2 Türen in die Garage? Ich würde die Tür aus der Garderobe streichen und den Plattz ganz für die Garderobe nützen. Ich habt ja eh in kleines Vordach vor der Haustüre und werdet da nicht nass. Die Stufe in die Garage von 15cm ist euch klar?
- Elternschlafzimmer ist mit 3,2m sehr schal. Da bleibt bleibt auf jeder Seite etwa nur 55cm über. Wenn man zu schnell aufsteht, hängt man mit dem Kopf schnell an der Wand.
- Tür in den Hauswirtschaftsraum. Funktioniert die Tür unter der Treppe wirklich?
- Speis ist ein schmaler Schlauch und mit dem Eck am Ende fast ein Labyrinth.
- Warum 2 Türen in die Garage? Ich würde die Tür aus der Garderobe streichen und den Plattz ganz für die Garderobe nützen. Ich habt ja eh in kleines Vordach vor der Haustüre und werdet da nicht nass. Die Stufe in die Garage von 15cm ist euch klar?
- Elternschlafzimmer ist mit 3,2m sehr schal. Da bleibt bleibt auf jeder Seite etwa nur 55cm über. Wenn man zu schnell aufsteht, hängt man mit dem Kopf schnell an der Wand.
Ähnliche Themen