ᐅ Einfamilienhaus ca. 150 qm Grundriss - Treppe wie planen?
Erstellt am: 15.10.17 20:12
manyyuu15.10.17 20:12
Wir befinden uns mitten in der Planung unseres Traumhauses und haben die ersten Entwürfe jetzt fertig. Für Anregungen/ Kritik/ Verbesserungsvorschläge wären wir sehr dankbar. Wichtig war uns vor allem ein großer heller und offener Wohn-/Essbereich, ein Arbeitszimmer unten, in das auch ein ausziehbares Schlafsofa passt, zwei Duschen, dabei oben Walk In Dusche und Badewanne und zwei etwa gleich große Kinderzimmer. Unsicher sind wir noch im Hinblick auf: separate Ankleide (Vorteile: mein Mann geht morgens früher zur Arbeit und kann sich dann in einem extra Raum umziehen, mehr SchallschUtz zum Kinderzimmer bzw. irgendwann Teenie-Zimmer), kleine Kammer hinter der Küche und falls ja offen oder mit schmaler Schiebetür und Treppe offen/ geschlossen mit Raum für Garderobe darunter. Aber auch im Übrigen sind wir für Tipps dankbar. Das Haus soll ein Satteldach mit 44 Grad und einen leicht vorgezogenen Kapitänsgiebel bekommen. Kniestock wäre ca 1 Meter hoch. Angehängt hab ich Grundrisse EG, OG und dann noch mal EG mit den Maßen und Umrissen des Grundstücks, Terrasse und Carport. Vielen Dank!!
Bebauungsplan/Einschränkungen
Größe des Grundstücks 600 (90 davon aber Auffahrt, da Hinterland-Bebauung)
Hang: nein
Grundflächenzahl: 0,3
Geschossflächenzahl: keine Vorgabe
Baufenster, Baulinie und -grenze: Baulinie im Norden fünf Meter Abstand zur Grundstücksgrenze
Randbebauung: 3 Meter Grenzabstand
Anzahl Stellplatz: 2
Geschossigkeit: 1 Vollgeschoss
Dachform: Satteldach
Stilrichtung
Ausrichtung
Maximale Höhen/Begrenzungen: 8,50
weitere Vorgaben: nein
Anforderungen der Bauherren
Stilrichtung, Dachform, Gebäudetyp: Kapitänshaus
Keller, Geschosse: kein Keller, 1,5 Geschosse
Anzahl der Personen, Alter: 4 Personen, zwei Erwachsene, 2 Kinder je 3 Jahre alt
Raumbedarf im EG, OG
Büro: Familiennutzung oder Homeoffice: Einmal die Woche Homeoffice
Schlafgäste pro Jahr: 3
offene oder geschlossene Architektur
konservativ oder moderne Bauweise
offene Küche, Kochinsel: offener Wohn-Essbereich, Kochinsel
Kamin: Nein
Carport
weitere Wünsche/Besonderheiten/Tagesablauf, gern auch Begründungen, warum dieses oder das nicht sein soll
Hausentwurf
Von wem stammt die Planung:
-Do-it-Yourself
Was gefällt besonders? Warum? Der offene und helle Wohnbereich.
Was gefällt nicht? Warum? Der Flur, zu wenig Platz für Garderobe, Aufteilung nicht optimal
Persönliches Preislimit fürs Haus, inkl Ausstattung: 300.000 Euro (mit Erschließung ohne sonstige Baunebenkosten und Grundstück), wir bauen in Schleswig-Holstein.
favorisierte Heiztechnik: Gastherme mit Solar für Warmwasser
Wenn Ihr verzichten müsst, auf welche Details/Ausbauten
-könnt Ihr verzichten: Speisekammer, separate Ankleide,
Warum ist der Entwurf so geworden, wie er jetzt ist?
Ein Gemisch aus vielen Beispielen aus div. Quellen.



Bebauungsplan/Einschränkungen
Größe des Grundstücks 600 (90 davon aber Auffahrt, da Hinterland-Bebauung)
Hang: nein
Grundflächenzahl: 0,3
Geschossflächenzahl: keine Vorgabe
Baufenster, Baulinie und -grenze: Baulinie im Norden fünf Meter Abstand zur Grundstücksgrenze
Randbebauung: 3 Meter Grenzabstand
Anzahl Stellplatz: 2
Geschossigkeit: 1 Vollgeschoss
Dachform: Satteldach
Stilrichtung
Ausrichtung
Maximale Höhen/Begrenzungen: 8,50
weitere Vorgaben: nein
Anforderungen der Bauherren
Stilrichtung, Dachform, Gebäudetyp: Kapitänshaus
Keller, Geschosse: kein Keller, 1,5 Geschosse
Anzahl der Personen, Alter: 4 Personen, zwei Erwachsene, 2 Kinder je 3 Jahre alt
Raumbedarf im EG, OG
Büro: Familiennutzung oder Homeoffice: Einmal die Woche Homeoffice
Schlafgäste pro Jahr: 3
offene oder geschlossene Architektur
konservativ oder moderne Bauweise
offene Küche, Kochinsel: offener Wohn-Essbereich, Kochinsel
Kamin: Nein
Carport
weitere Wünsche/Besonderheiten/Tagesablauf, gern auch Begründungen, warum dieses oder das nicht sein soll
Hausentwurf
Von wem stammt die Planung:
-Do-it-Yourself
Was gefällt besonders? Warum? Der offene und helle Wohnbereich.
Was gefällt nicht? Warum? Der Flur, zu wenig Platz für Garderobe, Aufteilung nicht optimal
Persönliches Preislimit fürs Haus, inkl Ausstattung: 300.000 Euro (mit Erschließung ohne sonstige Baunebenkosten und Grundstück), wir bauen in Schleswig-Holstein.
favorisierte Heiztechnik: Gastherme mit Solar für Warmwasser
Wenn Ihr verzichten müsst, auf welche Details/Ausbauten
-könnt Ihr verzichten: Speisekammer, separate Ankleide,
Warum ist der Entwurf so geworden, wie er jetzt ist?
Ein Gemisch aus vielen Beispielen aus div. Quellen.
Alex8515.10.17 20:35
EG:
Der Flur ist ja von der Fläche kein Winzling. Garderobe vielleicht unter die Treppe? Soll die offen sein?
Hauswirtschaftsraum Türanschlag drehen. Was sind die Hausanschlüsse, Gastherme etc? Sehe mit entsprechender Tiefe nur Waschmaschine, Trockner usw.
G-WC die Dusche mit Schüssel tauschen, damit man die Schüssel bei offener Tür (auch vom Flur aus) nicht gleich im Blick hat.
Ob im Gästezimmer die Couch ausziehbar ist, müsstest du mal messen, wird eng. Bewegen kann man sich dann aber keinsfalls mehr. Wenn Gast für euch wichtig ist, dann würde ich diese Vorratsecke opfern, da würde das Gästezimmer sehr von profitieren. Der Zutritt zum Gästezimmer ist tote Fläche.
Die Ecke an der Kochinsel zur Wand nach Westen ist sehr eng (ca. 70cm?) und macht so keinen Sinn. Typisch erzwungene Insel meiner Meinung nach. Muss die sein?
Man könnte z.B. eine Halbinsel bzw. zweite Zeile ganz an der Westwand ansetzen.
Welchen Bodenbelag hast du im Allraum vorgehen - durchgehend gefliest? Wenn du einen Mix planst, wird das durch die Anordnung der Küche/Insel spannend, wo die Fliesen beginnen und wo der andere Belag beginnt.
Der Esstisch ist sehr klein skizziert. Berücksichtige mal die echte Größe und prüfe dann die Durchgangsbreiten.
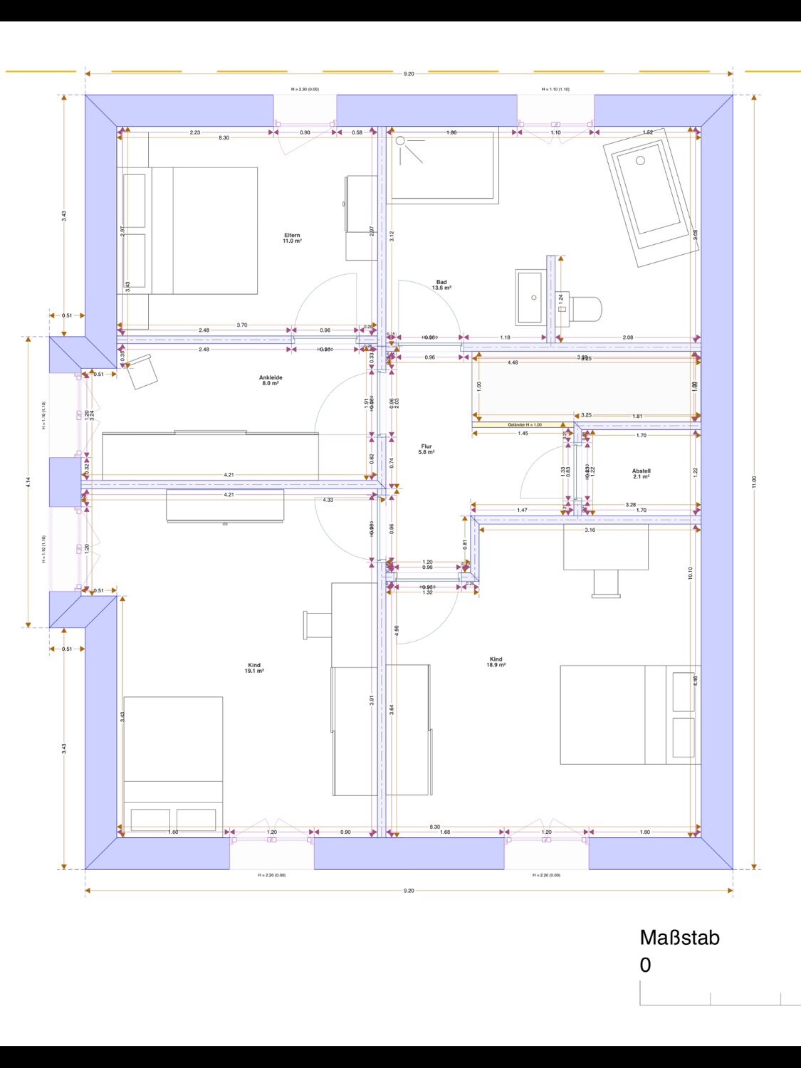
OG:
Flur zappen düster.
Schlafzimmer sehr minimalistisch, sollte aber gehen. Ankleide ist in der Form aber Platzverschwendung, da gehen gerade mal 3-3.5m Schrank rein. Schrank kollidiert mit Fenster.
Kinderzimmer sehr groß. Das Kinderzimmer nach Ost/Süd würde ich noch anders möblieren, damit irgendwo mehr zusammenhängende Freifläche zum Spielen da ist. Das Bett steht so sehr im Raum. Sind die Kinder schon im entsprechenden Alter für so große Betten?
Finde in beiden Kinderzimmern den Zugang nicht so toll, direkt vor den Schrank zu laufen.
Der Flur ist ja von der Fläche kein Winzling. Garderobe vielleicht unter die Treppe? Soll die offen sein?
Hauswirtschaftsraum Türanschlag drehen. Was sind die Hausanschlüsse, Gastherme etc? Sehe mit entsprechender Tiefe nur Waschmaschine, Trockner usw.
G-WC die Dusche mit Schüssel tauschen, damit man die Schüssel bei offener Tür (auch vom Flur aus) nicht gleich im Blick hat.
Ob im Gästezimmer die Couch ausziehbar ist, müsstest du mal messen, wird eng. Bewegen kann man sich dann aber keinsfalls mehr. Wenn Gast für euch wichtig ist, dann würde ich diese Vorratsecke opfern, da würde das Gästezimmer sehr von profitieren. Der Zutritt zum Gästezimmer ist tote Fläche.
Die Ecke an der Kochinsel zur Wand nach Westen ist sehr eng (ca. 70cm?) und macht so keinen Sinn. Typisch erzwungene Insel meiner Meinung nach. Muss die sein?
Man könnte z.B. eine Halbinsel bzw. zweite Zeile ganz an der Westwand ansetzen.
Welchen Bodenbelag hast du im Allraum vorgehen - durchgehend gefliest? Wenn du einen Mix planst, wird das durch die Anordnung der Küche/Insel spannend, wo die Fliesen beginnen und wo der andere Belag beginnt.
Der Esstisch ist sehr klein skizziert. Berücksichtige mal die echte Größe und prüfe dann die Durchgangsbreiten.
OG:
Flur zappen düster.
Schlafzimmer sehr minimalistisch, sollte aber gehen. Ankleide ist in der Form aber Platzverschwendung, da gehen gerade mal 3-3.5m Schrank rein. Schrank kollidiert mit Fenster.
Kinderzimmer sehr groß. Das Kinderzimmer nach Ost/Süd würde ich noch anders möblieren, damit irgendwo mehr zusammenhängende Freifläche zum Spielen da ist. Das Bett steht so sehr im Raum. Sind die Kinder schon im entsprechenden Alter für so große Betten?
Finde in beiden Kinderzimmern den Zugang nicht so toll, direkt vor den Schrank zu laufen.
kbt0915.10.17 20:48
Stimme Alex85 in allen Punkten zu und ergänze, dass ich das Elternschlafzimmer für zu knapp halte. 287 cm Raumbreite. Ein Bett mit 180 cm Matratzenbreite ist mind. 190 cm incl. Rahmen breit. Bleiben rechts und links vom Bett knapp 45 cm als Durchgang und das auch noch unter die Dachschräge.
Der Kapitänsgiebel ist durch die Raumtrennung dort jeweils eine eher nicht gut nutzbare Fläche, insbesondere aber nicht für Schränke geeignet.
Die Treppe könnte beim Heruntergehen ein Problem machen, wenn der Deckenausschnitt nur auf das gerade Stück Treppe begrenzt ist, da man dann am Beginn des Ausschnitts bereits auf der dritten Stufe steht.
Ansonsten finde ich den Ansatz richtig, in den Kinderzimmern schon mal 140er Betten anzudenken .
Der Kapitänsgiebel ist durch die Raumtrennung dort jeweils eine eher nicht gut nutzbare Fläche, insbesondere aber nicht für Schränke geeignet.
Die Treppe könnte beim Heruntergehen ein Problem machen, wenn der Deckenausschnitt nur auf das gerade Stück Treppe begrenzt ist, da man dann am Beginn des Ausschnitts bereits auf der dritten Stufe steht.
Ansonsten finde ich den Ansatz richtig, in den Kinderzimmern schon mal 140er Betten anzudenken .
ypg15.10.17 22:23
Meine Vorredner haben gute Augen
Die Speis mit einer Breite von 85 Rohbaumaß ist eine Kampfansage an Deine Schultern, oder Du verzichtest auf ein Regal. Besser ist es, auf die Speis zu verzichten. Statt dessen noch einen Küchenschrank.
Büro profitiert davon, wie schon schrieb - denn 200cm RBM für eine Raumbreite ist auch eine Kampfansage, da geht fast gar nichts.
Die Kücheninsel kann schmaler und etwas näher an die Zeile ran.
Schrankstellflächen sind nicht wirklich geplant. Im Schlafzimmer steht der Schrank vor dem Fenster, im Hauswirtschaftsraum vor der Tür.
Die Speis mit einer Breite von 85 Rohbaumaß ist eine Kampfansage an Deine Schultern, oder Du verzichtest auf ein Regal. Besser ist es, auf die Speis zu verzichten. Statt dessen noch einen Küchenschrank.
Büro profitiert davon, wie schon schrieb - denn 200cm RBM für eine Raumbreite ist auch eine Kampfansage, da geht fast gar nichts.
Die Kücheninsel kann schmaler und etwas näher an die Zeile ran.
Schrankstellflächen sind nicht wirklich geplant. Im Schlafzimmer steht der Schrank vor dem Fenster, im Hauswirtschaftsraum vor der Tür.
manyyuu15.10.17 22:44
Garderobe unter geschlossene die Treppe ist eine unserer Überlegungen. Zum Hauswirtschaftsraum: Türanschlag haben wir tatsächlich übersehen, danke für den Hinweis. Die Technik (Gastherme mit Speicher, Belüftunganlage) soll größtenteils in den Spitzboden. Bad-Anordnung unten überdenken wir auf jeden Fall noch mal.
Der zusätzliche Raum im EG soll viel mehr Arbeitszimmer als Gästezimmer sein, so oft erwarten wir keine Übernachtungsgäste und notfalls rückt man den Schreibtisch mal etwas um... daher würde ich die kleine Speisekammer nur ungern opfern, da wir jetzt eine ähnliche kleine Kammer in unserer Wohnung haben, die ich sehr zu schätzen weiß. Ich denke aber noch mal darüber nach.
Die Ecke an der Kochinsel zur Wand sind tatsächlich nur 80 cm an der schmalsten Stelle, allerdings ist die Insel vgl. mit den Ausstellungsstücken, die ich bisher gesehen habe mit 180x130 auch relativ groß geplant und könnte vllt noch einen Tick kleiner ausfallen. Da auf der anderen Seite ein Laufwege von 1 m bleibt und zwischen Insel und Zeile 1,20 m hielt ich die Platzverhältnisse insgesamt für ausreichend für eine „echte“ Insel. Bei den Bodenbelägen sind wir noch nicht, ist aber ebenfalls ein guter Hinweis und werden wir uns Gedanken zu machen. Zweite Zeile stelle ich mir schwierig vor, zumal am Giebel an der Westwand bodentiefe Fenster geplant sind. Esstisch passt mit 2x1 Meter immer noch, lediglich der Schrank an der Südwand müsste dann etwas nach links rücken. Für den Flur oben haben wir ein Dachfenster vorgesehen (wobei wir da auch noch unsicher sind, da die Galerie dem Abstellraum zum Opfer gefallen ist und man zum Putzen unmöglich rankäme... ). Der Schrank in der Ankleide soll nicht bleiben, eher offene Regale über die ganze Wand... haben wir in einem Raum dieser Größe gesehen und gefiel uns. Ich bin davon ausgegangen, dass es dann mit dem Fenster passend gemacht werden kann. Ankleide wäre sehr praktisch, weil mein Mann sehr früh aus dem Haus geht und sich dann dort anziehen könnte, ohne mich zu wecken. Außerdem als zusätzlicher Schallschutz zu den späteren Teenie-Zimmern. Das wir den Giebel oben durch die Trennung nicht optimal nutzen, wissen wir, uns war aber wichtig, zwei etwa gleich große Kinderzimmer zu haben und haben es daher nicht anders hinbekommen. Die Möblierung in den Kinderzimmer ist noch nicht durchdacht, bisher haben wir nur geschaut, ob später 140 Bett, Schreibtisch etc alles reinpasst.
Deckenausschnitt über der Treppe schauen wir uns noch mal an, auch hier Danke für den Tipp.
Der zusätzliche Raum im EG soll viel mehr Arbeitszimmer als Gästezimmer sein, so oft erwarten wir keine Übernachtungsgäste und notfalls rückt man den Schreibtisch mal etwas um... daher würde ich die kleine Speisekammer nur ungern opfern, da wir jetzt eine ähnliche kleine Kammer in unserer Wohnung haben, die ich sehr zu schätzen weiß. Ich denke aber noch mal darüber nach.
Die Ecke an der Kochinsel zur Wand sind tatsächlich nur 80 cm an der schmalsten Stelle, allerdings ist die Insel vgl. mit den Ausstellungsstücken, die ich bisher gesehen habe mit 180x130 auch relativ groß geplant und könnte vllt noch einen Tick kleiner ausfallen. Da auf der anderen Seite ein Laufwege von 1 m bleibt und zwischen Insel und Zeile 1,20 m hielt ich die Platzverhältnisse insgesamt für ausreichend für eine „echte“ Insel. Bei den Bodenbelägen sind wir noch nicht, ist aber ebenfalls ein guter Hinweis und werden wir uns Gedanken zu machen. Zweite Zeile stelle ich mir schwierig vor, zumal am Giebel an der Westwand bodentiefe Fenster geplant sind. Esstisch passt mit 2x1 Meter immer noch, lediglich der Schrank an der Südwand müsste dann etwas nach links rücken. Für den Flur oben haben wir ein Dachfenster vorgesehen (wobei wir da auch noch unsicher sind, da die Galerie dem Abstellraum zum Opfer gefallen ist und man zum Putzen unmöglich rankäme... ). Der Schrank in der Ankleide soll nicht bleiben, eher offene Regale über die ganze Wand... haben wir in einem Raum dieser Größe gesehen und gefiel uns. Ich bin davon ausgegangen, dass es dann mit dem Fenster passend gemacht werden kann. Ankleide wäre sehr praktisch, weil mein Mann sehr früh aus dem Haus geht und sich dann dort anziehen könnte, ohne mich zu wecken. Außerdem als zusätzlicher Schallschutz zu den späteren Teenie-Zimmern. Das wir den Giebel oben durch die Trennung nicht optimal nutzen, wissen wir, uns war aber wichtig, zwei etwa gleich große Kinderzimmer zu haben und haben es daher nicht anders hinbekommen. Die Möblierung in den Kinderzimmer ist noch nicht durchdacht, bisher haben wir nur geschaut, ob später 140 Bett, Schreibtisch etc alles reinpasst.
Deckenausschnitt über der Treppe schauen wir uns noch mal an, auch hier Danke für den Tipp.
manyyuu16.10.17 06:37
: ich bin mir jetzt gar nicht sicher, ob es wirklich bloß Rohbaumaße sind, was käme denn dann noch darauf also wie nah rückt das Ganze noch zusammen? Wir hätten noch die Möglichkeit, das Haus ein paar cm zu verlängern, aber ich überlege mir tatsächlich noch mal ob ich die Kammer brauche ...
Ähnliche Themen