Meinungen zum Grundriss Einfamilienhaus Münsterland

4,80 Stern(e) 6 Votes
Zuletzt aktualisiert 22.11.2025
Sie befinden sich auf der Seite 3 der Diskussion zum Thema: Meinungen zum Grundriss Einfamilienhaus Münsterland
>> Zum 1. Beitrag <<

S

Scratchi

@lastrop Alltagseingang für Kinder mit dreckigen Schuhen. Einkäufe direkt vom Auto ins Haus (erfahrungsgemäß stehen die meisten Autos nicht in sondern vor der Garage)
 
lastdrop

lastdrop

Ehrlich gesagt, kenn ich kein Haus, dass eine Schleuse hat, die VOR die Garage führt. Wenn, dann in die Garage.

Meine Kinder kommen jedenfalls durch die Haustüre ins Haus ...
 
S

Scratchi

@lastrop Ich kann dir da genügend Gegenbeispiele nennen Mag wohl regional bedingt sein, zumindest haben hier in der Gegend sehr viele Ihre Schleuse VOR der Garage.
 
Y

ypg

Eine "Schleuse" muss auch ich nicht haben, schliesslich will ich als Eigentümer und Bewohner den Eingang nett haben - und nicht selbst einen schmudeligen Hausiereingang benutzen müssen. Allerdings wird hier ja nicht um den Nebeneingang drum herum geplant, wie es häufig so ist, wenn der Fokus in den zweiten Eingang (vorrangig durch die Garage) gelegt wird, sondern es wird einfach nur eine Außentür zum Hauswirtschaftsraum geplant.
Ob der letztendlich dann benutzt wird, wie die Eltern sich das vorstellen... pfffh.
 
S

Scratchi

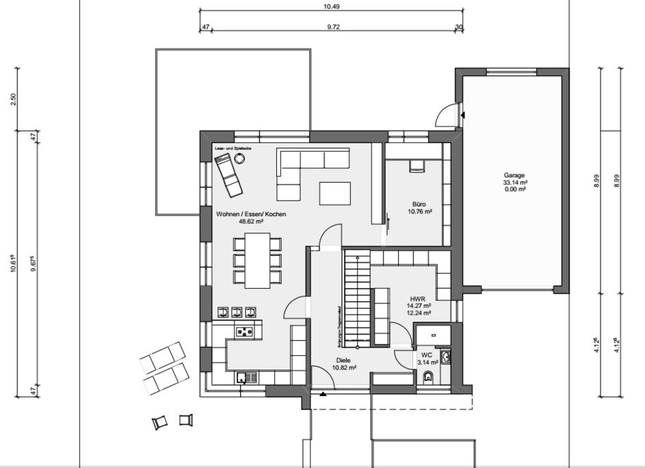
So, wir haben noch mal ein paar Dinge einfließen lassen.

Büro ein wenig größer
Dusche im EG
Schlafzimmer leicht kleiner, dafür Bad leicht größer
Ausbuchtung für Terrasse ist nun Wohnraum


Grundriss: Erdgeschoss eines Hauses mit Wohnen/Essen/Kochen, Büro, Diele, HWR, WC und Garage.

Grundriss eines Obergeschosses: Flur, Treppenhaus, 3 Kinderzimmer, Schlafzimmer mit Ankleide, Bad.



Wir haben noch etwas Bauschmerzen wie es aussieht, wenn man im Eingang direkt auf die Treppe nach oben schaut. Eine gewinkelte Treppe ist nur leider etwas platzraubend bei dem schon schmalen Flur!
 
Zuletzt aktualisiert 22.11.2025
Im Forum Grundrissplanung / Grundstücksplanung gibt es 2535 Themen mit insgesamt 87985 Beiträgen


Ähnliche Themen zu Meinungen zum Grundriss Einfamilienhaus Münsterland
Nr.ErgebnisBeiträge
1 2 Vollgeschosse, Durchgang Garage, Hauswirtschaftsraum unter Treppe 25
2Grundriss Einfamilienhaus, ca. 200qm ohne Keller - Einschätzung - Seite 4172
3Bau Garage auf Grenze geht lt. Architekt nicht. - Seite 211
4Grundriss Einfamilienhaus / Garage im EG? 10
5Grundriss Einfamilienhaus mit Garage, eigenplanung 17
6Grundstück - Baufenster - Lage von Haus und Garage 44
7Lage von Haus & Garage im Baufenster planen *Vorplanung* - Seite 4129
8Grundriss, längliches Einfamilienhaus, integrierte Garage kein Keller 16
9Grundriss Einfamilienhaus (ca. 170 qm) mit Garage - Hanglage 35
10Grundriss 140 m2 Einfamilienhaus mit Garage - Hausausrichtung ok? - Seite 218
11Stadtvilla 160-170 m², Problematik Anschluss Windfang mit Garage - Seite 332
12Zugang von der Garage in den Hauswirtschaftsraum - Seite 449
13Grundriss: 150qm Einfamilienhaus+Einliegerwohnung - Carport / Garage + Schuppen / Werkstatt - Seite 545
14Grundriss Einfamilienhaus mit Keller und Garage - Seite 650
15Grundriss Einfamilienhaus 240 m² mit teilüberbauter Garage 96
16Ideen für Anbau über Garage zusätzlicher Wohnraum - Seite 224
17Grundriss Einfamilienhaus 136m² mit Garage & Keller 17
18Grundrissplanung und Überdachung Garage 11
19Grundriss Einfamilienhaus ca. 135 m³, Grundriss. Garage, 1,5 Geschossig, 4 Personen 11
20Haus ohne Garage und Keller? Ausbau Dachboden? Fresswarze? - Seite 585

Oben