Meinungen zum Grundriss Einfamilienhaus Münsterland

4,80 Stern(e) 6 Votes
Zuletzt aktualisiert 09.10.2025
Sie befinden sich auf der Seite 4 der Diskussion zum Thema: Meinungen zum Grundriss Einfamilienhaus Münsterland
>> Zum 1. Beitrag <<

S

Scratchi

In meinen Vorstellungen könnte das eventuell etwas zu “wuselig“ wirken. Aber da vertue ich mich eventuell auch
 
P

Pit70

Hallo!

Der Entwurf gefällt mir auch. Allerdings fehlen mir Abstellflächen / Stauräume. Ihr seid bis zu 5 Personen. Da kommt einiges zusammen. Und so groß sind die Kinderzimmer nicht.
Ein Keller würde mir fehlen. Und wenns nur Papas Hobbyraum ist....

Gruß

Peter
 
S

Scratchi

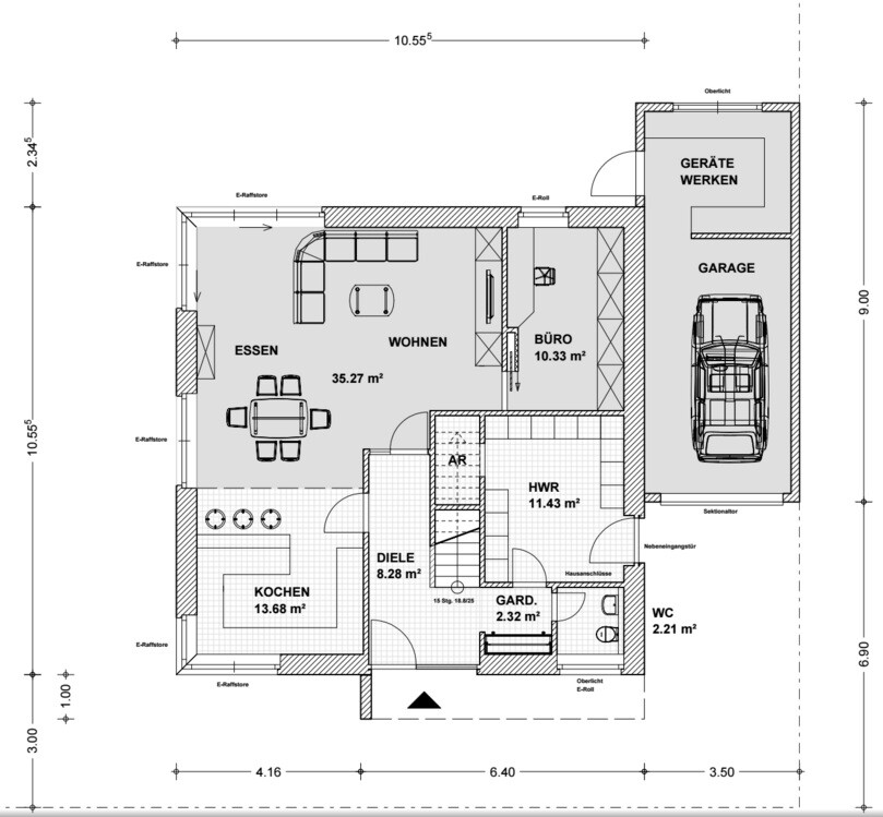
So, da wir bald vor Abschluss stehen, noch mal eine aktuelle Ansicht mit ein paar Ecken die überarbeitet wurden. Eventuell fällt euch ja noch etwas auf.

Die Lücken zwischen den Fenstern im OG werden mit schwarzen Glasplatten verkleidet. So entsteht ein recht schickes Fensterband. Garage und Vordach Hauseingang verputzt, Rest geklinkert.
Die Fenster Größen sind auch noch nicht abschließend geklärt.

Im OG ist die Situation mit Treppenaufgang und Bad noch nicht ganz geklärt. Schön ist diese Ecke natürlich nicht, anders geht uns aber einiges als Verkehrsfläche im Bad verloren. Was meint ihr?


Grundriss eines Hauses: Wohnen, Kochen, Essen, Büro, Diele, HWR, WC, Garage mit Auto.

Grundriss eines Hauses: Flur, Elternzimmer mit Ankleide, 3 Kinderzimmer, Bad, Abstellraum.

Zweistöckiges Wohnhaus mit Satteldach, mehreren Fenstern, Eingang und Garage rechts

Zweistöckiges Haus mit Satteldach, mehreren Fenstern und Terrassentüren.
 
Zuletzt aktualisiert 09.10.2025
Im Forum Grundrissplanung / Grundstücksplanung gibt es 2513 Themen mit insgesamt 87220 Beiträgen


Ähnliche Themen zu Meinungen zum Grundriss Einfamilienhaus Münsterland
Nr.ErgebnisBeiträge
1Grundriss erster Entwurf - Meinungen erwünscht 21
2Entwurf Grundriss Bungalow Meinungen 22
3Einfamilienhaus-Grundriss Entwurf 23
4Planung Grundriss / Erster Entwurf für erstes Feedback 32
5Unser Grundriss-Entwurf, eure Meinungen 20
6Bauen mit GU - Angebot vom GU inkl. Entwurf - Seite 322
7Ideen zu Entwurf für Einfamilienhaus mit Keller - Seite 347
8Entwurf - alle Richtungen bei Neubau vom Einfamilienhaus 91
9Entwurf Einfamilienhaus mit Garage/Carport - bitte um Bewertung 22
10Grundriss-Entwurf Stadtvilla Feedback - Seite 213
11Planung unseres Einfamilienhaus - Was meint ihr zum Entwurf? - Seite 656
12Einfamilienhaus als Reihenmittelhaus an Hanglage - Entwurf - Seite 318
13Erster Entwurf Einfamilienhaus 150m² mit Keller 38
14Grundriss-Entwurf Stadtvilla mit Doppelgarage - Seite 238
15Haus-Entwurf Einfamilienhaus - Zukünftig als Zweifamilienhaus trennbar - Seite 572
161. Entwurf Grundriss Einfamilienhaus 150 qm 50
17Erster Entwurf des Grundrisses für 150m2 Haus 31
18Erster Entwurf Grundriss Einfamilienhaus (ca. 200qm) - Bitte um Feedback 46
19Meinungen zu unserem Grundriss Entwurf erwünscht - Seite 470
20Bitte schaut kritisch über unseren Grundriss-Entwurf 13

Oben