Grundriss Einfamilienhaus, ca. 200qm ohne Keller - Einschätzung

4,70 Stern(e) 3 Votes
Zuletzt aktualisiert 18.11.2025
Sie befinden sich auf der Seite 4 der Diskussion zum Thema: Grundriss Einfamilienhaus, ca. 200qm ohne Keller - Einschätzung
>> Zum 1. Beitrag <<

S

Slammer0909

Ja es ist meiner Meinung nach nicht ganz so einfach zu sagen.
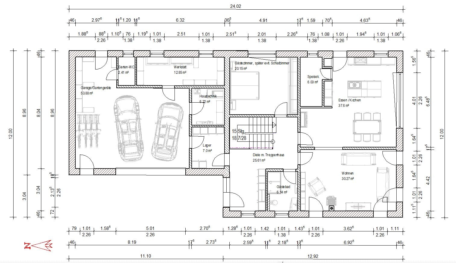
Euer Grundriss würde für uns nicht funktionieren. Man muss sich vorstellen, dass eine Hausseite mit Garage + schmalem Werkraum eben 8m lang ist und die meiste Fläche der Hausnordseite verdeckt ist.
Treppe muss so gestaltet sein, dass man OG später einmal vom EG abtrennen kann bzw das man direkt ins OG kommt, ohne durch das EG zu müssen.
Im Süden soll Küche und Wohnzimmer sein. Eingang muss im Westen oder eben dort auf der Ecke sein.

Ich finde "Standard" sind die Anforderungen nicht.
Nehmen wir an ich (oder der Architekt) positioniert die Treppe mitten ins Haus und Eingang mittig in den Westen. Dann würde rechts (also Süden) die Küche sein.
Da drüber dann Wohnzimmer, evtl. etwas um die Ecke gezogen.

Nach der Haustür links könnte Bad und Hauswirtschaftsraum folgen, in der NO-Ecke dann ein Gästeraum. Oder die 3 zuletzt genannten Räume auf der linken Haushälfte anders positioniert. Wie auch immer. Womit ich unten auch anfange oder oben Ende. Einer der Räume wird wahrscheinlich kein Fenster bekommen können.
Und ein zentraler Flur, von dem aus ich in jeden Einzelnen Raum gelange, finde ich auch wichtig.

Wenn jemand mir mal eine Idee skizziert, wäre ich echt dankbar.

Grüße
Mathias
 
kbt09

kbt09

Hmm .. evtl. spätere Trennung hast du bisher ja nicht erwähnt

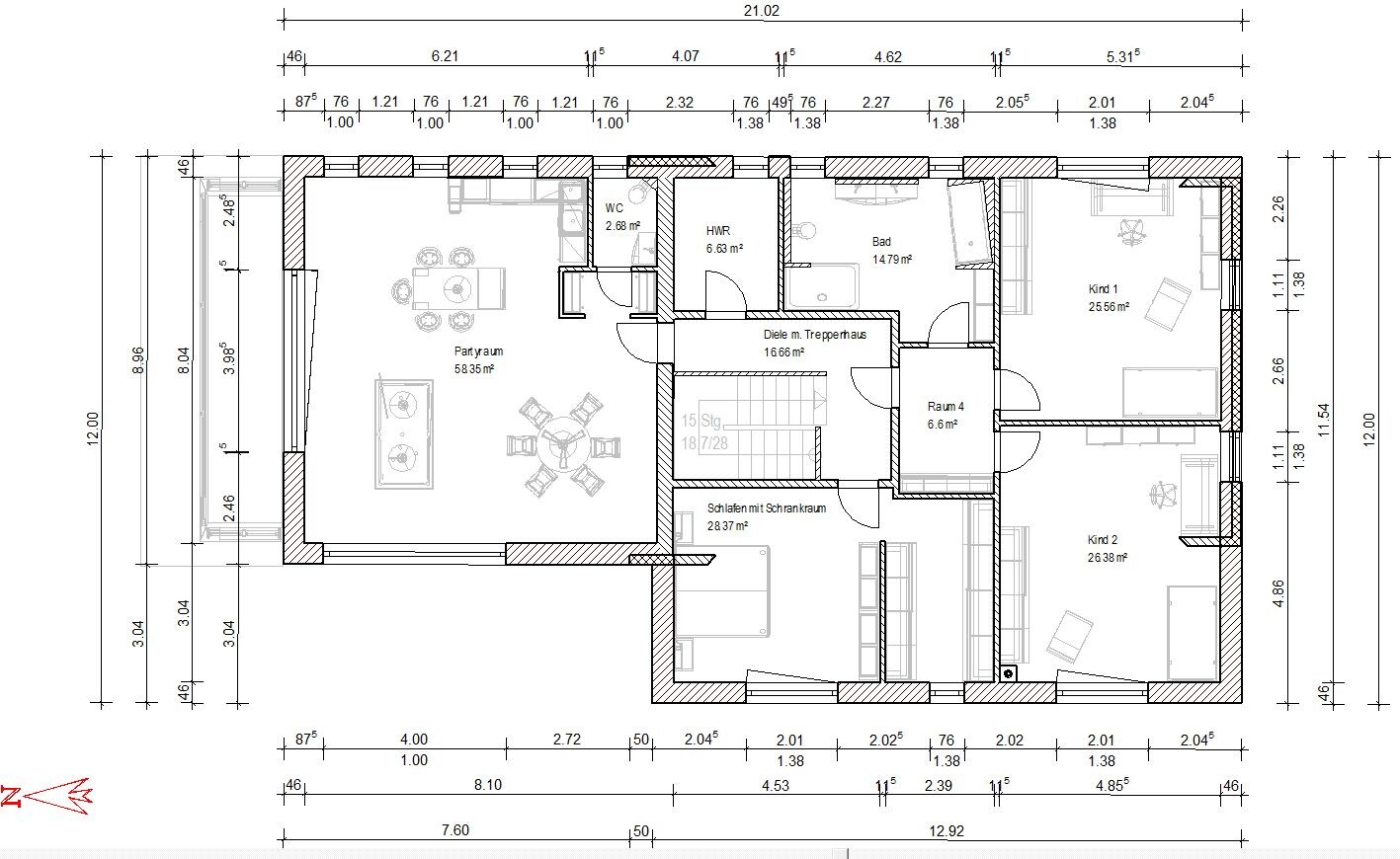
Ich habe mal skizziert

Ich finde Küche im Osten immer schön, wenn morgens doch die Sonne scheint, fängt der Tag gleich netter an.

Die Giebellösung bei den Kinderzimmern finde ich noch nicht so 100%ig .. einem echten Architekten fällt da bestimmt mehr ein, um auch auf der Südseite in den Kinderzimmern größere Fenster zu bekommen.

Haustechnik und Garderobenzwischenlager jetzt getrennt.

Treppe als großzügige Podesttreppe. Und .. guck halt einfach mal .. soll wirklich nur Ideen geben, denn alles was dann sehr bautechnisch wird usw. ist bestimmt noch sehr mangelbehaftet. Ob dieser Balkon auf dem Anbau so möglich ist, ist ja weiter oben schon bezweifelt worden.

Ziegelhaus mit rotem Satteldach, Fensterfronten, Tür; Einblick in Küche/Wohnzimmer durch Glasfront.


Zweistöckiges Backsteinhaus mit rotem Dach, großer Garage links und Balkon.


3D-Grundriss: Garage mit zwei Autos, Küche, Wohnzimmer, Essbereich, Schlafzimmer, Treppenhaus.


3D-Grundriss eines Hauses mit Küche, Essbereich, Wohnzimmer, Schlafzimmer und Treppen


Grundriss eines Einfamilienhauses: Partyraum links, Schlafraum, zwei Kinderzimmer, Bad, WC, Diele.


Grundriss eines Einfamilienhauses mit Garage, Werkstatt, Lager, Treppenhaus, Küche, Essen, Wohnen.
 
S

Slammer0909

Hallo,

vielen Dank für deinen Entwurf und die Ideen. Das weiß ich echt zu schätzen. So wie es jetzt ist, wurde ja quasi der Hauswirtschaftsraum und der extra Garderobenraum ausgelagert aus dem Haus in den "Garagen und Kellerersatzbereich". Das dann mehr Platz im Inneren des Hauses ist, ist natürlich klar. Dadurch ist dort dann eben weniger Platz.
Außerdem kann man dann ja auch nur allein oder Max. mit 2 Personen in die Schleuse zum Jacken ablegen. Dazu kommt, das man nicht lüften kann. Ein Fenster wäre natürlich machbar, bei dann weniger Schrankfläche. Es hat eben alles seine Tücken.

Was für uns jedoch wichtig ist; separate Küche mit kleiner Sitzecke und Wohnzimmer mit Essbereich in einem.
Die Küche sollte im Westen sein, weil man dann von da aus auch auf die Straße schauen kann.
Andersrum gesagt, sitzen wir ja dann in dem Wohnzimmer quasi 4-5 m von der Straße entfernt, da kann ja jeder gleich mitkuscheln. Daher war mir die Küche als "Schutzraum" immer sehr lieb.
Auch eine gerade Treppe war Teil unserer Anforderung. Das diese am Eingang sein muss, hatte ich nicht erwähnt. Sorry dafür, dachte das wäre in den Raumvorstellungen enthalten.


OG hat Ideen, die ich aufgreifen werde.
Auch eher weniger als mehr Mauern im Garagenbereich werde ich beachten, dadurch wird es größer, aber auch potenziell unaufgeräumter.
Die linken 3m neben Garage müssen aber evtl. eh wieder weg, weil der Platz im Süden auch gebraucht wird für Garten. Der Bereich ist also in der Schwebe.


Vielen Dank nochmals kbt09!!!
 
kbt09

kbt09

Du solltest aber sehen, dass Staufläche möglichst immer da entsteht, wo sie gebraucht wird.

Deine lange gerade Treppe hat leider nichts großzügiges (zumal sie mir auch zu kurz geplant erscheint, und über den ersten 3 Stufen liegt bereits das Badezimmer .. ich glaube nicht, dass das gut geht) ... und, sie liegt im Eingangsbereich vom Haus. Jetzt ist der Treppen-Aufgang Mittelpunkt und Dreh- und Angelpunkt.

Das Problem mit der Aufteilung eines ca. 6,5 x 6,5 m großen Raumes als Wohn/Essraum liegt im Quadrat. Ein großzügiger Essbereich sollte mind. 300 cm haben, besser 350 cm. Und schon bleiben nur noch 300 cm für den Wohnbereich.

Ich mag halt Ostsonne in der Küche morgens zum Kaffee und direkten Terrassenzugang und zwar dahin, wo man auf der Terrasse sitzen wird. tendenziell kann meine Wohn/Essen/Kochplanung aber auch gespiegelt werden und die Wand versetzt werden. Leider wird es dann am Kücheneingang wieder eng.

Den Gebrauch der Schleuse würde ich nicht überbewerten. Deshalb habe ich die Normalgarderobe ja auch etwas vergrößert und den Bereich dort außerhalb des normalen "Hauslebens" gesetzt. Wenn man dann von oben runterkommt, muss man nicht durch den "Schmutzbereich" des Eingangs.

Insgesamt ist meine Gesamtplanung bereits 125 cm schmaler als die Ausgangsplanung, da ich den Erker mal kurzerhand gestrichen habe
 
S

Slammer0909

Erker ist ein Punkt, der evtl. gestrichen werden könnte, das ist richtig.

Ich denke/weiß auch, genau dieses Quadratische Wonh/Esszimmer ist ein Problem.
Wie bekommt man das geschickt ums Eck, ohne die anderen Wünsche zu vernachlässigen?

Ich habe auf der Südseite eben Max 12m, da muss ich Küche, Essen und Wohnen irgendwie hinbekommen bzw. eins etwas über eine Ecke ziehen.
 
kbt09

kbt09

Du meinst die 12 m in der Tiefe?

Und, das Problem ist, man kann nicht einfach einen Raum schieben, das hat immer viele Auswirkungen auf alles andere.

Ich finde einfach, an den Grundriss muss sich noch mal jemand mit Start 0 setzen.

Und ihr solltet wirklich auch noch mal über so Sachen nachdenken, ob in einem Haus, das so groß ist, wirklich die Treppe 80 cm neben der Haupteingangstür starten muss. Ob die Räume alle so viele Ecken haben müssen usw.
 
Zuletzt aktualisiert 18.11.2025
Im Forum Grundrissplanung / Grundstücksplanung gibt es 2536 Themen mit insgesamt 87971 Beiträgen


Ähnliche Themen zu Grundriss Einfamilienhaus, ca. 200qm ohne Keller - Einschätzung
Nr.ErgebnisBeiträge
1 2 Vollgeschosse, Durchgang Garage, Hauswirtschaftsraum unter Treppe 25
2Grundrissfrage, Treppe, Fenster, Ausrichtung 12
3Haus ohne Garage und Keller? Ausbau Dachboden? Fresswarze? - Seite 585
4Grundrissoptimierung Stadtvilla + Aufschüttüberlegung - Seite 761277
5Wohnzimmer Grundrissplanungs-Ideen? - Seite 239
6Mit Erker in die Abstandsflächen - in diesem Fall zulässig? - Seite 330
7Grobe Schnitzer im Grundriss? Küche zu klein? - Seite 639
8Grundriss Bungalow 150qm mit Garage - Seite 1379
9Zugang von der Garage in den Hauswirtschaftsraum - Seite 549
10Erker in der Küche - Umsetzungsvorschläge 47
11Speisekammer vs. größere Küche vs. Hauswirtschaftsraum 13
12Nicht-bodentiefe Fenster im Wohnzimmer unmodern? Welche Vorhänge? - Seite 217
13Hauswirtschaftsraum Raum ohne Fenster - Lüftungsanlage ausreichend? 26
14Wohnen/Essen/Küche: Wie wohnt ihr oder werdet ihr wohnen? - Seite 852
15Unser Grundriss, Wohn-Essbereich - Eure Meinung - Seite 216
16Probleme bei der aufteilung Küche, Essen , Wohnen 16
17 Küchenplanung mit tiefen Fenster - Seite 343
18Einfamilienhaus mit Einliegerwohnung & Garage 14
19Grundriss Einfamilienhaus / Garage im EG? 10
20Wohnzimmer: Wie Sofa, TV und Schränke stellen? 32

Oben