Hallo liebe Forumsmitglieder,
unsere Planung zum Innenausbau einer Doppelhaushälfte ist in vollen Zügen. Die Treppe ist nun an der Reihe und da wir nicht vom Fach sind, haben wir ein starkes Interesse an fachkundigen Meinungen.
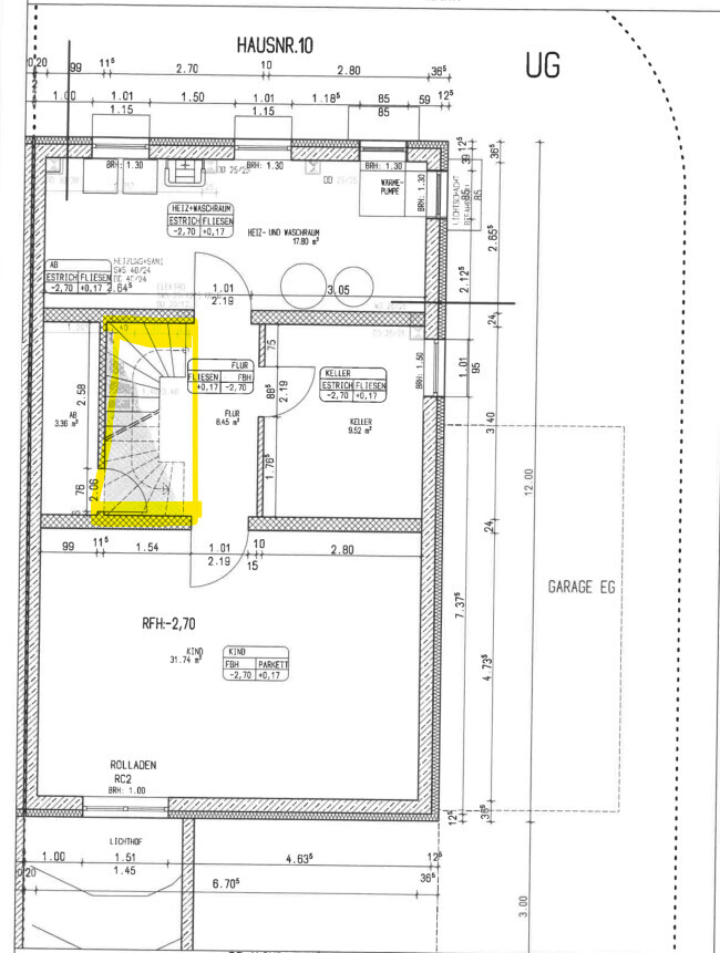
Grundriss
Das Treppenwerk ist in der Mitte der Doppelhaushälfte geplant. Zwei Treppen erstrecken sich über drei Etagen (Keller, EG, OG). Die Treppe ist 2x1/4-gewendelt eingeplant. Hier der Grundriss der jeweiligen Geschosse.



Unsere Anforderung an die Treppenauswahl
Zur bisherigen Auswahl stehen folgende Treppen (und Ideen):
Unsere Fragen
Die Treppenauswahl 1. (Standard). gefällt uns leider nicht so sehr. Zur Treppenauswahl haben wir ein paar Fragen:
unsere Planung zum Innenausbau einer Doppelhaushälfte ist in vollen Zügen. Die Treppe ist nun an der Reihe und da wir nicht vom Fach sind, haben wir ein starkes Interesse an fachkundigen Meinungen.
Grundriss
Das Treppenwerk ist in der Mitte der Doppelhaushälfte geplant. Zwei Treppen erstrecken sich über drei Etagen (Keller, EG, OG). Die Treppe ist 2x1/4-gewendelt eingeplant. Hier der Grundriss der jeweiligen Geschosse.
Unsere Anforderung an die Treppenauswahl
- Die Treppe soll mit Tritt- und Setzstufen ausgestattet sein
- Wangen oder Holme sollen möglichst wenig sichtbar bis "unsichtbar" sein
Zur bisherigen Auswahl stehen folgende Treppen (und Ideen):
- Zweiholmtreppe (Standard). Diese ist im Kaufpreis enthalten.
- Aufgesetzte Wangentreppe in Faltwerkoptik mit Geländer. Der Aufpreis beträgt hier ca. 14.000,- für die komplette Treppenanlage. Beispielbilder:
- Weitere Idee "Zweiholmtreppe zwischen Wänden" mit LED-Spots an der Wandseite und einseitigem Handlauf. Ähnlich wie in diesen Bildern:
- Weitere Idee "Eingestemmte Wangentreppe zwischen Wänden" mit LED-Spots an der Wandseite und einseitigem Handlauf. Ähnlich wie in diesen Bildern:
Unsere Fragen
Die Treppenauswahl 1. (Standard). gefällt uns leider nicht so sehr. Zur Treppenauswahl haben wir ein paar Fragen:
- Zur Treppenauswahl 3: Unser Treppenbauer erwähnte in einem kurzen Gespräch, dass eine Zweiholmtreppe mit Setzstufen geräuschvoll sein kann (gelegentliches Knacken). Er empfiehlt bei Setzstufen eher eine Wangentreppe. Ist das so? Hat hier jemand Erfahrungswerte?
- Zur Treppenauswahl zwischen Wänden (3. oder 4.): Wände lassen bekanntlich weniger Lichteinfall zu. Fällt der Lichtnachteil bei unserem Grundriss schwer ins Gewicht? Sollte man eher Treppenauswahl 2. bevorzugen?
- Habt ihr andere Ideen?
hm…. Mutig… meinst Du nicht, Du solltest erstmal den Grundriss diskutieren lassen, bevor Du da einige Qm versenkst?
Ansonsten mag ich die 2-Holmtreppe leiden, wenn es um Kostenoptimierung plus Stil geht - wir haben sie auch und mögen sie immer noch leiden. Irgendwie ist sie zeitlos und passt in die heutige „Metallgesellschaft“ 🙂
Ansonsten mag ich die 2-Holmtreppe leiden, wenn es um Kostenoptimierung plus Stil geht - wir haben sie auch und mögen sie immer noch leiden. Irgendwie ist sie zeitlos und passt in die heutige „Metallgesellschaft“ 🙂
B
Bertram10019.11.21 21:49Ich würde auf keinen Fall Wände bauen - weil man dann größer Sachen nur schwer nach oben transportieren kann.
Im übrigen guckt sich eine Treppe wirklich schnell weg. Man guckt maximal auf die Trittstufen, aber ob die Holme so oder so oder so aussehen, das ist nicht so entscheidend, finde ich. Mir wäre das Geld für so eine gefaltete Treppen zu Schade, vor allem weil ihr keine freie Sicht auf die Treppe habt. Und eine Podesttreppe ist nun auch nicht so weltbewegend dass man da unbedingt Firlefanz draus machen muss. Finde ich. Ich habe eine gewandelte Treppe und den Aufpreis für die Eichenstufen hätte ich mir sparen können.
Im übrigen guckt sich eine Treppe wirklich schnell weg. Man guckt maximal auf die Trittstufen, aber ob die Holme so oder so oder so aussehen, das ist nicht so entscheidend, finde ich. Mir wäre das Geld für so eine gefaltete Treppen zu Schade, vor allem weil ihr keine freie Sicht auf die Treppe habt. Und eine Podesttreppe ist nun auch nicht so weltbewegend dass man da unbedingt Firlefanz draus machen muss. Finde ich. Ich habe eine gewandelte Treppe und den Aufpreis für die Eichenstufen hätte ich mir sparen können.
bugdder schrieb:
unsere Planung zum Innenausbau einer Doppelhaushälfte ist in vollen Zügen. Die Treppe ist nun an der Reihe und da wir nicht vom Fach sind, haben wir ein starkes Interesse an fachkundigen Meinungen.Wenn Ihr fachlich keine Aktien darin habt, warum wollt Ihr Euch dann an diesem Detail aufreiben, dem man in der Praxis ohnehin nicht unter den Rock guckt ? - bei einem Zwischenhaus würde ich kein Faß dafür aufmachen. Das läßt man den BT bzw. GU machen, wie er es am routiniertesten kann. Die Faltwerkoptik wird gewendelt in der Doppelhaushälfte ihren Mehrpreis nicht abdienen.ypg schrieb:
meinst Du nicht, Du solltest erstmal den Grundriss diskutieren lassen, bevor Du da einige Qm versenkst?Ich sehe hier keine Flächen zur Debatte stehen, und vermute auch wenig Diskussionspotential sowie den Bau auch schon im Gange. Sind die Giebel eigentlich an den kurzen Seiten, oder woher kommen die Schlauchräume ? - dann würde ich die Laufrichtung der Treppe wohl drehen. Beraten laßt Euch lieber bei der Küche, da sehe ich mehr Musik drin.https://www.instagram.com/11antgmxde/
https://www.linkedin.com/company/bauen-jetzt/
@11ant Unser BT arbeitet mit einem Treppenbauer zusammen. Dort können wir natürlich noch Einfluss nehmen. Um die weitere Frage der Schlauchräume zu beantworten: die Doppelhaushälfte sind mit Pultdächern versehen, die nach Norden gerichtet sind.
@Bertram100 An den Transport größerer Gegenstände habe ich tatsächlich noch nicht gedacht. Danke für den Hinweis.
@Bertram100 An den Transport größerer Gegenstände habe ich tatsächlich noch nicht gedacht. Danke für den Hinweis.
ypg schrieb:
hm…. Mutig… meinst Du nicht, Du solltest erstmal den Grundriss diskutieren lassen, bevor Du da einige Qm versenkst?Da bin ich komplett bei dir. Diese „dunklen Schläuche“ hinter den Treppen sind sehr „speziell“. Und auch der Eingangsbereich alles andere als einladend.Schade um die qm…und spätestens im OG ist’s im „Treppenhaus“ dunkel.
Zur Treppe: keines Deiner Bilder passt zu eurer gesuchten 2x1/4-gewendelten Treppe.
Ähnliche Themen