Lichte Raumhöhe planen - Erfahrungen?

4,70 Stern(e) 6 Votes
Zuletzt aktualisiert 24.11.2025
Sie befinden sich auf der Seite 14 der Diskussion zum Thema: Lichte Raumhöhe planen - Erfahrungen?
>> Zum 1. Beitrag <<

77.willo

77.willo

77 Willo

Nur 18 qm Gästezimmer das finde ich eine Zumutung [emoji6]
Wie meinst du das? Das nur bezog sich auf die Fläche im Vergleich zu den anderen Räumen um zu verdeutlichen dass auch bei dieser Größe die Raumhöhe für uns gut passt. Ich wollte nicht ausdrücken dass der Raum für ein Gästezimmer klein oder unangemessen ist. Und würde da auch die Hälfte reichen.
 
C

caddar

Da das Thema hier so gut passt (und mit letztem Post von 21.2.18 vielleicht noch nicht als Leichenfleddern durchgeht) würde ich hier ebenfalls ein "Problem" zum Thema Raumhöhe vs Größe zur Diskussion stellen. Ich war bisher nur stiller Mitleser, falls das nicht hier ins Thema passt und ich lieber einen neuen Thread erstellen sollte, lass es mich bitte wissen. Die bisher im Thread geschilderten Fälle waren ja Neubauten, bei mir geht es allerdings um eine Bestandssanierung eines Wohnhauses von 1962.

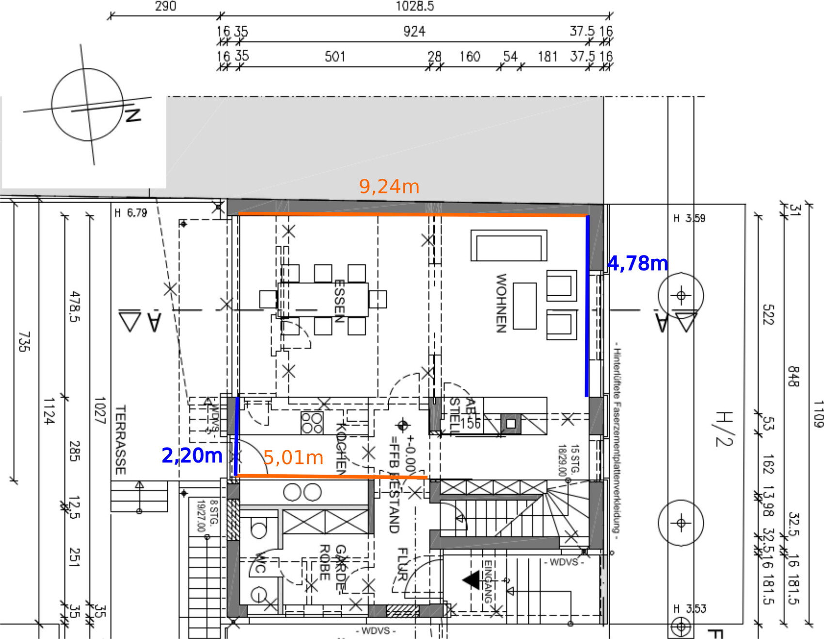
Im aktuell vom Architekten geplanten Entwurf (der uns insgesamt sehr gut gefällt) soll es im EG einen großen Wohn/Ess/Kochbereich geben, mit einer Gesamtfläche von ~44m² für Wohnen+Essen sowie "kurzes L" 11m² Kochen (siehe Grundrissausschnitt). Die lichte Raumhöhe wird nach dem Umbau (neuer Bodenaufbau/Fußbodenheizung...) noch etwa 2,45m betragen. Richtung Süden soll ein großes Fenster, eigentlich über die gesamte Breite zur Terrasse (Mach-/Finanzierbarkeit vorbehalten.)

Wir diskutieren jetzt mal wieder über die Raumhöhe und ob der Raum bei der geplanten Größe drückend wirken könnte bzw. aufgrund der Fenster an den "kurzen" Enden suboptimal beleuchtet ist. Wobei es sich ja gerade bei der Süd-Front um eine große Öffnung handelt.

Was meint ihr dazu? Ist eine Raumhöhe von 2,45m bei dieser Raumgröße in Ordnung? Da Altbau kann die Raumhöhe an sich nicht geändert werden, allerdings steht die Schaffung eines "Luftraums" durch Entfernen der Decke im Essbereich (auf ca. 4mx3.5m) in der Diskussion (inkl. einer 2-geschossigen Glasfassade). Im Prinzip ginge das bei der Gesamtgröße des Hauses, allerdings wäre meiner Frau der Raum im OG mit Südausrichtung eigentlich schon lieber..


Grundriss eines Hauses mit Küche, Essbereich, Wohnen und Terrasse sowie Maßangaben.
 
M

Meicel

Ich würde auch auf jeden Fall höher gehen, 2,45 ist schon recht niedrig. Wir haben 2,60 bei mittelgroßen Räumen und das passt.
 
blaupuma

blaupuma

2,45 bei 40 m2 wirkt sehr erdrückend finde ich.

Durch die Raumgröße wird das Gefühl noch mal verstärkt
 
Zuletzt aktualisiert 24.11.2025
Im Forum Bauplanung gibt es 5072 Themen mit insgesamt 100818 Beiträgen


Ähnliche Themen zu Lichte Raumhöhe planen - Erfahrungen?
Nr.ErgebnisBeiträge
1Lichte Raumhöhe und Fensterhöhe. Standard des Anbieters 262.50cm - Seite 326
2Passen hohe Türen zu einer „normalen“ Raumhöhe? - Seite 220
3Bungalow 135qm: Grundriss + Fenster - Seite 9104
4Mehrkosten / Aufpreis Höhere Fenster 48
5Höhe Fenster / Raffstorekasten 10
6Fensterfläche zu Raumgröße, insbesondere Schlafzimmer 10
7Lichte Raumhöhe im DG nicht eingehalten! Was sind meine Rechte ? 21
8Raumhöhe nach Modernisierung noch 220 cm 27
9Fußbodenheizung vs. Raumhöhe, was soll man machen? 23
10lichte Raumhöhe - wie viel sollte es sein? 28
11Welche Innen-Türhöhe bei welcher Raumhöhe Sammelthread 48
122,40m Raumhöhe mit Spotbeleuchtung ausreichend? 13
13Schräge Fensterinnenseite und zu niedrige Raumhöhe? 19
14Geringe Raumhöhe; höher bauen als genehmigt? 15
15Einbruchsichere Fenster? - Seite 233
16Innenraum Gestaltung - Fenster 14
17Aufpreis für farbige Fenster realistisch? - Seite 319
18Gutachter Mängelfeststellung, Feststellung Einbau Fenster 10
19Riesiges Problem mit dem Kondenswasser am Fenster - Seite 334
20Trefz Fenster Preise und Erfahrungen? 14

Oben