Lichte Raumhöhe planen - Erfahrungen?

4,70 Stern(e) 6 Votes
Zuletzt aktualisiert 07.10.2025
Sie befinden sich auf der Seite 11 der Diskussion zum Thema: Lichte Raumhöhe planen - Erfahrungen?
>> Zum 1. Beitrag <<

B

Bookstar

Ich würde auch aufpassen, dass die Verhältnisse stimmen. Bei einem meiner Freunde ist es z.B. missglückt und die Räume wirken sehr ungemütlich aufgrund der Höhen Breiten Verhältnisse.
 
KingSong

KingSong

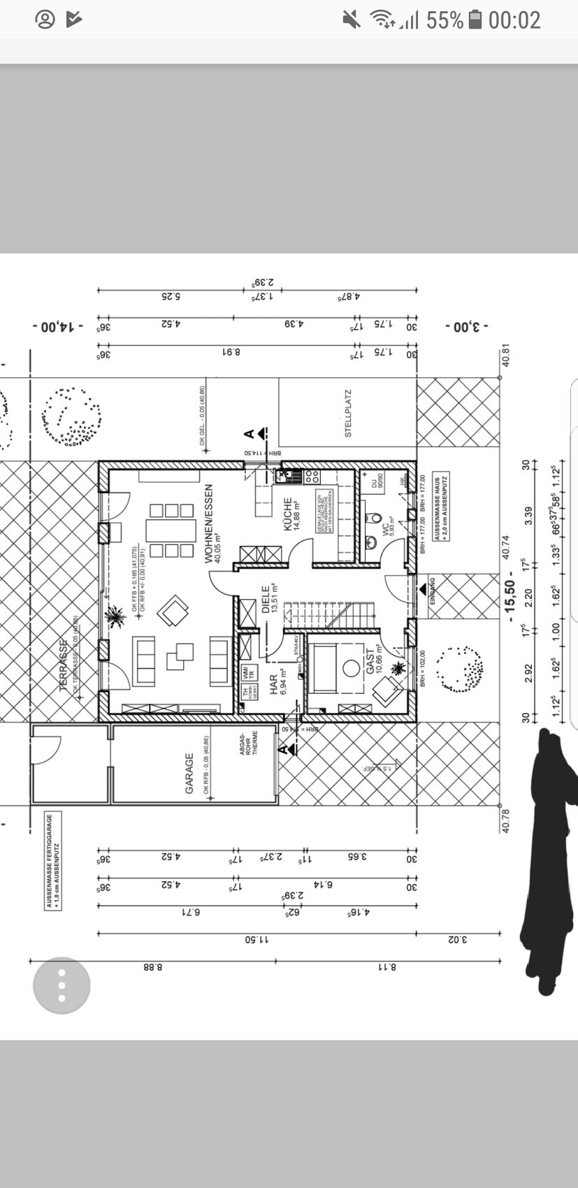
Mal ne doofe Frage, wie können die Fenster eine lichte Höhe von 335cm haben wenn der Raum nur eine lichte Höhe von 260cm bekommt? Versteh ich grad nicht.....
 
Y

ypg


Der Wohnbereich hat eine insgesamt recht breite Fensterfront Richtung Süden, diese Fenstertüren haben alle eine lichte Höhe von 335 cm (2 Fenstertüren mit jeweils 112 cm Breite, sowie eine Hebeschiebetür mit 350 cm Breite). Ich hoffe ihr könnt euch so ein etwas besseres Bild von den Räumen machen.

Als lichte Raumhöhe haben wir momentan 260 cm geplant, der Architekt meinte, dass es ggf. auch 259 cm werden könnten.
...
Fenster Höhe von 335, Raum 260?

Zeig mal den Entwurf des Raumes mit Fenster und co, bitte.
Zu hoch sieht es auch nicht aus...
 
blaupuma

blaupuma

Wir planen gerade so:

Bungalow ca 145qm + 75 qm Einliegerwohnung
Wohn Essbereich 50 qm offen bis zum Giebel ( Satteldach)

Die anderen Räume Schlafzimmer 15 qm KZ 14 qm Bad 7 Hauswirtschaftsraum 15 Eingang 13 so ungefähr sollen alle eine Lichthöhe von 265 bekommen. Dazu Innentüren ca. 98/211 cm

Findet ihr die Proportion stimmen ?
 
Zuletzt aktualisiert 07.10.2025
Im Forum Bauplanung gibt es 5061 Themen mit insgesamt 100646 Beiträgen


Ähnliche Themen zu Lichte Raumhöhe planen - Erfahrungen?
Nr.ErgebnisBeiträge
1Einbruchsichere Fenster? 33
2Innenraum Gestaltung - Fenster 14
3Aufpreis für farbige Fenster realistisch? - Seite 319
4Gutachter Mängelfeststellung, Feststellung Einbau Fenster 10
5Hilfe bei der Anordnung der Fenster benötigt! 32
6Riesiges Problem mit dem Kondenswasser am Fenster 34
7Trefz Fenster Preise und Erfahrungen? 14
8Fenster zwischen 2 Räumen 13
9Meinungen zu Brüstungshöhe Fenster gesucht 30
10Für Bullauge, spezielle Vorschriften? Fenster, Einfamilienhaus 1,5 Geschosse. - Seite 218
11Fenster, Vorbaurollladen, Außenputz 10
12Rundes Fenster - unzufrieden mit Innenlaibung 16
13Welche Rollläden bei verschlossenem Fenster, nur Verglasung? 13
14 Küchenplanung mit tiefen Fenster 43
15Fenster im Neubau: Dreifachverglasung mit Grünstich? - Seite 321
16Grundrissfrage, Treppe, Fenster, Ausrichtung 12
17Kniestockhöhe 2 GeschossIg Fenster Traufseite - Seite 214
18Welche Fenster und Türen empfehlenswert? 21
19Bodengleiche Dusche mit Fenster in der Nähe 13
20Grundriss Einfamilienhaus geplant, Fenster gefallen uns 43

Oben