ᐅ Jurahaus Grundriss - Frühe Projektphase
Erstellt am: 19.02.24 11:04
F
familie_s19.02.24 11:04Hallo zusammen,
Wir haben nach langem Warten endlich unser Traum-Grundstück bei uns in der Gemeinde ergattert.
Nun haben wir mit der Planung begonnen und würden gerne eure Meinung dazu hören.
Bitte beachtet: das ist der erste Entwurf.
Bebauungsplan/Einschränkungen
Größe des Grundstücks: 591qm
Hang: Südhang, Zufahrt von Norden, Hang fällt im Bereich des Hauses ca. 2,5m nach Süden ab.
Grundflächenzahl: 0,35
Baufenster, Baulinie und -grenze: Siehe Bebauungsplan (Trauberg II)
Anzahl Stellplatz: 2 Pro Wohneinheit
Geschossigkeit: 2 Vollgeschosse
Dachform
Siehe Bebauungsplan
Anforderungen der Bauherren
Stilrichtung, Dachform, Gebäudetyp:
Jurahaus (Straßenseite/Norden klassisch, Südseite modern), Satteldach
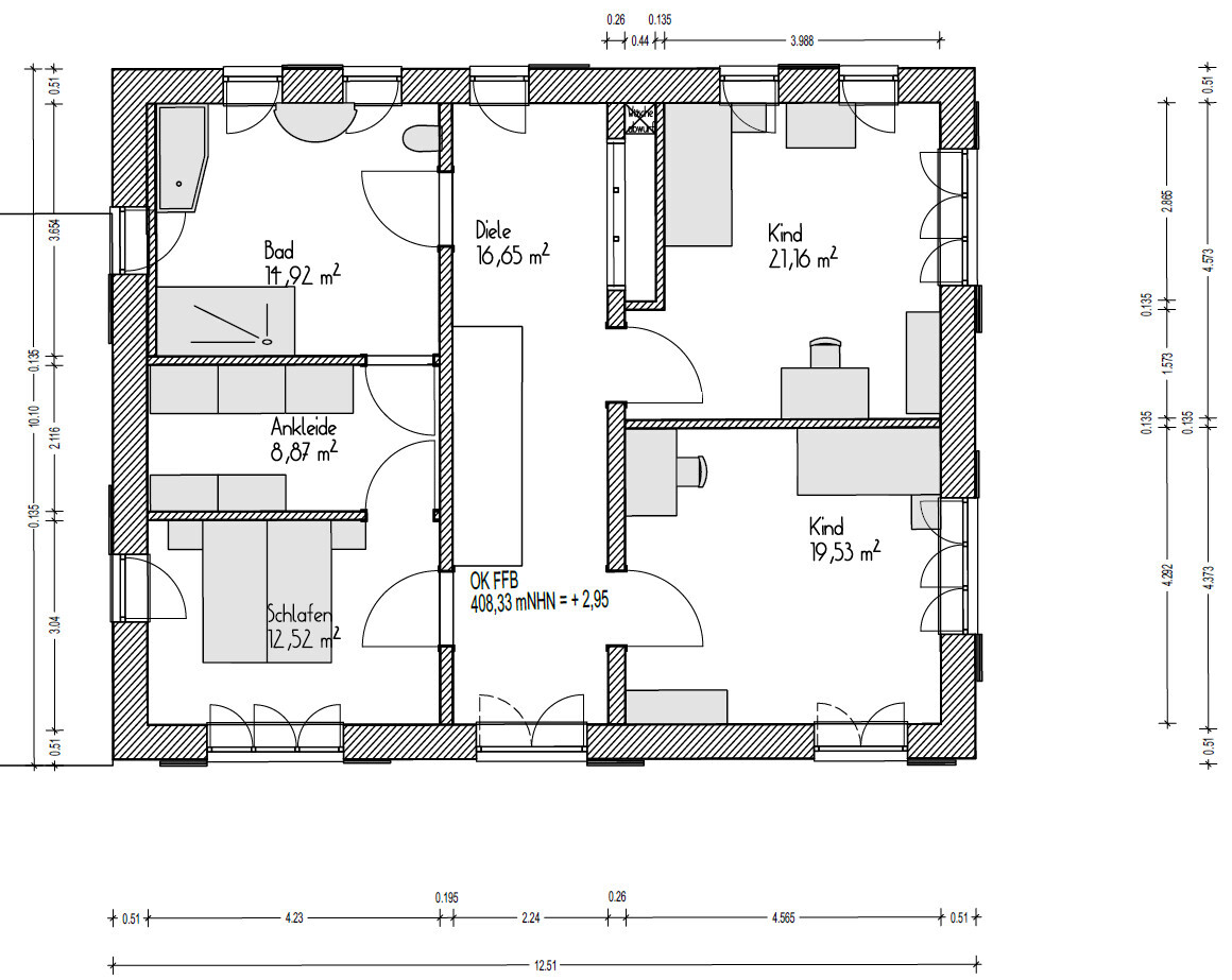
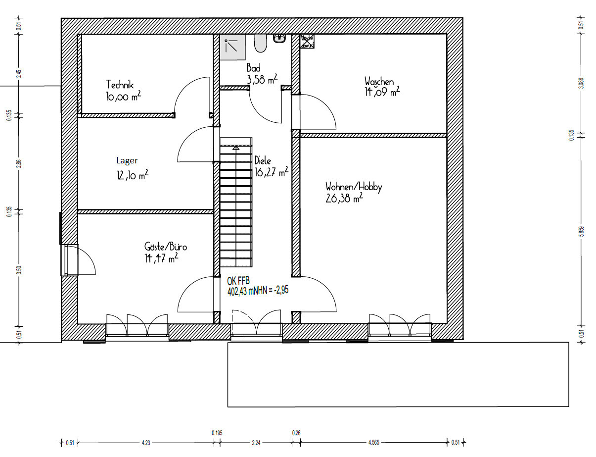
Keller, Geschosse: Keller mit Südseitigem Gartenzugang + 2 Vollgeschosse
Anzahl der Personen, Alter: 3-4 (36, 34, 5) + ggf. ein weiteres Kind
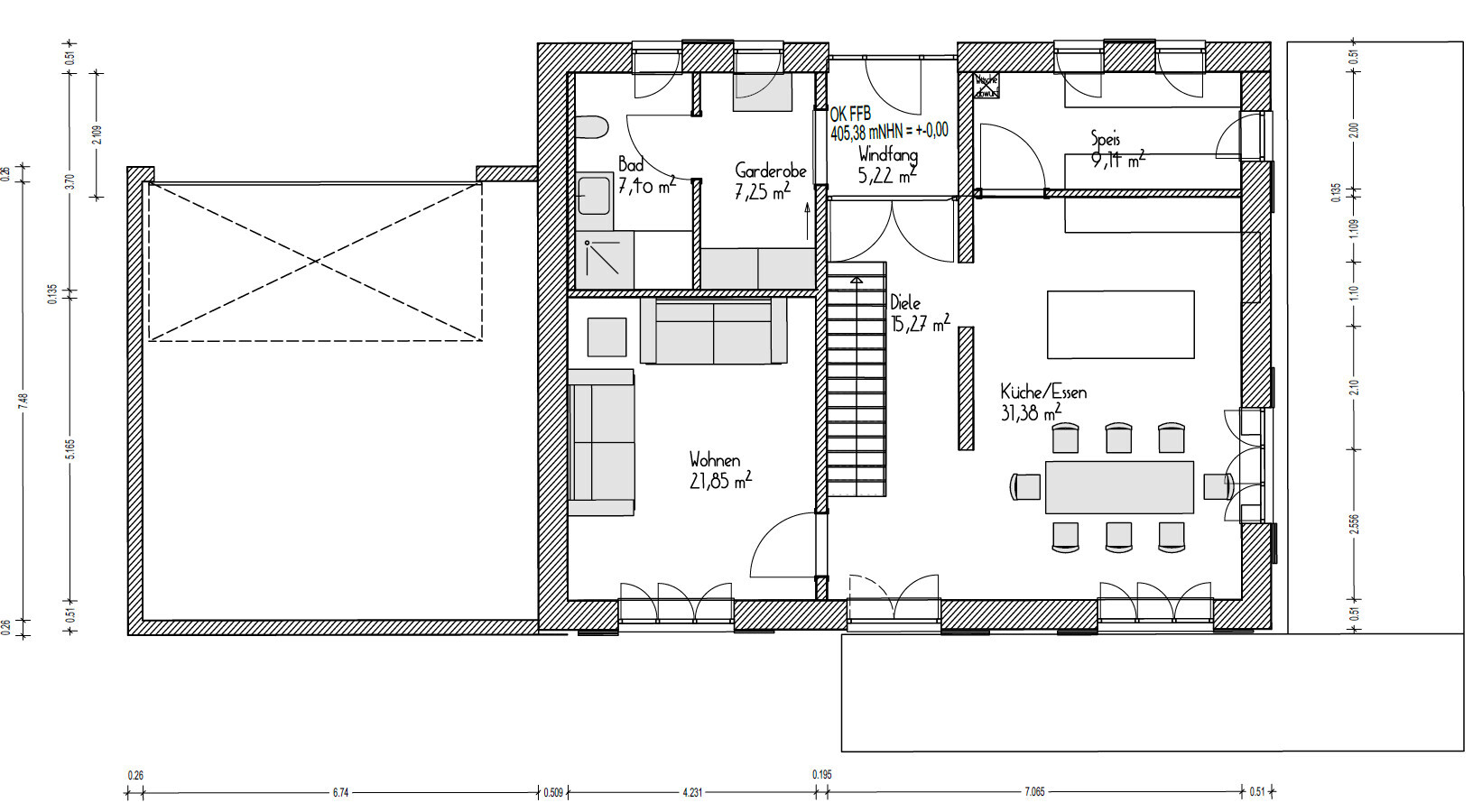
Raumbedarf im KG, EG, OG: Schlafzimmer, Ankleide, Familienbad, Gästebad, Wohnzimmer, Küche/Essen, Speis, Büro/Gast, Büro/Hobby, Lagerraum, Hauswirtschaftsraum, Technikraum (Bad)
Büro: Familiennutzung oder Homeoffice? Beides, zwei Arbeitsplätze in zwei getrennten Räumen notwendig
Schlafgäste pro Jahr: ~ 10x pro Jahr zwei Personen
offene oder geschlossene Architektur: offen
konservativ oder moderne Bauweise: gemischt
offene Küche, Kochinsel: Offener Koch-Essbereich als Familienmittelpunkt, Kochinsel gewünscht, kein Muss.
Anzahl Essplätze: 6 Plätze fest, erweiterbar auf 12 Plätze
Kamin: nein
Musik/Stereowand: nein
Balkon, Dachterrasse: Terrasse angrenzend an Küche ist ein Muss.
Garage, Carport: Doppelgarage notwendig
Nutzgarten, Treibhaus: -
weitere Wünsche/Besonderheiten/Tagesablauf, gern auch Begründungen, warum dieses oder das nicht sein soll:
-Großer Hobbyraum mit Platz für Nähmaschine und ein anderes raumgreifendes Hobby
-Garderobe nicht im Blickfeld, wenn man Haustüre öffnet
-Gästebad nicht neben Haustüre
-Großzügige Speis/Abstellraum mit erweiterter Arbeitsplatte
-Hauswirtschaftsraum nicht im Schlafbereich, habe Pferde, den Dreck will ich nicht in den Schlafbereich tragen. Hauswirtschaftsraum in der nähe des Büros, da Wäsche meistens während Homeoffice gewaschen wird.
Hausentwurf
Von wem stammt die Planung:
-Planer eines Bauunternehmens + DIY
Was gefällt besonders? Warum?
- Raumprogramm wurde sehr gut umgesetzt.
- Keine aufwändige Statik, Installation kann einfach umgesetzt werden.
- Im UG könnte eine Einliegerwohnung umgesetzt werden.
Was gefällt nicht? Warum?
- Fenster: Außenansicht nicht symmetrisch und harmonisch. In der Küche hätten wir das Fenster/die Türe gerne an der Insel, damit man da mehr natürliches Licht hat. Die Terrassentüren sind zu schmal. Die Ansichten habe ich bewusst nicht veröffentlicht, weil wir uns auch noch nicht sicher sind, ob wir auf Klappläden oder Schiebeläden gehen oder auf der Südseite Raffstores/Rollläden wollen.
- Der gewünschte Jurahaus-Charakter kommt noch nicht so rüber wie gewünscht. Wir haben nun erst mal den Grundriss entwickelt, um z.B. den Energieberater abzuholen.
Preisschätzung laut Architekt/Planer: s.U.
Persönliches Preislimit fürs Haus, inkl. Ausstattung: 600k, wir bauen mit der Familie und vergeben nur die Gewerke Sanitär und Heizung. Der BU sagt, wir kommen damit locker hin.
favorisierte Heiztechnik: Wärmepumpe
Wenn Ihr verzichten müsst, auf welche Details/Ausbauten
-könnt Ihr verzichten: Gerade Treppe, Höhe des Kniestocks, der dürfte auch etwas niedriger sein, Bad im UG.
-könnt Ihr nicht verzichten: Speis, Ankleide, Büros bzw. Hobbyraum
Warum ist der Entwurf so geworden, wie er jetzt ist?
Wir haben sehr viele Musterhäuser und Bestandshäuser besichtigt und diese Art Grundriss hat uns immer wieder gefallen.




Wir haben nach langem Warten endlich unser Traum-Grundstück bei uns in der Gemeinde ergattert.
Nun haben wir mit der Planung begonnen und würden gerne eure Meinung dazu hören.
Bitte beachtet: das ist der erste Entwurf.
Bebauungsplan/Einschränkungen
Größe des Grundstücks: 591qm
Hang: Südhang, Zufahrt von Norden, Hang fällt im Bereich des Hauses ca. 2,5m nach Süden ab.
Grundflächenzahl: 0,35
Baufenster, Baulinie und -grenze: Siehe Bebauungsplan (Trauberg II)
Anzahl Stellplatz: 2 Pro Wohneinheit
Geschossigkeit: 2 Vollgeschosse
Dachform
Siehe Bebauungsplan
Anforderungen der Bauherren
Stilrichtung, Dachform, Gebäudetyp:
Jurahaus (Straßenseite/Norden klassisch, Südseite modern), Satteldach
Keller, Geschosse: Keller mit Südseitigem Gartenzugang + 2 Vollgeschosse
Anzahl der Personen, Alter: 3-4 (36, 34, 5) + ggf. ein weiteres Kind
Raumbedarf im KG, EG, OG: Schlafzimmer, Ankleide, Familienbad, Gästebad, Wohnzimmer, Küche/Essen, Speis, Büro/Gast, Büro/Hobby, Lagerraum, Hauswirtschaftsraum, Technikraum (Bad)
Büro: Familiennutzung oder Homeoffice? Beides, zwei Arbeitsplätze in zwei getrennten Räumen notwendig
Schlafgäste pro Jahr: ~ 10x pro Jahr zwei Personen
offene oder geschlossene Architektur: offen
konservativ oder moderne Bauweise: gemischt
offene Küche, Kochinsel: Offener Koch-Essbereich als Familienmittelpunkt, Kochinsel gewünscht, kein Muss.
Anzahl Essplätze: 6 Plätze fest, erweiterbar auf 12 Plätze
Kamin: nein
Musik/Stereowand: nein
Balkon, Dachterrasse: Terrasse angrenzend an Küche ist ein Muss.
Garage, Carport: Doppelgarage notwendig
Nutzgarten, Treibhaus: -
weitere Wünsche/Besonderheiten/Tagesablauf, gern auch Begründungen, warum dieses oder das nicht sein soll:
-Großer Hobbyraum mit Platz für Nähmaschine und ein anderes raumgreifendes Hobby
-Garderobe nicht im Blickfeld, wenn man Haustüre öffnet
-Gästebad nicht neben Haustüre
-Großzügige Speis/Abstellraum mit erweiterter Arbeitsplatte
-Hauswirtschaftsraum nicht im Schlafbereich, habe Pferde, den Dreck will ich nicht in den Schlafbereich tragen. Hauswirtschaftsraum in der nähe des Büros, da Wäsche meistens während Homeoffice gewaschen wird.
Hausentwurf
Von wem stammt die Planung:
-Planer eines Bauunternehmens + DIY
Was gefällt besonders? Warum?
- Raumprogramm wurde sehr gut umgesetzt.
- Keine aufwändige Statik, Installation kann einfach umgesetzt werden.
- Im UG könnte eine Einliegerwohnung umgesetzt werden.
Was gefällt nicht? Warum?
- Fenster: Außenansicht nicht symmetrisch und harmonisch. In der Küche hätten wir das Fenster/die Türe gerne an der Insel, damit man da mehr natürliches Licht hat. Die Terrassentüren sind zu schmal. Die Ansichten habe ich bewusst nicht veröffentlicht, weil wir uns auch noch nicht sicher sind, ob wir auf Klappläden oder Schiebeläden gehen oder auf der Südseite Raffstores/Rollläden wollen.
- Der gewünschte Jurahaus-Charakter kommt noch nicht so rüber wie gewünscht. Wir haben nun erst mal den Grundriss entwickelt, um z.B. den Energieberater abzuholen.
Preisschätzung laut Architekt/Planer: s.U.
Persönliches Preislimit fürs Haus, inkl. Ausstattung: 600k, wir bauen mit der Familie und vergeben nur die Gewerke Sanitär und Heizung. Der BU sagt, wir kommen damit locker hin.
favorisierte Heiztechnik: Wärmepumpe
Wenn Ihr verzichten müsst, auf welche Details/Ausbauten
-könnt Ihr verzichten: Gerade Treppe, Höhe des Kniestocks, der dürfte auch etwas niedriger sein, Bad im UG.
-könnt Ihr nicht verzichten: Speis, Ankleide, Büros bzw. Hobbyraum
Warum ist der Entwurf so geworden, wie er jetzt ist?
Wir haben sehr viele Musterhäuser und Bestandshäuser besichtigt und diese Art Grundriss hat uns immer wieder gefallen.
F
familie_s19.02.24 13:04kbt09 schrieb:
Erste Frage ... wie ist der als MUSS definierte Zugang Küche/Essen zu Terrasse/Garten gedacht?Wir wollen kurze Wege auf die Terrasse, der Slalom durch Ess- und Wohnzimmer in unserer Mietwohnung nervt uns.Wir würden gerne an der Küche auf die Terrasse und von dort ebenerdig in den Garten, in Richtung Süden wäre die Terrasse erhöht und bietet einen tollen Ausblick Richtung Süden.
kbt09 schrieb:
EDIT: Einliegerwohnung ... wo sind dann die 2 weiteren Stellplätze gedacht? Und wer soll da wohnen? Wie wäre Zugang?die sind nicht geplant. Wir planen eine Doppelgarage, durch den geforderten Grenzabstand könnte man davor auch Fahrzeuge stellen. Gefangene Stellplätze sind allerdings nicht erlaubt.Zugang von Süden. Zusätzlich soll in die unterkellerte Garage ein Zugang zum Lager oder Technikraum.
Wir würden aber nicht vermieten wollen, sondern die Wohnung für Familienmitglieder verwenden (Schwiegermutter oder erwachsenes Kind z.B.).
Die Aufteilung in zwei Wohneinheiten ist optional, wir haben keine doppelte Förderung oder dergleichen geplant.
H
hanghaus202319.02.24 14:01F
familie_s19.02.24 14:16hanghaus2023 schrieb:
Den Plan und den Planer schnell in die Tonne. Der hat ja nicht mal den Bebauungsplan gelesen.

Am Hang gehört ein Architekt her, der das schon öfter geplant hat. Die Skizze im Bebauungsplan zeigt doch was der Planersteller sich vorstellt.
Musterhäuser sind für steilen Hang mMn nicht geeignet.Wir verstoßen nicht gegen den Bebauungsplan. der Keller wird nur südlich rausschauen. Geht aber aus unseren Grundrissen nicht hervor, da hast du recht. u.a. das fälschlicherweise eingezeichnete westliche Fenster widerspricht dem. Wir haben schon abgeklärt, dass wir die Höhe so bauen dürfen.
Jurahaus ... das hatten wir hier vor einigen Jahren schon bei @KingSong https://www.hausbau-forum.de/threads/meinungen-zu-unserem-grundriss-entwurf-erwuenscht.23977/ und bei @FidelCastro https://www.hausbau-forum.de/threads/grundriss-ideen-gesucht-haus-jurahaus-stil-gestalten.26304/
1. Nehmt einen freien Architekten ohne Anführungsstriche.
2. geht ohne eigene Planungsversuche mitzunehmen dorthin.
3. macht (i.d.R. mit dem Architekten) eine fachgerechte Ausschreibung, auf die hin gerne auch ein Bieter erklären kann, sich als Generalunternehmer zu bewerben, aber geht niemals direkt (und noch viel niemalsser ohne Ausschreibung) zu einem GU.
Wenn Ihr meinem "Ein Hausbau-Fahrplan, auch für Sie: das Phasenmodell der HOAI!" folgt, dann macht in der Teigruhe nach dem Modul A auch die Weichenstellung, um die im konkreten Fall geeignetere Bauweise herauszufinden. Wichtig: die Weichenstellung ist nur ein Tanztee, da verlobt man sich noch nicht ! - das Teilnehmerfeld dieser Orientierungsrunde hat wegen des anderen Fokusses eine von der späteren Anbieterauswahl unabhängige Zusammensetzung, die Orientierungsrunde ist kein Qualifying für das Turnier !
https://www.instagram.com/11antgmxde/
https://www.linkedin.com/company/bauen-jetzt/
familie_s schrieb:Ist es eines aus https://www.hausbau-forum.de/threads/grundstuecksverlosung-ideale-vorauswahl-treffen.42723/ ?
Wir haben nach langem Warten endlich unser Traum-Grundstück bei uns in der Gemeinde ergattert.
familie_s schrieb:Zweimal falsch: einmal die Reihenfolge, und zweitens die Planerperson.
-Planer eines Bauunternehmens + DIY
1. Nehmt einen freien Architekten ohne Anführungsstriche.
2. geht ohne eigene Planungsversuche mitzunehmen dorthin.
3. macht (i.d.R. mit dem Architekten) eine fachgerechte Ausschreibung, auf die hin gerne auch ein Bieter erklären kann, sich als Generalunternehmer zu bewerben, aber geht niemals direkt (und noch viel niemalsser ohne Ausschreibung) zu einem GU.
Wenn Ihr meinem "Ein Hausbau-Fahrplan, auch für Sie: das Phasenmodell der HOAI!" folgt, dann macht in der Teigruhe nach dem Modul A auch die Weichenstellung, um die im konkreten Fall geeignetere Bauweise herauszufinden. Wichtig: die Weichenstellung ist nur ein Tanztee, da verlobt man sich noch nicht ! - das Teilnehmerfeld dieser Orientierungsrunde hat wegen des anderen Fokusses eine von der späteren Anbieterauswahl unabhängige Zusammensetzung, die Orientierungsrunde ist kein Qualifying für das Turnier !
https://www.instagram.com/11antgmxde/
https://www.linkedin.com/company/bauen-jetzt/
Ähnliche Themen