ᐅ Haus- und Grundrissplanung - Erster Architektenplan liegt vor
Erstellt am: 14.10.20 18:29
Pinkiponk14.10.20 18:29
Wie bereits länger angekündigt, ist nun unser altes Haus in Baden-Württemberg verkauft, unser Umzug in den Landkreis Leipzig vollzogen und wir können uns nun konkret mit unserem neuen Haus beschäftigen. Wir haben uns altersbedingt bewusst hinsichtlich Größe des Grundstücks und der Wohnfläche verkleinert. Eine erste Architektenplanung liegt vor. Ein paar Änderungswünsche haben ich mir bereits notiert und bin nun auf Eure Ergänzungen, Kritik und Vorschläge gespannt. Wenn noch weitere Pläne o.a. benötigt werden, liefere ich die gerne nach, soweit sie mir vorliegen.
Danke schon einmal im Voraus, dass Ihr Euch Zeit nehmt, um mir weiterzuhelfen.
Bebauungsplan/Einschränkungen
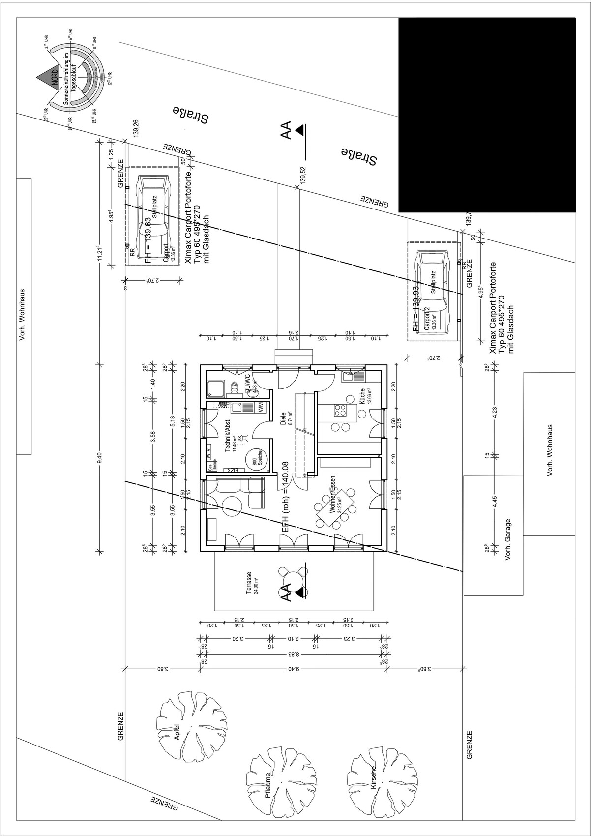
Größe des Grundstücks: 567qm
Hang: optisch nicht wahrnehmbar, wenn es eine wichtige Information ist, suche ich, wo ich sie finden kann
Grundflächenzahl: 0,35
Geschossflächenzahl: 0,8
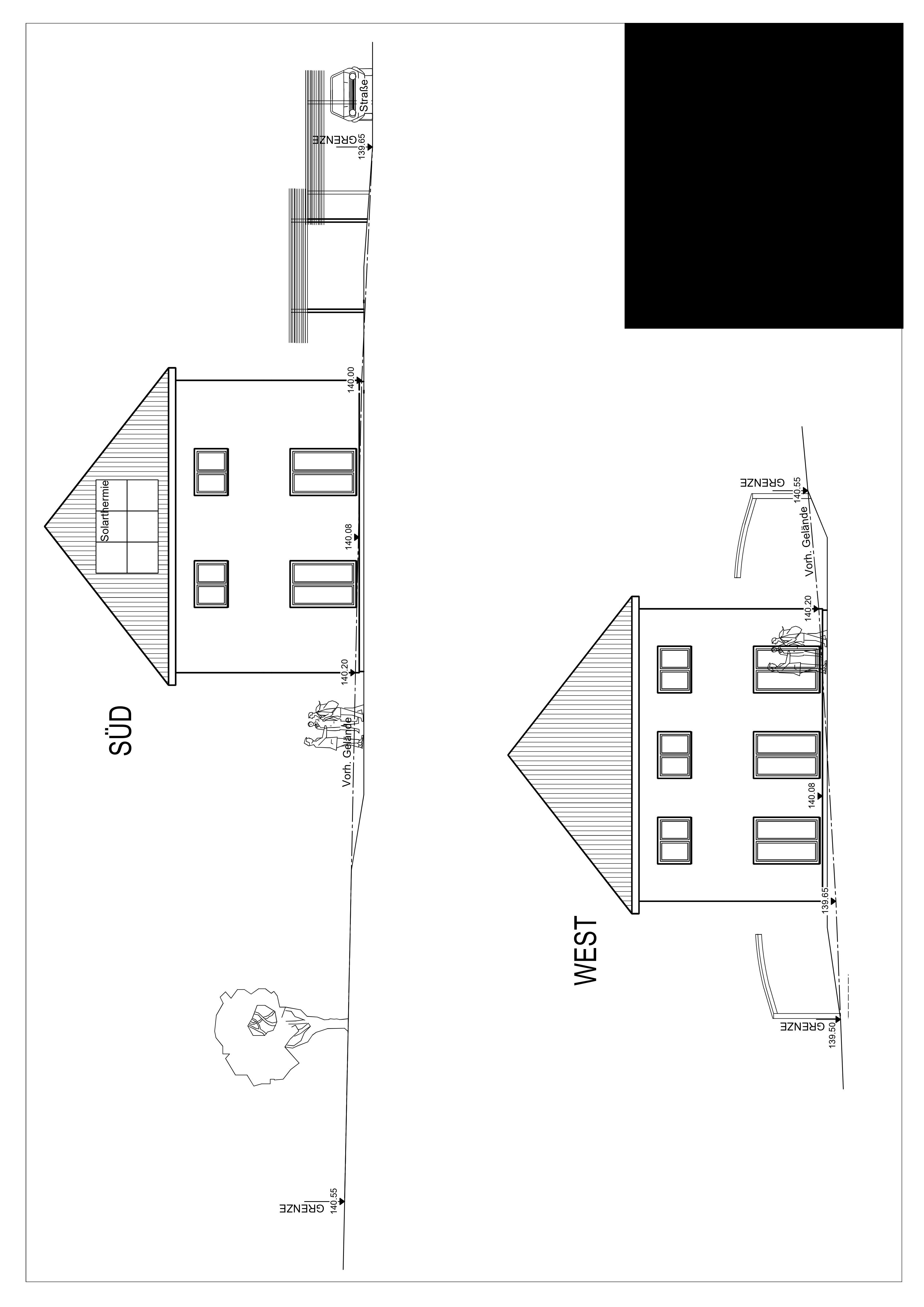
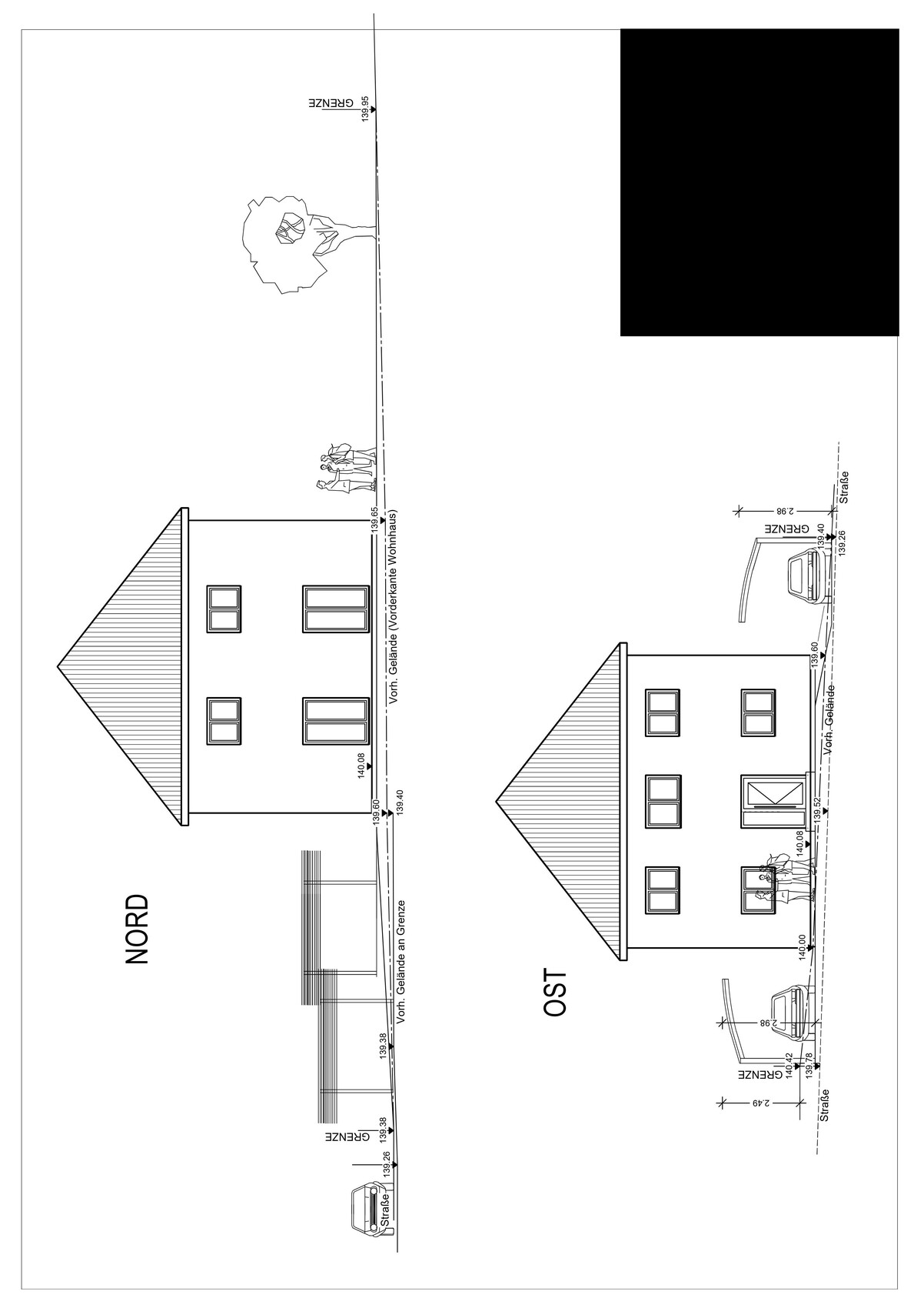
Baufenster, Baulinie und -grenze: siehe beigefügte Zeichnung
Randbebauung: nicht erlaubt/erwünscht unsererseits
Anzahl Stellplatz: 2
Geschossigkeit: 2
Dachform: Zeltdach
Stilrichtung: klassisch, konservativ
Ausrichtung: ?
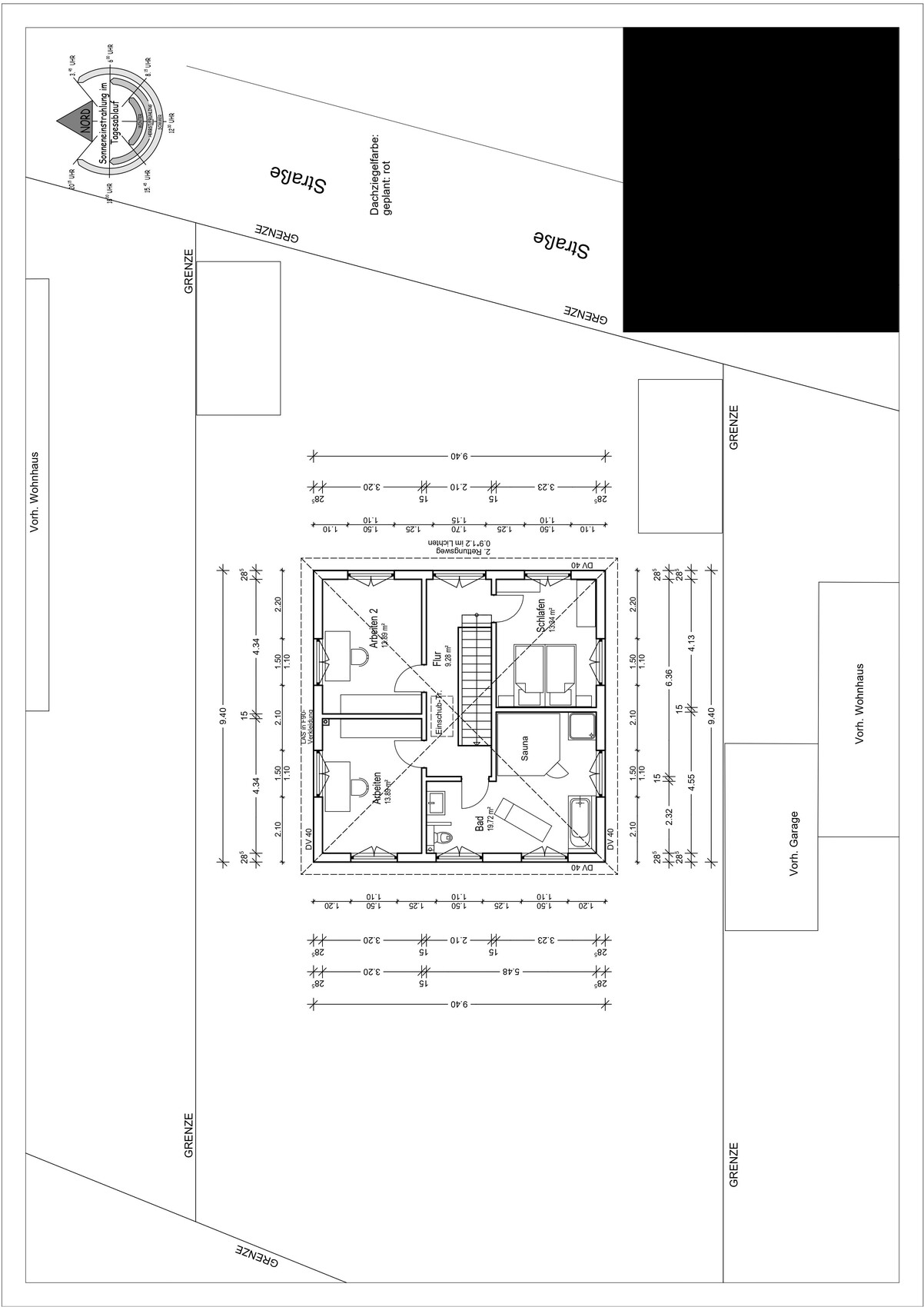
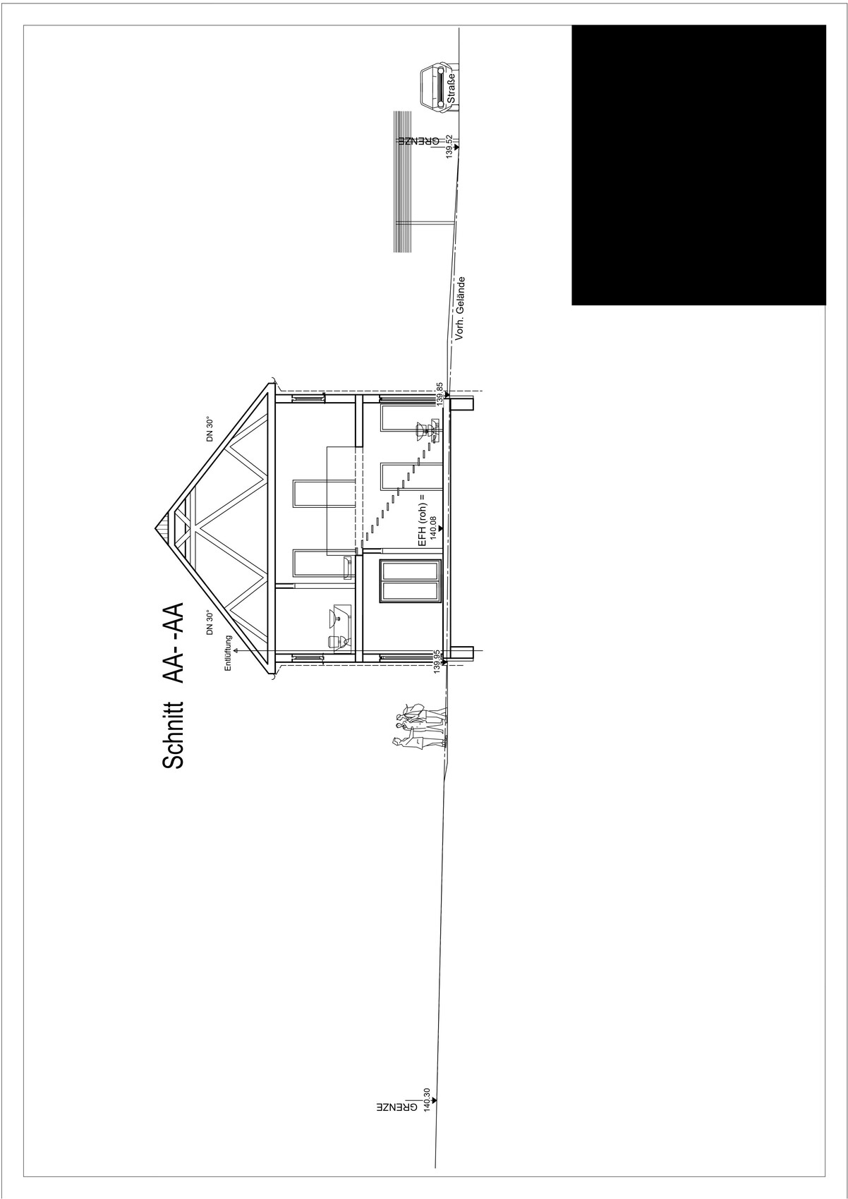
Maximale Höhen/Begrenzungen: "Differenz OK Rohfussboden des EG zu Firsthöhe Hauptdach Max. 11,5 Meter"; "Differenz OK Rohfussboden des EG zu Traufhöhe Hauptdach Max. 7,0 Meter"
weitere Vorgaben
Anforderungen der Bauherren
Stilrichtung, Dachform, Gebäudetyp: wir versuchen uns dem Haus, das unten auf dem Foto ist, anzunähern; allerdings ohne Giebel-Vorsprung; Klassisch/konservativ, Zeltdach, Stadthaus
Keller, Geschosse: kein Keller, 2 Geschosse
Anzahl der Personen, Alter: 1x m 64 J. - 1x w 58 J.
Raumbedarf im EG, OG: EG --> Küche, Duschbad, Aufenthaltsraum/Wohnzimmer, Hauswirtschaftsraum mit Küchenzeile und Bodenabfluss, Flur; OG --> Wannenbad, Schlafzimmer, 2x "Kleider- und Geraffelzimmer"
Büro: Familiennutzung oder Homeoffice? Ehepaar ohne Kinder, kein Homeoffice
Schlafgäste pro Jahr: 10
offene oder geschlossene Architektur: außen offen, innen geschlossen
konservativ oder moderne Bauweise: konservativ
offene Küche, Kochinsel: nein, klassische L-Küche o.ä. (im Plan wurde eine Kochinsel eingezeichnet, die es nicht geben wird)
Anzahl Essplätze: in der Küche 2, im Aufenthaltsraum/Wohnzimmer bis zu 6-8
Kamin: Gasofenkamin
Musik/Stereowand: nein
Balkon, Dachterrasse: beides nein
Garage, Carport: 2x bogenförmige Carports
Nutzgarten, Treibhaus: beides nein
weitere Wünsche/Besonderheiten/Tagesablauf, gern auch Begründungen, warum dieses oder das nicht sein soll
Hausentwurf
Von wem stammt die Planung:
-Planer eines Bauunternehmens: ja, in Kombination mit Bauherrn
-Architekt: unklar
-Do-it-Yourself: ja, in Kombination mit Planer des Fertighausherstellers
Was gefällt besonders? Warum? viele Fenster und Terrassentüren, viel Tageslicht und Luft
Was gefällt nicht? Warum? Im Plan sind die Fefnster im OG zu niedrig, aber das wird noch geändert
Preisschätzung lt Architekt/Planer: bereits beauftragtes Angebot/Bestellung 312.780,00 Euro (ohne Carport, Außenanlage, Baunebenkosten, Grundstück, ...
Persönliches Preislimit fürs Haus, inkl Ausstattung: 400.000,00 Euro
favorisierte Heiztechnik: Gasbrennwerttherme plus Solarthermie (entsprechend gesetzlichen Vorschriften)
Wenn Ihr verzichten müsst, auf welche Details/Ausbauten
-könnt Ihr verzichten: wir verzichten bereits auf Klappläden, Whirlpool
-könnt Ihr nicht verzichten: viele Fenster und Terrassentüren, Sprossen in den Fenstern und Türen
Warum ist der Entwurf so geworden, wie er jetzt ist? ZB
Ein Gemisch aus vielen Beispielen aus div. Magazinen...
Was macht ihn in Euren Augen besonders gut oder schlecht? Er entspricht im Großen und Ganzen unseren Wünschen. Wir wollen im EG aus jedem Raum in den Garten treten können. Symmetrie finden wir gefälliger als Asymmetrie. Wenig unterschiedliche Fenster- und Türformate. Keine "liegenden" Fenster. Jeder von uns hat ein eigenes Zimmer für u.a. Bekleidung, so dass wir keinen Kleiderschrank in das Schlafzimmer stellen müssen. Eine separate Ankleide möchten wir nicht.
Was ist die wichtigste/grundlegende Frage zum Grundriss in 130 Zeichen zusammengefasst?
Mir erscheint das Dach etwas spitz. Sind 30 Grad Dachneigung bei einem Haus mit der Grundfläche 9,40qm x 9,40qm zu schräg? Der Standard lt. Anbieter sind bei diesem Haus 22 Grad. Erschien mir zu flach bzw. man sieht dann fast nichts vom Dach.
Der Bebauungsplan war zum Hochladen zu groß, ich versuche es nochmal in einem separaten Beitrag in diesem Thread.







Danke schon einmal im Voraus, dass Ihr Euch Zeit nehmt, um mir weiterzuhelfen.
Bebauungsplan/Einschränkungen
Größe des Grundstücks: 567qm
Hang: optisch nicht wahrnehmbar, wenn es eine wichtige Information ist, suche ich, wo ich sie finden kann
Grundflächenzahl: 0,35
Geschossflächenzahl: 0,8
Baufenster, Baulinie und -grenze: siehe beigefügte Zeichnung
Randbebauung: nicht erlaubt/erwünscht unsererseits
Anzahl Stellplatz: 2
Geschossigkeit: 2
Dachform: Zeltdach
Stilrichtung: klassisch, konservativ
Ausrichtung: ?
Maximale Höhen/Begrenzungen: "Differenz OK Rohfussboden des EG zu Firsthöhe Hauptdach Max. 11,5 Meter"; "Differenz OK Rohfussboden des EG zu Traufhöhe Hauptdach Max. 7,0 Meter"
weitere Vorgaben
Anforderungen der Bauherren
Stilrichtung, Dachform, Gebäudetyp: wir versuchen uns dem Haus, das unten auf dem Foto ist, anzunähern; allerdings ohne Giebel-Vorsprung; Klassisch/konservativ, Zeltdach, Stadthaus
Keller, Geschosse: kein Keller, 2 Geschosse
Anzahl der Personen, Alter: 1x m 64 J. - 1x w 58 J.
Raumbedarf im EG, OG: EG --> Küche, Duschbad, Aufenthaltsraum/Wohnzimmer, Hauswirtschaftsraum mit Küchenzeile und Bodenabfluss, Flur; OG --> Wannenbad, Schlafzimmer, 2x "Kleider- und Geraffelzimmer"
Büro: Familiennutzung oder Homeoffice? Ehepaar ohne Kinder, kein Homeoffice
Schlafgäste pro Jahr: 10
offene oder geschlossene Architektur: außen offen, innen geschlossen
konservativ oder moderne Bauweise: konservativ
offene Küche, Kochinsel: nein, klassische L-Küche o.ä. (im Plan wurde eine Kochinsel eingezeichnet, die es nicht geben wird)
Anzahl Essplätze: in der Küche 2, im Aufenthaltsraum/Wohnzimmer bis zu 6-8
Kamin: Gasofenkamin
Musik/Stereowand: nein
Balkon, Dachterrasse: beides nein
Garage, Carport: 2x bogenförmige Carports
Nutzgarten, Treibhaus: beides nein
weitere Wünsche/Besonderheiten/Tagesablauf, gern auch Begründungen, warum dieses oder das nicht sein soll
Hausentwurf
Von wem stammt die Planung:
-Planer eines Bauunternehmens: ja, in Kombination mit Bauherrn
-Architekt: unklar
-Do-it-Yourself: ja, in Kombination mit Planer des Fertighausherstellers
Was gefällt besonders? Warum? viele Fenster und Terrassentüren, viel Tageslicht und Luft
Was gefällt nicht? Warum? Im Plan sind die Fefnster im OG zu niedrig, aber das wird noch geändert
Preisschätzung lt Architekt/Planer: bereits beauftragtes Angebot/Bestellung 312.780,00 Euro (ohne Carport, Außenanlage, Baunebenkosten, Grundstück, ...
Persönliches Preislimit fürs Haus, inkl Ausstattung: 400.000,00 Euro
favorisierte Heiztechnik: Gasbrennwerttherme plus Solarthermie (entsprechend gesetzlichen Vorschriften)
Wenn Ihr verzichten müsst, auf welche Details/Ausbauten
-könnt Ihr verzichten: wir verzichten bereits auf Klappläden, Whirlpool
-könnt Ihr nicht verzichten: viele Fenster und Terrassentüren, Sprossen in den Fenstern und Türen
Warum ist der Entwurf so geworden, wie er jetzt ist? ZB
Ein Gemisch aus vielen Beispielen aus div. Magazinen...
Was macht ihn in Euren Augen besonders gut oder schlecht? Er entspricht im Großen und Ganzen unseren Wünschen. Wir wollen im EG aus jedem Raum in den Garten treten können. Symmetrie finden wir gefälliger als Asymmetrie. Wenig unterschiedliche Fenster- und Türformate. Keine "liegenden" Fenster. Jeder von uns hat ein eigenes Zimmer für u.a. Bekleidung, so dass wir keinen Kleiderschrank in das Schlafzimmer stellen müssen. Eine separate Ankleide möchten wir nicht.
Was ist die wichtigste/grundlegende Frage zum Grundriss in 130 Zeichen zusammengefasst?
Mir erscheint das Dach etwas spitz. Sind 30 Grad Dachneigung bei einem Haus mit der Grundfläche 9,40qm x 9,40qm zu schräg? Der Standard lt. Anbieter sind bei diesem Haus 22 Grad. Erschien mir zu flach bzw. man sieht dann fast nichts vom Dach.
Der Bebauungsplan war zum Hochladen zu groß, ich versuche es nochmal in einem separaten Beitrag in diesem Thread.
Pinkiponk14.10.20 18:32
Der zweite Versuch, den Bebauungsplan hochzuladen, ist gescheitert. Der Bebauungsplan ist zu groß.
11ant14.10.20 18:52
Pinkiponk schrieb:
Danke schon einmal im Voraus, dass Ihr Euch Zeit nehmt, um mir weiterzuhelfen.Später gerne, um 20:30 kommt Babylon Berlin, und ich muß vorher noch kochen. Auf den ersten Blick sehe ich viel Inspiration durch Symmetrieprinzessin Shiny86 und wundere mich über das Binderdach bei dieser Neigung.Pinkiponk schrieb:
Der zweite Versuch, den Bebauungsplan hochzuladen, ist gescheitert. Der Bebauungsplan ist zu groß.Mail´ mir das Ding ´mal (klassisch, nicht via PN) in allen Formaten, die Du hast und die Du hochladen wolltest (und auf diesem Weg ja unproblematisch auch mit Link zur Fundstelle), dann sollten wir das gute Stück schon herkriegen.https://www.instagram.com/11antgmxde/
https://www.linkedin.com/company/bauen-jetzt/
Pinky030114.10.20 19:14
Hallo,
mir sind spontan ein paar Dinge aufgefallen, zu denen ich Fragen hab:
- Die Dusche im OG kommt mir ziemlich mickrig vor, wirkt aber vielleicht auch nur so neben der großen Sauna?
Ist da im Bad eine Liege eingezeichnet? Es gibt von manchen Wannenherstellern Auflagen für die Badewanne, um daraus eine Liege zu machen. Nicht ganz günstig, aber sehr schick (finde ich) und ihr könntet euch die Liege sparen, die etwas im Weg steht
- Wie ist denn die Küche geplant? Schade, dass ihr sie nicht offen wollt, man könnte sie ja auch z. B. mit Schiebetüren abtrennbar machen. Ich finde den Weg zum Esstisch und zur Terrasse sehr weit.
- Wofür eine Dusche im EG?
- Wäre Wäschewaschen im OG nicht praktischer? Gerade im Alter kann es ja schwer bis gefährlich werden, mit dem Wäschekorb die Treppe zu laufen?
mir sind spontan ein paar Dinge aufgefallen, zu denen ich Fragen hab:
- Die Dusche im OG kommt mir ziemlich mickrig vor, wirkt aber vielleicht auch nur so neben der großen Sauna?
Ist da im Bad eine Liege eingezeichnet? Es gibt von manchen Wannenherstellern Auflagen für die Badewanne, um daraus eine Liege zu machen. Nicht ganz günstig, aber sehr schick (finde ich) und ihr könntet euch die Liege sparen, die etwas im Weg steht
- Wie ist denn die Küche geplant? Schade, dass ihr sie nicht offen wollt, man könnte sie ja auch z. B. mit Schiebetüren abtrennbar machen. Ich finde den Weg zum Esstisch und zur Terrasse sehr weit.
- Wofür eine Dusche im EG?
- Wäre Wäschewaschen im OG nicht praktischer? Gerade im Alter kann es ja schwer bis gefährlich werden, mit dem Wäschekorb die Treppe zu laufen?
icandoit14.10.20 19:44
Hallo,
ich wuerde den Carport im Sueden nicht platzieren. Doppelcarport im Norden.
Wie sind die Abstandsflaechen? Sind das in Sachsen nicht auch 3m? Dann das Haus die 80 cm nach Norden verschieben.
Warum baut man da ein Quadrat? Rechteck mit langer Seite im Sueden bringt mehr Freiheit auf der Suedseite. INAA
ich wuerde den Carport im Sueden nicht platzieren. Doppelcarport im Norden.
Wie sind die Abstandsflaechen? Sind das in Sachsen nicht auch 3m? Dann das Haus die 80 cm nach Norden verschieben.
Warum baut man da ein Quadrat? Rechteck mit langer Seite im Sueden bringt mehr Freiheit auf der Suedseite. INAA
Elokine14.10.20 20:01
Hallo, das Haus hat für 2 auf jeden Fall schön viel Platz! Eine Idee wäre, Schlafzimmer und Arbeiten 1 zu tauschen, dann ist der Weg zum Bad nicht so weit.
Ansonsten hat gute Hinweise gegeben. Vor allem der fehlende Durchgang von der Küche ins Esszimmer fällt auf.
Ansonsten hat gute Hinweise gegeben. Vor allem der fehlende Durchgang von der Küche ins Esszimmer fällt auf.
Ähnliche Themen