Hausbau - Ratgeber
Bauherrenhilfe
- Bauherrenhilfe vor Vertragsabschluss
-- Warum einen unabhängigen Baubetreuer?
-- Vertragsgrundlagen
-- Bausumme
-- Zahlungsplan zur Kostenkontrolle
-- Pflichten des Bauherren vor Vertragsabschluss
-- Unterlagen beim Hausbau vor Vertragsabschluss
- Bauherrenhilfe nach Vertragsabschluss
-- Bauantrag bei Behörden
-- Bau-Genehmigungsverfahren bei Baubehörden
-- Bauspezifische Versicherungen
-- Bauzeitenplan
-- Baubeginn - die Letzten Pflichten der Bauherrschaft
- Bauherrenhilfe während der Bauzeit
- Gewährleistungsansprüche
- Bauabnahme
Baufinanzierung
- Baufinanzierung - Allgemeine Fragen
- Kreditarten
- Kredit-Konditionen
- Bausparen
- Staatliche Förderungen
- Verkehrswert
- Haushaltsrechnung und Bonität
Hausbau Planung
- Haustypen
- Hausbau Vorbereitungsarbeiten
- Das Baugrundstück
- Baugrund beim Hausbau
- Baurecht
- Gebäudeschutz
- Erdarbeiten und Wasserhaltung
- Stützmauern
- Einfriedung
- Untergeschoss
- Kanalisation
- Tragende Elemente
- Nichttragende Innenwände
- Fundation / Fundament
- Deckenkonstruktionen
- Dächer
- Kaminanlagen
- Treppen Rampen Leitern
- Dachbeläge und Spengler
- Fenster
- Sonnen und Wetterschutz
- Aussenputze
- Einbauten, Küchen, Türen
- Bodenbeläge und Unterlagsböden
- Parkett
- Gips, Wand, Decke
Haustechnik und Energie
- Heiztechnik
- Lüftung und Klimatechnik
- Sanitärtechnik
- Elektrotechnik
- Erneuerbare Energie
Whirlpools / Jacuzzi
Hausbau Magazin
- Baufinanzierung trotz Krise?
- Das Blockhaus
- Moderne Dämmstoffe im Vergleich
- Erker Vor- und Nachteile
- Glasflächen beim Hausbau
- Günstig ein Haus Bauen
- Mediterraner Hausbaustil
- Mehrgenerationenhaus
- Moderne Architektur
- Gartengestaltung leicht gemacht
- Traditioneller Ziegelbau
- Villa als höchster Traum
- Im Eigenheim Ruhestand geniessen
- Altbau sanieren
- Kauf einer Holzgarage
- Immobilienmakler
- Arbeitshandschuhe für den Winter
- Zuhause verschönern
- Outdoor-Plissees
- Schlafzimmer planen
- Terrassenüberdachung
- Wohngebäudeversicherung
- Zaunarten und Eigenschaften
- Hauseingang gestalten
- Der perfekte Grundriss
- Sparsamer heizen im Altbau
- Einfamilienhaus smart finanzieren
- Planung einer PV-Anlage
- Neues Haus
- Immobilienfinanzierung
- Installation einer Photovoltaikanlage
- Asbest erkennen und entfernen
- Gartenpflege im Frühling – worauf achten
- Sauna im Fokus - Wellness zuhause
- Erfolgreich vermieten
- Die perfekte Winterbekleidung
- Das Niedrigenergiehaus
- Der April und seine Stürme
- Architektonische Vielfalt
- Ökologisch und nachhaltig bauen
- Das perfekte Schlafzimmer
- Nachhaltige Energieversorgung
- Zukunftsorientiert bauen
- Nachhaltigkeit beim Hausbau
- Tiny Houses
- Wärmepumpen als nachhaltige Heizvariante
- Maßgeschneiderten Kleiderschrank
- Der richtige Baukredit
- Ratgeber für erfolgreichen Hausbau
- Haus als Altersvorsorge
Do-it-yourself Anleitungen
- Verlegeanleitung für Bodenbeläge und Parkett
- Bodenbeläge und Parkett reinigen und pflegen
- Malerarbeiten am Haus
- Garten Tipps
- Umzug und Reinigung

ᐅ Haus-Platzierung auf Grundstück & Grobstruktur des Hauses

Erstellt am: 31.10.22 10:15
D
DanskTorsk
D
DanskTorsk
31.10.22 10:15
Guten Morgen ihr Lieben!

Wir sind zurück in die Heimat in die unmittelbare Nähe der Eltern/Schwiegereltern gezogen, und haben nach 2 Jahren Marktbeobachtung nun das Glück gehabt bei einem Grundstück zuschlagen zu dürfen. Der Kauf ist im Gange, und wir sitzen nun Step by Step an der Grobplanung des Hauses. Dazu waren wir in den letzten Wochen auch in etlichen Musterhäusern, um uns einen Live-Eindruck zu verschaffen welche Raumkonstallationen für uns sinnvoll sind.

Ein wenig Bauchschmerz macht uns aktuell noch die sinnvolle Platzierung / Ausrichtung auf dem Grundstück, und die resultierende Grobstruktur des Gebäudes anhand Nutzung und Gegebenheiten. Die Grundrisse der Musterhäuser dienten als Inspiration, wir sind nicht an einen spezifischen Bauträger gebunden, können uns das Viebrockhaus Maxime 610 aber sehr gut hinsichtlich Struktur und Raumaufteilung vorstellen. Vor weiteren Gesprächen hätten wir gerne eine eigene, grobe Vorstellung..

Dies ist mein erster Versuch hier im Forum, ich versuche euch also so viel wie möglich aus der vorgeschlagenen Anleitung mit auf den Weg zu geben. Vielen Dank vorab schonmal für eure wertvollen Impulse und Feedbacks, das hilft uns in der aktuellen Phase wirklich sehr! Dickes Danke dafür!

Bebauungsplan/Einschränkungen
Größe des Grundstücks // 800 m2
Hang // nein
Grundflächenzahl // 0,35
Geschossflächenzahl // keine Angabe im Bebauungsplan
Baufenster, Baulinie und -grenze // 3 m Abstände zu den Grenzen im S, W und N, 5 m Abstand zur Grenze im O
Geschossigkeit // 1 Vollgeschoss
Dachform // Sattel, Walm, Krüppelwalmdach
Maximale Höhen/Begrenzungen // TH 4,5m, FH 9,0m
weitere Vorgaben // generell handelt es sich um ein Baugebiet, was ca. vor 10 Jahren erschlossen wurde

Für euch eine Visualisierung zum Flurstück und Ausrichtung, noch ohne Haus o.ä.

Lageplan eines Grundstücks mit Gebäudeumrissen, Maßlinien und Kompassrose


Anforderungen der Bauherren
Stilrichtung, Dachform, Gebäudetyp // Traditionell aber auch Modern, aktuell haben wir uns nach den Besuchen am ehesten im Viebrockhaus Maxime 610 in der Version zu besichtigen in Bad Fallingbostel eingeschossen, mit Klinker und Traufgiebel
Anzahl der Personen, Alter // 2 Erwachsene, 2 Kinder
Büro: Familiennutzung oder Homeoffice? // benötigen 2 HOs
offene Küche, Kochinsel // Wunsch nach offener Küche und Lebensraum, analog Maxime 610
Garage, Carport // Eine große Garage sollte auf dem Grundstück Platz finden. Das ist einer der ganz wesentlichen Faktoren bei der Gesamtplatzierung auf dem Grundstück, wo wir uns den Kopf zerbrechen.

Für euch das Haus so wie es in Bad Fallingbostel steht:

Modernes Haus außenansicht mit rotem Ziegeldach, Bruchsteinfassade und Terrasse.


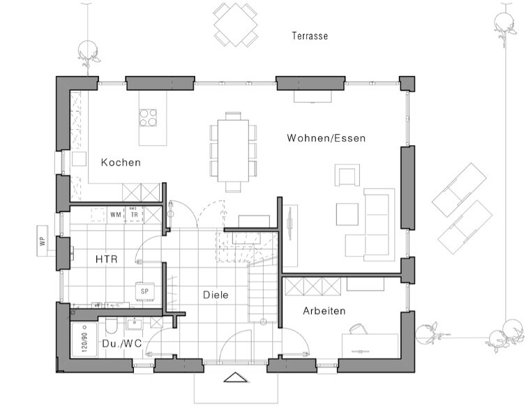
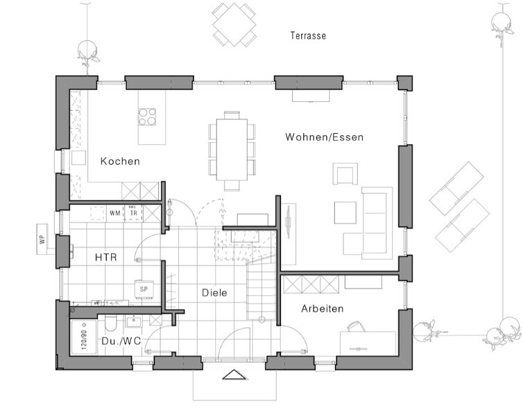
Erdgeschoss-Grundriss: Diele, Küche, Wohnen/Essen, Arbeiten, Du/WC, Heizraum, Terrasse.

Quelle: Viebrockhaus Webseite

Hausentwurf
Von wem stammt die Planung // aktuell Inspiration Musterhäuser + DIY Platzierung auf Grundstück + Grundriss EG Grobstruktur
Was gefällt besonders? Warum? // Struktur Haus bzw. Grundriss ideal für uns, ggf. in gespiegelter Version (Hauswirtschaftsraum im W, Arbeitszimmer im O)

Inspiration Maxime 610, allerdings der EG Grundriss gespiegelt (sodass HTR und G-WC im Grundriss "rechts" sind, also bei unserer Ausrichtung auf der Westseite im "dunklen Eck" der Garage) und mit Traufgiebel (kommt nach Süden raus, da wo der Esstisch steht). Sprich ungefähr so auf dem Grundstück ausgerichtet, würde ich mir denken:


Lageplan eines Grundstücks: Gebäude in Blau, Garagen, Zufahrt, Wege, Terrasse, Gartenhaus

Das Problem dabei: der gelb eingezeichnete Weg zum eigentlichen Eingang des Hauses. Das erscheint mir nicht optimal.

=> Ich habe grundsätzlich versucht das Haus so zu platzieren, dass der Süd-West-Garten maximiert ist (denn da hält man sich Abends auf). Ist das generell eine sinnvolle Herangehensweise? Die Straße links / im Westen ist kaum befahren, nur durchs Wohngebiet mit um die 50 Häusern, sehr überschaubar.

=> Weitere Versionen haben die Garage bspw. oben rechts im Eck, als Grenzbebauung, somit schöpfen wir aber sehr schnell die zulässigen 15 Meter aus. Mit Zufahrt im nördlichen 3m-Raum, lange Einfahrt. Gartenhaus damit tabu, unschön.

=> Eine Drehung des Hauses mit Ausrichtung Traufgiebel nach rechts / Osten erscheint mir auch nicht sinnvoll, Dachfläche Photovoltaik fällt weg. Platzierung an der Straße würde den Garten reduzieren, dann hat man viel Ostgarten, das bringt Abends nichts.

=> Oder wäre das generelle Fazit: macht gar keinen Sinn, und suche dir bspw. ein Haus mit GIEBELEINGANG (bspw. Maxime 620), und ziehe bspw. die Garage bis ans Haus ran?

Was ist die wichtigste/grundlegende Frage zum Grundriss in 130 Zeichen zusammengefasst?

  • Grundlegend: Platzierung Haus, Garage, Einfahrt auf unserem künftigen Grundstück
  • Hinweise Haustyp und Eingang, macht bspw. einzig ein Giebeleingang Sinn?

Lageplan eines Grundstücks mit Gebäudeflächen, Maßangaben und Kompass

Anzeige
Hallo DanskTorsk,

schau mal hier: Haus-Platzierung auf Grundstück & Grobstruktur des Hauses. Da wird jeder fündig!
Y
ypg
31.10.22 11:06
DanskTorsk schrieb:

Das Problem dabei: der gelb eingezeichnete Weg zum eigentlichen Eingang des Hauses. Das erscheint mir nicht optimal.
Dreh mal die Garage um 90 Grad im UZS.
Dann kannst Du sie an die 3 Meter Baugrenze vorn setzen. Zw linken Nachbarn und Garage hast Du dann Hof Richtung Haustür, Garage wäre dann Sichtschutz für die südliche Terrasse.
Du kannst sie auch anders herum drehen, dann an der Grundstücksgrenze lassen. Der Weg führt dann wieder über den vorgelagerten Hof zw Garage und Haus… es hat alles Vorteile.
viebrockhausgaragegrundstückgrundrissgiebeleingangmusterhäuserbebauungsplandachformküchegarten