Hanglage mit ebenerdiger Terrasse

4,60 Stern(e) 8 Votes
Zuletzt aktualisiert 28.12.2025
Sie befinden sich auf der Seite 8 der Diskussion zum Thema: Hanglage mit ebenerdiger Terrasse
>> Zum 1. Beitrag <<

F

Frank1987

Guten Morgen,
unser Architekt hat uns den ersten Entwurf zugesendet. Was haltet ihr davon?
An sich gefällt uns die Idee. Aber die Garage steht irgendwie nicht auf dem richtigen Platz.


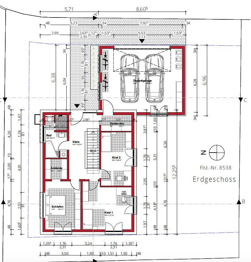
Grundriss Erdgeschoss: Doppelgarage, Flur, Schlafzimmer, Kind 1, Kind 2, Bad, Diele, Garderobe.

Grundriss eines Hauses mit Wohnzimmer, Küche, Flur, Gast, Abstellraum, Terrasse.

Ansicht von Süden: zweigeschossiges Haus mit zwei Balkonen, Glastüren und Fensterfront.

Ansicht von Osten eines Gebäudes mit Garage, Eingangstür und schrägem Dach an der Geländekante.

Westansicht eines zweistöckigen Hauses mit Balkonen, Türen und seitlichem Anbau.

Zwei moderne Häuser auf Hang mit Grasfläche; Nordansicht.

Architektur-Schnitt B-B: Haus mit Erdgeschoss und Untergeschoss, schräges Dach, Maßangaben.

Querschnitt A-A: Haus mit Keller, Treppe, Erd- und Untergeschoss und Garage.
 
H

haydee

Ich würde den Eingangsbereich anders gestalten. So dass man auf eine Tür oder Garderobe blickt und nicht auf das Schlafzimmer.
Ich möchte nicht halb bekleidet vom Schlafzimmer ins Bad, am Eingang vorbei laufen.
 
face26

face26

Ja, sehe ich auch so wie @haydee. An sich finde ich den Baukörper im Hang ganz gut. Aber gerade wenn Du auf der "Schlaf-Ebene" den Eingang hast, geht das so aber meiner Meinung nach gar nicht. Meiner Meinung nach müsstest Du hier einen räumlich getrennten und geschlossenen Eingangsbereich/Windfang haben. Das wird aber mit einer gerade Treppe sehr schwierig. Der Größe des Hauses gibt gerade so eine gerade Treppe her (ob die einem dann gefällt oder man die unbedingt haben will (andere Treppenformen sind platzsparender) ist ein anderes Thema) aber nicht in der Konstellation mit Eingang oben. Wenn nicht zusätzlich Budget hast um einen Anbau als Windfang zu machen wirst das kaum hinbekommen. Du müsstest die Treppe verschieben was zu einem anderen Grundriss führt und das Haus kaum hergibt.
Vielleicht nochmal durchwürfeln und mit einer halbgewendelten Treppe an der Stelle der Garderobe/Vorrat versuchen.
Keine Ahnung obs was bringt nur so als Idee.
 
H

haydee

Bei Freunden ist es so gelöst
links von der Eingangstür die Garderobe, rechts die Treppe, gegenüber eine Türe (ja wirkt nicht ganz so großzügig und hat etwas von Wohnungsbau) hinter der die Schlafräume erschlossen sind.
Hat den Vorteil maximaler Privatsphäre, der Blick wird gut zur Treppe gelenkt, da es dort hell ist, die Schlafräume liegen ruhig. Egal ob ein kommen und gehen ist, ob unten laut gesprochen wird.
 
Zuletzt aktualisiert 28.12.2025
Im Forum Grundrissplanung / Grundstücksplanung gibt es 2557 Themen mit insgesamt 88613 Beiträgen


Ähnliche Themen zu Hanglage mit ebenerdiger Terrasse
Nr.ErgebnisBeiträge
1Ankleide/Schlafzimmer Problem - Grundrissdiskussion 25
2Grundrissfrage, Treppe, Fenster, Ausrichtung - Seite 212
3Grundriss Einfamilienhaus ohne Keller/Schlafzimmer und Bad im EG - Seite 427
4Suche Vorschläge für Grundriss Doppelhaushälfte - Seite 756
5Wohin mit der Treppe? Dachausbau Walmdachbungalow - Seite 219
6Treppe im Flur, Grundriss steht eigentlich schon :o( 20
7Treppe Grundriss Planung, Auftritt und Unterzug - Seite 221
8Grundrissfrage, Garage, Treppe 33
9Windfang nachträglich an Rohbau anbauen 17
10Einfamilienhaus ca. 150 qm Grundriss - Treppe wie planen? 65
11Stadtvilla mit gerader Treppe, offene moderne Bauweise, 140m² 18
12Treppe im Wohnzimmer als Hype - Pro & Contra? - Seite 426
13Idee Schlafzimmer - Bett / Schrank Anordnung 32
14Schrank unter der Treppe oder kleiner Abstellraum - Seite 211
15Planung Einbaustrahler Flur und Garderobe - Tipps - Seite 662
16Grundriss Einfamilienhaus barrierefrei fürs Alter mit Eltern-Schlafzimmer im EG - Seite 744
17Grundriss Schlafzimmer, Ankleide und Bad en Suite 36
18Grundrissfrage: Tausch gerader Treppe durch L-Treppe 31
19Was ist bei einer Treppe beachten/Unterschie Wendeluing 22
20 2 Vollgeschosse, Durchgang Garage, Hauswirtschaftsraum unter Treppe 25

Oben