ᐅ Grundrissplanung Stadtvilla
Erstellt am: 27.11.15 08:20
Bebauungsplan/Einschränkungen
Größe des Grundstücks: 657qm (ca. 23m x 28,5m)
Hang: Ebenerdig
Grundflächenzahl: 0,4
Geschossflächenzahl: 0,8
Randbebauung: Garage darf auf Grundstücksgrenze
Anzahl Stellplatz: 2 Stellplätze
Maximale Höhen/Begrenzungen: Firsthöhe 10m, Traufhöhe 6m
Anforderungen der Bauherren
Stilrichtung, Dachform, Gebäudetyp: Stadtvilla
Keller, Geschosse: Kein Keller, 2 Vollgeschosse
Anzahl der Personen, Alter: 2 Personen 30 Jahre, später 2 Kinder
Raumbedarf im EG, OG
Büro: Familiennutzung oder Homeoffice: Familie
offene oder geschlossene Architektur: offen
konservativ oder moderne Bauweise: modern
offene Küche, Kochinsel: beides
Anzahl Essplätze: 6-8
Kamin: ja
Balkon, Dachterrasse: Balkon
Garage, Carport: Doppelgarage
Zisterne mit Anschluss an Garten und Garage
Hausentwurf
Von wem stammt die Planung: Architekt mit uns zusammen
Was gefällt besonders? Großer Wohn/Essbereich, Erker mit Blick in den Garten, großzügige Zimmer
Preisschätzung lt Architekt/Planer: sind noch in der Einholung von Angeboten. Wird aber wohl zwischen 280k und 300k liegen mit Grundstück
Persönliches Preislimit fürs Haus, inkl Ausstattung: 350k
favorisierte Heiztechnik: Erdwärme mit Sonde
Schönen guten Morgen,
mal wieder wende ich mich an euch. Bald geht es auch bei uns in die finale Phase der Planung. Seit wir uns vor 2 ½ Monaten, kurz vor Vertragsabschluss, von unserem favorisierten Bauunternehmer trennten, haben wir uns entschieden die Sache selbst in die Hand zu nehmen. Zum einen um das Haus kostengünstiger hochzuziehen, zum anderen um einfach individueller auf unsere Wünsche eingehen zu können ohne uns dafür dumm und dämlich zu zahlen.
Wir haben uns für die verschiedenen Gewerke schon Angebote eingeholt und verglichen. Einige fehlen noch, wie z.B. Innentüren, Innen- und Außenputz, Treppe aber Rohbau, Fenster, Heizung, Lüftung, Sanitär, Zimmermann, Elektro und Dach steht schon.
Demnächst würden wir gerne den Bauantrag stellen. Dafür sind wir im Moment nun dabei, mit unserem Architekten den Grundriss fertig zu stellen. Da ihr schon vor einigen Monaten mit wertvollen Tipps aufwarten konntet, würde ich nun auch gerne wieder darauf zurückkommen.
Kleiner Hinweis:
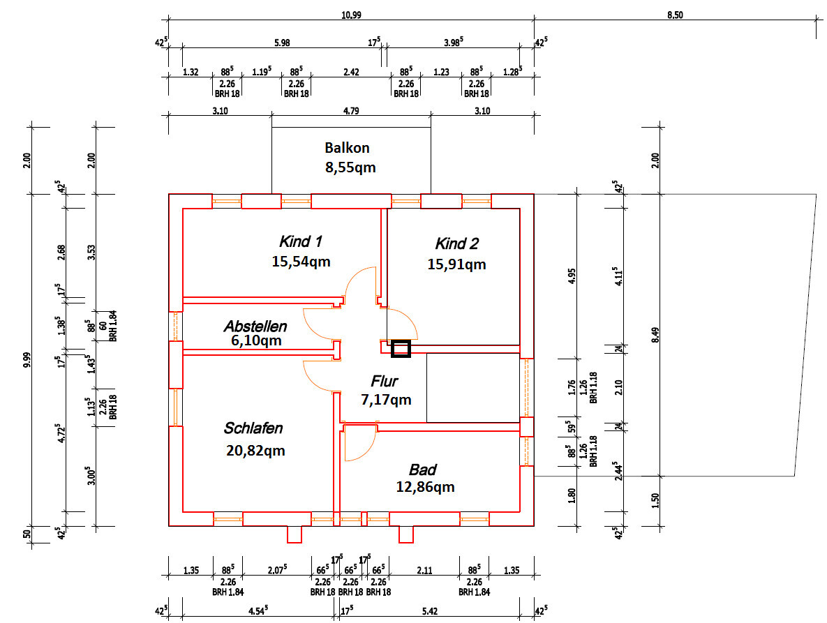
- Wir haben schon veranlasst, dass im nächsten Plan der Raum „Schlafen“ im Obergeschoss zugunsten der Abstellkammer und des Kinderzimmers etwas verkleinert wird.
- Der Kamin wird auch noch genauer ausgearbeitet und die Doppeltür zum Wohnzimmer soll noch etwas weiter nach Links gesetzt werden um die Wand für den wohnzimmerschrank zu vergrößern.
- Die Treppe ist noch falsch gezeichnet, es handelt sich dabei eigentlich um eine Podesttreppe.
Hinweis zum Grundriss:
EG:
- Wohnfläche: 88,72 qm
- Nutzfläche: 63,51 qm
OG:
- Wohnfläche 78,4 qm
Gesamt:
- Wohnfläche: 167,12 qm
- Nutzfläche: 63,51 qm
Für Fragen und Kritik bin ich offen.
Danke und Gruß
Michael
Zwei Bilder wurden zum Eingangsthread aus der Diskussion zugefügt. Gruss, Yvonne, Mod





Größe des Grundstücks: 657qm (ca. 23m x 28,5m)
Hang: Ebenerdig
Grundflächenzahl: 0,4
Geschossflächenzahl: 0,8
Randbebauung: Garage darf auf Grundstücksgrenze
Anzahl Stellplatz: 2 Stellplätze
Maximale Höhen/Begrenzungen: Firsthöhe 10m, Traufhöhe 6m
Anforderungen der Bauherren
Stilrichtung, Dachform, Gebäudetyp: Stadtvilla
Keller, Geschosse: Kein Keller, 2 Vollgeschosse
Anzahl der Personen, Alter: 2 Personen 30 Jahre, später 2 Kinder
Raumbedarf im EG, OG
Büro: Familiennutzung oder Homeoffice: Familie
offene oder geschlossene Architektur: offen
konservativ oder moderne Bauweise: modern
offene Küche, Kochinsel: beides
Anzahl Essplätze: 6-8
Kamin: ja
Balkon, Dachterrasse: Balkon
Garage, Carport: Doppelgarage
Zisterne mit Anschluss an Garten und Garage
Hausentwurf
Von wem stammt die Planung: Architekt mit uns zusammen
Was gefällt besonders? Großer Wohn/Essbereich, Erker mit Blick in den Garten, großzügige Zimmer
Preisschätzung lt Architekt/Planer: sind noch in der Einholung von Angeboten. Wird aber wohl zwischen 280k und 300k liegen mit Grundstück
Persönliches Preislimit fürs Haus, inkl Ausstattung: 350k
favorisierte Heiztechnik: Erdwärme mit Sonde
Schönen guten Morgen,
mal wieder wende ich mich an euch. Bald geht es auch bei uns in die finale Phase der Planung. Seit wir uns vor 2 ½ Monaten, kurz vor Vertragsabschluss, von unserem favorisierten Bauunternehmer trennten, haben wir uns entschieden die Sache selbst in die Hand zu nehmen. Zum einen um das Haus kostengünstiger hochzuziehen, zum anderen um einfach individueller auf unsere Wünsche eingehen zu können ohne uns dafür dumm und dämlich zu zahlen.
Wir haben uns für die verschiedenen Gewerke schon Angebote eingeholt und verglichen. Einige fehlen noch, wie z.B. Innentüren, Innen- und Außenputz, Treppe aber Rohbau, Fenster, Heizung, Lüftung, Sanitär, Zimmermann, Elektro und Dach steht schon.
Demnächst würden wir gerne den Bauantrag stellen. Dafür sind wir im Moment nun dabei, mit unserem Architekten den Grundriss fertig zu stellen. Da ihr schon vor einigen Monaten mit wertvollen Tipps aufwarten konntet, würde ich nun auch gerne wieder darauf zurückkommen.
Kleiner Hinweis:
- Wir haben schon veranlasst, dass im nächsten Plan der Raum „Schlafen“ im Obergeschoss zugunsten der Abstellkammer und des Kinderzimmers etwas verkleinert wird.
- Der Kamin wird auch noch genauer ausgearbeitet und die Doppeltür zum Wohnzimmer soll noch etwas weiter nach Links gesetzt werden um die Wand für den wohnzimmerschrank zu vergrößern.
- Die Treppe ist noch falsch gezeichnet, es handelt sich dabei eigentlich um eine Podesttreppe.
Hinweis zum Grundriss:
EG:
- Wohnfläche: 88,72 qm
- Nutzfläche: 63,51 qm
OG:
- Wohnfläche 78,4 qm
Gesamt:
- Wohnfläche: 167,12 qm
- Nutzfläche: 63,51 qm
Für Fragen und Kritik bin ich offen.
Danke und Gruß
Michael
Zwei Bilder wurden zum Eingangsthread aus der Diskussion zugefügt. Gruss, Yvonne, Mod
Hab ich was verpasst oder kommt die Technik ins Wohnzimmer? Nee mal im ernst...wo sollen Hausanschlüsse und Heizung hin?
Kommt ins WC eine Dusche? Sonst ist das ziemlich groß.
Bad OG lässt sich m.E schlecht möblieren.
Erker solltet ihr überdenken.
Finde die Raumgeometrieen stellenweise sehr unglücklich und schlachförmig - wie wollt ihr den Abstellraum z.B. möblieren?
Der ganze Entwurf wirkt nicht stimmig. Bitte einmal komplett möblieren.
Kommt ins WC eine Dusche? Sonst ist das ziemlich groß.
Bad OG lässt sich m.E schlecht möblieren.
Erker solltet ihr überdenken.
Finde die Raumgeometrieen stellenweise sehr unglücklich und schlachförmig - wie wollt ihr den Abstellraum z.B. möblieren?
Der ganze Entwurf wirkt nicht stimmig. Bitte einmal komplett möblieren.
Invi85 schrieb:
Wird aber wohl zwischen 280k und 300k liegen mit GrundstückWird schwierigBeHaElJa schrieb:
Hab ich was verpasst oder kommt die Technik ins Wohnzimmer? Nee mal im ernst...wo sollen Hausanschlüsse und Heizung hin?Eine Erdwärmeheizung braucht weniger Platz als eine Waschmaschine. 9qm Hauswirtschaftsraum sollten eigentlich ausreichen.BeHaElJa schrieb:
Kommt ins WC eine Dusche? Sonst ist das ziemlich groß.Ja, in die hintere Ecke kommt eine Dusche.BeHaElJa schrieb:
Erker solltet ihr überdenken.Warum?BeHaElJa schrieb:
Der ganze Entwurf wirkt nicht stimmig. Bitte einmal komplett möblieren.Habe den Grundriss in einem Programm nachgebaut und mit unseren Möbeln versehen, kommt alles so weit hin.@alexm86
Grundstück kostet uns nur knapp 38k €. Der Rest würde fürs Haus draufgehen. Mit unseren momentanen Angeboten kommt das recht gut hin
Gruß
Michael
W
Watcher7827.11.15 08:57Ich finde die meisten Räume einfach zu schmal, wie BeHaElJa schon schreibt sind die schlauchförmig. Mir gefällt der Grundriss nicht. Die Ansichten finde ich so ok.
Ähnliche Themen