Bebauungsplan/Einschränkungen
Größe des Grundstücks 819 qm, Grundstück liegt im Südosten direkte an der Waldgrenze,
vor dem Grundstück ist eine kleine Privatstraße und im Osten dann eine öffentliche Straße, die direkt vor dem Grundstück zur Sackgasse wird.
Hang nein
Grundflächenzahl 0,2
Baufenster, Baulinie und -grenze: 5 Meter zur Straße, 3 Meter zu den Nachbarn
Randbebauung, Carport separat vom Haus
Anzahl Stellplatz 2
Geschossigkeit 2
Dachform Pultdach / Walmdach
Stilrichtung: Stadtvilla modern
Ausrichtung: nach Südosten, da Wald an der Grundstücksgrenze
Maximale Höhen/Begrenzungen: maximal 8,25 Meter hoch, aufgrund § 34 noch Verhandlungsspielraum mit dem Bauamt
Anforderungen der Bauherren
Stilrichtung, Dachform, Gebäudetyp
Keller, Geschosse 2 Vollgeschosse
Anzahl der Personen, Alter:2 30+40 Jahre mit Ausblick auf +1
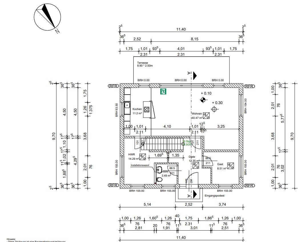
Raumbedarf im EG, OG: großzügiges Wohnzimmer gewünscht
Büro: Familiennutzung oder Homeoffice?
Schlafgäste pro Jahr: regelmäßig 2 Kinder (6+9 Jahre)
offene oder geschlossene Architektur: offen
konservativ oder moderne Bauweise:modern
offene Küche, Kochinsel: offene Küche mit Kochinsel
Anzahl Essplätze: ein zentraler Esstisch mit 8 Essplätzen
Kamin: eher nein, macht bei KFW55 und Wärmepumpe mit Fußbodenheizung nicht soviel Sinn. Evtl. Ethanolkamin?
Musik/Stereowand: Heimkino
Terrasse ja nach Süden / Südosten ausgerichtet zum Wald
Garage, Carport: 1 Carport (6x 5 m) mit zwei Stellplätzen an der Grenze zum links daneben liegenden Grundstück geplant
Nutzgarten, Treibhaus: Hochbeete rechts vom Haus in Richtung Straße geplant
Hausentwurf
Von wem stammt die Planung:
-Do-it-Yourself / BU
Was gefällt besonders? Großes Wohnzimmer mit Blick zum Wald
Was gefällt nicht? Lösung Übergang Flur / Wohnzimmer, Überlegen, dass evtl. doch offen zu gestallten.
Preisschätzung lt Architekt/Planer:310.000
Persönliches Preislimit fürs Haus, inkl Ausstattung:330.000
favorisierte Heiztechnik:Luftwärmepumpe
Wenn Ihr verzichten müsst, auf welche Details/Ausbauten
bisher nichts gefunden, was man weglassen sollte
Warum ist der Entwurf so geworden, wie er jetzt ist? ZB
Wichtig war uns ein möglichst großes Wohnzimmer mit Ausrichtung zum Wald mit großen Fenstern sowie eine offene Küche. Der Rest wurde ringsherum geplant.
Was ist die wichtigste/grundlegende Frage zum Grundriss in 130 Zeichen zusammengefasst?
Funktioniert der Grundriss so oder haben wir an entscheidene Dinge nicht gedacht ?








Größe des Grundstücks 819 qm, Grundstück liegt im Südosten direkte an der Waldgrenze,
vor dem Grundstück ist eine kleine Privatstraße und im Osten dann eine öffentliche Straße, die direkt vor dem Grundstück zur Sackgasse wird.
Hang nein
Grundflächenzahl 0,2
Baufenster, Baulinie und -grenze: 5 Meter zur Straße, 3 Meter zu den Nachbarn
Randbebauung, Carport separat vom Haus
Anzahl Stellplatz 2
Geschossigkeit 2
Dachform Pultdach / Walmdach
Stilrichtung: Stadtvilla modern
Ausrichtung: nach Südosten, da Wald an der Grundstücksgrenze
Maximale Höhen/Begrenzungen: maximal 8,25 Meter hoch, aufgrund § 34 noch Verhandlungsspielraum mit dem Bauamt
Anforderungen der Bauherren
Stilrichtung, Dachform, Gebäudetyp
Keller, Geschosse 2 Vollgeschosse
Anzahl der Personen, Alter:2 30+40 Jahre mit Ausblick auf +1
Raumbedarf im EG, OG: großzügiges Wohnzimmer gewünscht
Büro: Familiennutzung oder Homeoffice?
Schlafgäste pro Jahr: regelmäßig 2 Kinder (6+9 Jahre)
offene oder geschlossene Architektur: offen
konservativ oder moderne Bauweise:modern
offene Küche, Kochinsel: offene Küche mit Kochinsel
Anzahl Essplätze: ein zentraler Esstisch mit 8 Essplätzen
Kamin: eher nein, macht bei KFW55 und Wärmepumpe mit Fußbodenheizung nicht soviel Sinn. Evtl. Ethanolkamin?
Musik/Stereowand: Heimkino
Terrasse ja nach Süden / Südosten ausgerichtet zum Wald
Garage, Carport: 1 Carport (6x 5 m) mit zwei Stellplätzen an der Grenze zum links daneben liegenden Grundstück geplant
Nutzgarten, Treibhaus: Hochbeete rechts vom Haus in Richtung Straße geplant
Hausentwurf
Von wem stammt die Planung:
-Do-it-Yourself / BU
Was gefällt besonders? Großes Wohnzimmer mit Blick zum Wald
Was gefällt nicht? Lösung Übergang Flur / Wohnzimmer, Überlegen, dass evtl. doch offen zu gestallten.
Preisschätzung lt Architekt/Planer:310.000
Persönliches Preislimit fürs Haus, inkl Ausstattung:330.000
favorisierte Heiztechnik:Luftwärmepumpe
Wenn Ihr verzichten müsst, auf welche Details/Ausbauten
bisher nichts gefunden, was man weglassen sollte
Warum ist der Entwurf so geworden, wie er jetzt ist? ZB
Wichtig war uns ein möglichst großes Wohnzimmer mit Ausrichtung zum Wald mit großen Fenstern sowie eine offene Küche. Der Rest wurde ringsherum geplant.
Was ist die wichtigste/grundlegende Frage zum Grundriss in 130 Zeichen zusammengefasst?
Funktioniert der Grundriss so oder haben wir an entscheidene Dinge nicht gedacht ?
Lycana9 schrieb:
Wichtig war uns ein möglichst großes Wohnzimmer mit Ausrichtung zum WaldWenn einem der Wald gefällt, warum dekoriert man dann seinen Rand mit einer "Stadtvilla" ?https://www.instagram.com/11antgmxde/
https://www.linkedin.com/company/bauen-jetzt/
Ähnliche Themen