ᐅ Stadtvilla ca 200qm mit Anbau
Erstellt am: 06.12.20 12:17
Hallo zusammen,
tolles Forum hier! Hab schon einige tolle Ideen gesammelt. Zu meinem Thema: wir sind gerade in der Planungsphase für eine Stadtvilla und benötigen einige Ratschläge.
Bebauungsplan/Einschränkungen
Größe des Grundstücks - 649qm
Hang - nein
Grundflächenzahl - 0,3m
Geschossflächenzahl -
Baufenster, Baulinie und -grenze: 3m
Randbebauung: nur carport
Anzahl Stellplatz - 2
Geschossigkeit - 2
Dachform - zeltdach.
Stilrichtung: stadtvilla
Ausrichtung - südwesten (eher westen)
Maximale Höhen/Begrenzungen - 10m
Anforderungen der Bauherren
Stilrichtung, Dachform, Gebäudetyp: stadtvilla
Keller, Geschosse: kein Keller
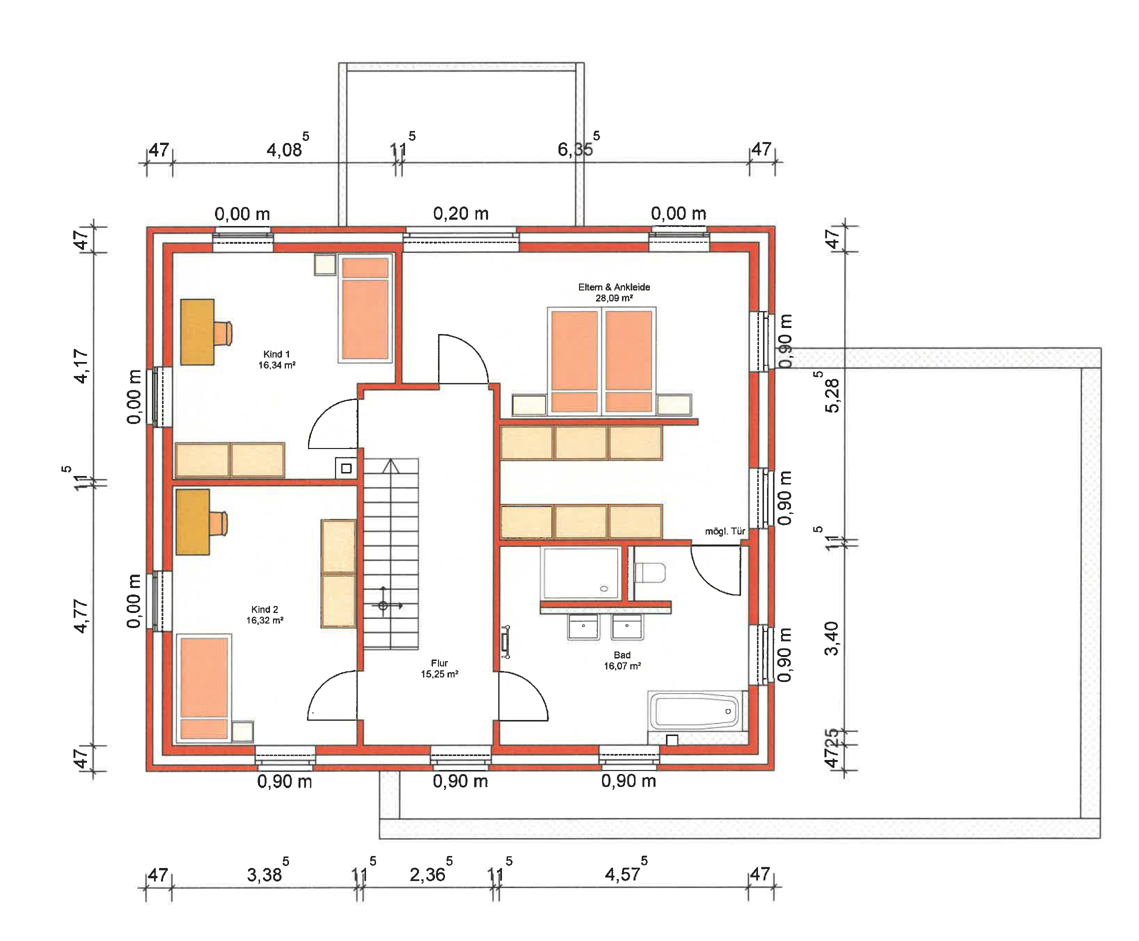
Anzahl der Personen, Alter: 3 Personen (4 in Planung)
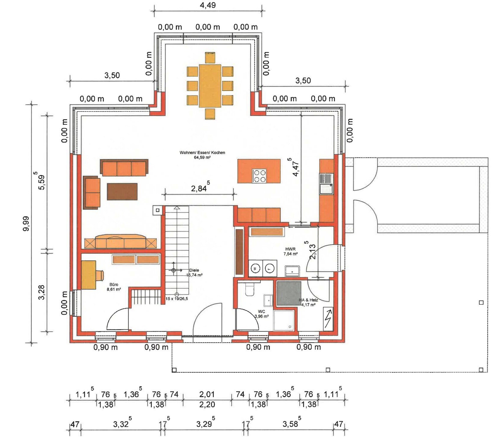
Raumbedarf im EG, OG
Büro: Familiennutzung oder Homeoffice?
offene oder geschlossene Architektur
konservativ oder moderne Bauweise
offene Küche, Kochinsel: ja
Anzahl Essplätze
Kamin: ja
Balkon, Dachterrasse
Garage, Carport: ja
Nutzgarten, Treibhaug
Hausentwurf
Von wem stammt die Planung: Bauzeichner
Was gefällt besonders? Warum? Schlafzimmer mit Dachterrassenzugang
Was gefällt nicht? Warum? Wohnzimmer zu klein?, Hausausrichtung eher Westen?
Preisschätzung lt Architekt/Planer: 1900 - 2000€ pro qm
favorisierte Heiztechnik: fußbodenheizung
Wenn Ihr verzichten müsst, auf welche Details/Ausbauten
-könnt Ihr verzichten: Diele kleiner
-könnt Ihr nicht verzichten: kurze Wege
Warum ist der Entwurf so geworden, wie er jetzt ist? ZB
Standardentwurf vom Planer? Eigene Ideen
Entsprechende/Welche Wünsche wurden vom Architekten umgesetzt?
- Anbau / Erker mit Dachterrasse
- Carport -> Hauswirtschaftsraum -> Küche
Was ist die wichtigste/grundlegende Frage zum Grundriss in 130 Zeichen zusammengefasst?
- Ist das Wohnzimmer zu klein? Eine Breite von 3,50m für Wohnwand erscheint klein, da mein Sofa schon 3,50 misst.
- Wieviel Abstand sollte man vom Sofa zum Fernseher am Besten haben?
- Anbau / Erker mit Dachterrasse: Passt es optisch zu einer Stadtvilla? Und sollte er nicht doch etwas Richtung Norden (also an Richtung Küche anstatt mittig) um mehr Sonne zu haben?
- Noch ein Bodentiefes Fenster im Wohnzimmer? Stört Sonne beim Fernsehen?
- Glasfront zu viel des Guten? Sehe immer nur viele Häuser mit versetzen Fenstern.
- Terrasse zu klein / Der Anbau wirft zu viel Schatten?
- Bodentiefe Fenster im 2. OG auf Carport Seite?
Anmerkung: Das Vordach wie auf dem Plan kommt weg, da es sonst vom Platz her nicht passt.
Ein letzter Tipp: schaut auch mal auf die schon laufenden Diskussionen und Nachbarthreads: ich stelle oft fest, dass bei gleichen Voraussetzungen ähnliche Diskussionsanfragen parallel laufen. Somit findet Ihr oftmals auch durch diese Diskussionen Antworten auf Eure Fragen oder findet Ideen, wie andere User dieses und jenes Problem bei Ihrem Hausbau zu lösen versuchen.








tolles Forum hier! Hab schon einige tolle Ideen gesammelt. Zu meinem Thema: wir sind gerade in der Planungsphase für eine Stadtvilla und benötigen einige Ratschläge.
Bebauungsplan/Einschränkungen
Größe des Grundstücks - 649qm
Hang - nein
Grundflächenzahl - 0,3m
Geschossflächenzahl -
Baufenster, Baulinie und -grenze: 3m
Randbebauung: nur carport
Anzahl Stellplatz - 2
Geschossigkeit - 2
Dachform - zeltdach.
Stilrichtung: stadtvilla
Ausrichtung - südwesten (eher westen)
Maximale Höhen/Begrenzungen - 10m
Anforderungen der Bauherren
Stilrichtung, Dachform, Gebäudetyp: stadtvilla
Keller, Geschosse: kein Keller
Anzahl der Personen, Alter: 3 Personen (4 in Planung)
Raumbedarf im EG, OG
Büro: Familiennutzung oder Homeoffice?
offene oder geschlossene Architektur
konservativ oder moderne Bauweise
offene Küche, Kochinsel: ja
Anzahl Essplätze
Kamin: ja
Balkon, Dachterrasse
Garage, Carport: ja
Nutzgarten, Treibhaug
Hausentwurf
Von wem stammt die Planung: Bauzeichner
Was gefällt besonders? Warum? Schlafzimmer mit Dachterrassenzugang
Was gefällt nicht? Warum? Wohnzimmer zu klein?, Hausausrichtung eher Westen?
Preisschätzung lt Architekt/Planer: 1900 - 2000€ pro qm
favorisierte Heiztechnik: fußbodenheizung
Wenn Ihr verzichten müsst, auf welche Details/Ausbauten
-könnt Ihr verzichten: Diele kleiner
-könnt Ihr nicht verzichten: kurze Wege
Warum ist der Entwurf so geworden, wie er jetzt ist? ZB
Standardentwurf vom Planer? Eigene Ideen
Entsprechende/Welche Wünsche wurden vom Architekten umgesetzt?
- Anbau / Erker mit Dachterrasse
- Carport -> Hauswirtschaftsraum -> Küche
Was ist die wichtigste/grundlegende Frage zum Grundriss in 130 Zeichen zusammengefasst?
- Ist das Wohnzimmer zu klein? Eine Breite von 3,50m für Wohnwand erscheint klein, da mein Sofa schon 3,50 misst.
- Wieviel Abstand sollte man vom Sofa zum Fernseher am Besten haben?
- Anbau / Erker mit Dachterrasse: Passt es optisch zu einer Stadtvilla? Und sollte er nicht doch etwas Richtung Norden (also an Richtung Küche anstatt mittig) um mehr Sonne zu haben?
- Noch ein Bodentiefes Fenster im Wohnzimmer? Stört Sonne beim Fernsehen?
- Glasfront zu viel des Guten? Sehe immer nur viele Häuser mit versetzen Fenstern.
- Terrasse zu klein / Der Anbau wirft zu viel Schatten?
- Bodentiefe Fenster im 2. OG auf Carport Seite?
Anmerkung: Das Vordach wie auf dem Plan kommt weg, da es sonst vom Platz her nicht passt.
Ein letzter Tipp: schaut auch mal auf die schon laufenden Diskussionen und Nachbarthreads: ich stelle oft fest, dass bei gleichen Voraussetzungen ähnliche Diskussionsanfragen parallel laufen. Somit findet Ihr oftmals auch durch diese Diskussionen Antworten auf Eure Fragen oder findet Ideen, wie andere User dieses und jenes Problem bei Ihrem Hausbau zu lösen versuchen.
P
pagoni202006.12.20 12:56dbarenka schrieb:
Planungsphase für eine StadtvillaIch würde mir erst mal innerhalb meiner Gegebenheiten "meinen" Grundriss finden wollen und danach schauen, wie das Äußere wird; von daher lösen von Verkaufsbegriffen wie "Stadtvilla" etc., das mir die Dachform, Grundrissausrichtung etc. vorgibt. Vorgaben hat man schon genügend vom Bebauungsplan und Geldbeutel.dbarenka schrieb:
Preisschätzung lt Architekt/Planer: 1900 - 2000€ pro qmdiese gewagte Einschätzung z.B. beißt sich mit dem Begriff "....villa".dbarenka schrieb:
Ist das Wohnzimmer zu klein? Eine Breite von 3,50m für Wohnwand erscheint klein, da mein Sofa schon 3,50 misst.Es ist die Frage, wie ihr persönlich das Wohnzimmer nutzt. Es ist eben sehr schlauchig und der Bereich am Fenster wirkt verloren/unnötig.Das Büro wirkt gequetscht, vlt. könnte die Garderobe unter dieu Treppe Platz finden, noch besser wäre eine andere Anordnung.
Wie beim Wohnzimmer auch bei der Küche viel "toter Raum" beim Fenster; die Insel wäre mir zu nahe beim Durchgang. Insgesamt finde ich den Allraum unglücklich portioniert und ich habe die Vermutung, dass dies durch andere Wünsche bedingt wurde wir z.B. Dachterrasse Schlafzimmer etc.
dbarenka schrieb:
Wieviel Abstand sollte man vom Sofa zum Fernseher am Besten haben?Je nach TV-Größe gibt es Faustformeln im Netz bzw. sollte man das selbst herausfinden, da Leute auch hier unterschiedlich empfinden. Als reiner TV-Bereich wäre das ok, als Wohnzimemr in einem ansonsten offen gestalteten Wohnbereich würde ich es als mickrig bzw. ungünstig geschnitten ansehen. Ich bin eh ein Befürworter davon, TV zu trennen und ihm das Recht zu nehmen, meinen Wohnraum so stark zu beschneiden. Je nach TV und Licht kann es spiegeln, wobeik man eh meist erst abends schaut.N
nordanney06.12.20 13:17dbarenka schrieb:
Preisschätzung lt Architekt/Planer: 1900 - 2000€ pro qmdiese gewagte Einschätzung z.B. beißt sich mit dem Begriff "....villa".Ist netto vom Architekten genannt. Dann passt es ;-)
dbarenka schrieb:
- Ist das Wohnzimmer zu klein? Eine Breite von 3,50m für Wohnwand erscheint klein, da mein Sofa schon 3,50 misst.Ich sag es mal so: 64qm für den Allraum, aber kaum möblierbar. Das würde mir zu denken geben.Es gibt ja Stadtvillen zuhauf, aber hier ist das wenigste aus einem Quadrat ( plus Erker) herausgeholt. Eckfenster passen meiner Meinung nach nicht so gut zu einer Stadtvilla - hier kommt noch dazu, dass die Fenster etwas übertrieben verteilt sind.
Eine geschickte Zonierung ist recht schwer, da sich mittiger Erker und Flur beißen.
dbarenka schrieb:
Noch ein Bodentiefes Fenster im Wohnzimmer?Noch eins??? 😱 Man sollte die planen und nicht einfach mal in einen Raum werfen.dbarenka schrieb:
Glasfront zu viel des Guten?Ja!dbarenka schrieb:
Ein letzter Tipp: schaut auch mal auf die schon laufenden Diskussionen und Nachbarthreads: ich stelle oft fest, dass bei gleichen Voraussetzungen ähnliche Diskussionsanfragen parallel laufen. Somit findet Ihr oftmals auch durch diese Diskussionen Antworten auf Eure Fragen oder findet Ideen, wie andere User dieses und jenes Problem bei Ihrem Hausbau zu lösen versuchen.Genau. Dann kann ich also jetzt fernsehen. Deinen Thread brauche ich ja nicht extra zu kommentieren - Du schaust einfach in die beiden anderen ganz frischen Anstattvillathreads 🙂https://www.instagram.com/11antgmxde/
https://www.linkedin.com/company/bauen-jetzt/
Ähnliche Themen