G
grandmasterO03.08.20 13:40Hallo, ich beabsichtige mir ein eine Stadtvilla 133qm mit einen GU zu bauen. Grundstück ist reserviert.
Größe des Grundstücks 660qm
Hang nein
Grundflächenzahl 0,4
Geschossflächenzahl 0,4
Baufenster, Baulinie und -grenze ?
Randbebauung offen
Anzahl Stellplatz 2
Geschossigkeit 2
Dachform Walmdach
Stilrichtung Stadtvilla
Ausrichtung Hauseingang Norden
Maximale Höhen/Begrenzungen
weitere Vorgaben ?
Anforderungen der Bauherren
Stilrichtung, Dachform, Gebäudetyp
Stadtvilla
Keller, Geschosse: 2 Vollgeschossen ohne Keller
Anzahl der Personen 1, bald vielleicht 2
Hausentwurf
Von wem stammt die Planung?
-GU
Was ist die wichtigste/grundlegende Frage zum Grundriss in 130 Zeichen zusammengefasst?
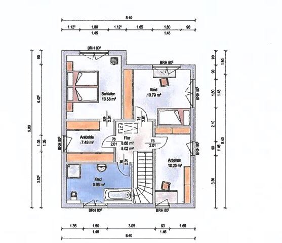
Ich frage mich ob hier eine offene oder teil-offene Küche mehr Sinn macht. Im jetzigen Grundriss ist ein ca 90cm durchgang von der Küche zum Essbereich geplant. Diesen könnte man aber erweitern, ich dachte so an 120 bis 140cm mit einer 2-teiligen Schiebetür. Bei ganz offen habe ich Bedenken wegen Lautstärke , Gerüchen usw.
Für Ratschläge zum Grundriss im Allgemeinen und zu der Frage offene und teil-offene Küche wäre ich Euch sehr dankbar.


Größe des Grundstücks 660qm
Hang nein
Grundflächenzahl 0,4
Geschossflächenzahl 0,4
Baufenster, Baulinie und -grenze ?
Randbebauung offen
Anzahl Stellplatz 2
Geschossigkeit 2
Dachform Walmdach
Stilrichtung Stadtvilla
Ausrichtung Hauseingang Norden
Maximale Höhen/Begrenzungen
weitere Vorgaben ?
Anforderungen der Bauherren
Stilrichtung, Dachform, Gebäudetyp
Stadtvilla
Keller, Geschosse: 2 Vollgeschossen ohne Keller
Anzahl der Personen 1, bald vielleicht 2
Hausentwurf
Von wem stammt die Planung?
-GU
Was ist die wichtigste/grundlegende Frage zum Grundriss in 130 Zeichen zusammengefasst?
Ich frage mich ob hier eine offene oder teil-offene Küche mehr Sinn macht. Im jetzigen Grundriss ist ein ca 90cm durchgang von der Küche zum Essbereich geplant. Diesen könnte man aber erweitern, ich dachte so an 120 bis 140cm mit einer 2-teiligen Schiebetür. Bei ganz offen habe ich Bedenken wegen Lautstärke , Gerüchen usw.
Für Ratschläge zum Grundriss im Allgemeinen und zu der Frage offene und teil-offene Küche wäre ich Euch sehr dankbar.
grandmasterO schrieb:
Anzahl der Personen 1, bald vielleicht 2Da würde ich die Prinzessin zu freien zuerst unter Dach und Fach bringen, und erst danach den Schloßbau angehen - das hätte den Vorteil, daß sie mit Einfluß nähme. Eine Gattin ist ja in die Gedankenwelt des Bauens übertragen gewissermaßen eine zumindest aussteifende Wand im Leben https://www.instagram.com/11antgmxde/
https://www.linkedin.com/company/bauen-jetzt/
A
Alessandro03.08.20 15:10Bei so einer kleinen Wohnfläche fände ich einen Bungalow sehr viel attraktiver.
G
grandmasterO03.08.20 15:57Hi danke für die Kommentare Prinzessinnen kommen und gehen Bungalow geht leider nicht und wenn größer nur mit abstichen bei der Ausstattung, bin schon bei deutlich über 2000€ qm, aber mir ist die Ausstattung wichtiger.
A
Alessandro03.08.20 16:09dann würde ich teilunterkellern. 133qm auf 2 Etagen und diesem Grundriss wirken schon sehr gedrungen.
Bungalow geht nicht lt. Bebauungsplan?
Bungalow geht nicht lt. Bebauungsplan?
grandmasterO schrieb:
bin schon bei deutlich über 2000€ qm, aber mir ist die Ausstattung wichtiger.Man sollte die Ausstattung auch nicht gleich in einer anderen Liga ansiedeln als die Hausform. Wurzelholz im Dacia floppt im Wiederverkaufswert. Und wenn es schon ohne Prinzessin dick aufgetragenen Feenstaub hat, dann wird es am Ende zu teuer.https://www.instagram.com/11antgmxde/
https://www.linkedin.com/company/bauen-jetzt/
Ähnliche Themen