Hausbau - Ratgeber
Bauherrenhilfe
- Bauherrenhilfe vor Vertragsabschluss
-- Warum einen unabhängigen Baubetreuer?
-- Vertragsgrundlagen
-- Bausumme
-- Zahlungsplan zur Kostenkontrolle
-- Pflichten des Bauherren vor Vertragsabschluss
-- Unterlagen beim Hausbau vor Vertragsabschluss
- Bauherrenhilfe nach Vertragsabschluss
-- Bauantrag bei Behörden
-- Bau-Genehmigungsverfahren bei Baubehörden
-- Bauspezifische Versicherungen
-- Bauzeitenplan
-- Baubeginn - die Letzten Pflichten der Bauherrschaft
- Bauherrenhilfe während der Bauzeit
- Gewährleistungsansprüche
- Bauabnahme
Baufinanzierung
- Baufinanzierung - Allgemeine Fragen
- Kreditarten
- Kredit-Konditionen
- Bausparen
- Staatliche Förderungen
- Verkehrswert
- Haushaltsrechnung und Bonität
Hausbau Planung
- Haustypen
- Hausbau Vorbereitungsarbeiten
- Das Baugrundstück
- Baugrund beim Hausbau
- Baurecht
- Gebäudeschutz
- Erdarbeiten und Wasserhaltung
- Stützmauern
- Einfriedung
- Untergeschoss
- Kanalisation
- Tragende Elemente
- Nichttragende Innenwände
- Fundation / Fundament
- Deckenkonstruktionen
- Dächer
- Kaminanlagen
- Treppen Rampen Leitern
- Dachbeläge und Spengler
- Fenster
- Sonnen und Wetterschutz
- Aussenputze
- Einbauten, Küchen, Türen
- Bodenbeläge und Unterlagsböden
- Parkett
- Gips, Wand, Decke
Haustechnik und Energie
- Heiztechnik
- Lüftung und Klimatechnik
- Sanitärtechnik
- Elektrotechnik
- Erneuerbare Energie
Whirlpools / Jacuzzi
Hausbau Magazin
- Baufinanzierung trotz Krise?
- Das Blockhaus
- Moderne Dämmstoffe im Vergleich
- Erker Vor- und Nachteile
- Glasflächen beim Hausbau
- Günstig ein Haus Bauen
- Mediterraner Hausbaustil
- Mehrgenerationenhaus
- Moderne Architektur
- Gartengestaltung leicht gemacht
- Traditioneller Ziegelbau
- Villa als höchster Traum
- Im Eigenheim Ruhestand geniessen
- Altbau sanieren
- Kauf einer Holzgarage
- Immobilienmakler
- Arbeitshandschuhe für den Winter
- Zuhause verschönern
- Outdoor-Plissees
- Schlafzimmer planen
- Terrassenüberdachung
- Wohngebäudeversicherung
- Zaunarten und Eigenschaften
- Hauseingang gestalten
- Der perfekte Grundriss
- Sparsamer heizen im Altbau
- Einfamilienhaus smart finanzieren
- Planung einer PV-Anlage
- Neues Haus
- Immobilienfinanzierung
- Installation einer Photovoltaikanlage
- Asbest erkennen und entfernen
- Gartenpflege im Frühling – worauf achten
- Sauna im Fokus - Wellness zuhause
- Erfolgreich vermieten
- Die perfekte Winterbekleidung
- Das Niedrigenergiehaus
- Der April und seine Stürme
- Architektonische Vielfalt
- Ökologisch und nachhaltig bauen
- Das perfekte Schlafzimmer
- Nachhaltige Energieversorgung
- Zukunftsorientiert bauen
- Nachhaltigkeit beim Hausbau
- Tiny Houses
- Wärmepumpen als nachhaltige Heizvariante
- Maßgeschneiderten Kleiderschrank
- Der richtige Baukredit
- Ratgeber für erfolgreichen Hausbau
- Haus als Altersvorsorge
Do-it-yourself Anleitungen
- Verlegeanleitung für Bodenbeläge und Parkett
- Bodenbeläge und Parkett reinigen und pflegen
- Malerarbeiten am Haus
- Garten Tipps
- Umzug und Reinigung

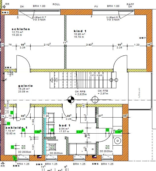
ᐅ Grundrissplanung Familienbad 9,54 qm - geht es besser?

Erstellt am: 16.06.19 15:44
M
MadameP
M
MadameP
16.06.19 15:44
Liebe Alle,

anhängend der aktuelle Grundriss unseres Familienbades, die Maurer fangen die Tage mit den Innenwänden an.
Wir haben uns dagegen entschieden, das WC mit einer Schiebetür abzutrennen und daher sollen die Wände auch nicht raumhoch, sondern 1,20m hoch sein als reine "Schamwände" - der überstehende Stummel an der Trennwand zur Wanne entfällt.
Davon versprechen wir uns ein etwas großzügigeres Raumgefühl und mehr Licht in dem ohnehin nicht riesigen Badezimmer.

Grundsätzlich gefällt der Grundriss uns ganz gut, aber ein "wow" löst er irgendwie nicht aus. Daher die Frage an euch, geht es insgesamt vielleicht noch besser oder sollen wir es so lassen?

Die Fensterseite ist Osten, Norden planrechts. Fenster und Hauswirtschaftsraum sind fix. Türen variabel.
Grundriss eines Badezimmers (Bad 1) mit Waschbecken, Toilette, Dusche und Türen.
Y
ypg
16.06.19 15:48
Die Abflusslage ist aber auch schon fix, oder?
Wo wäre er denn? Bei der Toilette?
M
MadameP
16.06.19 16:01
ypg schrieb:

Die Abflusslage ist aber auch schon fix, oder?
Wo wäre er denn? Bei der Toilette?
Du siehst den Abfluss im Plan in dem lila unterlegten Mauerausschnitt "unter" der Wanne.
Der ist fix, ja. Wenn ich den Sanitär richtig verstanden habe, ist die Anordnung der Objekte aber noch frei, er macht das im Fußboden...
K
kaho674
16.06.19 16:57
Wie jetzt, die Tür zum Hauswirtschaftsraum ist auch vom Flur aus möglich? (Immer diese abgeschnittenen Grundrisse :rolleyes
Was mich sehr stören würde: die waschbecken sind ziemlich dunkel. Kannst Du mal schnell die Raummaße einzeichnen. Ich seh da nicht durch...
K
kbt09
16.06.19 17:14
Wenn ich es richtig verstanden habe, sollen all diese "Scham"-Trennwände nur noch 120 cm hoch werden, so dass die Situation an den Waschbecken auch heller ist.

Und ja .. .was soll denn alle in diesen Hauswirtschaftsraum?
M
MadameP
16.06.19 19:25
kaho674 schrieb:

Wie jetzt, die Tür zum Hauswirtschaftsraum ist auch vom Flur aus möglich?
Theoretisch ja, praktisch hätten wir gerne den Zugang vom Bad aus. Handtücher, Hausapotheke, Drogeriemarkt-Vorräte, Toilettenpapier, Putzzeug...
kaho674 schrieb:
Kannst Du mal schnell die Raummaße einzeichnen. Ich seh da nicht durch...
3,015 m "tief" = Flur-Außenwand / 3,26 m breit
kbt09 schrieb:

Wenn ich es richtig verstanden habe, sollen all diese "Scham"-Trennwände nur noch 120 cm hoch werden, so dass die Situation an den Waschbecken auch heller ist.
Richtig. Aus genau dem Grund. Also genau so hoch wie die Vorwandinstallationen und die Wandfliesen.
kbt09 schrieb:

Und ja .. .was soll denn alle in diesen Hauswirtschaftsraum?
Waschmaschine, Trockner, Wäschesammler, Regale mit: s.o. Handtücher, Hausapotheke, Drogeriemarkt-Vorräte, Toilettenpapier, Putzzeug. Das ist nur der Wäsche-Hauswirtschaftsraum, alles andere ist unten bei der Haustechnik (i.e. Wasserkisten, Staubsauger, Altpapier etc.)
Grundriss eines Wohnhauses: Schlafzimmer, Kinderzimmer 1, Galerie und Ankleide.
hauswirtschaftsraumgrundrisswanneflurwaschbeckentoilettenpapier