P
Projekt201927.04.19 20:22Bebauungsplan/Einschränkungen
Größe des Grundstücks 1.245qm
Hang nein
Grundflächenzahl
Geschossflächenzahl 0,4
Baufenster, Baulinie und -grenze strichlierte Linie im Plan
Randbebauung
Anzahl Stellplatz 2
Geschossigkeit 2 + DG
Dachform
Stilrichtung
Ausrichtung
Maximale Höhen/Begrenzungen
weitere Vorgaben
Anforderungen der Bauherren
Stilrichtung, Dachform, Gebäudetyp schlicht, modern, Satteldach
Keller, Geschosse KG, OG, EG, DG
Anzahl der Personen, Alter derzeit 2
Raumbedarf im EG, OG
Büro: Familiennutzung oder Homeoffice? kleines Homeoffice
Schlafgäste pro Jahr 5
offene oder geschlossene Architektur gemischt
konservativ oder moderne Bauweise modern, praktisch
offene Küche, Kochinsel offen Küche: ja L-Form, mit AK für Küchengeräte, Gefrierschrank, Kühlschrank sollte in der AK verbaut werden mit Tür zur Küche
Anzahl Essplätze 8
Kamin ja
Musik/Stereowand
Balkon, Dachterrasse nein
Garage, Carport 2 Garagenplätze
Nutzgarten, Treibhaus
weitere Wünsche/Besonderheiten/Tagesablauf, gern auch Begründungen, warum dieses oder das nicht sein soll
Haus wird im nordöstlichen Bereich des Grundstückes platziert für einen langen westlichen Garten.
EG:
Nischen im Flur als Garderobe,
das Gästezimmer/Arbeitszimmer ist als flexibler Raum gedacht der mit den Bedürfnissen mitwächst, Spielzimmer, Lese/Hausaufgaben etc.
separates WC
Möglichkeit der Trennung durch einen zweiten Hauseingang (dz als Fixverglasung geplant)
Terrasse ist im Südwesten geplant
OG
Sauna im Bad.
Hausentwurf
Von wem stammt die Planung:
-Planer
-Do-it-Yourself
Was gefällt besonders? Warum? Schiebetüren, offenes Esszimmer, Kamin mit Sichtfenster von WZ und EZ, direkter Zugang von der Garage
Was gefällt nicht? Warum? länge des Flurs
Preisschätzung lt Architekt/Planer:
Persönliches Preislimit fürs Haus, inkl Ausstattung:
favorisierte Heiztechnik: Tiefenbohrung
Wenn Ihr verzichten müsst, auf welche Details/Ausbauten
-könnt Ihr verzichten: vielleicht noch einige qm?
-könnt Ihr nicht verzichten: Kamin, separate WCs
Warum ist der Entwurf so geworden, wie er jetzt ist? ZB
Ein Gemisch aus vielen Beispielen aus div. Magazinen...
Was macht ihn in Euren Augen besonders gut oder schlecht?
Was ist die wichtigste/grundlegende Frage zum Grundriss in 130 Zeichen zusammengefasst?
Hallo erstmals,
wir (30 und 33 Jahre) sind gerade am Haus planen und uns würden eure Meinungen zu unseren Entwurf interessieren. Wir haben bereits unterschiedliche Varianten verworfen und das ist jetzt ein für uns passendes Ergebnis. Wir sind natürlich für Tipps und Verbesserungsvorschläge offen!
Danke!



Größe des Grundstücks 1.245qm
Hang nein
Grundflächenzahl
Geschossflächenzahl 0,4
Baufenster, Baulinie und -grenze strichlierte Linie im Plan
Randbebauung
Anzahl Stellplatz 2
Geschossigkeit 2 + DG
Dachform
Stilrichtung
Ausrichtung
Maximale Höhen/Begrenzungen
weitere Vorgaben
Anforderungen der Bauherren
Stilrichtung, Dachform, Gebäudetyp schlicht, modern, Satteldach
Keller, Geschosse KG, OG, EG, DG
Anzahl der Personen, Alter derzeit 2
Raumbedarf im EG, OG
Büro: Familiennutzung oder Homeoffice? kleines Homeoffice
Schlafgäste pro Jahr 5
offene oder geschlossene Architektur gemischt
konservativ oder moderne Bauweise modern, praktisch
offene Küche, Kochinsel offen Küche: ja L-Form, mit AK für Küchengeräte, Gefrierschrank, Kühlschrank sollte in der AK verbaut werden mit Tür zur Küche
Anzahl Essplätze 8
Kamin ja
Musik/Stereowand
Balkon, Dachterrasse nein
Garage, Carport 2 Garagenplätze
Nutzgarten, Treibhaus
weitere Wünsche/Besonderheiten/Tagesablauf, gern auch Begründungen, warum dieses oder das nicht sein soll
Haus wird im nordöstlichen Bereich des Grundstückes platziert für einen langen westlichen Garten.
EG:
Nischen im Flur als Garderobe,
das Gästezimmer/Arbeitszimmer ist als flexibler Raum gedacht der mit den Bedürfnissen mitwächst, Spielzimmer, Lese/Hausaufgaben etc.
separates WC
Möglichkeit der Trennung durch einen zweiten Hauseingang (dz als Fixverglasung geplant)
Terrasse ist im Südwesten geplant
OG
Sauna im Bad.
Hausentwurf
Von wem stammt die Planung:
-Planer
-Do-it-Yourself
Was gefällt besonders? Warum? Schiebetüren, offenes Esszimmer, Kamin mit Sichtfenster von WZ und EZ, direkter Zugang von der Garage
Was gefällt nicht? Warum? länge des Flurs
Preisschätzung lt Architekt/Planer:
Persönliches Preislimit fürs Haus, inkl Ausstattung:
favorisierte Heiztechnik: Tiefenbohrung
Wenn Ihr verzichten müsst, auf welche Details/Ausbauten
-könnt Ihr verzichten: vielleicht noch einige qm?
-könnt Ihr nicht verzichten: Kamin, separate WCs
Warum ist der Entwurf so geworden, wie er jetzt ist? ZB
Ein Gemisch aus vielen Beispielen aus div. Magazinen...
Was macht ihn in Euren Augen besonders gut oder schlecht?
Was ist die wichtigste/grundlegende Frage zum Grundriss in 130 Zeichen zusammengefasst?
Hallo erstmals,
wir (30 und 33 Jahre) sind gerade am Haus planen und uns würden eure Meinungen zu unseren Entwurf interessieren. Wir haben bereits unterschiedliche Varianten verworfen und das ist jetzt ein für uns passendes Ergebnis. Wir sind natürlich für Tipps und Verbesserungsvorschläge offen!
Danke!
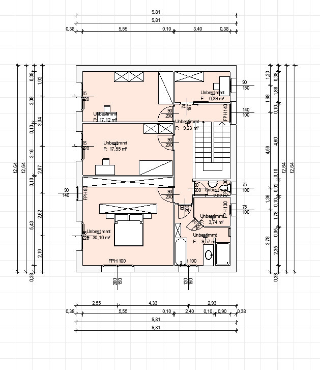
Die Anordnung etc. Finde ich ansprechend.
Ich habe - ehrlich gesagt - ein Problem mit der Zeichnungsart. Sie ist nicht gut zu „lesen“, insofern könnten jetzt einige Fehler auch am Auge vorbeilaufen 😉
Allerdings sehe ich einige Sachen: die erste ist für mich (wenn es mein Haus wäre) unbedingt zu ändern, nämlich die Treppe. So eine schöne Treppe, kommt in eine unentdeckte Ecke, wird vom Wohnen verdrängt... das nicht praktikable ist der Zugang zur Garage. Es wird dort immer diese Schmutzecke sein, durch die man ungern auf Socken geht und das andere ist die Wand gegenüber. Sie ist für Transport nicht nur unpraktisch, es ist auch einfach „falsch“, gegen eine Wand laufen zu müssen. Ich würde die Treppe unbedingt mit den Zugängen auf die lange Seite legen: eine schöne 2/4-gewendelte mit zwei Podesten! Damit hat man dann keine zwei Schläuche im Flur, sondern einen offenen und großzügigen Bereich.
Das andere ist das separate Klo vom Gäste-WC. Das ist albern. 🤨
Ich frag mich eh, wozu dieses Bad sein soll, wenn der Zugang Gästezimmer/Gästebad nur vom Wohnzimmer aus erschlossen wird.
Das Bad im OG wäre mir für 4 Personen zu klein.
Ich habe - ehrlich gesagt - ein Problem mit der Zeichnungsart. Sie ist nicht gut zu „lesen“, insofern könnten jetzt einige Fehler auch am Auge vorbeilaufen 😉
Allerdings sehe ich einige Sachen: die erste ist für mich (wenn es mein Haus wäre) unbedingt zu ändern, nämlich die Treppe. So eine schöne Treppe, kommt in eine unentdeckte Ecke, wird vom Wohnen verdrängt... das nicht praktikable ist der Zugang zur Garage. Es wird dort immer diese Schmutzecke sein, durch die man ungern auf Socken geht und das andere ist die Wand gegenüber. Sie ist für Transport nicht nur unpraktisch, es ist auch einfach „falsch“, gegen eine Wand laufen zu müssen. Ich würde die Treppe unbedingt mit den Zugängen auf die lange Seite legen: eine schöne 2/4-gewendelte mit zwei Podesten! Damit hat man dann keine zwei Schläuche im Flur, sondern einen offenen und großzügigen Bereich.
Das andere ist das separate Klo vom Gäste-WC. Das ist albern. 🤨
Ich frag mich eh, wozu dieses Bad sein soll, wenn der Zugang Gästezimmer/Gästebad nur vom Wohnzimmer aus erschlossen wird.
Das Bad im OG wäre mir für 4 Personen zu klein.
...und das WC im OG wäre mir zu schmal ... da müßte die Tür nach außen aufgehen, damit WC/Handwaschbecken entspannt werden.
Und ... die Kinderzimmer würde ich eher Richtung Süden platzieren und nicht das Elternschlafzimmer, was ich mit 30 qm auch sehr üppig empfinde. Positiv .. hier entsteht aber eine ordentlich nutzbare Schrankecke.
Bezüglich Podesttreppe schließe ich mich Yvonne an ... es ist schade, dass eine echte Podesttreppe so in die Ecke gequetscht ist. Und dadurch entsteht ja auch der lange Flur ...
Garage hat zwar etwas Luft, aber Fahrräder kommen da nur schwer rein.
Und, was soll denn alles in den Keller?
Grundsätzlich stimme ich auch katja zu ... Budget wäre interessant zu wissen. Im Profil steht Bauort: Ausland ... welches?
Und ... die Kinderzimmer würde ich eher Richtung Süden platzieren und nicht das Elternschlafzimmer, was ich mit 30 qm auch sehr üppig empfinde. Positiv .. hier entsteht aber eine ordentlich nutzbare Schrankecke.
Bezüglich Podesttreppe schließe ich mich Yvonne an ... es ist schade, dass eine echte Podesttreppe so in die Ecke gequetscht ist. Und dadurch entsteht ja auch der lange Flur ...
Garage hat zwar etwas Luft, aber Fahrräder kommen da nur schwer rein.
Und, was soll denn alles in den Keller?
Grundsätzlich stimme ich auch katja zu ... Budget wäre interessant zu wissen. Im Profil steht Bauort: Ausland ... welches?
P
Projekt201902.05.19 09:07Hallo,
also geplant sind 450.000 ohne Grundstück und Gartengestaltung.
Das Ausland ist Österreich 🙂.
@ypg ich persönlich finde eine Doppel-Podest Stiege auch toll, nur wüsste ich nicht wie die Platz hat ohne das Fenster im WC und Zugang zur Garage zu verlieren.
Die Treppe ist derzeit seitlich mit einem Geländer aus Glas und Holz geplant um dem Gang Tiefe zu geben.
In den Keller kommt, Abstellraum, Technik, Hauswirtschaftsraum samt Platz zum Wäsche aufhängen, wenn draußen zu schlechtes Wetter, Fitnessraum, ursprünglich wäre dort auch die Sauna gewesen aber die ist dann ins OG gewandert.
Eine Überlegung ist auch den Einsprung im Norden wegzulassen und dafür ein Vordach odgl.
also geplant sind 450.000 ohne Grundstück und Gartengestaltung.
Das Ausland ist Österreich 🙂.
@ypg ich persönlich finde eine Doppel-Podest Stiege auch toll, nur wüsste ich nicht wie die Platz hat ohne das Fenster im WC und Zugang zur Garage zu verlieren.
Die Treppe ist derzeit seitlich mit einem Geländer aus Glas und Holz geplant um dem Gang Tiefe zu geben.
In den Keller kommt, Abstellraum, Technik, Hauswirtschaftsraum samt Platz zum Wäsche aufhängen, wenn draußen zu schlechtes Wetter, Fitnessraum, ursprünglich wäre dort auch die Sauna gewesen aber die ist dann ins OG gewandert.
Eine Überlegung ist auch den Einsprung im Norden wegzulassen und dafür ein Vordach odgl.
Ähnliche Themen