ᐅ Einfamilienhaus Ausrichtung Garten und Terrasse: Süden oder Westen?
Erstellt am: 31.03.24 10:43
R
Ralf1980Hallo.
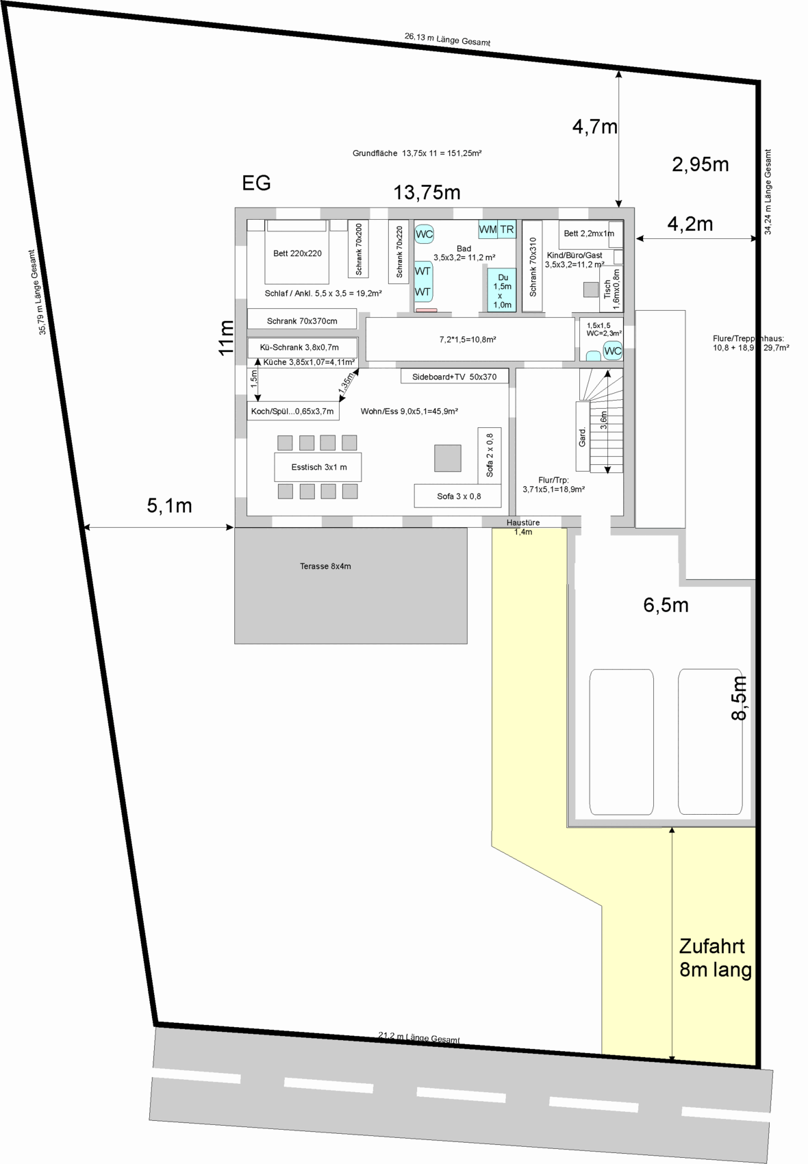
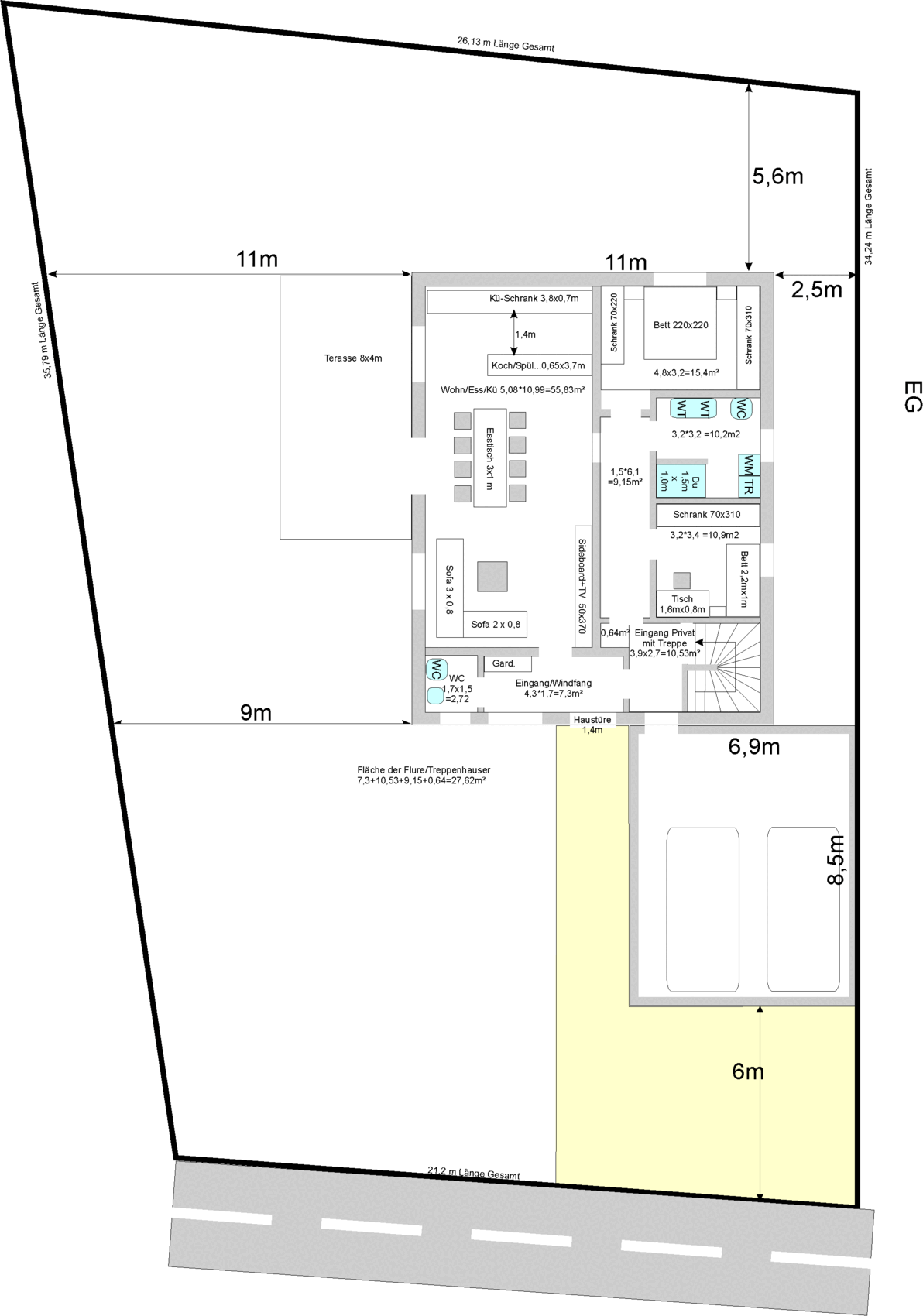
Ich erbitte euren Rat zur Grundsätzlichen Planung des Erdgeschosses, es geht um die Ausrichtung des Gartens und der Terrasse, ob da Südseite oder die Westseite vom Haus besser ist.
Es soll erstmal nicht um den Rest des Hauses gehen, der wird dann angepasst, trotzdem hier noch die Eckdaten
Bebauungsplan/Einschränkungen
Größe des Grundstücks 814m²
Leichter Nordhang
Grundflächenzahl 0,4
Geschossflächenzahl 0,7
Baufenster, Baulinie und -grenze: Siehe Bilder
Randbebauung
Anzahl Stellplatz: große Doppelgarage (2 PKWs, Fahrräder usw. sollen reinpassen
Geschossigkeit UG und EG
Dachform Satteldach, DN30°, Firstrichtung ist O-W vorgegeben vom Baufenster, aber das ginge wohl auch anders.
Stilrichtung normal
Maximale Höhen/Begrenzungen: keine
Anforderungen der Bauherren
Keller, Geschosse: Aufgrund der Hangneigung gibt es einen Keller, der auf der Nordseite 2 Große Räume mit jeweils großem Fenster hat
Anzahl der Personen, Alter: 4 Personen, 44,42,13 und 14
konservative Bauweise
offene Küche
Anzahl Essplätze 6-8
Kamin: keiner
Musik/Stereowand, Großer Fernseher auf Sideboard oder an der Wand
Hausentwurf
Von wem stammt die Planung: Eigenentwurf
favorisierte Heiztechnik: Fernwärme 100% Regenrativ
Ebenerdiger Zugang aus der Garage ist ausdrücklich erwünscht, auch alle notwendigen Räume (Schlafen, Bad, Büro) sollen auf der Ebene des Erdgeschosses sein. Die Kinder erhalten im Untergeschoss auf der Nordseite jeweils einen großen Raum mit richtigem Fenster ohne Lichtschacht und ein gemeinsames eigenes Bad im UG.
Ein OG scheidet vermutlich aus Kostengründen aus. Der Nordhang ist nun mal da, und es sind 2m Höhenunterschied auf dem Gesamten Grundstück, innerhalb des Hauses ist es ca, 1m, das Gelände auf der Nordseite wird entsprechend angepasst. Das leichte Verlassen vom Baufenster wird wohl auch toleriert werden.
Ich mache nun schon eine Weile rum, und bin mir immer noch nicht sicher ob das Wohnzimmer und die Terrasse auf die Südseite oder auf die Westseite vom Haus kommen soll.
Wenn die Terrasse auf der Westseite ist, habe ich mittags und abends auch noch Sonne dort, aber die "Schokoladenseite" des Hauses ist von der Straße nicht so sichtbar. Auch ob das Wohnzimmer im Westen gut ist, weiß ich auch nicht so recht.
Wie ist eure Meinung, bzw. was würdet ihr und warum ändern?
Alle Pläne sind "genordet", die eigenen Skizzen sind leicht gedreht, da ich das sonst nicht zeichnen kann.





Vielen Dank
Gruß Ralf
Ich erbitte euren Rat zur Grundsätzlichen Planung des Erdgeschosses, es geht um die Ausrichtung des Gartens und der Terrasse, ob da Südseite oder die Westseite vom Haus besser ist.
Es soll erstmal nicht um den Rest des Hauses gehen, der wird dann angepasst, trotzdem hier noch die Eckdaten
Bebauungsplan/Einschränkungen
Größe des Grundstücks 814m²
Leichter Nordhang
Grundflächenzahl 0,4
Geschossflächenzahl 0,7
Baufenster, Baulinie und -grenze: Siehe Bilder
Randbebauung
Anzahl Stellplatz: große Doppelgarage (2 PKWs, Fahrräder usw. sollen reinpassen
Geschossigkeit UG und EG
Dachform Satteldach, DN30°, Firstrichtung ist O-W vorgegeben vom Baufenster, aber das ginge wohl auch anders.
Stilrichtung normal
Maximale Höhen/Begrenzungen: keine
Anforderungen der Bauherren
Keller, Geschosse: Aufgrund der Hangneigung gibt es einen Keller, der auf der Nordseite 2 Große Räume mit jeweils großem Fenster hat
Anzahl der Personen, Alter: 4 Personen, 44,42,13 und 14
konservative Bauweise
offene Küche
Anzahl Essplätze 6-8
Kamin: keiner
Musik/Stereowand, Großer Fernseher auf Sideboard oder an der Wand
Hausentwurf
Von wem stammt die Planung: Eigenentwurf
favorisierte Heiztechnik: Fernwärme 100% Regenrativ
Ebenerdiger Zugang aus der Garage ist ausdrücklich erwünscht, auch alle notwendigen Räume (Schlafen, Bad, Büro) sollen auf der Ebene des Erdgeschosses sein. Die Kinder erhalten im Untergeschoss auf der Nordseite jeweils einen großen Raum mit richtigem Fenster ohne Lichtschacht und ein gemeinsames eigenes Bad im UG.
Ein OG scheidet vermutlich aus Kostengründen aus. Der Nordhang ist nun mal da, und es sind 2m Höhenunterschied auf dem Gesamten Grundstück, innerhalb des Hauses ist es ca, 1m, das Gelände auf der Nordseite wird entsprechend angepasst. Das leichte Verlassen vom Baufenster wird wohl auch toleriert werden.
Ich mache nun schon eine Weile rum, und bin mir immer noch nicht sicher ob das Wohnzimmer und die Terrasse auf die Südseite oder auf die Westseite vom Haus kommen soll.
Wenn die Terrasse auf der Westseite ist, habe ich mittags und abends auch noch Sonne dort, aber die "Schokoladenseite" des Hauses ist von der Straße nicht so sichtbar. Auch ob das Wohnzimmer im Westen gut ist, weiß ich auch nicht so recht.
Wie ist eure Meinung, bzw. was würdet ihr und warum ändern?
Alle Pläne sind "genordet", die eigenen Skizzen sind leicht gedreht, da ich das sonst nicht zeichnen kann.
Vielen Dank
Gruß Ralf
M
masterflok31.03.24 10:57Ich würde die Terrasse in den Westen/Norden planen, vor allem wenn ihr in diese Richtung einen unverbauten Blick habt. Die Süd-Terrasse ist aus meiner Sicht überbewertet, im Sommer will dort niemand freiwillig sitzen.
Wieso setzt ihr das Haus nicht an die Straße und gestaltet euch nach hinten einen schönen Garten? Zugänglich ist er sowohl aus dem UG als auch EG (zB Hochterrasse).
Wieso setzt ihr das Haus nicht an die Straße und gestaltet euch nach hinten einen schönen Garten? Zugänglich ist er sowohl aus dem UG als auch EG (zB Hochterrasse).
S
Schorsch_baut31.03.24 12:11Kinderzimmer im Keller mit Nordfenster, aber über die Terrasse macht man sich Gedanken.. Genau mein Humor.
Du kannst es wohl nicht lassen, für jede einzelne Facette des Nachdenkens über ein und dasselbe Bauprojekt ständig einen neuen Thread zu eröffnen [hheh].
https://www.instagram.com/11antgmxde/
https://www.linkedin.com/company/bauen-jetzt/
https://www.instagram.com/11antgmxde/
https://www.linkedin.com/company/bauen-jetzt/
Ist das ein Aprilscherz?
„Vermutlich“, „wird wohl“.., Kosten nicht im Blick und den Gang zum Bauamt auch noch nicht gemacht.
Jetzt wird hier eine Treppe in einem Treppenhaus genutzt, die noch aus Zeiten des 2-Familienhauses stammt, aber auch nichts mit Familienleben mit Kindern zu tun hat. Ganz schlimm ist dieser dunkle Wohnungsflur, aber auch der wurde schon hoch- und runter kritisiert.
„Vermutlich“, „wird wohl“.., Kosten nicht im Blick und den Gang zum Bauamt auch noch nicht gemacht.
Ralf1980 schrieb:
Also entweder zwei kleine Familien, oder eine große Verteilt auf 2 Etagen.
Ralf1980 schrieb:Ich hatte solche Ahnung, dass hier der am fragen ist, der noch nicht einmal weiß, für wen oder was das Haus eigentlich gebaut wird - mal für 2 kleine Familien, dann für sich und was „fremdes“, jetzt wird tatsächlich mal der Hang mit einbezogen - da geht es aber um eine größere Familie?!
Ein OG scheidet vermutlich aus Kostengründen aus. Der Nordhang ist nun mal da, und es sind 2m Höhenunterschied auf dem Gesamten Grundstück,
Jetzt wird hier eine Treppe in einem Treppenhaus genutzt, die noch aus Zeiten des 2-Familienhauses stammt, aber auch nichts mit Familienleben mit Kindern zu tun hat. Ganz schlimm ist dieser dunkle Wohnungsflur, aber auch der wurde schon hoch- und runter kritisiert.
Ralf1980 schrieb:Das habe ich als Teenager auch - auch wenn nur die Steilvorlage von mir genutzt wurde, so steckt ja doch die Erkenntnis darin, dass man irgendwann als Erwachsener wissen sollte, wo seine Grenzen sind.
Ich mache nun schon eine Weile rum
@11ant und ypg:
Ich schätze eure Kompetenz wirklich, aber irgendwie werden wir wohl nicht warm miteinander. Bitte erbringt sinnwolle Änderungsvorschläge und nicht nur immer "dagegen"
Ich hatte extra drum gebeten, das hier nur eigentliche Fragen beantwortet werden, und zwar die Ausrichtung des Wohnzimmers und der Terrasse mit all seinen Vor und Nachteilen.
In den anderen Themen wurden Garagen und Stellplätze diskutiert, Zitat "Autos sind Nacktschläfer", aber wenn jemand eine Garage möchte, dann müsst ihr das auch akzeptieren, deshalb solle s hier nur im die eigentliche Frage gehen
Der Nordhang ist nun mal so wie er ist, und das müssen wir akzeptieren. Und auch das nicht unendliche Budget und die Tatsache was ich wohl einen Keller brauche.
Ich kann das Haus auch nicht außerhalb vom Baufenster vorne an die Straße stellen, und den anderen beiden Häusern die Sicht versperren, das geht sicher nicht. Ein leichtes Verlassen des Baufensters nach Norden wurde mir zumindest mündlich zugesichert.
Ein Eingang durch die Garage ist ausdrücklich erwünscht, und das bedingt nun mal, das dieser Eingang irgendwo in einem Treppenhaus endet, da es im EG keinen Hauswirtschaftsraum gibt.
Die Fernwärme kommt direkt von Südwesten und kann nicht ums Haus rum verlegt werden, daher ist der Keller Notwendig, da ich an die Süd-West-Seite nicht auch noch einen Hauswirtschaftsraum/Heizraum machen kann.
Einige bekannte haben auch so eine Konstellation mit leichtem Hang mit Wohnräumen im Keller mit großem Fenster, das muss ich akzeptieren.
Das klassische Einfamilienhaus sieht anders aus, das ist mir auch klar.
Ich bitte also im sachdienliche Antworten, gerne auch ohne Beachtung von alten Themen, die leider durch genau solche Diskussionen unübersichtlich geworden sind.
Gruß
Ich schätze eure Kompetenz wirklich, aber irgendwie werden wir wohl nicht warm miteinander. Bitte erbringt sinnwolle Änderungsvorschläge und nicht nur immer "dagegen"
Ich hatte extra drum gebeten, das hier nur eigentliche Fragen beantwortet werden, und zwar die Ausrichtung des Wohnzimmers und der Terrasse mit all seinen Vor und Nachteilen.
In den anderen Themen wurden Garagen und Stellplätze diskutiert, Zitat "Autos sind Nacktschläfer", aber wenn jemand eine Garage möchte, dann müsst ihr das auch akzeptieren, deshalb solle s hier nur im die eigentliche Frage gehen
Der Nordhang ist nun mal so wie er ist, und das müssen wir akzeptieren. Und auch das nicht unendliche Budget und die Tatsache was ich wohl einen Keller brauche.
Ich kann das Haus auch nicht außerhalb vom Baufenster vorne an die Straße stellen, und den anderen beiden Häusern die Sicht versperren, das geht sicher nicht. Ein leichtes Verlassen des Baufensters nach Norden wurde mir zumindest mündlich zugesichert.
Ein Eingang durch die Garage ist ausdrücklich erwünscht, und das bedingt nun mal, das dieser Eingang irgendwo in einem Treppenhaus endet, da es im EG keinen Hauswirtschaftsraum gibt.
Die Fernwärme kommt direkt von Südwesten und kann nicht ums Haus rum verlegt werden, daher ist der Keller Notwendig, da ich an die Süd-West-Seite nicht auch noch einen Hauswirtschaftsraum/Heizraum machen kann.
Einige bekannte haben auch so eine Konstellation mit leichtem Hang mit Wohnräumen im Keller mit großem Fenster, das muss ich akzeptieren.
Das klassische Einfamilienhaus sieht anders aus, das ist mir auch klar.
Ich bitte also im sachdienliche Antworten, gerne auch ohne Beachtung von alten Themen, die leider durch genau solche Diskussionen unübersichtlich geworden sind.
Gruß
Ähnliche Themen