Grundrissplanung Einfamilienhaus mit Keller in Hanglage

4,70 Stern(e) 9 Votes
Zuletzt aktualisiert 22.11.2025
Sie befinden sich auf der Seite 2 der Diskussion zum Thema: Grundrissplanung Einfamilienhaus mit Keller in Hanglage
>> Zum 1. Beitrag <<

kbt09

kbt09

wenn der Eingang im Norden ist, der im EG, aber der Wohnbereich im UG mit Zugang zum Garten.
Das geht doch aber eher nicht. Das Grundstück steigt doch an .. ich würde eher Zugang im UG planen .. das ist leider überhaupt nicht beschriftet, genauso wie das EG nicht vollkommen beschriftet ist.
 
Y

ypg

Das geht doch aber eher nicht. Das Grundstück steigt doch an .. ich würde eher Zugang im UG planen .. das ist leider überhaupt nicht beschriftet, genauso wie das EG nicht vollkommen beschriftet ist.
Stimmt, wo du es sagst. Ich hatte kurz einen anderen Hang im Kopf.
Aber das ist doch alles total quer im Standard gegen des Grundstücks geplant. Man muss eine Treppe hoch im Außenbereich, um in das Haus zu kommen.. das ist doch blöd. Sorry, aber ich kann den Höhen in Kombi mit der Planung nicht folgen. Mag an mir liegen, oder an der altbackenen Planung.
 
K a t j a

K a t j a

Es soll von der Strasse aus auf der linken Seite eine Treppe oder ein etwas steilerer gepflasterter Weg zur Haustür errichtet werden.
Das sind 3 Meter (bzw. 1 Geschoss) Höhenunterschied die Du erstmal am Haus vorbei rennst auf Treppen. Natürlich muss man am Hang mit Treppen planen und sicher wirst Du auch im Außenbereich einige haben. Idealerweise plant man aber den Hauseingang so, dass man im Winter nicht die Treppe hoch oder runter rutschen muss und holt sie einfach ins Haus. Schließlich hast Du ja sowieso schon einen Zugang vie Garage.

Dort, wo Du "später" das 2. Carport bauen willst, ist dann ein großer Haufen Erde, welcher vermutlich mit diversen Abfangungen direkt an die Terrasse grenzt. Wenn Du also später anfängst, dort diesen Berg abtragen zu wollen, reißt Du die Terrasse mit weg, da Du deren Abfangung abgräbst. Also entweder, man baut es gleich mit oder lässt es lieber. Oder einer von uns beiden versteht die Höhenangaben und Entwürfe nicht.

Hang + Vollkeller + geschätzt 160m2 passt nicht zu 500.000€.
Ab davon schließe ich mich an und denke, dass Euer Budget für dieses Haus zu gering ist. Die 160qm kosten allein die 500K. Der Keller wäre zusätzlich. Dazu dann die Außenanlagen und das ganze restliche Gedöns. Da landet man je nach Region vermutlich irgendwo bei 750K bis 800K, schätze ich. Gibt das der Geldbeutel her?
 
11ant

11ant

Grundflächenzahl: 0.3 # Geschossflächenzahl: 0.3
Anzahl Stellplatz: 0/1 # Geschossigkeit: 1.5 # Dachform: Satteldach [...]
weitere Vorgaben: Dach 28-45°. 75cm Kniestock (etwas anders definiert)
Was bedeutet da denn "etwas anders definiert" - zitiere mal die Definition.
Und wie ist die Eingeschossigkeit tatsächlich definiert: ich vermute, als U+I+D ?

Der Entwurf des GU taugt zu nichts (außer sich daran zu reiben und möglichst viele Murkspunkte zu erkennen um den Weg zu einer Neukonzeption frei zu machen). Versucht um Himmels Willen nicht darin herumzuradieren und womöglich gar alles, was naja zustimmungsfähig oder nicht "schlecht" ist stehen zu lassen !

Das muß dringend von der Pieke auf alles neu gedacht werden. Dabei darf auf keinen Fall der "Konzeption" dieses Entwurfes (Mußja-Keller mit einer Garage "nutzen", ab OKKD dann einen Bungalow draufsetzen) gefolgt bleiben. Das Grundstück sagt hier ganz klar "kein Keller, unausweichlich ein UG", daher ist letzteres auch wohnzunutzen, sonst wird das Haus unweigerlich zu groß. Ich würde hier sogar überlegen, den Eingang traufseitig und direkt am Treppenpodest anzulegen, d.h. Haustür/Windfang direkt an die Traufseite, übergehend ins Treppenpodest, und von dort geht es ins UG (Straßengeschoß) und ins OG (Gartengeschoss), ein EG sehe ich hier garkeines, und ein DG vermutlich nur zum Abstellen um im UG alles freiliegende wohnnutzen zu können. Technik womöglich geteilt, unten nur die Hauseinführungen, evtl. neben der Garage, der Rest ins Dach. Ein zweiter Stellplatz unüberdacht im Bereich zwischen Straße und Eingang. Das ist auf jeden Fall ein architektenpflichtiges Haus, mit einem Zeichenknecht kommt man hier auf keinen grünen Zweig.
 
5

57Christian

Welche "anderen", wenn das der erste vom GU ist ? - zeige dauch mal !
Wir haben bisher ein paar Erstentwürfe von anderen Anbietern. Ein Entwurf, der uns auch eigentlich gut gefallen hat ist im Anhang. Hier ist im DG allerdings durch das zweite Bad alles etwas eng. Das würden wir vermutlich dort noch anpassen.

Wollt ihr nicht barrierefrei in den Garten?
Doch natürlich. Wir dachten, dass sollte hier ja möglich sein. Aufgang am Haus vorbei, an der Haustür vorbei in den Garten. Bei allen anderen bisherigen Entwürfen war die Haustür im Keller auf der Traufseite. Da hätte man dann immer die Treppe vom Keller ins EG nehmen müssen um in den Garten zu kommen.
Die Terrasse über der Garage ist nur zusätzlich. Die Hauptterrasse ist Richtung Süden, also hinter dem Haus.

Habt Ihr keine Grenzbebauung?
Was heisst das? Ich dachte man müsste immer 3m Abstand zum Nachbargrundstück lassen, wenn man keine Ausnahmegenehmigung hat.

ich würde eher Zugang im UG planen .. das ist leider überhaupt nicht beschrifte
Ja, das war bei den anderen Planen auch immer so realisiert. Wir sind uns da auch noch nicht sicher, was für uns sinnvoller ist.

Idealerweise plant man aber den Hauseingang so, dass man im Winter nicht die Treppe hoch oder runter rutschen muss und holt sie einfach ins Haus. Schließlich hast Du ja sowieso schon einen Zugang vie Garage.
Ja, ist ein guter Punkt. Wir gehen aktuell davon aus, dass wir meistens durch die Garage reingehen werden. Müssen wir aber nochmal überdenken.

Also entweder, man baut es gleich mit oder lässt es lieber. Oder einer von uns beiden versteht die Höhenangaben und Entwürfe nicht.
Stimme ich zu. Hatten wir bisher nicht am Schirm. Danke.

Zum Preis: Bisher ist das erst mündlich kommuniziert worden. Wir kennen aber von dem GU ein ähnliches Haus, was für diesen Preis realisiert wurde.

Was bedeutet da denn "etwas anders definiert" - zitiere mal die Definition.
Und wie ist die Eingeschossigkeit tatsächlich definiert: ich vermute, als U+I+D ?
Kniestock-Definition ist im Anhang. Im Bebauungsplan steht WA + I + o
Zwei Dachformen: Walmdach und Satteldach, 28°-45° Neigung, Diagramm.

Grundriss eines Hauses: Schlafen, Kinderzimmer, Bad Eltern, Bad Kinder, Flur, Treppe.

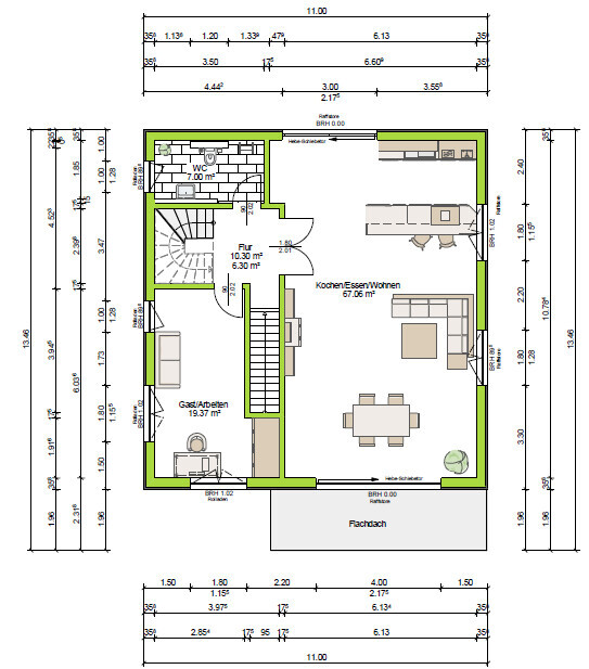
Grundriss eines Hauses: Offener Küchen-/Wohn-/Essbereich, Gäste/Arbeitszimmer, Flur, WC, Treppe.

Grundriss des Kellergeschosses: Sauna/Hobbyraum, Keller, Technik/HWR, Diele und Doppelgarage
 
Y

ypg

Was heisst das? Ich dachte man müsste immer 3m Abstand zum Nachbargrundstück lassen, wenn man keine Ausnahmegenehmigung hat.
Das gilt nicht für Garage, Carports, Stellplätze. Die dürfen auf Grenze. In NRW 9 Meter.
Wir gehen aktuell davon aus, dass wir meistens durch die Garage reingehen werden.
Aber doch nicht die Kinder, wenn sie von der Schule kommen. Die werden doch nicht ein Garagentor aufmachen. Das gilt ja nur für denjenigen, der mit dem Auto heim kommt, alle anderen brauchen eine möglichst sichtbare Eingangstür.
Im Bebauungsplan steht WA + I + o
WA steht für allgemeines Wohngebiet, in dem Zusammenhang steht die l für ein bestimmtes WA, weil der Bebauungsplan mehrere verschiedene WAs hat. Die Bestimmungen für das WA ist dann textlich oder per Legende in der Zeichnung festgesetzt. Das kleine o bedeutet offene Bauweise, also keine Reihenhäuser oder Kettenbebauung.
Zum Beispiel so

Diagramm: 2 im Hex, WA in Streifen, Spalten III/g; GRZ 0,4; GFZ 1,0; ED-Dreieck; DN 30-35°.

Vielleicht reden wir auch aneinander vorbei. Oder ich bin wieder verpeilt. So verhält es sich zumindest nach meinem Wissen. Und ja, ein Vollgeschoss wird auch mit einem l angezeigt, Aber meist versetzt zum WA. In meinem Beispiel sind es 3 Vollgeschosse in geschlossener Bebauung (gegensätzlich o für offen)
Du könntest ja auch ein Screenshot zeigen. Der ist ja doch recht alt, der Bebauungsplan.
Wir kennen aber von dem GU ein ähnliches Haus, was für diesen Preis realisiert wurde.
Mit Keller?
 
Zuletzt aktualisiert 22.11.2025
Im Forum Grundrissplanung / Grundstücksplanung gibt es 2535 Themen mit insgesamt 87983 Beiträgen


Ähnliche Themen zu Grundrissplanung Einfamilienhaus mit Keller in Hanglage
Nr.ErgebnisBeiträge
1Entwurf Grundriss Bungalow - Eure Meinungen bitte! 14
2Grundriss-Entwurf: Einfamilienhaus mit Keller; 560qm Grundstück - Seite 365
3Position Garage auf Grundstück, Vorgabe im Bebauungsplan 22
4Einfamilienhaus - Bayern 150m² inkl Keller, Terrasse - Kostenaufstellung 11
5Straße ca. 50cm über Grundstück - Auffüllen oder Keller 24
6Grundriss für Einfamilienhaus mit 200m² mit Einliegerwohnung 75 +Keller 140m² +Garage 56m² 59
7Grundriss-Entwurf: Einfamilienhaus; mit Keller; 800qm Grundstück 10
8Meinungen zum Grundstück am Hang. - Seite 222
9Doppelhaushälfte am Hang mit Keller Grundriss suche. 17
10Erste Grundrissplanung auf Karopapier: Hang, Keller + 2 Geschosse. 80
11Einfamilienhaus-Planung am Hang (2.700qm Grundstück) - Erfahrungen / Diskussion 42
12Grundriss: Bauen leichten Hang - nicht genug für Keller wegen Aushub? 22
13Süd Hang Grundstück 700qm Einfamilienhaus ca. 150qm, Ideen Input? 41
14Eigenentwurf Grundriss Bungalow mit Keller 10
15Haus am Hang - ca. 200qm Wohnfläche 40
16Grundrissplanung Bungalow mit Keller an leichter Hanglage - Seite 226
17Abweichung vom Bebauungsplan in Neubaugebiet möglich - Seite 16118
18Grundrissplanung mit enger werdendem Grundstück - Seite 223
19Trapezförmiges Grundstück: Erste Ideen / Verbesserungsvorschläge 13
20Neubau Einfamilienhaus ca. 190m², Doppelgarage ohne Keller, Erstentwurf 21

Oben