ᐅ Grundrissplanung Einfamilienhaus 190qm Bodenplatte Saarland
Erstellt am: 12.03.20 01:12
H
Henning_85H
Henning_8512.03.20 01:12Bebauungsplan/Einschränkungen
Größe des Grundstücks 541qm
Hang leichte Hanglage
Grundflächenzahl 0,4
Geschossflächenzahl 0,8
Baufenster, Baulinie und -grenze jeweils ca. 6m
Randbebauung
Anzahl Stellplatz 2 Stellplätze
Geschossigkeit 2 Vollgeschosse
Dachform Flachdach
Stilrichtung Bauhaus
Ausrichtung Südausrichtung Garten
Maximale Höhen/Begrenzungen
weitere Vorgaben
Anforderungen der Bauherren
Stilrichtung, Dachform, Gebäudetyp
Keller, Geschosse
Anzahl der Personen, Alter 2 Personen, 33 und 35 Jahre
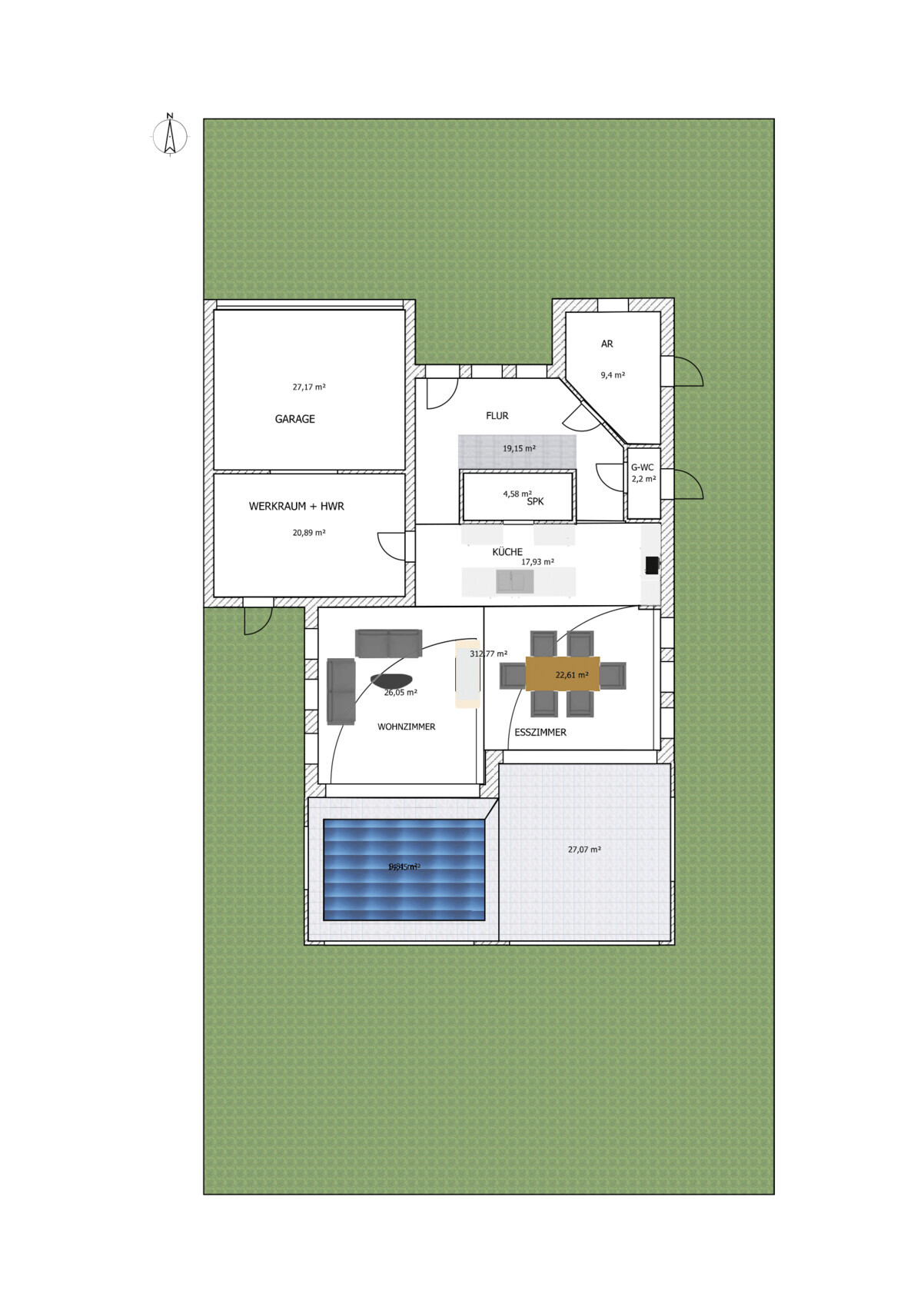
Raumbedarf im EG, OG ca. 190qm
Büro: Familiennutzung oder Homeoffice? Familiennutzung
Schlafgäste pro Jahr vernachlässigbar
offene oder geschlossene Architektur offene
konservativ oder moderne Bauweise modern
offene Küche, Kochinsel ja
Anzahl Essplätze 12
Kamin ja, Deko
Musik/Stereowand geplant Stereowand
Balkon, Dachterrasse fast umlaufende Dachterrasse
Garage, Carport Doppelgarage
Nutzgarten, Treibhaus nein
weitere Wünsche/Besonderheiten/Tagesablauf, gern auch Begründungen, warum dieses oder das nicht sein soll
Hausentwurf
Von wem stammt die Planung:
-Planer eines Bauunternehmens
-Architekt
-Do-it-Yourself eigener Entwurf
Was gefällt besonders? Warum?
Was gefällt nicht? Warum?
Preisschätzung lt Architekt/Planer: grobe Preisschätzung laut DIN 450.000
Persönliches Preislimit fürs Haus, inkl Ausstattung: 500.000
favorisierte Heiztechnik: Geothermie
Was ist die wichtigste/grundlegende Frage zum Grundriss in 130 Zeichen zusammengefasst?
Hallo liebes Forum,
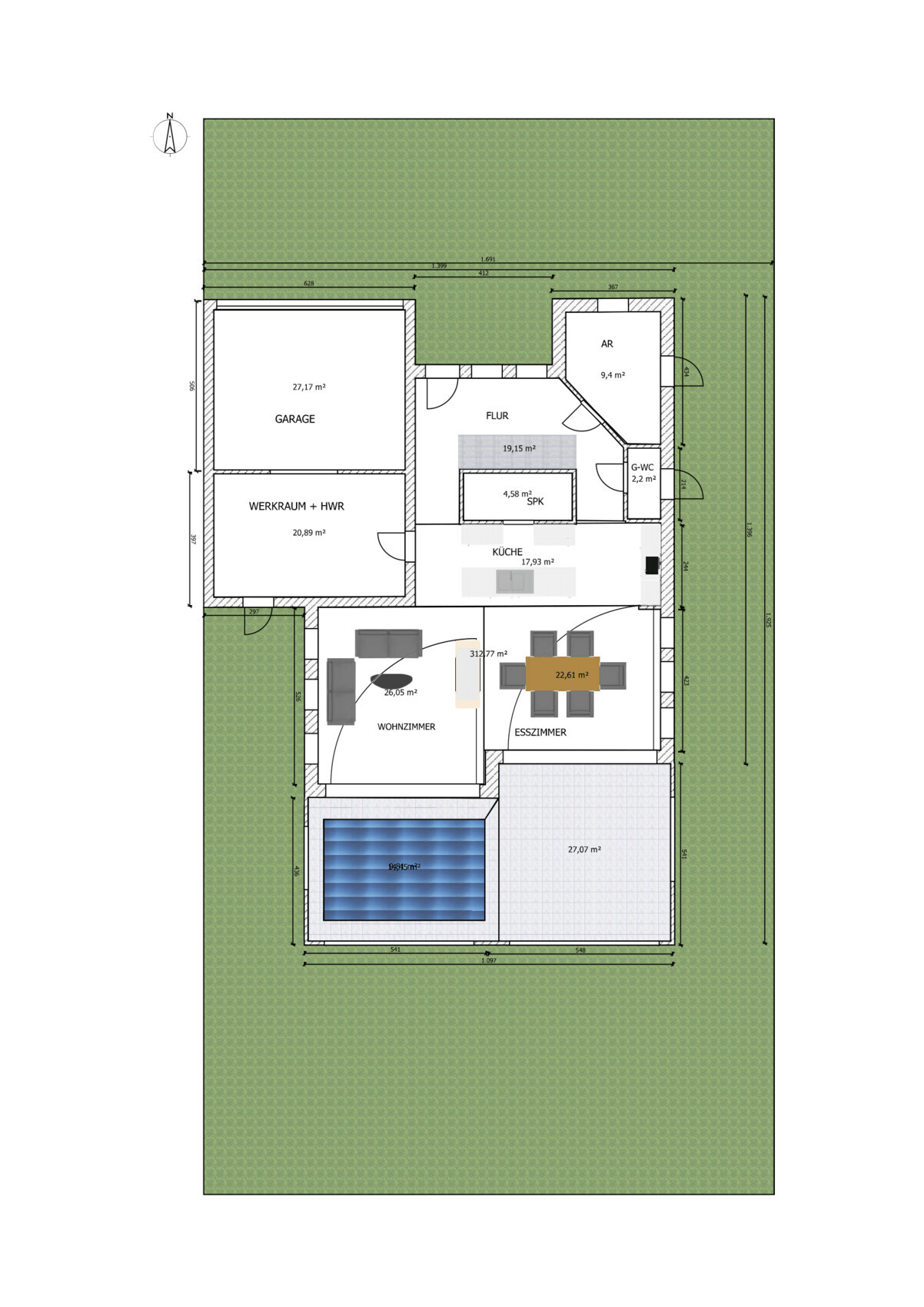
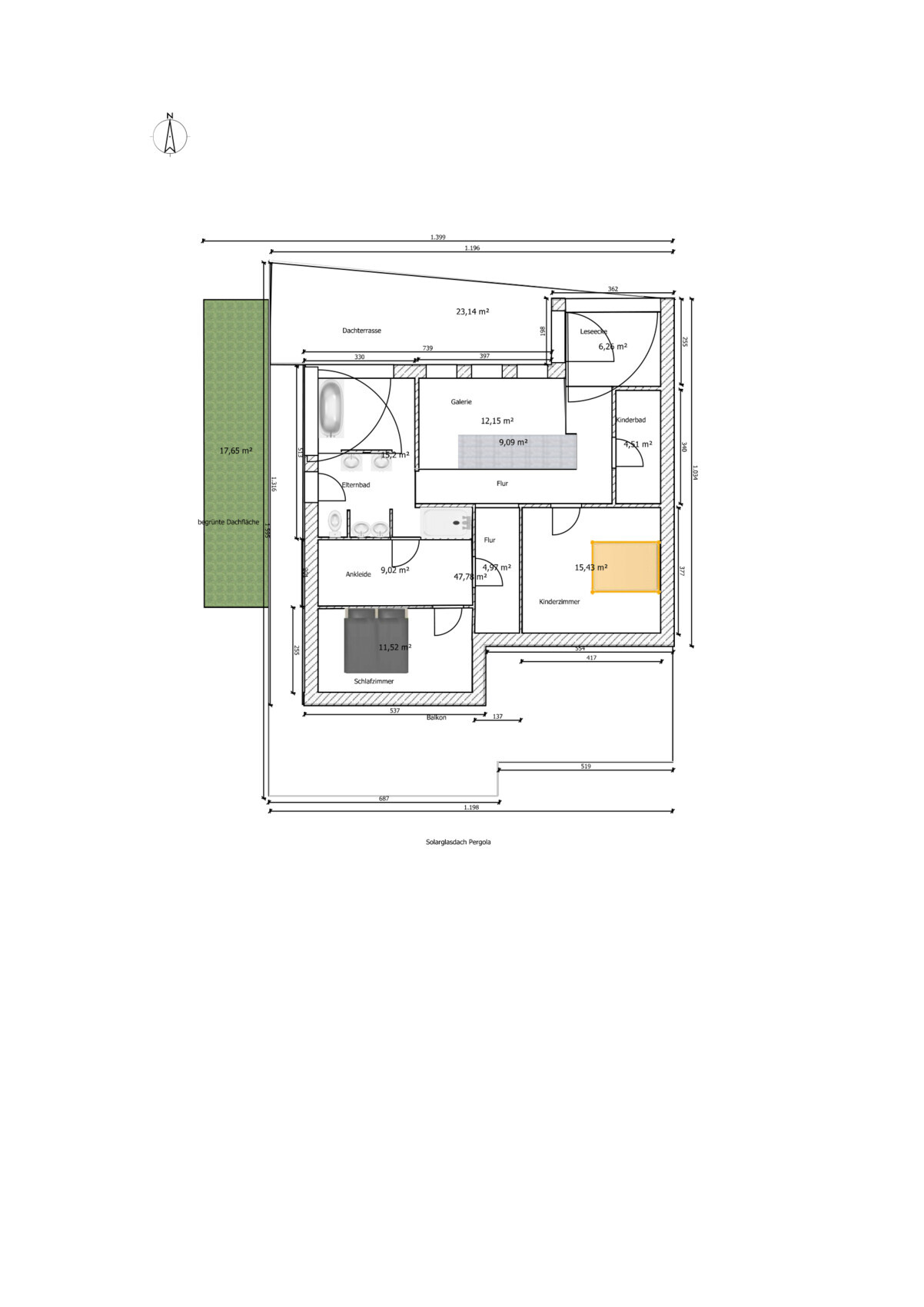
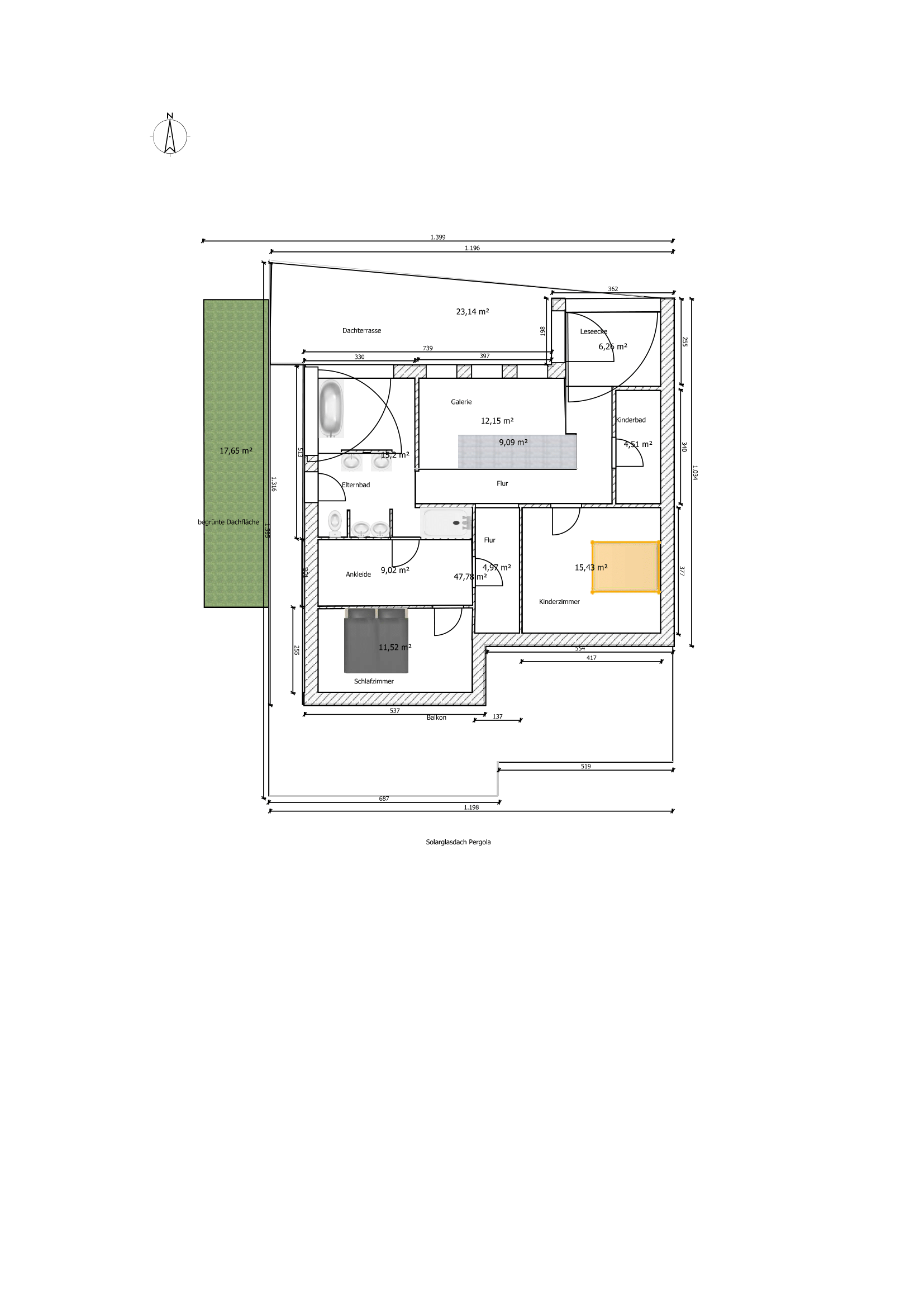
anbei unser erster Entwurf unseres geplantes Einfamilienhaus. Ich wünsche mir von Euch gute Ideen, Kritik, Tipps und Tricks....entschuldigt, dass die Bemassungen oder teilweise noch die Einrichtung fehlen. Es geht mir lediglich um den groben Grundriss.
Zwischen Wohn- und Esszimmer soll sich ein Kamin bzw. eine Attrappe befinden, welche als Raumtrenner dient. In der Pergola, welche mit einem Solarglasdach ausgestattet sein soll, ist ein Pool geplant, sollte es das Budget noch hergeben.
Wir planen mit einem Baumanager bzw. Baubetreuer in Einzelgewerkevergabe in Massivbauweise zu bauen.
Vielen Dank für Eure Meinungen.



Größe des Grundstücks 541qm
Hang leichte Hanglage
Grundflächenzahl 0,4
Geschossflächenzahl 0,8
Baufenster, Baulinie und -grenze jeweils ca. 6m
Randbebauung
Anzahl Stellplatz 2 Stellplätze
Geschossigkeit 2 Vollgeschosse
Dachform Flachdach
Stilrichtung Bauhaus
Ausrichtung Südausrichtung Garten
Maximale Höhen/Begrenzungen
weitere Vorgaben
Anforderungen der Bauherren
Stilrichtung, Dachform, Gebäudetyp
Keller, Geschosse
Anzahl der Personen, Alter 2 Personen, 33 und 35 Jahre
Raumbedarf im EG, OG ca. 190qm
Büro: Familiennutzung oder Homeoffice? Familiennutzung
Schlafgäste pro Jahr vernachlässigbar
offene oder geschlossene Architektur offene
konservativ oder moderne Bauweise modern
offene Küche, Kochinsel ja
Anzahl Essplätze 12
Kamin ja, Deko
Musik/Stereowand geplant Stereowand
Balkon, Dachterrasse fast umlaufende Dachterrasse
Garage, Carport Doppelgarage
Nutzgarten, Treibhaus nein
weitere Wünsche/Besonderheiten/Tagesablauf, gern auch Begründungen, warum dieses oder das nicht sein soll
Hausentwurf
Von wem stammt die Planung:
-Planer eines Bauunternehmens
-Architekt
-Do-it-Yourself eigener Entwurf
Was gefällt besonders? Warum?
Was gefällt nicht? Warum?
Preisschätzung lt Architekt/Planer: grobe Preisschätzung laut DIN 450.000
Persönliches Preislimit fürs Haus, inkl Ausstattung: 500.000
favorisierte Heiztechnik: Geothermie
Was ist die wichtigste/grundlegende Frage zum Grundriss in 130 Zeichen zusammengefasst?
Hallo liebes Forum,
anbei unser erster Entwurf unseres geplantes Einfamilienhaus. Ich wünsche mir von Euch gute Ideen, Kritik, Tipps und Tricks....entschuldigt, dass die Bemassungen oder teilweise noch die Einrichtung fehlen. Es geht mir lediglich um den groben Grundriss.
Zwischen Wohn- und Esszimmer soll sich ein Kamin bzw. eine Attrappe befinden, welche als Raumtrenner dient. In der Pergola, welche mit einem Solarglasdach ausgestattet sein soll, ist ein Pool geplant, sollte es das Budget noch hergeben.
Wir planen mit einem Baumanager bzw. Baubetreuer in Einzelgewerkevergabe in Massivbauweise zu bauen.
Vielen Dank für Eure Meinungen.
H
Henning_8512.03.20 11:10Puh, schwierig. Ich finde das irgendwie viel zu verschachtelt. Wahrscheinlich soll es im EG luftig und offen wirken - aber ich glaube nicht, dass das klappt.
aber ich bleibe erst mal bei den Falten.
Garage ist mit fünf Meter Länge für das Fahrzeug natürlich Humbug - oder wisst ihr jetzt schon, dass ihr niemals einen Kombi oder Limousine fahren werdet?
OG funktioniert so nicht. Enger Flur zum Elternbereich. Von der zu engen Umkleide läuft man direkt in die Dusche. Viele Quadratmeter im Bad und trotzdem alles seltsam beengt.
ganz ehrlich - schmeißt Den Grundriss weg und geht zum Architekten. Da müsst ihr eh noch hin.
aber ich bleibe erst mal bei den Falten.
Garage ist mit fünf Meter Länge für das Fahrzeug natürlich Humbug - oder wisst ihr jetzt schon, dass ihr niemals einen Kombi oder Limousine fahren werdet?
OG funktioniert so nicht. Enger Flur zum Elternbereich. Von der zu engen Umkleide läuft man direkt in die Dusche. Viele Quadratmeter im Bad und trotzdem alles seltsam beengt.
ganz ehrlich - schmeißt Den Grundriss weg und geht zum Architekten. Da müsst ihr eh noch hin.
Also das Haus kann viel kleiner gebaut werden ohne Wohnkomfort zu verlieren. Dazu können noch Räume auf vernünftige Abmesseungen vergrößert werden.
Kurz in die Tonne mit dem Grundriss Fangen wir mal im OG an.
Elternbereich:
Viel zu wenig Platz zwischen Bett und Wand. 2,55 - Bett inkl Rahmen - Putz da muss einer über den anderen Klettern.
Ankleide geht
Elternbad 4 Waschbecken?
Für was den Miniflur (das Gefühl in einer viel zu kleinen Wohnung zu sein wird hier erzeugt, wie an vielen anderen Stellen auch)
Kinderbad. Richter das mal ein, es funktioniert nicht.
Leseecke ist wohl ein Abfallprodukt.
Sehr hell, kaum Platz für Bücher und keine Ruhe
Große Galerie sorgt für Schallübertragung im ganzen Haus
EG
Arbeitszimmer kaum Abstellfläche
Die Schrägewand paßt gar nicht zum Haus.
Gäste-WC erinnert von den Abmessungen ehr an eine öffentliche Pipibox
Wie tief ist die Speisekammer?
Sofa wirkt recht zierlich
Positiv: endlich kein Minitisch
Garderobe fehlt komplett
Kurz in die Tonne mit dem Grundriss Fangen wir mal im OG an.
Elternbereich:
Viel zu wenig Platz zwischen Bett und Wand. 2,55 - Bett inkl Rahmen - Putz da muss einer über den anderen Klettern.
Ankleide geht
Elternbad 4 Waschbecken?
Für was den Miniflur (das Gefühl in einer viel zu kleinen Wohnung zu sein wird hier erzeugt, wie an vielen anderen Stellen auch)
Kinderbad. Richter das mal ein, es funktioniert nicht.
Leseecke ist wohl ein Abfallprodukt.
Sehr hell, kaum Platz für Bücher und keine Ruhe
Große Galerie sorgt für Schallübertragung im ganzen Haus
EG
Arbeitszimmer kaum Abstellfläche
Die Schrägewand paßt gar nicht zum Haus.
Gäste-WC erinnert von den Abmessungen ehr an eine öffentliche Pipibox
Wie tief ist die Speisekammer?
Sofa wirkt recht zierlich
Positiv: endlich kein Minitisch
Garderobe fehlt komplett
Ähnliche Themen