ᐅ Grundrissplanung Einfamilienhaus 180m2 Süd-Zufahrt - Chaos-Grundrisse
Erstellt am: 16.02.24 23:10
C
Cubus3f
Bebauungsplan/Einschränkungen
Größe des Grundstücks: 450m2
Hang: Nein
Grundflächenzahl: 0,4
Geschossflächenzahl: 0,8
Baufenster, Baulinie und -grenze: Grundstück ist 18,36 x 24,49; Baufenster jeweils 3 Meter zu Nord, Ost und West und 5 Meter in Richtung Süden (Straße)
Randbebauung: ja
Anzahl Stellplatz: 2
Geschossigkeit: 2
Dachform: Flachdach
Stilrichtung: modern, offen
Ausrichtung: Süd/West
Maximale Höhen/Begrenzungen
weitere Vorgaben: Moderat befahrene Straße im Süden, im Norden steht ein Mehrfamilienhaus
Anforderungen der Bauherren
Stilrichtung, Dachform, Gebäudetyp: modern, offen, Flachdach
Keller, Geschosse: Kein Keller, 2 Vollgeschosse
Anzahl der Personen, Alter: 2 mitdreizige Erwachsene, 2 Kinder (6+1)
Raumbedarf im EG, OG: EG 100m², OG 80m²
Büro: Familiennutzung oder Homeoffice? Homeoffice
Schlafgäste pro Jahr: 2 Personen, 3x im Jahr
offene oder geschlossene Architektur: offen
konservativ oder moderne Bauweise: modern
offene Küche, Kochinsel
Anzahl Essplätze: 8
Kamin:nein
Musik/Stereowand:nein
Balkon, Dachterrasse: nein
Garage, Carport: beides Ja
Nutzgarten, Treibhaus: nein
weitere Wünsche/Besonderheiten/Tagesablauf, gern auch Begründungen, warum dieses oder das nicht sein soll:
Wohn-Essbereich so viel wie möglich im Süden
Küche mit freistehender Kochinsel mit Speise teiloffen, ums Eck
Hausentwurf
Von wem stammt die Planung:
-Planer eines Bauunternehmens
-Architekt
Was gefällt besonders? Warum?Werkstatt hinten, Fahrradständer, Größe der Kinderzimmer, Elternbereich ist im Norden, Treppe Variante 1,
Was gefällt nicht? Warum? sehr knapper Garten vor allem von Terrasse bis Nachbarhaus
Variante 1:
EG:
Variante 2:
EG:
Preisschätzung laut Architekt/Planer: 3.200 €/m2
Persönliches Preislimit fürs Haus, inkl. Ausstattung: 700.000
favorisierte Heiztechnik: Wärmepumpe
Wenn Ihr verzichten müsst, auf welche Details/Ausbauten
-könnt Ihr verzichten: offene Treppe
-könnt Ihr nicht verzichten: Speise, Küche mit Kochinsel, Hauswirtschaftsraum im OG, Kinderbad, große Ankleide
Warum ist der Entwurf so geworden, wie er jetzt ist? ZB
Standardentwurf vom Planer? Architekt hat nach Gespräch Variante 1 & 2 entworfen
Entsprechende/Welche Wünsche wurden vom Architekten umgesetzt?
Ein Gemisch aus vielen Beispielen aus div. Magazinen...
Was macht ihn in Euren Augen besonders gut oder schlecht?
Hättet ihr Vorschläge, wie wir den Wohn/Ess/Kochbereich planen sollten, um eine L-Variante zu realisieren. Dabei sollte Platz für eine Kochinsel (2,35m x 1,1m) in der Küche sein. Die Treppen sollen mittig im Haus platziert werden, um die Räume im OG besser aufteilen zu können.
Gibt es sonst noch Verbesserungsvorschläge?
Vielen lieben Dank
Cubus3f



Größe des Grundstücks: 450m2
Hang: Nein
Grundflächenzahl: 0,4
Geschossflächenzahl: 0,8
Baufenster, Baulinie und -grenze: Grundstück ist 18,36 x 24,49; Baufenster jeweils 3 Meter zu Nord, Ost und West und 5 Meter in Richtung Süden (Straße)
Randbebauung: ja
Anzahl Stellplatz: 2
Geschossigkeit: 2
Dachform: Flachdach
Stilrichtung: modern, offen
Ausrichtung: Süd/West
Maximale Höhen/Begrenzungen
weitere Vorgaben: Moderat befahrene Straße im Süden, im Norden steht ein Mehrfamilienhaus
Anforderungen der Bauherren
Stilrichtung, Dachform, Gebäudetyp: modern, offen, Flachdach
Keller, Geschosse: Kein Keller, 2 Vollgeschosse
Anzahl der Personen, Alter: 2 mitdreizige Erwachsene, 2 Kinder (6+1)
Raumbedarf im EG, OG: EG 100m², OG 80m²
Büro: Familiennutzung oder Homeoffice? Homeoffice
Schlafgäste pro Jahr: 2 Personen, 3x im Jahr
offene oder geschlossene Architektur: offen
konservativ oder moderne Bauweise: modern
offene Küche, Kochinsel
Anzahl Essplätze: 8
Kamin:nein
Musik/Stereowand:nein
Balkon, Dachterrasse: nein
Garage, Carport: beides Ja
Nutzgarten, Treibhaus: nein
weitere Wünsche/Besonderheiten/Tagesablauf, gern auch Begründungen, warum dieses oder das nicht sein soll:
Wohn-Essbereich so viel wie möglich im Süden
Küche mit freistehender Kochinsel mit Speise teiloffen, ums Eck
Hausentwurf
Von wem stammt die Planung:
-Planer eines Bauunternehmens
-Architekt
Was gefällt besonders? Warum?Werkstatt hinten, Fahrradständer, Größe der Kinderzimmer, Elternbereich ist im Norden, Treppe Variante 1,
Was gefällt nicht? Warum? sehr knapper Garten vor allem von Terrasse bis Nachbarhaus
Variante 1:
EG:
- Schlecht: Zu kleine Küche, freistehende Kochinsel von 2,35m passt nicht rein, Eingang zum Wohnbereich zu klein
- Gut: gerämige Diele, offene Podesttreppe
- Schlecht: Durchgang zum Kinderbad durch Hauswirtschaftsraum, Eingang Elternbereich durch Ankleide, Schminktisch im Elternschlafzimmer und nicht in Ankleide
- Gut: geräimiges Elternbad, Größe Hauswirtschaftsraum und Kinderbad,
Variante 2:
EG:
- Schlecht: keine Podesttreppe, kleiner Eingang bzw. Diele, Eingangsbereich in den Wohnbereich
- Gut: große Küche
- Schlecht: zu großes Hauswirtschaftsraum, Eingang Schlafbereich (man läuft gegen eine Wand), Schminktisch im Elternschlafzimmer, zu kleines Elternbad
- Gut: separater Eingang in den Hauswirtschaftsraum
Preisschätzung laut Architekt/Planer: 3.200 €/m2
Persönliches Preislimit fürs Haus, inkl. Ausstattung: 700.000
favorisierte Heiztechnik: Wärmepumpe
Wenn Ihr verzichten müsst, auf welche Details/Ausbauten
-könnt Ihr verzichten: offene Treppe
-könnt Ihr nicht verzichten: Speise, Küche mit Kochinsel, Hauswirtschaftsraum im OG, Kinderbad, große Ankleide
Warum ist der Entwurf so geworden, wie er jetzt ist? ZB
Standardentwurf vom Planer? Architekt hat nach Gespräch Variante 1 & 2 entworfen
Entsprechende/Welche Wünsche wurden vom Architekten umgesetzt?
Ein Gemisch aus vielen Beispielen aus div. Magazinen...
Was macht ihn in Euren Augen besonders gut oder schlecht?
Hättet ihr Vorschläge, wie wir den Wohn/Ess/Kochbereich planen sollten, um eine L-Variante zu realisieren. Dabei sollte Platz für eine Kochinsel (2,35m x 1,1m) in der Küche sein. Die Treppen sollen mittig im Haus platziert werden, um die Räume im OG besser aufteilen zu können.
Gibt es sonst noch Verbesserungsvorschläge?
Vielen lieben Dank
Cubus3f
Also, das sind auf jeden Fall erhöhte lichte Raumhöhen, von daher ist die Größe der Podesttreppe (was ja weiter vorne schon mal angezweifelt wurde) auf jeden Fall mindestens erforderlich.
Das Problem ist, man muss sich vom aktuellen Grundriss lösen und quasi gedanklich neu starten.
Und ja, ich finde den Eingang viel zu versteckt und würde versuchen eine andere Lösung zu finden.
Und ja, für Fahrräder sollte man einen geschützten Bereich andenken (E-Bikes, Sattel, etc.)
Und ja, ich würde die Auflockerung eines Kubus-Gebäudes eher durch Außenwandmaterialien bestimmen und nicht Erker und Rücksprünge schaffen.
Und ja, ich würde die Küche mit Essen eher Richtung Terrasse orientieren und Wohnbereich (Sofa/TV/Lesen) ruhiger bzw. sogar trennen.
Und ja, ich würde einen Elternbereich, wenn er denn sein soll, immer nicht so verschachteln, darauf achten, dass Raumzugänge nicht neben dem Kopfteil des Bettes sind.
Ansonsten .. auch mal ein oder zwei positive Aspekte.
- Hauswirtschaftsraum im OG
- Versuch an den passenden Stellen Stauraum zu schaffen (nicht immer gelungen, siehe Diele)
- auch an Fahrräder gedacht (finde ich auch nicht gelungen, aber dran gedacht)
- auch an Hobby, Werkstatt, evtl. auch einfach nur Platz für Rasenmäher und Gartenwerkzeug gedacht
- Garage über 3 m breit
- 2. Stellplatz, den ich gar nicht so doof finde.
Das Problem ist, man muss sich vom aktuellen Grundriss lösen und quasi gedanklich neu starten.
Und ja, ich finde den Eingang viel zu versteckt und würde versuchen eine andere Lösung zu finden.
Und ja, für Fahrräder sollte man einen geschützten Bereich andenken (E-Bikes, Sattel, etc.)
Und ja, ich würde die Auflockerung eines Kubus-Gebäudes eher durch Außenwandmaterialien bestimmen und nicht Erker und Rücksprünge schaffen.
Und ja, ich würde die Küche mit Essen eher Richtung Terrasse orientieren und Wohnbereich (Sofa/TV/Lesen) ruhiger bzw. sogar trennen.
Und ja, ich würde einen Elternbereich, wenn er denn sein soll, immer nicht so verschachteln, darauf achten, dass Raumzugänge nicht neben dem Kopfteil des Bettes sind.
Ansonsten .. auch mal ein oder zwei positive Aspekte.
- Hauswirtschaftsraum im OG
- Versuch an den passenden Stellen Stauraum zu schaffen (nicht immer gelungen, siehe Diele)
- auch an Fahrräder gedacht (finde ich auch nicht gelungen, aber dran gedacht)
- auch an Hobby, Werkstatt, evtl. auch einfach nur Platz für Rasenmäher und Gartenwerkzeug gedacht
- Garage über 3 m breit
- 2. Stellplatz, den ich gar nicht so doof finde.
S
Schorsch_baut18.02.24 19:53Ich bin gerade zu faul, alles zu lesen. Hat schon jemand angemerkt, dass Ihr zu viele Wünsche für das OG bei 80 qm habt? Rechne einfach mal zusammen, was die einzelnen Räume an qm brauchen. Das sprengt die 80 qm um einige qm.
kbt09 schrieb:
Und ja, ich würde die Auflockerung eines Kubus-Gebäudes eher durch Außenwandmaterialien bestimmen und nicht Erker und Rücksprünge schaffen.Das sage ich ja auch immer: das Finish kommt beim Schminken.kbt09 schrieb:
- Hauswirtschaftsraum im OGWie gesagt, am besten auch der Technikraum hier.kbt09 schrieb:
Das Problem ist, man muss sich vom aktuellen Grundriss lösen und quasi gedanklich neu starten.Um das auch noch mal ganz klar zu betonen: was ich hier sage, ist in keinstem Fall im Sinne von "wenn man dieses Detail ändert, ist einer der beiden Vorschläge schon brauchbar" gemeint. Das muß neu, im Sinne von "alles auf Anfang", in der Nachsynchronisation kann man da nichts retten. Deshalb bin ich hier auch nicht im Detail darauf eingegangen, wo in diesen beiden Bauvorschlägen die sauteuren Statikdetails stecken. Und was ich zu den Planungsschlampigkeiten bereits sagte ...11ant schrieb:
Pfuschertaschen, die der Planer vorsieht, wird der Maurer auch ausführen.... gilt sinngemäß auch für die Treppe / Geschosshöhe: wenn man den planlesenden Bauarbeitern die freie Wahl der Interpretation läßt, dann nutzen sie die auch. Vorn der Hans und hinten der Jürgen jeweils auf ihre Weise, und am Bindestrich paßt der Hans-Jürgen dann mit einer Handbreit Höhenunterschied nicht mehr zusammen. Das kriegt der Putzer nicht kaschiert. Es gibt Fälle, da muß Maria auch Protestanten helfen.https://www.instagram.com/11antgmxde/
https://www.linkedin.com/company/bauen-jetzt/
Cubus3f schrieb:
Wir haben gerade in den Schnitten nachgeschaut. 2,85m im EG und 2,60m im OG ohne Boden.
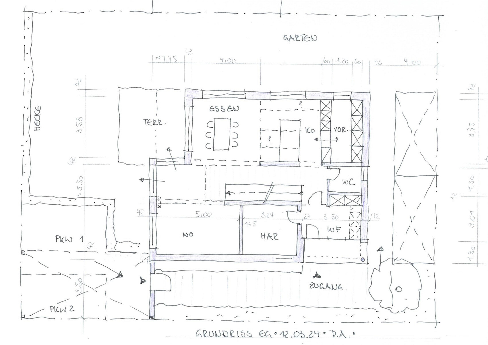
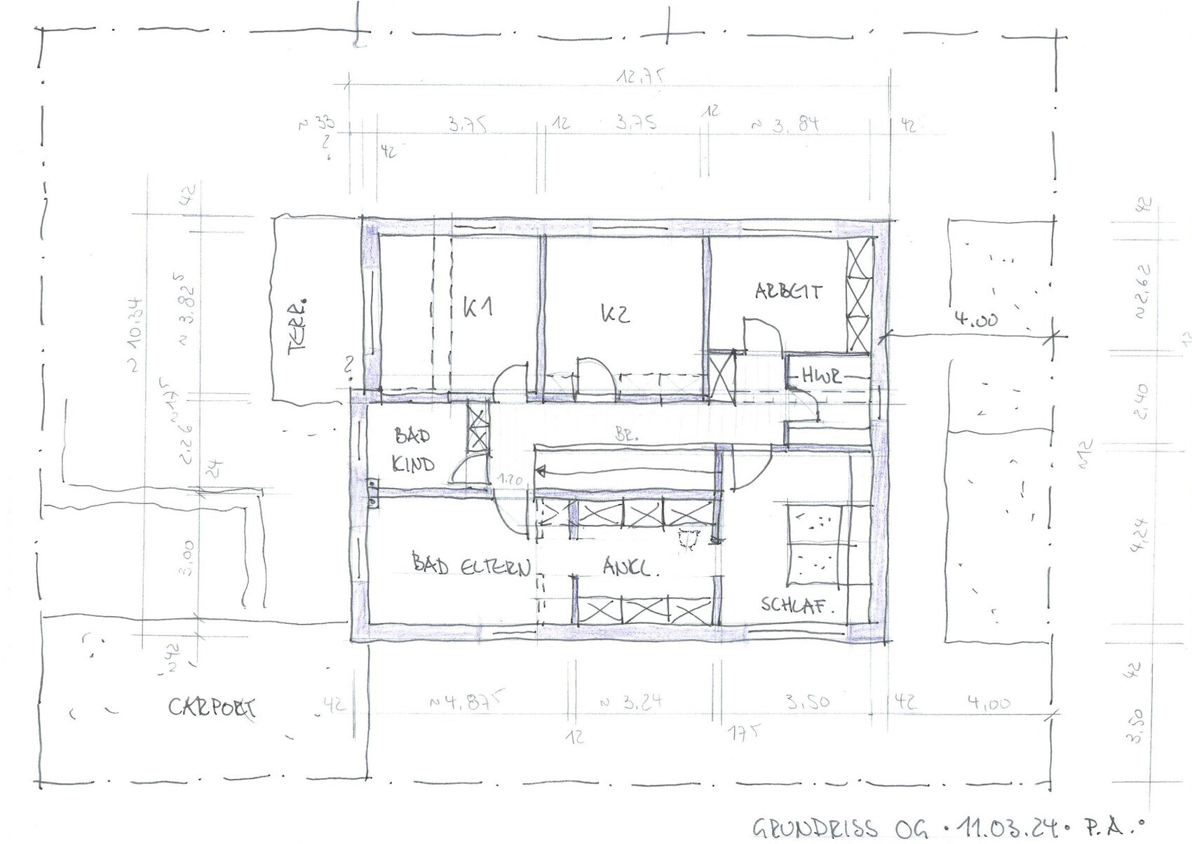
Über Treppentiefe und Höhe haben wir uns überhaupt nocht gar keine Gedanken gemacht. Na dann habt Ihr ja noch was, womit Ihr Euch mal befassen solltet. Einfach mal ein paar Treppen probe gehen und schauen, was Eure Mindestmaße sind. Außerdem die Maße im Plan erfragen (inkl. Steigungshöhe und Auftrittstiefe) und gleich mit über die Geschosshöhe nachdenken.Guten Abend liebe Hausbau Forum Mitglieder,
nachdem wir mit dem Architekten unsere Wünsche nochmals geteilt hatte, haben einen kompletten Neuentwurf erhalten. Dieser sagt uns sehr zu 🙂
Wir haben den Garten in den Süden verlegt und Wohnzimmer mit Küche getauscht und vieles mehr.
Seht ihr noch Verbesserungspotenzial?
Vielen Dank schon mal für Euer Feedback.
LG
Cubus3f


nachdem wir mit dem Architekten unsere Wünsche nochmals geteilt hatte, haben einen kompletten Neuentwurf erhalten. Dieser sagt uns sehr zu 🙂
Wir haben den Garten in den Süden verlegt und Wohnzimmer mit Küche getauscht und vieles mehr.
Seht ihr noch Verbesserungspotenzial?
Vielen Dank schon mal für Euer Feedback.
LG
Cubus3f
Ähnliche Themen