ᐅ Grundrissplanung Einfamilienhaus 180m2 Süd-Zufahrt - Chaos-Grundrisse
Erstellt am: 16.02.24 23:10
C
Cubus3fBebauungsplan/Einschränkungen
Größe des Grundstücks: 450m2
Hang: Nein
Grundflächenzahl: 0,4
Geschossflächenzahl: 0,8
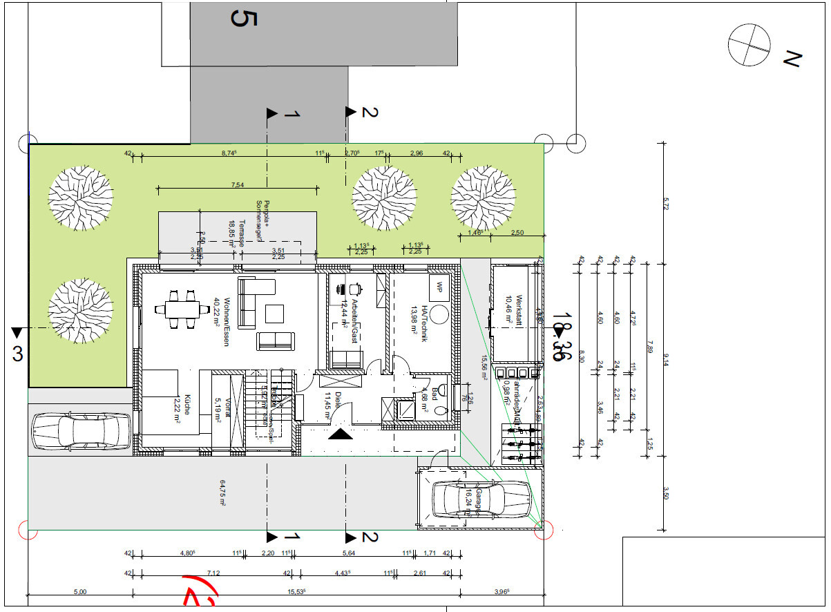
Baufenster, Baulinie und -grenze: Grundstück ist 18,36 x 24,49; Baufenster jeweils 3 Meter zu Nord, Ost und West und 5 Meter in Richtung Süden (Straße)
Randbebauung: ja
Anzahl Stellplatz: 2
Geschossigkeit: 2
Dachform: Flachdach
Stilrichtung: modern, offen
Ausrichtung: Süd/West
Maximale Höhen/Begrenzungen
weitere Vorgaben: Moderat befahrene Straße im Süden, im Norden steht ein Mehrfamilienhaus
Anforderungen der Bauherren
Stilrichtung, Dachform, Gebäudetyp: modern, offen, Flachdach
Keller, Geschosse: Kein Keller, 2 Vollgeschosse
Anzahl der Personen, Alter: 2 mitdreizige Erwachsene, 2 Kinder (6+1)
Raumbedarf im EG, OG: EG 100m², OG 80m²
Büro: Familiennutzung oder Homeoffice? Homeoffice
Schlafgäste pro Jahr: 2 Personen, 3x im Jahr
offene oder geschlossene Architektur: offen
konservativ oder moderne Bauweise: modern
offene Küche, Kochinsel
Anzahl Essplätze: 8
Kamin:nein
Musik/Stereowand:nein
Balkon, Dachterrasse: nein
Garage, Carport: beides Ja
Nutzgarten, Treibhaus: nein
weitere Wünsche/Besonderheiten/Tagesablauf, gern auch Begründungen, warum dieses oder das nicht sein soll:
Wohn-Essbereich so viel wie möglich im Süden
Küche mit freistehender Kochinsel mit Speise teiloffen, ums Eck
Hausentwurf
Von wem stammt die Planung:
-Planer eines Bauunternehmens
-Architekt
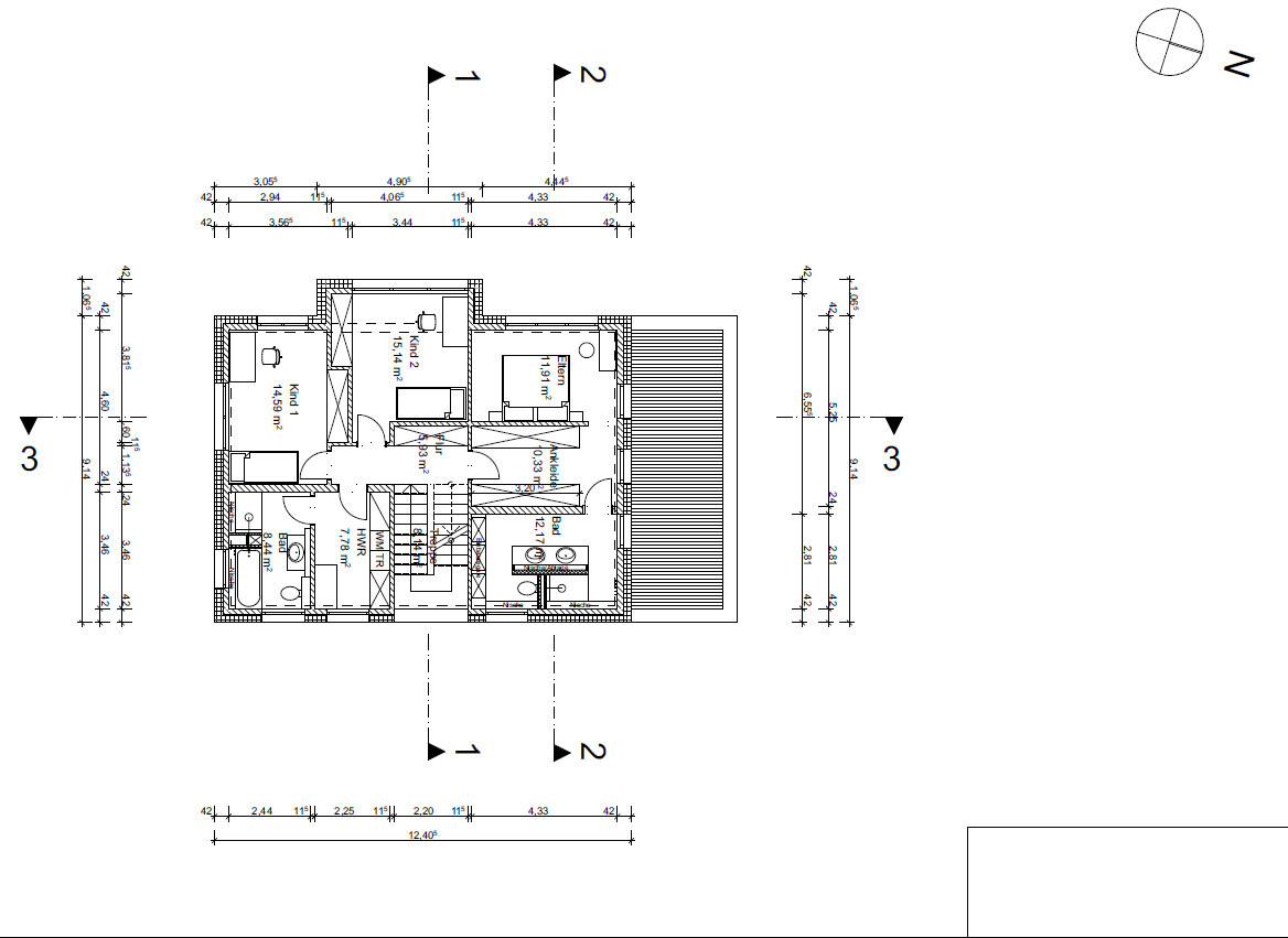
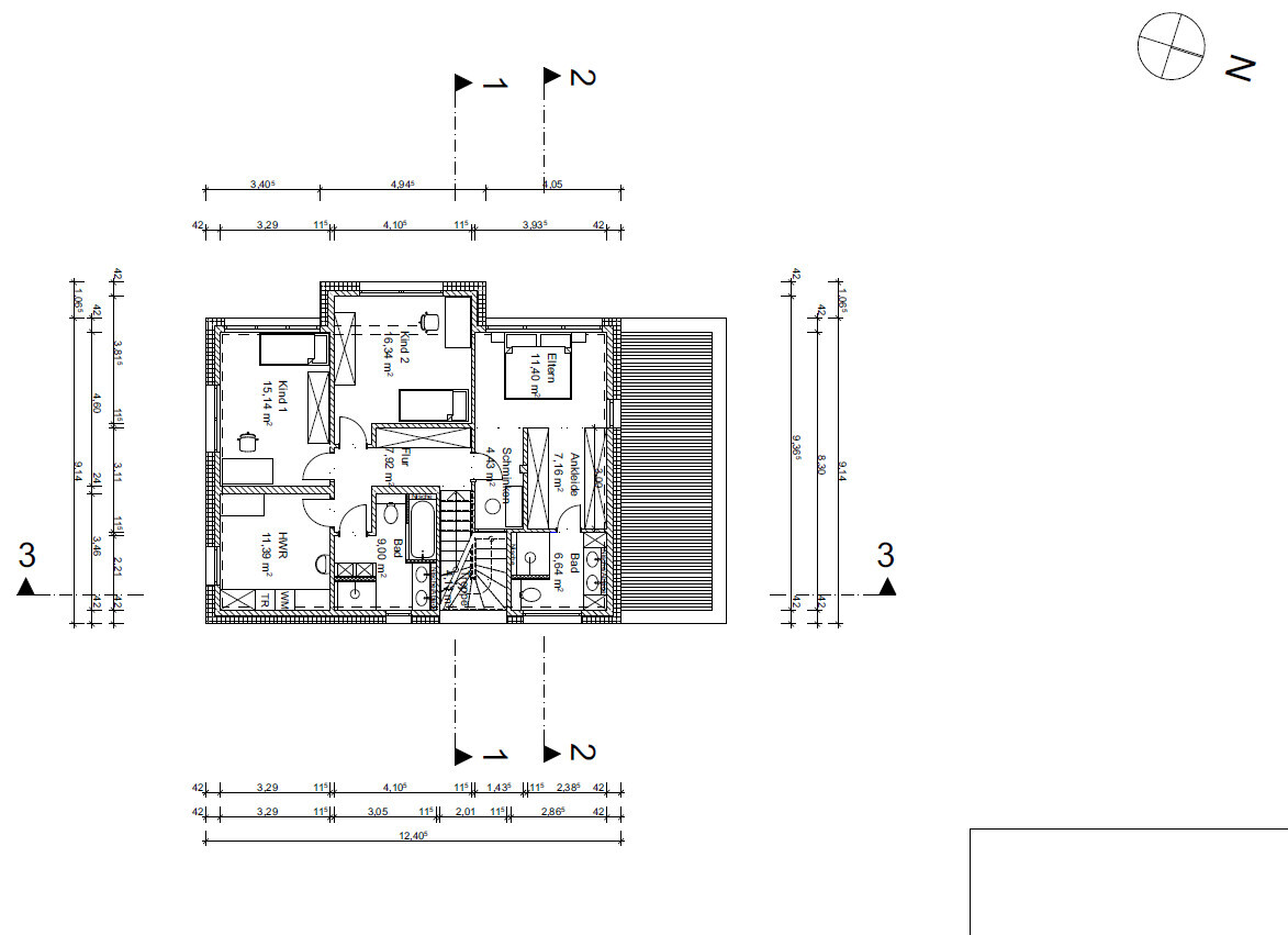
Was gefällt besonders? Warum?Werkstatt hinten, Fahrradständer, Größe der Kinderzimmer, Elternbereich ist im Norden, Treppe Variante 1,
Was gefällt nicht? Warum? sehr knapper Garten vor allem von Terrasse bis Nachbarhaus
Variante 1:
EG:
Variante 2:
EG:
Preisschätzung laut Architekt/Planer: 3.200 €/m2
Persönliches Preislimit fürs Haus, inkl. Ausstattung: 700.000
favorisierte Heiztechnik: Wärmepumpe
Wenn Ihr verzichten müsst, auf welche Details/Ausbauten
-könnt Ihr verzichten: offene Treppe
-könnt Ihr nicht verzichten: Speise, Küche mit Kochinsel, Hauswirtschaftsraum im OG, Kinderbad, große Ankleide
Warum ist der Entwurf so geworden, wie er jetzt ist? ZB
Standardentwurf vom Planer? Architekt hat nach Gespräch Variante 1 & 2 entworfen
Entsprechende/Welche Wünsche wurden vom Architekten umgesetzt?
Ein Gemisch aus vielen Beispielen aus div. Magazinen...
Was macht ihn in Euren Augen besonders gut oder schlecht?
Hättet ihr Vorschläge, wie wir den Wohn/Ess/Kochbereich planen sollten, um eine L-Variante zu realisieren. Dabei sollte Platz für eine Kochinsel (2,35m x 1,1m) in der Küche sein. Die Treppen sollen mittig im Haus platziert werden, um die Räume im OG besser aufteilen zu können.
Gibt es sonst noch Verbesserungsvorschläge?
Vielen lieben Dank
Cubus3f




Größe des Grundstücks: 450m2
Hang: Nein
Grundflächenzahl: 0,4
Geschossflächenzahl: 0,8
Baufenster, Baulinie und -grenze: Grundstück ist 18,36 x 24,49; Baufenster jeweils 3 Meter zu Nord, Ost und West und 5 Meter in Richtung Süden (Straße)
Randbebauung: ja
Anzahl Stellplatz: 2
Geschossigkeit: 2
Dachform: Flachdach
Stilrichtung: modern, offen
Ausrichtung: Süd/West
Maximale Höhen/Begrenzungen
weitere Vorgaben: Moderat befahrene Straße im Süden, im Norden steht ein Mehrfamilienhaus
Anforderungen der Bauherren
Stilrichtung, Dachform, Gebäudetyp: modern, offen, Flachdach
Keller, Geschosse: Kein Keller, 2 Vollgeschosse
Anzahl der Personen, Alter: 2 mitdreizige Erwachsene, 2 Kinder (6+1)
Raumbedarf im EG, OG: EG 100m², OG 80m²
Büro: Familiennutzung oder Homeoffice? Homeoffice
Schlafgäste pro Jahr: 2 Personen, 3x im Jahr
offene oder geschlossene Architektur: offen
konservativ oder moderne Bauweise: modern
offene Küche, Kochinsel
Anzahl Essplätze: 8
Kamin:nein
Musik/Stereowand:nein
Balkon, Dachterrasse: nein
Garage, Carport: beides Ja
Nutzgarten, Treibhaus: nein
weitere Wünsche/Besonderheiten/Tagesablauf, gern auch Begründungen, warum dieses oder das nicht sein soll:
Wohn-Essbereich so viel wie möglich im Süden
Küche mit freistehender Kochinsel mit Speise teiloffen, ums Eck
Hausentwurf
Von wem stammt die Planung:
-Planer eines Bauunternehmens
-Architekt
Was gefällt besonders? Warum?Werkstatt hinten, Fahrradständer, Größe der Kinderzimmer, Elternbereich ist im Norden, Treppe Variante 1,
Was gefällt nicht? Warum? sehr knapper Garten vor allem von Terrasse bis Nachbarhaus
Variante 1:
EG:
- Schlecht: Zu kleine Küche, freistehende Kochinsel von 2,35m passt nicht rein, Eingang zum Wohnbereich zu klein
- Gut: gerämige Diele, offene Podesttreppe
- Schlecht: Durchgang zum Kinderbad durch Hauswirtschaftsraum, Eingang Elternbereich durch Ankleide, Schminktisch im Elternschlafzimmer und nicht in Ankleide
- Gut: geräimiges Elternbad, Größe Hauswirtschaftsraum und Kinderbad,
Variante 2:
EG:
- Schlecht: keine Podesttreppe, kleiner Eingang bzw. Diele, Eingangsbereich in den Wohnbereich
- Gut: große Küche
- Schlecht: zu großes Hauswirtschaftsraum, Eingang Schlafbereich (man läuft gegen eine Wand), Schminktisch im Elternschlafzimmer, zu kleines Elternbad
- Gut: separater Eingang in den Hauswirtschaftsraum
Preisschätzung laut Architekt/Planer: 3.200 €/m2
Persönliches Preislimit fürs Haus, inkl. Ausstattung: 700.000
favorisierte Heiztechnik: Wärmepumpe
Wenn Ihr verzichten müsst, auf welche Details/Ausbauten
-könnt Ihr verzichten: offene Treppe
-könnt Ihr nicht verzichten: Speise, Küche mit Kochinsel, Hauswirtschaftsraum im OG, Kinderbad, große Ankleide
Warum ist der Entwurf so geworden, wie er jetzt ist? ZB
Standardentwurf vom Planer? Architekt hat nach Gespräch Variante 1 & 2 entworfen
Entsprechende/Welche Wünsche wurden vom Architekten umgesetzt?
Ein Gemisch aus vielen Beispielen aus div. Magazinen...
Was macht ihn in Euren Augen besonders gut oder schlecht?
Hättet ihr Vorschläge, wie wir den Wohn/Ess/Kochbereich planen sollten, um eine L-Variante zu realisieren. Dabei sollte Platz für eine Kochinsel (2,35m x 1,1m) in der Küche sein. Die Treppen sollen mittig im Haus platziert werden, um die Räume im OG besser aufteilen zu können.
Gibt es sonst noch Verbesserungsvorschläge?
Vielen lieben Dank
Cubus3f
Upps… definitiv WZ mit Küche tauschen. Im OG den Hauswirtschaftsraum einkürzen, Flur mit Einbauschrank statt QM und somit direkter Zugang zum Kinderbad. Eltern Zugang Ankleide etc. nach vorn verlegen, Westfenster streichen und Bett um 180 Grad drehen. Ich hoffe, ich habe es richtig umgesetzt.
ypg schrieb:
Upps… definitiv WZ mit Küche tauschen. Guten Morgen YPG vielen Dank für deine Rückmeldung.
Die Küche mit dem Wohnzimmer zu tauschen können wir tatsächlich in Betracht ziehen, aber wir würden gegen die Speisekammer laufen oder?( Speisekammer hinter Küchenzeile) Bzw wäre der Eingang zu wohn/koch/essbereich nicht zu klein?
ypg schrieb:
Im OG den Hauswirtschaftsraum einkürzen, Flur mit Einbauschrank statt QM und somit direkter Zugang zum Kinderbad. Eltern Zugang Ankleide etc. nach vorn verlegen, Westfenster streichen und Bett um 180 Grad drehen. Ich hoffe, ich habe es richtig umgesetzt.Wir reden von Variante 1:
Wenn wir Wohnzimmer und Küche tauschen, würde man im OG ja kind2 und Hauswirtschaftsraum/Kinderbad tauschen, wegen der Wasserrohre.
Zum Elternbereich: Danke für den Tipp mit der bettdrehung. Aber den Schmink/Frisiertisch haben wir dann aber trotzdem noch im Schlafzimmer. Der soll da raus
Was hier das in der Überschrift erwähnte "Chaos" in der Grundrissplanung ist, habe ich noch nicht verstanden. Wenn der Architekt im Gespräch das Stichwort "Schminktisch" mißdeutet und diesen ins Schlafzimmer verschiebt, finde ich das nicht so dramatisch. Vermutlich denkt er dabei an das Sichaufbrezeln der Dame des Hauses, angemessen zum Bundespresseballkleid. Das findet zu einer Tageszeit statt, wo es im Schlafzimmer niemanden stört. Soll hingegen des alltägliche Lippenrotmalen vom Badezimmerspiegel dorthin verlagert werden und will sich der Gemahl dann vor der Spätschicht noch in den Kissen wälzen, muß man dem Architekten das mitteilen. Sonst gehört ein Schminktisch im Kopfkino eines Architekten in das Damenzimmer und bei einem gemeinsamen Schlafzimmer eben ersatzweise in dieses. Das ist nicht böse gemeint und kein "Chaos". Das angesichts
In einem frühen Stadium, wo die Bauweise vernünftigerweise noch gar nicht festgelegt wurde, haben Details einer Ausführungsplanung in einem Entwurf noch garnichts zu suchen. Tindert mal weiter, nach einem geeigneteren Architektenkandidaten.
https://www.instagram.com/11antgmxde/
https://www.linkedin.com/company/bauen-jetzt/
Cubus3f schrieb:dann eine Dachterrasse auf diesen Anblick ausgerichtet wird, läßt mich schon eher fragen, was dieser Architekt wohl beruflich mache.
im Norden steht ein Mehrfamilienhaus
Cubus3f schrieb:Schon nach dem Kennenlerngespräch ? - ist der Architekt womöglich gar ein "Architekt" aka GU-Zeichenknecht ?
Architekt hat nach Gespräch Variante 1 & 2 entworfen
In einem frühen Stadium, wo die Bauweise vernünftigerweise noch gar nicht festgelegt wurde, haben Details einer Ausführungsplanung in einem Entwurf noch garnichts zu suchen. Tindert mal weiter, nach einem geeigneteren Architektenkandidaten.
https://www.instagram.com/11antgmxde/
https://www.linkedin.com/company/bauen-jetzt/
H
hanghaus202317.02.24 14:3511ant schrieb:
dann eine Dachterrasse auf diesen Anblick ausgerichtet wird, läßt mich schon eher fragen, was dieser Architekt wohl beruflich mache.Ich sehe da max. eine Attika. Eventuell kann da eine Ansicht Klarheit schaffen.
11ant schrieb:
Was hier das in der Überschrift erwähnte "Chaos" in der Grundrissplanung ist, habe ich noch nicht verstanden. Wenn der Architekt im Gespräch das Stichwort "Schminktisch" mißdeutet und diesen ins Schlafzimmer verschiebt, finde ich das nicht so dramatisch. Vermutlich denkt er dabei an das Sichaufbrezeln der Dame des Hauses, angemessen zum Bundespresseballkleid. Das findet zu einer Tageszeit statt, wo es im Schlafzimmer niemanden stört. Soll hingegen des alltägliche Lippenrotmalen vom Badezimmerspiegel dorthin verlagert werden und will sich der Gemahl dann vor der Spätschicht noch in den Kissen wälzen, muß man dem Architekten das mitteilen. Sonst gehört ein Schminktisch im Kopfkino eines Architekten in das Damenzimmer und bei einem gemeinsamen Schlafzimmer eben ersatzweise in dieses. Das ist nicht böse gemeint und kein "Chaos".Chaos war vielleicht doch falsch formuliert. Schwierig hätte man es nenne können, weil wir unten den Eingangsbereich und Wohn-/Ess-/Kochbereich leider einfach nicht zufriedenstellend hin bekommen. Wir dachten, vielleicht habt ihr eine ganz neue Idee. Vielleicht die Treppe aus dem Wohnbereich rausnehmen?
11ant schrieb:
dann eine Dachterrasse auf diesen Anblick ausgerichtet wird, läßt mich schon eher fragen, was dieser Architekt wohl beruflich mache.
Die Dachterrasse wäre eine Option gewesen, weil das Haus von unten länger ist als oben. Wir finden die Dachterrasse auch nicht sehr sinnvoll und diese wird auch nicht umgesetzt.
11ant schrieb:
Schon nach dem Kennenlerngespräch ? - ist der Architekt womöglich gar ein "Architekt" aka GU-Zeichenknecht ?
In einem frühen Stadium, wo die Bauweise vernünftigerweise noch gar nicht festgelegt wurde, haben Details einer Ausführungsplanung in einem Entwurf noch garnichts zu suchen. Tindert mal weiter, nach einem geeigneteren Architektenkandidaten.Ne, nicht nach dem Erstgespräch. Die Varianten kamen jeweils nach einem Gespräch, nachdem wir unsere Raumplanungswünsche genannt hatten.Die Baufirma mit der wir bauen arbeitet nur mit diesem Architekten-Team. Da gibts keine Alternative
Ähnliche Themen