ᐅ Grundrissplanung Einfamilienhaus 180m2 Süd-Zufahrt - Chaos-Grundrisse
Erstellt am: 16.02.24 23:10
C
Cubus3f
Bebauungsplan/Einschränkungen
Größe des Grundstücks: 450m2
Hang: Nein
Grundflächenzahl: 0,4
Geschossflächenzahl: 0,8
Baufenster, Baulinie und -grenze: Grundstück ist 18,36 x 24,49; Baufenster jeweils 3 Meter zu Nord, Ost und West und 5 Meter in Richtung Süden (Straße)
Randbebauung: ja
Anzahl Stellplatz: 2
Geschossigkeit: 2
Dachform: Flachdach
Stilrichtung: modern, offen
Ausrichtung: Süd/West
Maximale Höhen/Begrenzungen
weitere Vorgaben: Moderat befahrene Straße im Süden, im Norden steht ein Mehrfamilienhaus
Anforderungen der Bauherren
Stilrichtung, Dachform, Gebäudetyp: modern, offen, Flachdach
Keller, Geschosse: Kein Keller, 2 Vollgeschosse
Anzahl der Personen, Alter: 2 mitdreizige Erwachsene, 2 Kinder (6+1)
Raumbedarf im EG, OG: EG 100m², OG 80m²
Büro: Familiennutzung oder Homeoffice? Homeoffice
Schlafgäste pro Jahr: 2 Personen, 3x im Jahr
offene oder geschlossene Architektur: offen
konservativ oder moderne Bauweise: modern
offene Küche, Kochinsel
Anzahl Essplätze: 8
Kamin:nein
Musik/Stereowand:nein
Balkon, Dachterrasse: nein
Garage, Carport: beides Ja
Nutzgarten, Treibhaus: nein
weitere Wünsche/Besonderheiten/Tagesablauf, gern auch Begründungen, warum dieses oder das nicht sein soll:
Wohn-Essbereich so viel wie möglich im Süden
Küche mit freistehender Kochinsel mit Speise teiloffen, ums Eck
Hausentwurf
Von wem stammt die Planung:
-Planer eines Bauunternehmens
-Architekt
Was gefällt besonders? Warum?Werkstatt hinten, Fahrradständer, Größe der Kinderzimmer, Elternbereich ist im Norden, Treppe Variante 1,
Was gefällt nicht? Warum? sehr knapper Garten vor allem von Terrasse bis Nachbarhaus
Variante 1:
EG:
Variante 2:
EG:
Preisschätzung laut Architekt/Planer: 3.200 €/m2
Persönliches Preislimit fürs Haus, inkl. Ausstattung: 700.000
favorisierte Heiztechnik: Wärmepumpe
Wenn Ihr verzichten müsst, auf welche Details/Ausbauten
-könnt Ihr verzichten: offene Treppe
-könnt Ihr nicht verzichten: Speise, Küche mit Kochinsel, Hauswirtschaftsraum im OG, Kinderbad, große Ankleide
Warum ist der Entwurf so geworden, wie er jetzt ist? ZB
Standardentwurf vom Planer? Architekt hat nach Gespräch Variante 1 & 2 entworfen
Entsprechende/Welche Wünsche wurden vom Architekten umgesetzt?
Ein Gemisch aus vielen Beispielen aus div. Magazinen...
Was macht ihn in Euren Augen besonders gut oder schlecht?
Hättet ihr Vorschläge, wie wir den Wohn/Ess/Kochbereich planen sollten, um eine L-Variante zu realisieren. Dabei sollte Platz für eine Kochinsel (2,35m x 1,1m) in der Küche sein. Die Treppen sollen mittig im Haus platziert werden, um die Räume im OG besser aufteilen zu können.
Gibt es sonst noch Verbesserungsvorschläge?
Vielen lieben Dank
Cubus3f



Größe des Grundstücks: 450m2
Hang: Nein
Grundflächenzahl: 0,4
Geschossflächenzahl: 0,8
Baufenster, Baulinie und -grenze: Grundstück ist 18,36 x 24,49; Baufenster jeweils 3 Meter zu Nord, Ost und West und 5 Meter in Richtung Süden (Straße)
Randbebauung: ja
Anzahl Stellplatz: 2
Geschossigkeit: 2
Dachform: Flachdach
Stilrichtung: modern, offen
Ausrichtung: Süd/West
Maximale Höhen/Begrenzungen
weitere Vorgaben: Moderat befahrene Straße im Süden, im Norden steht ein Mehrfamilienhaus
Anforderungen der Bauherren
Stilrichtung, Dachform, Gebäudetyp: modern, offen, Flachdach
Keller, Geschosse: Kein Keller, 2 Vollgeschosse
Anzahl der Personen, Alter: 2 mitdreizige Erwachsene, 2 Kinder (6+1)
Raumbedarf im EG, OG: EG 100m², OG 80m²
Büro: Familiennutzung oder Homeoffice? Homeoffice
Schlafgäste pro Jahr: 2 Personen, 3x im Jahr
offene oder geschlossene Architektur: offen
konservativ oder moderne Bauweise: modern
offene Küche, Kochinsel
Anzahl Essplätze: 8
Kamin:nein
Musik/Stereowand:nein
Balkon, Dachterrasse: nein
Garage, Carport: beides Ja
Nutzgarten, Treibhaus: nein
weitere Wünsche/Besonderheiten/Tagesablauf, gern auch Begründungen, warum dieses oder das nicht sein soll:
Wohn-Essbereich so viel wie möglich im Süden
Küche mit freistehender Kochinsel mit Speise teiloffen, ums Eck
Hausentwurf
Von wem stammt die Planung:
-Planer eines Bauunternehmens
-Architekt
Was gefällt besonders? Warum?Werkstatt hinten, Fahrradständer, Größe der Kinderzimmer, Elternbereich ist im Norden, Treppe Variante 1,
Was gefällt nicht? Warum? sehr knapper Garten vor allem von Terrasse bis Nachbarhaus
Variante 1:
EG:
- Schlecht: Zu kleine Küche, freistehende Kochinsel von 2,35m passt nicht rein, Eingang zum Wohnbereich zu klein
- Gut: gerämige Diele, offene Podesttreppe
- Schlecht: Durchgang zum Kinderbad durch Hauswirtschaftsraum, Eingang Elternbereich durch Ankleide, Schminktisch im Elternschlafzimmer und nicht in Ankleide
- Gut: geräimiges Elternbad, Größe Hauswirtschaftsraum und Kinderbad,
Variante 2:
EG:
- Schlecht: keine Podesttreppe, kleiner Eingang bzw. Diele, Eingangsbereich in den Wohnbereich
- Gut: große Küche
- Schlecht: zu großes Hauswirtschaftsraum, Eingang Schlafbereich (man läuft gegen eine Wand), Schminktisch im Elternschlafzimmer, zu kleines Elternbad
- Gut: separater Eingang in den Hauswirtschaftsraum
Preisschätzung laut Architekt/Planer: 3.200 €/m2
Persönliches Preislimit fürs Haus, inkl. Ausstattung: 700.000
favorisierte Heiztechnik: Wärmepumpe
Wenn Ihr verzichten müsst, auf welche Details/Ausbauten
-könnt Ihr verzichten: offene Treppe
-könnt Ihr nicht verzichten: Speise, Küche mit Kochinsel, Hauswirtschaftsraum im OG, Kinderbad, große Ankleide
Warum ist der Entwurf so geworden, wie er jetzt ist? ZB
Standardentwurf vom Planer? Architekt hat nach Gespräch Variante 1 & 2 entworfen
Entsprechende/Welche Wünsche wurden vom Architekten umgesetzt?
Ein Gemisch aus vielen Beispielen aus div. Magazinen...
Was macht ihn in Euren Augen besonders gut oder schlecht?
Hättet ihr Vorschläge, wie wir den Wohn/Ess/Kochbereich planen sollten, um eine L-Variante zu realisieren. Dabei sollte Platz für eine Kochinsel (2,35m x 1,1m) in der Küche sein. Die Treppen sollen mittig im Haus platziert werden, um die Räume im OG besser aufteilen zu können.
Gibt es sonst noch Verbesserungsvorschläge?
Vielen lieben Dank
Cubus3f
Die Omi in den Keller zu sperren, finde ich immer wieder furchtbar. Ich vermute, Ihr wollt einfach die liebe Verwandte gern um Euch haben - nur es mangelt an Ideen. Deswegen hier ein Gegenvorschlag.
Es geht erstmal nur um die Aufteilung hinsichtlich Lageplan, Stellplätze, Terrassen und Wege. Ich würde in diese Richtung denken:



Falls der Platz nicht reicht, wäre zusätzlich eine Teilüberbauung von Omis Einliegerwohnung denkbar.
Es geht erstmal nur um die Aufteilung hinsichtlich Lageplan, Stellplätze, Terrassen und Wege. Ich würde in diese Richtung denken:
Falls der Platz nicht reicht, wäre zusätzlich eine Teilüberbauung von Omis Einliegerwohnung denkbar.
Liebe Katja, WOW. Vielen, vielen Dank für deine Mühe und Arbeit. Das wissen wir sehr zu schätzen.
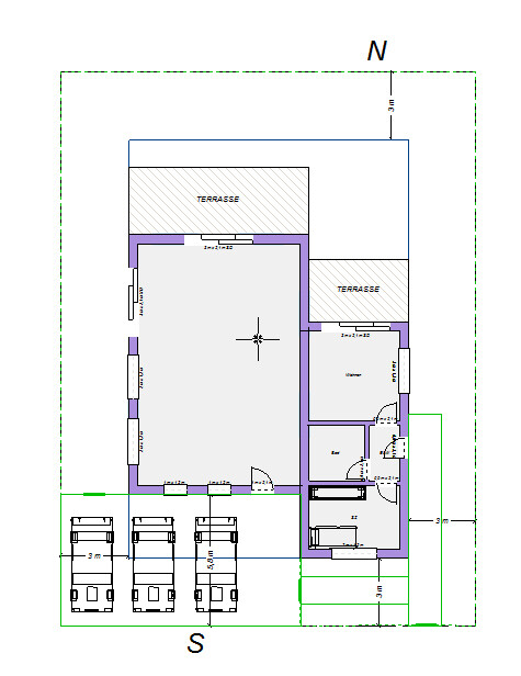
Wir haben heute nochmal mit dem Architekten gesprochen und haben das bodentiefe Fenster im KG von 1,60 auf 2,30 verbreitert. Der linke schmale Bereich, der im Plan noch zum Lagerraum gehörte, wird zu einer Abstellkammer für die Einliegerwohnung werden. Da könnte man auch die Waschmaschine hinstellen und somit das Bad "freier" machen.
Was haltet ihr denn vom Eingangsbereich im EG?? Ich mache mir Sorgen, dass es zu eng sein könnte. Was meint ihr?
Wir haben heute nochmal mit dem Architekten gesprochen und haben das bodentiefe Fenster im KG von 1,60 auf 2,30 verbreitert. Der linke schmale Bereich, der im Plan noch zum Lagerraum gehörte, wird zu einer Abstellkammer für die Einliegerwohnung werden. Da könnte man auch die Waschmaschine hinstellen und somit das Bad "freier" machen.
Was haltet ihr denn vom Eingangsbereich im EG?? Ich mache mir Sorgen, dass es zu eng sein könnte. Was meint ihr?
Cubus3f schrieb:
Was haltet ihr denn vom Eingangsbereich im EG?? Ich mache mir Sorgen, dass es zu eng sein könnte. Was meint ihr?Sorry, ich finde Deinen Plan besonders im Außenbereich einfach gruselig. Da ist nicht eine Stelle auf dem Grundstück, wo man sich gerne aufhalten möchte. Wo sollen eigentlich die Mülltonnen stehen? Direkt neben der Terrasse? Ich finde Deine Sorgen um den Eingangsbereich auch völlig deplatziert, wenn grundlegende Fragen, welche möglicherweise eine Genehmigung verhindern, noch nicht gelöst sind.
Auch muss ich gestehen, dass ich den Schimu-Keller unsozial finde und nicht unterstützen kann.
Cubus3f schrieb:
haben das bodentiefe Fenster im KG von 1,60 auf 2,30 verbreitert.Aber es bleibt ja doch mehr Keller als Wohnung.K a t j a schrieb:
Sorry, ich finde Deinen Plan besonders im Außenbereich einfach gruseligIch denke mal, dass die Wünsche nicht gerade mit Deiner Idee konform gehen.Cubus3f schrieb:
Wohn-Essbereich so viel wie möglich im SüdenSo verstehe ich es, dass unbedingt ein Südgarten gewünscht ist. Mir war auch so, als wenn ich es irgendwo explizit gelesen habe.Durch die Grundstücksausrichtung entstehen komplizierte lange Wege, die einen schönen Gartenbereich fast unmöglich machen, sofern man sich eben genau dort den Garten/Terrasse wünscht, wo eigentlich der Eingang hin müsste bzw. die Autos stehen.
Ich hänge mal eine andere Grundrissdiskussion zum Thema Gartenausrichtung an.
https://www.hausbau-forum.de/threads/neubau-doppelhaus-155qm-ausrichtung-grundriss-dementsprechend.48000/
ypg schrieb:
Ich denke mal, dass die Wünsche nicht gerade mit Deiner Idee konform gehen.Ja, offenbar hat man die Winzigkeit des Grundstückes im Verhältnis zur Bebauung noch nicht verinnerlicht. Cubus3f schrieb:
...Wir wollten einen größeren, zusammenhängenden Garten haben. Das hat sich nur auf der Südseite ergeben, weil wir keinen Nordgarten oder schmalen Streifen westlich wollten.Wenn man die unbebaubare Abstandsfläche an der Straße nicht als Stellflächen und für Wege nutzt, verliert man zwangsweise zusammenhängende Fläche, da alles mit Wegen und Zufahrten an die Nordseite versiegelt wird. Dazu die Außentreppe in den Keller und der eh noch viel zu kleine Fahrradschuppen. Am Ende bleibt eine winzige Fläche für die Südterrasse zwischen Autos und Straße, auf der man im Sommer gebraten wird. Ich wette, da sitzt so gut wie nie jemand, denn es ist laut und viel zu heiß. Wurde schon was zur maximalen Höhe gesagt?
H
hanghaus202317.09.24 10:40Einliegerwohnung im Keller ist keine gute Idee.
Ähnliche Themen