W
Mein Konto
Hausbau - Ratgeber
Bauherrenhilfe
- Bauherrenhilfe vor Vertragsabschluss
-- Warum einen unabhängigen Baubetreuer?
-- Vertragsgrundlagen
-- Bausumme
-- Zahlungsplan zur Kostenkontrolle
-- Pflichten des Bauherren vor Vertragsabschluss
-- Unterlagen beim Hausbau vor Vertragsabschluss
- Bauherrenhilfe nach Vertragsabschluss
-- Bauantrag bei Behörden
-- Bau-Genehmigungsverfahren bei Baubehörden
-- Bauspezifische Versicherungen
-- Bauzeitenplan
-- Baubeginn - die Letzten Pflichten der Bauherrschaft
- Bauherrenhilfe während der Bauzeit
- Gewährleistungsansprüche
- Bauabnahme
Baufinanzierung
- Baufinanzierung - Allgemeine Fragen
- Kreditarten
- Kredit-Konditionen
- Bausparen
- Staatliche Förderungen
- Verkehrswert
- Haushaltsrechnung und Bonität
Hausbau Planung
- Haustypen
- Hausbau Vorbereitungsarbeiten
- Das Baugrundstück
- Baugrund beim Hausbau
- Baurecht
- Gebäudeschutz
- Erdarbeiten und Wasserhaltung
- Stützmauern
- Einfriedung
- Untergeschoss
- Kanalisation
- Tragende Elemente
- Nichttragende Innenwände
- Fundation / Fundament
- Deckenkonstruktionen
- Dächer
- Kaminanlagen
- Treppen Rampen Leitern
- Dachbeläge und Spengler
- Fenster
- Sonnen und Wetterschutz
- Aussenputze
- Einbauten, Küchen, Türen
- Bodenbeläge und Unterlagsböden
- Parkett
- Gips, Wand, Decke
Haustechnik und Energie
- Heiztechnik
- Lüftung und Klimatechnik
- Sanitärtechnik
- Elektrotechnik
- Erneuerbare Energie
Whirlpools / Jacuzzi
Hausbau Magazin
- Baufinanzierung trotz Krise?
- Das Blockhaus
- Moderne Dämmstoffe im Vergleich
- Erker Vor- und Nachteile
- Glasflächen beim Hausbau
- Günstig ein Haus Bauen
- Mediterraner Hausbaustil
- Mehrgenerationenhaus
- Moderne Architektur
- Gartengestaltung leicht gemacht
- Traditioneller Ziegelbau
- Villa als höchster Traum
- Im Eigenheim Ruhestand geniessen
- Altbau sanieren
- Kauf einer Holzgarage
- Immobilienmakler
- Arbeitshandschuhe für den Winter
- Zuhause verschönern
- Outdoor-Plissees
- Schlafzimmer planen
- Terrassenüberdachung
- Wohngebäudeversicherung
- Zaunarten und Eigenschaften
- Hauseingang gestalten
- Der perfekte Grundriss
- Sparsamer heizen im Altbau
- Einfamilienhaus smart finanzieren
- Planung einer PV-Anlage
- Neues Haus
- Immobilienfinanzierung
- Installation einer Photovoltaikanlage
- Asbest erkennen und entfernen
- Sauna im Fokus - Wellness zuhause
- Erfolgreich vermieten
- Die perfekte Winterbekleidung
- Das Niedrigenergiehaus
- Der April und seine Stürme
- Architektonische Vielfalt
- Ökologisch und nachhaltig bauen
- Das perfekte Schlafzimmer
- Nachhaltige Energieversorgung
- Zukunftsorientiert bauen
- Nachhaltigkeit beim Hausbau
- Tiny Houses
- Wärmepumpen als nachhaltige Heizvariante
- Maßgeschneiderten Kleiderschrank
- Der richtige Baukredit
- Ratgeber für erfolgreichen Hausbau
- Haus als Altersvorsorge
Do-it-yourself Anleitungen
- Verlegeanleitung für Bodenbeläge und Parkett
- Bodenbeläge und Parkett reinigen und pflegen
- Malerarbeiten am Haus
- Garten Tipps
- Umzug und Reinigung

ᐅ Grundrissplanung Einfamilienhaus 160qm - Eure Meinungen sind erwünscht


Erstellt am: 27.12.17 19:09

pascalf27.12.17 19:09
Guten Abend,

nachdem ich hier seit einigen Wochen fleißig mitlese und bereist viele hilfreiche Informationen erhalten habe will ich mich kurz vorstellen und euch um eure Meinung zu unserem Grundriss bitten. Ich bitte euch um Inputs, die wir vielleicht so gar nicht bedacht haben.

Meine Frau und ich sind 30 Jahre alt und haben eine 4 jährige Tochter (weitere Kinder stehen nicht auf dem Plan). Wir wohnen in Bayern und haben uns vor wenigen Wochen ein Grundstück in Straubing gekauft. Dort wollen wir bis Mitte 2019 unser Einfamilienhaus bauen.

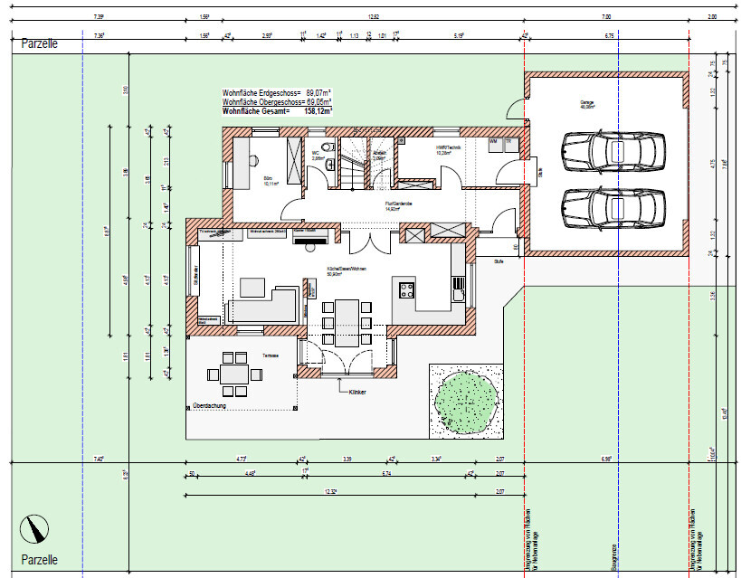
Dazu haben wir einen Architekten beauftragt, mit dem wir in engen Kontakt stehen. Unsere derzeit abgestimmte Grundrissplanung haben wir angehängt.

Bebauungsplan/Einschränkungen
Größe des Grundstücks - 680 qm
Hang - nein
Grundflächenzahl - 0,3
Geschossflächenzahl - 0,6
Baufenster, Baulinie und -grenze: siehe Anlagen: blau und rot gestrichelte Linien
Randbebauung: siehe rote gestrichelte Linie für Nebengebäude
Anzahl Stellplatz: 2 Stellplätze min.
Geschossigkeit: Kniestock bis 1,2m oder über 2,0m
Dachform: frei (Neigung bei Satteldach: 20-35°
Stilrichtung: frei
Ausrichtung: frei
Maximale Höhen/Begrenzungen: frei
weitere Vorgaben: -

Anforderungen der Bauherren
Stilrichtung, Dachform, Gebäudetyp: Satteldach gewünscht
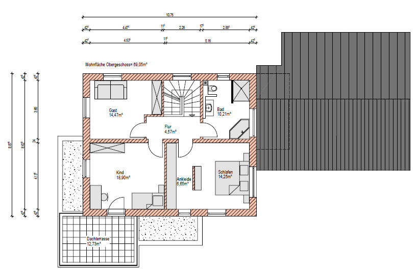
Keller, Geschosse: KEIN Keller, 2 Vollgeschosse
Anzahl der Personen, Alter: 3 (30j ,30j ,4j)
Raumbedarf im EG, OG
Büro: Familiennutzung oder Homeoffice? Homeoffice im EG gewünscht (wegen Kundenbesuch)
Schlafgäste pro Jahr: 15
offene oder geschlossene Architektur: gemischt, eher geschlossen 😉
konservativ oder moderne Bauweise: gemischt 😉
offene Küche, Kochinsel: offene Küche
Anzahl Essplätze: 6
Kamin: nein
Musik/Stereowand: nein
Balkon, Dachterrasse: nicht unbedingt
Garage, Carport: sehr großzügige Garage (zwei Stellplätze plus Stauraum)
Nutzgarten, Treibhaus: Hochbeet geplant
weitere Wünsche/Besonderheiten/Tagesablauf, gern auch Begründungen, warum dieses oder das nicht sein soll

Hausentwurf
Von wem stammt die Planung:
Architekt (der auch als Generalunternehmer tätig ist. Derzeit ist er bei uns nur als Architekt unter Vertrag)
Was gefällt besonders? Warum?
Was gefällt nicht? Warum? Im Gegensatz zum jetzigen Plan haben wir bereits beim Architekten die Anfrage gestellt, die Garage bis zur Grundstücksgrenze nach Norden zu erweitern. Außerdem wollen wir die südliche Hausmauer noch ca. 30 cm nach Süden versetzen und den gewonnenen Raum in Wohnzimmer, Küche bzw. in Schlaf- und Kinderzimmer stecken, sodass wir auf ca. 160qm kommen.
Preisschätzung lt Architekt/Planer: noch keine, da Grundriss noch nicht abschließend geklärt ist.
Persönliches Preislimit fürs Haus, inkl Ausstattung: 390.000 (inkl. z.B. Küche, Garten, Bad, Photovoltaikanlage, Einbauschränke. Also einzugsfertig+), Grundstück zählt natürlich nicht zu den 390.000.
favorisierte Heiztechnik: Erdgas BWT ohne Solarthermie, dafür zentrale Lüftungsanlage, Energieeinsparverordnung Standard.

Wenn Ihr verzichten müsst, auf welche Details/Ausbauten
-könnt Ihr verzichten: Dachterrasse
-könnt Ihr nicht verzichten: Abstellfläche (da kein Keller)

Warum ist der Entwurf so geworden, wie er jetzt ist? ZB
Standardentwurf vom Planer? Nein
Entsprechende/Welche Wünsche wurden vom Architekten umgesetzt? keine "0815" Außenansicht.
Ein Gemisch aus vielen Beispielen aus div. Magazinen? Ja
Was macht ihn in Euren Augen besonders gut oder schlecht? Auf unsere individuellen Wünsche zugeschnitten.

Die eingezeichneten Möbel im Wohn-/Essbereich spiegeln exakt unsere derzeitigen Möbel wider. Ich bin etwas besorgt, wegen der Abstellfläche, da wir aus einer voll unterkellerten Doppelhaushälfte umziehen (aber aus diversen Gründen keinen Keller mehr wollen) und es sich im Keller doch einiges angesammelt hat, dass im neuen Haus wo anders untergebracht werden muss. Deshalb die sehr große Garage und der große Technikraum.

Die Außenansichten sind derzeit in Erarbeitung durch den Architekten.

Das Grundstück liegt in einem Neubaugebiet.

Ich bin gespannt auf eure Meinungen! 🙂

Viele Grüße,
Pascal

2D-Grundriss Obergeschoss eines Hauses mit Schlafzimmer, Gast, Kind, Flur, Bad


Grundrissplan eines Einfamilienhauses mit Küche, Essbereich, Wohnzimmer, Terrasse und Garage
11ant27.12.17 19:59
Die ausgeklinkte Ecke im Büro sieht für sich genommen ebsch aus und macht das Haus hier optisch schmaler als die Garage. In diesem Arrangements von Erkern und Unterzügen schlagen sich rechteckige Grundformen nicht mehr auf eine günstige Bauweise durch, da hätte man auch gleich den Weg unregelmäßigerer Formen gehen können.
pascalf schrieb:
Ein Gemisch aus vielen Beispielen aus div. Magazinen? Ja
Vielleicht eines oder zwei zu viel ?
ibs. im Zusammenhang mit
pascalf schrieb:
Wenn Ihr verzichten müsst, auf welche Details/Ausbauten
-könnt Ihr verzichten: Dachterrasse
scheint mir der Zeitpunkt für einen Entwurfsplan noch zu früh, da ist wohl noch manches nicht ausdiskutiert.
pascalf schrieb:
Meine Frau und ich sind 30 Jahre alt und haben eine 4 jährige Tochter (weitere Kinder stehen nicht auf dem Plan).
Ein Tropi kommt zwar nicht so sicher wie das Amen hinter der Kostenschätzung, aber wenn, dann wird es eng :-)

Die Treppe dreht zwischen den beiden Plänen ihre Richtung (?)
https://www.instagram.com/11antgmxde/
https://www.linkedin.com/company/bauen-jetzt/
pascalf27.12.17 20:15
11ant schrieb:
pascalf schrieb:

Ein Gemisch aus vielen Beispielen aus div. Magazinen? Ja
Vielleicht eines oder zwei zu viel ?
ibs. im Zusammenhang mit
pascalf schrieb:

Wenn Ihr verzichten müsst, auf welche Details/Ausbauten
-könnt Ihr verzichten: Dachterrasse
scheint mir der Zeitpunkt für einen Entwurfsplan noch zu früh, da ist wohl noch manches nicht ausdiskutiert.


Ein Tropi kommt zwar nicht so sicher wie das Amen hinter der Kostenschätzung, aber wenn, dann wird es eng 🙂

Die Treppe dreht zwischen den beiden Plänen ihre Richtung (?)

Musste erstmal googeln, was ein Tropi ist. 😀
Wir tun jedenfalls alles, um ein Tropi auszuschließen. 😉

Die Treppe ist tatsächlich falsch eingezeichnet, ist mir (und anscheinend dem Architekten noch gar nicht aufgefallen.

Die Idee des Balkons kam nicht mal von uns, sondern vom Architekten. Wobei da eher optische und weniger praktisches Gründe im Vordergrund stehen. Derzeit planen wir keinen Balkon.


Die Straße verläuft übrigens in Süd-/Nordrichtung, östlich vom Grundstück (ist durch die Garagenlage eigentlich selbsterklärend).
kaho67427.12.17 20:45
Ist der Plan ausgerichtet? Norden oben?

Wenn das Büro tatsächlich für Kunden / Fremdenbesuch herhalten soll, würde ich den Platz mit dem Hauswirtschaftsraum tauschen, damit die Leute nicht durch mein ganzes Haus tippeln, sondern gleich am Anfang abgefangen werden.

Der Essplatz im Erker scheint mir sehr beengt. Den würde ich breiter machen.
Die ausgeklingte Ecke im derzeitigen Büro hat weder Nutzen noch ästhetischen Wert. (s. 11ant)
Das Klafünf steht halb im Wohnbereich halb im Esszimmer. Das wirkt, als könne man sich nicht entscheiden, wo man denn nun rumklimpert. Eine klare Trennung oder gar keine fände ich besser.
Dachterrasse find ich Quark, wenn man einen Garten hat, sitzt da keiner und es verdunkelt nur das WZ.
Den langen Flur im Eingangsbereich find ich nicht so prickelnd. Auch find ich es blöd, wenn man herein kommt und direkt mit der Nase gegen eine Wand läuft. Der 1 Schrank für die Garderobe wäre mir auch zu wenig. Die Eingangssituation würde ich daher komplett überdenken.
Wer unten auf dem WC sitzt stößt mit den Knien fast an die Dusche. Das ist ungeschickt aufgeteilt oder zu klein geplant.
ypg27.12.17 21:00
pascalf schrieb:


Die Straße verläuft übrigens in Süd-/Nordrichtung, östlich vom Grundstück (ist durch die Garagenlage eigentlich selbsterklärend).

Ich finde die Ausrichtung überhaupt nicht selbsterklärend.
Ihr plant also die Terrasse im Osten, das Haus und Garten ist ausgerichtet auf Osten, hält sich im Süden defensiv und zeigt dem Westen den Rücken.
Das Grundstück mit Lageplan ist hier wohl mehr angebracht zu zeigen als sonst wo [emoji6]

Wenn Kundenverkehr vorhanden, würde auch ich vermeiden, dass ein Kunde durch mein Haus streift. Der Flur ist auch nicht gerade einladend, viel zu lang.

Edit: noch mal geschaut... Straße ist planrechts????? Okay... [emoji6] dann kommt die Ausrichtung schon etwas besser hin.
kbt0927.12.17 21:32
Ich habe es so verstanden, dass Norden im Plan oben ist - oder? Ein Nordpfeil auf Grundrissen ist wirklich SEHR hilfreich 😉.

Büro mit Kundenbesuch ist mir auch aufgefallen. Liegt für mich auch falsch und sollte in Eingangsnähe gehen.

Wenn wirklich planoben Nord ist, dann gibt es mir zu wenig Südfenster.

Weg Küche / Terrasse über den eingeengten Essplatz finde ich viel zu eng. Küche scheint nur einen Side By Side Kühlschrank zu haben und sonst keinerlei Hochschränke geplant. Backofen? Erhöhte Geschirrspüler?
ibsarchitektenküchegrundstückkellerdachterrassegaragegartentreppegrundriss