Hausbau - Ratgeber
Bauherrenhilfe
- Bauherrenhilfe vor Vertragsabschluss
-- Warum einen unabhängigen Baubetreuer?
-- Vertragsgrundlagen
-- Bausumme
-- Zahlungsplan zur Kostenkontrolle
-- Pflichten des Bauherren vor Vertragsabschluss
-- Unterlagen beim Hausbau vor Vertragsabschluss
- Bauherrenhilfe nach Vertragsabschluss
-- Bauantrag bei Behörden
-- Bau-Genehmigungsverfahren bei Baubehörden
-- Bauspezifische Versicherungen
-- Bauzeitenplan
-- Baubeginn - die Letzten Pflichten der Bauherrschaft
- Bauherrenhilfe während der Bauzeit
- Gewährleistungsansprüche
- Bauabnahme
Baufinanzierung
- Baufinanzierung - Allgemeine Fragen
- Kreditarten
- Kredit-Konditionen
- Bausparen
- Staatliche Förderungen
- Verkehrswert
- Haushaltsrechnung und Bonität
Hausbau Planung
- Haustypen
- Hausbau Vorbereitungsarbeiten
- Das Baugrundstück
- Baugrund beim Hausbau
- Baurecht
- Gebäudeschutz
- Erdarbeiten und Wasserhaltung
- Stützmauern
- Einfriedung
- Untergeschoss
- Kanalisation
- Tragende Elemente
- Nichttragende Innenwände
- Fundation / Fundament
- Deckenkonstruktionen
- Dächer
- Kaminanlagen
- Treppen Rampen Leitern
- Dachbeläge und Spengler
- Fenster
- Sonnen und Wetterschutz
- Aussenputze
- Einbauten, Küchen, Türen
- Bodenbeläge und Unterlagsböden
- Parkett
- Gips, Wand, Decke
Haustechnik und Energie
- Heiztechnik
- Lüftung und Klimatechnik
- Sanitärtechnik
- Elektrotechnik
- Erneuerbare Energie
Whirlpools / Jacuzzi
Hausbau Magazin
- Baufinanzierung trotz Krise?
- Das Blockhaus
- Moderne Dämmstoffe im Vergleich
- Erker Vor- und Nachteile
- Glasflächen beim Hausbau
- Günstig ein Haus Bauen
- Mediterraner Hausbaustil
- Mehrgenerationenhaus
- Moderne Architektur
- Gartengestaltung leicht gemacht
- Traditioneller Ziegelbau
- Villa als höchster Traum
- Im Eigenheim Ruhestand geniessen
- Altbau sanieren
- Kauf einer Holzgarage
- Immobilienmakler
- Arbeitshandschuhe für den Winter
- Zuhause verschönern
- Outdoor-Plissees
- Schlafzimmer planen
- Terrassenüberdachung
- Wohngebäudeversicherung
- Zaunarten und Eigenschaften
- Hauseingang gestalten
- Der perfekte Grundriss
- Sparsamer heizen im Altbau
- Einfamilienhaus smart finanzieren
- Planung einer PV-Anlage
- Neues Haus
- Immobilienfinanzierung
- Installation einer Photovoltaikanlage
- Asbest erkennen und entfernen
- Gartenpflege im Frühling – worauf achten
- Sauna im Fokus - Wellness zuhause
- Erfolgreich vermieten
- Die perfekte Winterbekleidung
- Das Niedrigenergiehaus
- Der April und seine Stürme
- Architektonische Vielfalt
- Ökologisch und nachhaltig bauen
- Das perfekte Schlafzimmer
- Nachhaltige Energieversorgung
- Zukunftsorientiert bauen
- Nachhaltigkeit beim Hausbau
- Tiny Houses
- Wärmepumpen als nachhaltige Heizvariante
- Maßgeschneiderten Kleiderschrank
- Der richtige Baukredit
- Ratgeber für erfolgreichen Hausbau
- Haus als Altersvorsorge
Do-it-yourself Anleitungen
- Verlegeanleitung für Bodenbeläge und Parkett
- Bodenbeläge und Parkett reinigen und pflegen
- Malerarbeiten am Haus
- Garten Tipps
- Umzug und Reinigung

ᐅ Grundrissplanung --- bitte um Eure Meinungen

Erstellt am: 21.06.15 19:05
B
Bau_2016
B
Bau_2016
21.06.15 19:05
Hallo zusammen,

wir planen nächste Jahr den Hausbau zu starten. Den folgenden Grundriss haben wir aus Ausgangspunkt festgelegt und würden uns freuen ein Feedback von Euch zu bekommen 🙂

---------------------------------------------------------------------------------------
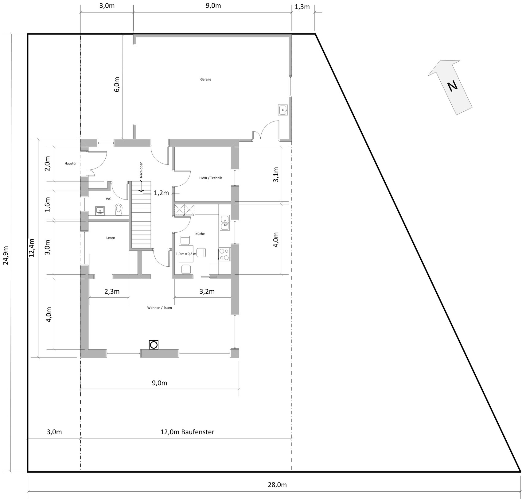
Bebauungsplan/Einschränkungen
Größe des Grundstücks: ca. 560qm
Hang: nein
Grundflächenzahl: 0.4
Geschossflächenzahl: nicht vorgegeben
Baufenster, Baulinie und -grenze: siehe Zeichnung
Randbebauung: noch keine
Anzahl Stellplatz: Doppelgarage
Geschossigkeit: 2
Dachform: SD
Stilrichtung: Stadtvilla
Ausrichtung: siehe Zeichnung
Maximale Höhen/Begrenzungen: 9m
weitere Vorgaben: TH: 6.5m

Anforderungen der Bauherren
Stilrichtung, Dachform, Gebäudetyp: Stadtvilla, SD, 25°
Keller, Geschosse: kein Keller, 2 geschossig
Anzahl der Personen, Alter: Ehepaar(32, 35), Kinder geplant
geschlossene Architektur: geschlossene

Hausentwurf
Von wem stammt die Planung: zusammen mit Bauunternehmen als Ausgangspunkt.
Was gefällt besonders: im Prinzip haben wir selber den Grundriss gebastelt und er gefällt uns. Die einzige Kritik ist die relativ kleine Küche.
Preisschätzung des Bauunternehmens: 320T
Persönliches Preislimit fürs Haus, inkl Ausstattung: 350T
favorisierte Heiztechnik: Wärmepumpe(wenn es möglich ist) oder Gas

2D-Hausgrundriss mit Wohnzimmer, Küche, Garage und Technikraum

2D Grundriss eines Obergeschosses mit Elternschlafzimmer, Kinderzimmern, Bad und Treppenhaus
Y
ypg
21.06.15 19:47
Warum braucht Ihr einen Extraraum, um zu lesen? Der macht das Wohnzimmer kaputt - meine Meinung.
Schlafzimmer als Durchgangszimmer würde mich ungemein stören.
B
Bau_2016
21.06.15 19:59
ypg schrieb:
Warum braucht Ihr einen Extraraum, um zu lesen? Der macht das Wohnzimmer kaputt - meine Meinung.
Schlafzimmer als Durchgangszimmer würde mich ungemein stören.
Danke ypg 🙂 !
In wie fern denkst Du, dass das Wohnzimmer durch das kleine "Lesezimmer" kaputt gemacht wird? Wir haben das als kleines Arbeitszimmer mal in einem Musterhaus gesehen und fanden es ganz interessant. Außerdem wollten wir immer ein klein Bibliothek haben.
Zum den Elternschlafzimmer, wir haben momentan ähnlich Situation und es stört uns nicht. 😉
K
kbt09
21.06.15 20:10
Am besten mal das Wohnzimmer mit Möbeln darstellen ... die Tür zum Leseraum schränkt nämlich die Stellmöglichkeiten ein.

Und, was einen bisher nicht gestört hat, kann man ja trotzdem im eigenen Versuch besser machen 😉
B
Bau_2016
21.06.15 20:41
@kbt09: klar, die Tür schränkt die Stellmöglichkeiten ein, aber man gewinnt doch auch neue im Leseraum, oder? Wir haben eine Menge Bücher die wir unterbringen wollen. Wir haben immer vergeblich versucht sowohl große Fenster als auch Stellfläche für Bücherregal unterzubringen.
Was das Schlafzimmer angeht, sind wir offen und dankbar für Vorschläge zur Verbesserung.
M
Manu1976
21.06.15 21:14
Mich stört der merkwürdige Eingangsbereich zum Wohnzimmer. Würde die Wand von der Küche komplett durchziehen und dann zwischen Treppe und Wohnzimmer einen Zugang zum Lesezimmer machen. So finde ich das nicht schön. Das zerstückelt das Wohnzimmer ungemein.

Der Flurbereich im EG wird nach der Ecke ziemlich dunkel und im OG auch.

Ansonsten finde ich den Grundriss ganz schön. Auch die Schlafzimmer-Ankleide-Bad-Situation finde ich nicht störend. Hatten wir im alten Haus ähnlich und war ok.

PS: nicht alles was in Musterhäuser schön ist, ist im Alltag auch praktikabel oder sinnvoll. Unter diesem Einwand solltet ihr die Wohnzimmergestaltung vielleicht nochmal überlegen ;-)
wohnzimmergrundrissschlafzimmerzeichnungdachformstadtvillakellerküchelesezimmertür