Ok, Türen und Fenster ergänzen wir nochmal handschriftlich, damit ihr euch ein besseres Bild machen könnt. Der Architekt (kein Zauberlehrling) hat diese beim letzten Entwurf rausgelassen - frage das wieder an.
Auch Möblierung werden wir aufnehmen.
Lageplan ist angefügt - geht um 239/5. Die Garagen (graue Flächen) gibt es nicht mehr/ gab es nie.
Zusätzlich auch einmal die Ansicht von oben. Rechts kommen die 2 Parkplätze/ Carport hin. Sind im Taunus (zwischen FFM und WI) und hier gibt es so gut wie keine Baugrundstücke und müssen das beste aus allem rausholen (Haus und Grundstück)
Interessanter Name, aber trifft es ganz gut. Bildlich gerne: Würdest Du empfehlen, Türen, Fenster, Einrichtung per Hand einzutragen oder gibt es dafür irgendwelche Programme, mit denen das exakter geht?


Auch Möblierung werden wir aufnehmen.
11ant schrieb:Sind 260qm (s. Eingangspost) und der Carport kommt direkt an das Nachbargrundstück.
Huch ! - wenn das kein Schreibfehler war, müssen wir uns wohl nicht nur den Erker, sondern auch die Garage wegdenken.
Lageplan ist angefügt - geht um 239/5. Die Garagen (graue Flächen) gibt es nicht mehr/ gab es nie.
Zusätzlich auch einmal die Ansicht von oben. Rechts kommen die 2 Parkplätze/ Carport hin. Sind im Taunus (zwischen FFM und WI) und hier gibt es so gut wie keine Baugrundstücke und müssen das beste aus allem rausholen (Haus und Grundstück)
11ant schrieb:
... wird hier mehrheitlich die bildliche vor der textlichen Notation präferiert.
Da könnten Kosten die kleinere Hürde sein. Und natürlich vermute ich, sie meint Zwerchhäuser
Interessanter Name, aber trifft es ganz gut. Bildlich gerne: Würdest Du empfehlen, Türen, Fenster, Einrichtung per Hand einzutragen oder gibt es dafür irgendwelche Programme, mit denen das exakter geht?
Amosa34 schrieb:
Würdest Du empfehlen, Türen, Fenster, Einrichtung per Hand einzutragen oder gibt es dafür irgendwelche Programme, mit denen das exakter geht?Von Hand ist am ehesten exakt.https://www.instagram.com/11antgmxde/
https://www.linkedin.com/company/bauen-jetzt/
Maße wären auch ganz hilfreich. Und einfach mal beschreiben, von wo Grundstück angefahren werden soll. Wo ist denn die Straße? So ganz wird das hier mehr ein Rätselforum... wir kennen das Grundstück NICHT!
Totale Grenzbebauung, ist das im Ort?
Es wäre schön, wenn man mehr Infos bekommt.
Und ja: Stift und Papier gibt es immer noch.
Totale Grenzbebauung, ist das im Ort?
Es wäre schön, wenn man mehr Infos bekommt.
Und ja: Stift und Papier gibt es immer noch.
Hallo Zusammen,
ein Update an dieser Stelle zu unserem Bauvorhaben.
Die Planung ist seit längerem fertig und Bauantrag wurde genehmigt. Geplanter Baustart ist der 4. Januar 2021 mit Beginn Erdarbeiten für Keller.
Vielleicht für einige Interessant, wie unser Prozess war:
April/ Mai 2020: Grundstück gefunden und Start Bankenprozess. Herausforderung war hier, dass es um zwei Objekte ging (1x Bestandsimmobilie an eine andere Partei + 1x Grundstück für uns)
Juni 2020: Abschluss Bankenprozess und Einigung mit Käufer und Unterzeichnung notarieller Kaufvertrag. Wir haben ein variables Darlehen zu 1,40% für 3 Jahre abgeschlossen, da parallel noch die Hausplanung anstand und wir noch keine Vorstellung vom Budget hatten.
Herausforderung war nach der Unterschrift die Realteilung, da diese anscheinend noch nicht vollzogen war und weder Verkäufer noch wir davon wussten. Das führte zu einigem administrativen Aufwand, da wir unterschiedliche Angaben bekamen, wer für die Teilung zuständig ist: Bauamt, Kreisbauamt, Amt für Bodenmanagement etc.
Juli/ August: Weitere intensive Hausplanung mit Einreichung Bauantrag Mitte August. Unser Architekt hat gemeint, dass letztlich das Bauamt bis zu drei Monate Bearbeitungszeit hat und letztlich wurden diese fast vollkommen ausgeschöpft. Wir haben parallel bereits angefangen (mit Architekt) die Gewerke auszuschreiben (u.a. Rohbau inkl. Keller, Sanitär, Heizung, Dach, Zimmerer etc.) um keine Zeit zu verlieren und zeitnah starten zu können. Klar hatten wir das Risiko, dass das Bauamt ablehnt bzw. Änderungswünsche hat, aber unser Architekt gab uns ein gutes Gefühl u.a. auf Basis jahrzehntelanger Erfahrung.
September-November: Diverse Kennenlerntermine mit Rohbauer, Sanitär, Elektriker, Statiker und zweitem Architekt (nur für Bauleitung). Parallel haben wir diverse Küchenstudios unsicher gemacht, eine Badausstellung besucht, Bodenbeläge angeschaut und bewertet und waren in einem Fliesenstudio. Alles immer unter der Maßgabe, dass wir keine Zeit verlieren wollten und möglichst viele Entscheidungen vorzuziehen. Außerdem macht es Spass sein Traumhaus zu planen.
Anfang November: Baugenehmigung trifft ein und Festlegung Datum Baubeginn auf 4. Januar. Einholen über Architekt weiterer Angebot für Fenster (OMG), Besprechung mit Elektriker was eigentlich Smart Home ist/kann und was für uns sinnvoll (letztlich gar nichts, sondern Nutzung konventioneller Lösungen). Und letztlich mein Lieblingsthema: Budgetplanung, Kalkulation, Pufferbildung und spielen mit Zinssätzen.
Mitte November: Start Bankgespräche zur Finanzierung des Gesamtvorhabens (Ablösung var. Finanzierung + Neubau Einfamilienhaus). Bisher ein sehr entspannter Prozess, da Objekt und v.a. Bonitätsunterlagen sofort verfügbar.
Finanzierung (für die Interessierten): Finanzierungsbedarf i.H.v. 780' + 70' Eigenkapital. Wir haben uns für 20 Jahre zu 1,25% eff. für 750' und 30' Cap-Darlehen für 1,45% über 3 Jahre entschieden. Das Cap Darlehen ist eine variable Finanzierung und letztlich unser Puffer (trotz großzügiger Planung), die bei Nichtnutzung sofort zurückgeführt werden kann. In Summe eine monatliche Belastung von 2,5' mit Planungssicherheit für 20 Jahre inkl. 5% Sondertilgung jährlich.
Bisher läuft alles nach Plan und bis auf kleinere Probleme sind wir bisher doch zufrieden vom Prozess. Das liegt zu einem Großteil auch an unserem Architekten, der einen super Job macht, immer erreichbar ist, uns offen Feedback zu Ideen gibt und uns nie versucht das teuerste zu verkaufen.
Lessons learned:
- Frühzeitige Treffen mit den wichtigsten Gewerken - schafft Vertrauen und man hat jederzeit Ansprechpartner (Elektriker hat sich vor Auftragsvergabe 2x über 1h Zeit genommen und uns persönlich alles erklärt. Er hat ein umfassendes Smarthome Angebot aufbereitet für Rollläden, Fußbodenheizung und Licht und als wir vom Preis überrascht waren, haben wir eine Bedarfsplanung gemacht und letztlich sinnvolle Alternativen gefunden - für uns ist SH letztlich Spielerei)
- Von Anfang an Budget planen und schauen wie es läuft und überall Puffer einplanen. Bei uns war Erdaushub und Verbau c. 20k teurer als geplant wegen der Lagerkosten und direkter Bau an den Bürgersteig.
- Allen Gewerken klar sagen was man will und Angebote genau lesen.
- Einzelgewerksvergabe (mit Architekt) ist kein Hexenwerk und auch nicht so der Riesenaufwand. Man liest im Endeffekt Angebote und spricht dann mit Architekt/ Anbieter. Vorteil ist, dass man frühzeitig in einen Austausch gehen kann und immer neue Ideen bekommt.
- Überlegt euch, was wirklich für euch wichtig ist: Sind es die 31' Euro nur für die Ausstattung von 2 Bädern + 1 WC (Keramik, Dusche, Waschtische, Armaturen) oder dann doch eine hochwertige Küche, die über dem Budget liegt, aber von der man überzeugt ist?
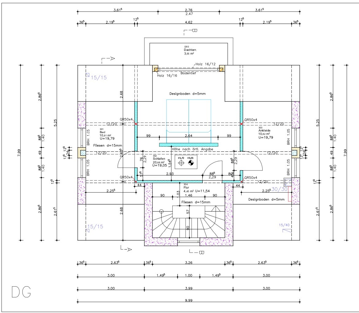
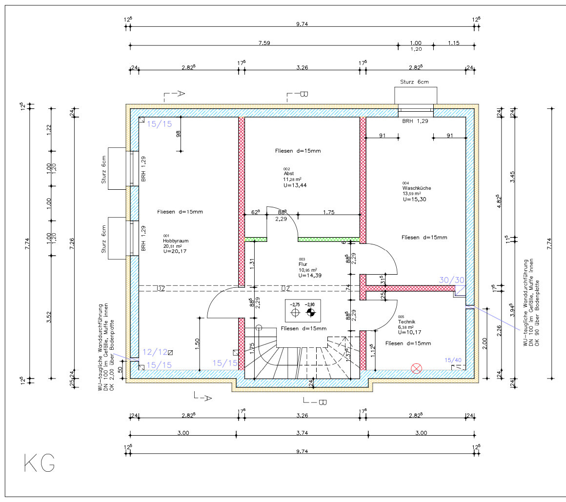
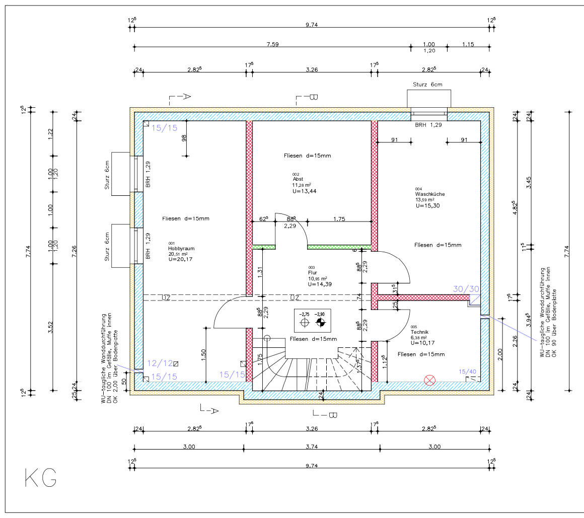
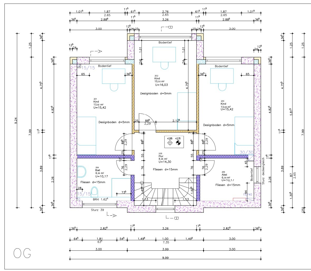
Das war jetzt ein langer Text und ich füge nochmal ein paar Bilder von den Grundrissen bei.
ein Update an dieser Stelle zu unserem Bauvorhaben.
Die Planung ist seit längerem fertig und Bauantrag wurde genehmigt. Geplanter Baustart ist der 4. Januar 2021 mit Beginn Erdarbeiten für Keller.
Vielleicht für einige Interessant, wie unser Prozess war:
April/ Mai 2020: Grundstück gefunden und Start Bankenprozess. Herausforderung war hier, dass es um zwei Objekte ging (1x Bestandsimmobilie an eine andere Partei + 1x Grundstück für uns)
Juni 2020: Abschluss Bankenprozess und Einigung mit Käufer und Unterzeichnung notarieller Kaufvertrag. Wir haben ein variables Darlehen zu 1,40% für 3 Jahre abgeschlossen, da parallel noch die Hausplanung anstand und wir noch keine Vorstellung vom Budget hatten.
Herausforderung war nach der Unterschrift die Realteilung, da diese anscheinend noch nicht vollzogen war und weder Verkäufer noch wir davon wussten. Das führte zu einigem administrativen Aufwand, da wir unterschiedliche Angaben bekamen, wer für die Teilung zuständig ist: Bauamt, Kreisbauamt, Amt für Bodenmanagement etc.
Juli/ August: Weitere intensive Hausplanung mit Einreichung Bauantrag Mitte August. Unser Architekt hat gemeint, dass letztlich das Bauamt bis zu drei Monate Bearbeitungszeit hat und letztlich wurden diese fast vollkommen ausgeschöpft. Wir haben parallel bereits angefangen (mit Architekt) die Gewerke auszuschreiben (u.a. Rohbau inkl. Keller, Sanitär, Heizung, Dach, Zimmerer etc.) um keine Zeit zu verlieren und zeitnah starten zu können. Klar hatten wir das Risiko, dass das Bauamt ablehnt bzw. Änderungswünsche hat, aber unser Architekt gab uns ein gutes Gefühl u.a. auf Basis jahrzehntelanger Erfahrung.
September-November: Diverse Kennenlerntermine mit Rohbauer, Sanitär, Elektriker, Statiker und zweitem Architekt (nur für Bauleitung). Parallel haben wir diverse Küchenstudios unsicher gemacht, eine Badausstellung besucht, Bodenbeläge angeschaut und bewertet und waren in einem Fliesenstudio. Alles immer unter der Maßgabe, dass wir keine Zeit verlieren wollten und möglichst viele Entscheidungen vorzuziehen. Außerdem macht es Spass sein Traumhaus zu planen.
Anfang November: Baugenehmigung trifft ein und Festlegung Datum Baubeginn auf 4. Januar. Einholen über Architekt weiterer Angebot für Fenster (OMG), Besprechung mit Elektriker was eigentlich Smart Home ist/kann und was für uns sinnvoll (letztlich gar nichts, sondern Nutzung konventioneller Lösungen). Und letztlich mein Lieblingsthema: Budgetplanung, Kalkulation, Pufferbildung und spielen mit Zinssätzen.
Mitte November: Start Bankgespräche zur Finanzierung des Gesamtvorhabens (Ablösung var. Finanzierung + Neubau Einfamilienhaus). Bisher ein sehr entspannter Prozess, da Objekt und v.a. Bonitätsunterlagen sofort verfügbar.
Finanzierung (für die Interessierten): Finanzierungsbedarf i.H.v. 780' + 70' Eigenkapital. Wir haben uns für 20 Jahre zu 1,25% eff. für 750' und 30' Cap-Darlehen für 1,45% über 3 Jahre entschieden. Das Cap Darlehen ist eine variable Finanzierung und letztlich unser Puffer (trotz großzügiger Planung), die bei Nichtnutzung sofort zurückgeführt werden kann. In Summe eine monatliche Belastung von 2,5' mit Planungssicherheit für 20 Jahre inkl. 5% Sondertilgung jährlich.
Bisher läuft alles nach Plan und bis auf kleinere Probleme sind wir bisher doch zufrieden vom Prozess. Das liegt zu einem Großteil auch an unserem Architekten, der einen super Job macht, immer erreichbar ist, uns offen Feedback zu Ideen gibt und uns nie versucht das teuerste zu verkaufen.
Lessons learned:
- Frühzeitige Treffen mit den wichtigsten Gewerken - schafft Vertrauen und man hat jederzeit Ansprechpartner (Elektriker hat sich vor Auftragsvergabe 2x über 1h Zeit genommen und uns persönlich alles erklärt. Er hat ein umfassendes Smarthome Angebot aufbereitet für Rollläden, Fußbodenheizung und Licht und als wir vom Preis überrascht waren, haben wir eine Bedarfsplanung gemacht und letztlich sinnvolle Alternativen gefunden - für uns ist SH letztlich Spielerei)
- Von Anfang an Budget planen und schauen wie es läuft und überall Puffer einplanen. Bei uns war Erdaushub und Verbau c. 20k teurer als geplant wegen der Lagerkosten und direkter Bau an den Bürgersteig.
- Allen Gewerken klar sagen was man will und Angebote genau lesen.
- Einzelgewerksvergabe (mit Architekt) ist kein Hexenwerk und auch nicht so der Riesenaufwand. Man liest im Endeffekt Angebote und spricht dann mit Architekt/ Anbieter. Vorteil ist, dass man frühzeitig in einen Austausch gehen kann und immer neue Ideen bekommt.
- Überlegt euch, was wirklich für euch wichtig ist: Sind es die 31' Euro nur für die Ausstattung von 2 Bädern + 1 WC (Keramik, Dusche, Waschtische, Armaturen) oder dann doch eine hochwertige Küche, die über dem Budget liegt, aber von der man überzeugt ist?
Das war jetzt ein langer Text und ich füge nochmal ein paar Bilder von den Grundrissen bei.
Hier noch die Bilde vom Grundriss. Wir haben in Summe c. 184qm Wohnfläche + 63qm Keller. Das Obergeschoss ist die Kinderetage (bisher 2 vorhanden + ggfls ein Drittes) und die Abstellkammer ist letztlich mein Homeoffice. Im DG ist unser Elternbereich geplant.
Hinweis: Die Bäder entsprechen von der Aufteilung her nicht dem Planungsstand, aber hier sind wir auch noch nicht zufrieden (u.a. Raumaufteilung und 31' für Ausstattung)
Geplanter und kommunizierten Einzugstermin ist November 2021




Hinweis: Die Bäder entsprechen von der Aufteilung her nicht dem Planungsstand, aber hier sind wir auch noch nicht zufrieden (u.a. Raumaufteilung und 31' für Ausstattung)
Geplanter und kommunizierten Einzugstermin ist November 2021
Ähnliche Themen