ᐅ Grundrissoptimierung Siedlungshaus
Erstellt am: 01.08.17 11:23
Bebauungsplan/Einschränkungen
Größe des Grundstücks - 594qm
Hang - nein
Grundflächenzahl - 0,4
Geschossflächenzahl - 0,5
Baufenster, Baulinie und -grenze
Randbebauung - ja
Anzahl Stellplatz - 2
Geschossigkeit - 1,5
Dachform - laut BBPL nicht vorgeschrieben, muß aber wohl im Siedlungstil gebaut werden also Satteldach mit 50°
Stilrichtung - Siedlungshaus
Ausrichtung - Nord-West
Maximale Höhen/Begrenzungen -keine
weitere Vorgaben
Anforderungen der Bauherren
Stilrichtung, Dachform, Gebäudetyp - wie gesagt: Siedlungscharakteristik
Keller, Geschosse - 1,5 Geschosse + Keller
Anzahl der Personen, Alter - 5 Personen (40,40,10,7,3)
Raumbedarf im EG, OG -
Büro: Familiennutzung oder Homeoffice? - beides
Schlafgäste pro Jahr - keine
offene oder geschlossene Architektur - geschlossen
konservativ oder moderne Bauweise - modern
offene Küche, Kochinsel - geschlossene Küche möglichst mit Kochinsel
Anzahl Essplätze - 8
Kamin - noch unentschlossen
Musik/Stereowand - ja
Balkon, Dachterrasse - nein
Garage, Carport - Doppelgarage
Nutzgarten, Treibhaus - nein, Spielgarten
weitere Wünsche/Besonderheiten/Tagesablauf, gern auch Begründungen, warum dieses oder das nicht sein soll
Hausentwurf
Von wem stammt die Planung: Planer eines Bauunternehmens zusammen mit Architekt
Was gefällt besonders? Warum? - Terrasse von Küche und Wohn-/Esszimmer zugänglich, viel Platz/Abstellfläche
Was gefällt nicht? Warum? - Kinderzimmer zu unterschiedlich groß
Preisschätzung lt Architekt/Planer: noch nicht kalkuliert
Persönliches Preislimit fürs Haus, inkl Ausstattung: 300000
favorisierte Heiztechnik: Gas mit Solarthermie
Wenn Ihr verzichten müsst, auf welche Details/Ausbauten
-könnt Ihr verzichten:
-könnt Ihr nicht verzichten:
Warum ist der Entwurf so geworden, wie er jetzt ist? ZB
Standardentwurf vom Planer? - Erstentwurf ins Blaue nach unseren Vorgaben, bereits einmal korrigiert
Entsprechende/Welche Wünsche wurden vom Architekten umgesetzt? - abgesehen von den Kinderzimmer alles
Was macht ihn in Euren Augen besonders gut oder schlecht? - In meinen Augen ein gelungener Entwurf, hat allerdings noch Verbesserungsbedarf. Die ein oder andere Wand würden wir noch verschieben, speziell im OG
Was ist die grundlegende Frage zum Grundriss in 130 Zeichen zusammengefasst?
Gerne würde ich Meinungen zu unserem Entwurf hören um Stärken und Schwächen abzuwägen und ggf. grundlegende Fehler zu vermeiden die wir vielleicht einfach nicht bedacht haben.




Größe des Grundstücks - 594qm
Hang - nein
Grundflächenzahl - 0,4
Geschossflächenzahl - 0,5
Baufenster, Baulinie und -grenze
Randbebauung - ja
Anzahl Stellplatz - 2
Geschossigkeit - 1,5
Dachform - laut BBPL nicht vorgeschrieben, muß aber wohl im Siedlungstil gebaut werden also Satteldach mit 50°
Stilrichtung - Siedlungshaus
Ausrichtung - Nord-West
Maximale Höhen/Begrenzungen -keine
weitere Vorgaben
Anforderungen der Bauherren
Stilrichtung, Dachform, Gebäudetyp - wie gesagt: Siedlungscharakteristik
Keller, Geschosse - 1,5 Geschosse + Keller
Anzahl der Personen, Alter - 5 Personen (40,40,10,7,3)
Raumbedarf im EG, OG -
Büro: Familiennutzung oder Homeoffice? - beides
Schlafgäste pro Jahr - keine
offene oder geschlossene Architektur - geschlossen
konservativ oder moderne Bauweise - modern
offene Küche, Kochinsel - geschlossene Küche möglichst mit Kochinsel
Anzahl Essplätze - 8
Kamin - noch unentschlossen
Musik/Stereowand - ja
Balkon, Dachterrasse - nein
Garage, Carport - Doppelgarage
Nutzgarten, Treibhaus - nein, Spielgarten
weitere Wünsche/Besonderheiten/Tagesablauf, gern auch Begründungen, warum dieses oder das nicht sein soll
Hausentwurf
Von wem stammt die Planung: Planer eines Bauunternehmens zusammen mit Architekt
Was gefällt besonders? Warum? - Terrasse von Küche und Wohn-/Esszimmer zugänglich, viel Platz/Abstellfläche
Was gefällt nicht? Warum? - Kinderzimmer zu unterschiedlich groß
Preisschätzung lt Architekt/Planer: noch nicht kalkuliert
Persönliches Preislimit fürs Haus, inkl Ausstattung: 300000
favorisierte Heiztechnik: Gas mit Solarthermie
Wenn Ihr verzichten müsst, auf welche Details/Ausbauten
-könnt Ihr verzichten:
-könnt Ihr nicht verzichten:
Warum ist der Entwurf so geworden, wie er jetzt ist? ZB
Standardentwurf vom Planer? - Erstentwurf ins Blaue nach unseren Vorgaben, bereits einmal korrigiert
Entsprechende/Welche Wünsche wurden vom Architekten umgesetzt? - abgesehen von den Kinderzimmer alles
Was macht ihn in Euren Augen besonders gut oder schlecht? - In meinen Augen ein gelungener Entwurf, hat allerdings noch Verbesserungsbedarf. Die ein oder andere Wand würden wir noch verschieben, speziell im OG
Was ist die grundlegende Frage zum Grundriss in 130 Zeichen zusammengefasst?
Gerne würde ich Meinungen zu unserem Entwurf hören um Stärken und Schwächen abzuwägen und ggf. grundlegende Fehler zu vermeiden die wir vielleicht einfach nicht bedacht haben.
Aus dem Bebauungsplan kann ich jetzt nicht die Himmelsrichtung ablesen. Wie steht das Haus?
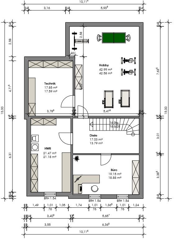
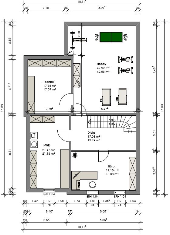
Auf Anhieb finde ich 2 getrennte Garagen nur für Autos übertrieben. Wenn da nicht eine Seite mal Werkstatt o.ä. werden soll, würde ich die Mittelwand raus nehmen. Wahrscheinlich würde ich sie selbst dann raus nehmen.
Irgendwie macht das ganze aufgrund der Dominanz der Autos für mich einen ungemütlichen Eindruck. Wohnzimmer und Küche sind sehr separiert. Viel Platz geht für WC und Schleuse darauf, obwohl unklar ist, wozu unten einen Dusche nötig ist. Ab davon, warum tritt man nicht gleich von Garage in Flur und macht lieber einen extra Raum als Abstellraum o.ä.?
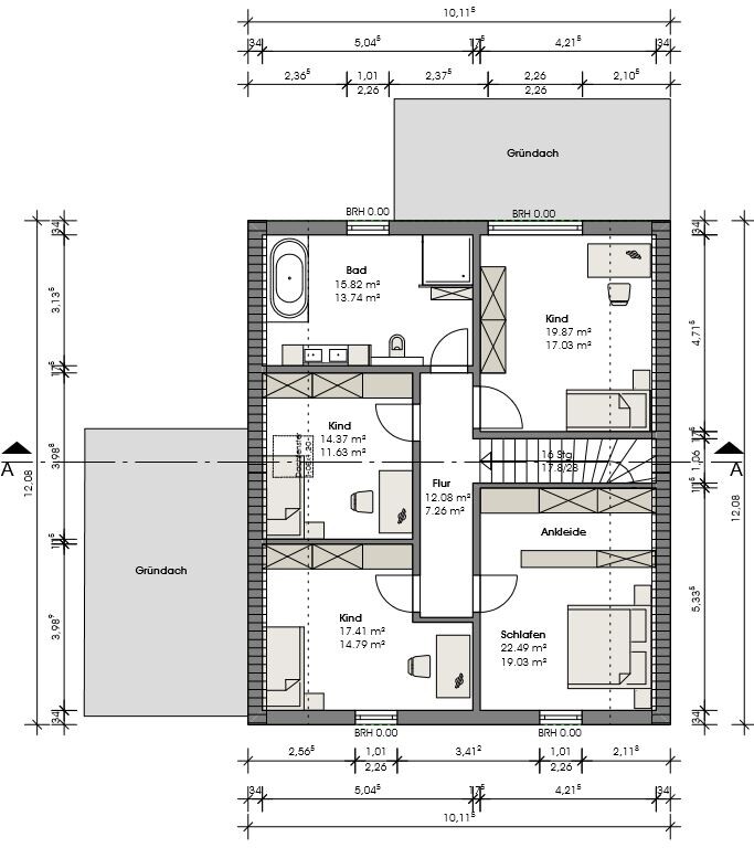
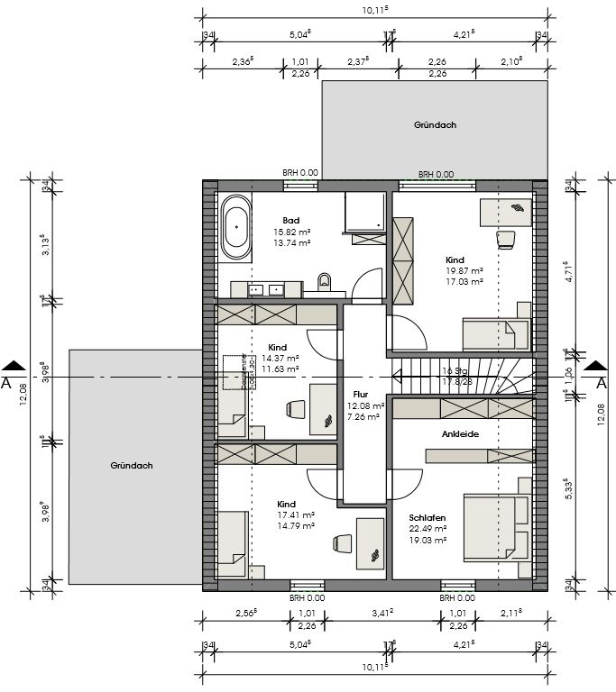
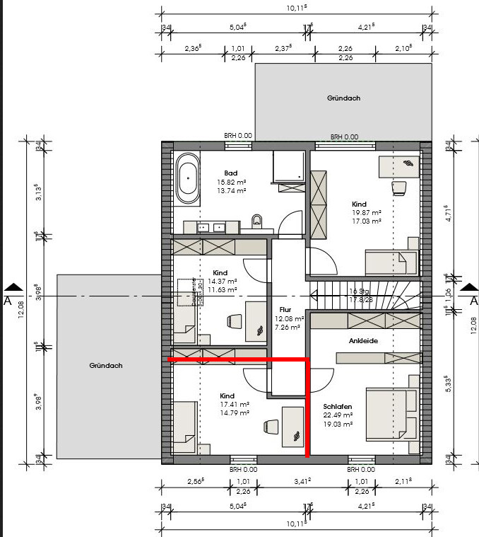
Im OG würde ich den Flur verkürzen und das Schlafzimmer über die Ankleide betreten. Damit auch gleich Kinderzimmer optimiert. Muss allerdings dazu sagen, dass ich solche schmalen Ankleiden Käse finde - ist aber jetzt anscheinend in.
Tür von Küche zu WZ würde ich als Doppeltür größer machen.
Eingangsbereich bzw. Diele zu dunkel. Hier würde ich größere Fenster neben der Tür einplanen, notfalls auch vor die Treppe.

Auf Anhieb finde ich 2 getrennte Garagen nur für Autos übertrieben. Wenn da nicht eine Seite mal Werkstatt o.ä. werden soll, würde ich die Mittelwand raus nehmen. Wahrscheinlich würde ich sie selbst dann raus nehmen.
Irgendwie macht das ganze aufgrund der Dominanz der Autos für mich einen ungemütlichen Eindruck. Wohnzimmer und Küche sind sehr separiert. Viel Platz geht für WC und Schleuse darauf, obwohl unklar ist, wozu unten einen Dusche nötig ist. Ab davon, warum tritt man nicht gleich von Garage in Flur und macht lieber einen extra Raum als Abstellraum o.ä.?
Im OG würde ich den Flur verkürzen und das Schlafzimmer über die Ankleide betreten. Damit auch gleich Kinderzimmer optimiert. Muss allerdings dazu sagen, dass ich solche schmalen Ankleiden Käse finde - ist aber jetzt anscheinend in.
Tür von Küche zu WZ würde ich als Doppeltür größer machen.
Eingangsbereich bzw. Diele zu dunkel. Hier würde ich größere Fenster neben der Tür einplanen, notfalls auch vor die Treppe.
Ähnliche Themen