ᐅ Grundrissoptimierung Sanierung Zweifamilienhaus zu Einfamilienhaus Bj. 1957
Erstellt am: 03.02.23 12:09
L
letosaspeL
letosaspe03.02.23 12:09Liebe Foren-Mitglieder,
ich lese schon länger in unterschiedlichen Rubriken mit und konnte bereits viele sehr hilfreiche Informationen verwerten - danke hierfür!!
Wir haben ein Zweifamilienhaus Bj. 1957 gekauft, das wir kernsanieren (Energetische Sanierung + Innenausbau) und als Einfamilienhaus nutzen möchten.
Wir freuen uns sehr über Hilfe und konstruktive Kritik zu den Grundrissen!
Hier der etwas modifizierte Fragebogen:
Bebauungsplan/Einschränkungen
Größe des Grundstücks: 454qm
Hang: ja
Randbebauung: nein
Anzahl Stellplatz: 1 Garage
Dachform: Sattel
Anforderungen der Bauherren
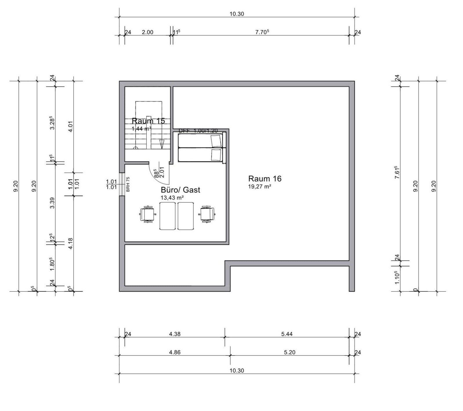
Keller, Geschosse: Keller + 2 Vollgeschosse + Dachboden soll zum Teil ausgebaut werden
Anzahl der Personen, Alter: 3 Personen, 32J., 38J. und 10 Monate
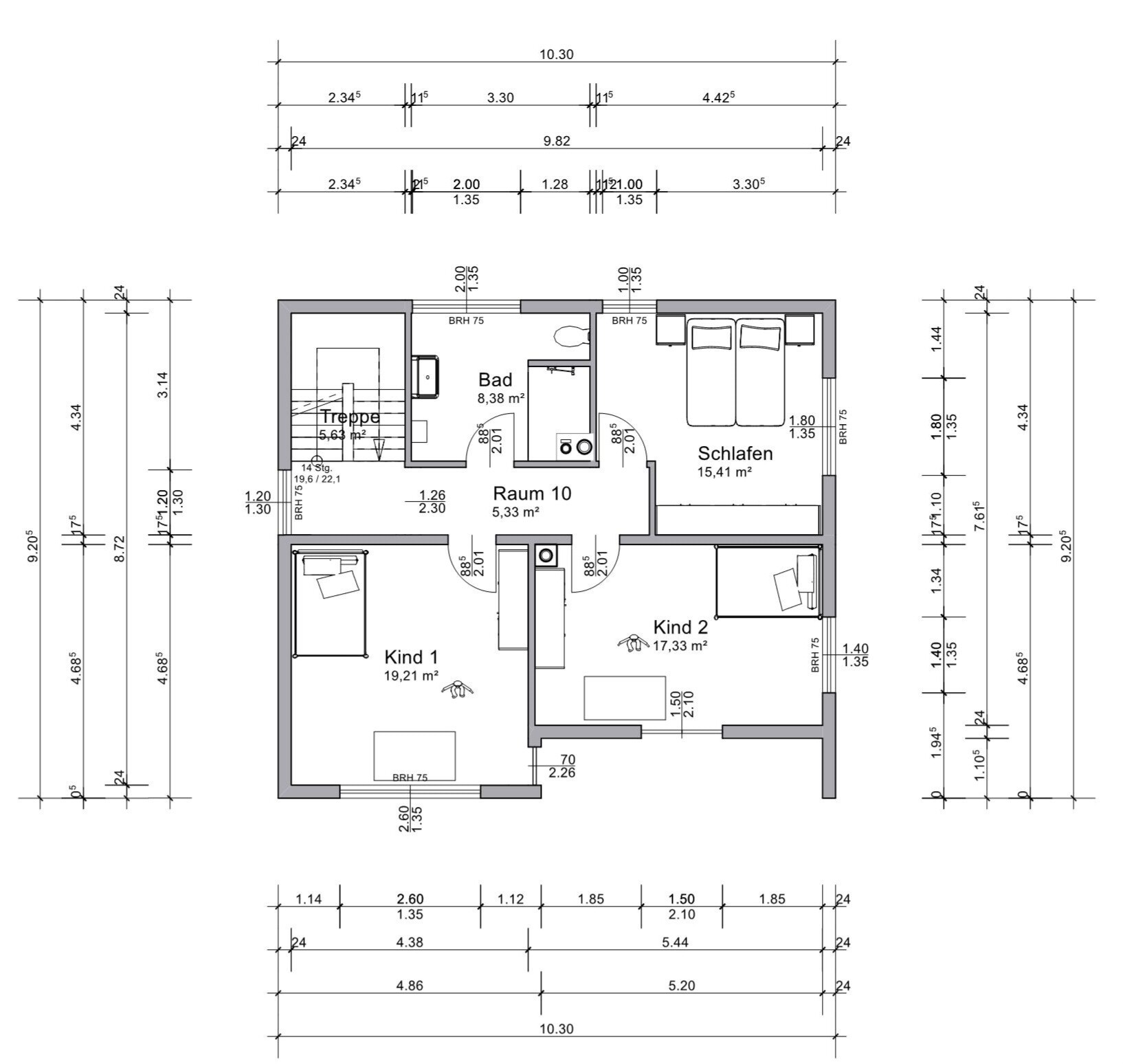
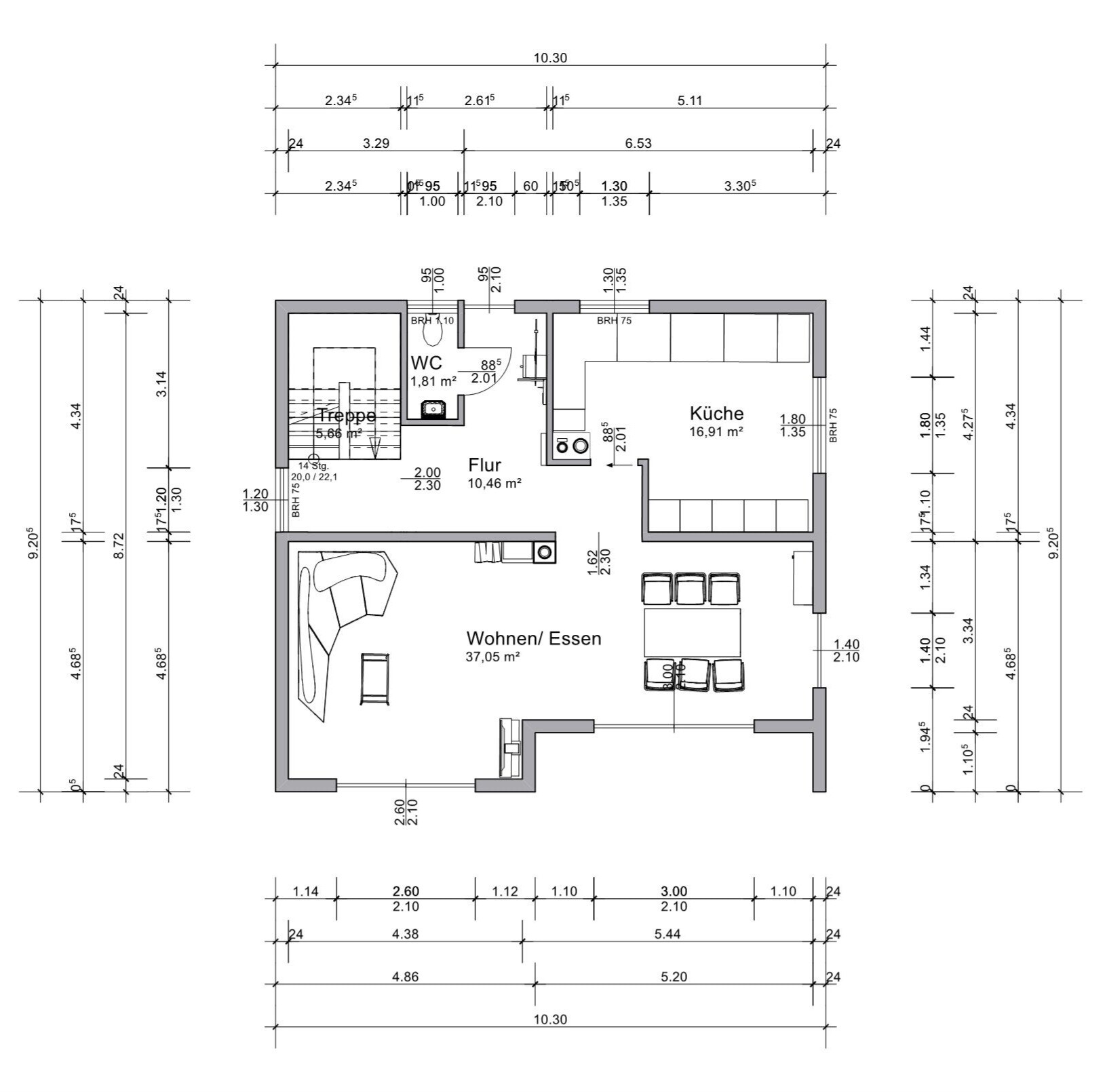
Raumbedarf im EG, OG: EG - Wohnen, Essen, Küche, WC
OG - 3 Schlafzimmer + Bad
Büro: - Büro für 2 notwendig für teilweise Homeoffice im DG geplant
Schlafgäste pro Jahr: 3x im Jahr
offene oder geschlossene Architektur: eher geschlossen, basierend auf Gegebenheiten
offene Küche, Kochinsel: geschlossene Küche ist auch in Ordnung
Anzahl Essplätze: 4-6
Kamin: ja
MusikStereowand: nein
Balkon, Dachterrasse: ja
Garage, Carport: Garage vorhanden, zusätzlicher Stellplatz soll angelegt werden
Hausentwurf
Von wem stammt die Planung: Do-it-Yourself
Was gefällt besonders? Warum?
OG ergibt gleichmäßige Zimmer und ein ausreichend großes Bad, Orientierung von Wohn- und Essbereich zur Südseite Richtung Garten mit großen Fensterfronten
Was gefällt nicht? Warum?
Anordnung Flur, Gästebad, Küche inkl. Türen und Zugänge im EG "verschachtelt", Küche darf offen oder geschlossen sein, soll nicht stetiger Durchgangsraum werden, Verlust des Zweifamilienhaus-Charakters ausreichend?
Preisschätzung lt Architekt/Planer:
400k - 500k
Persönliches Preislimit für Sanierung, inkl Ausstattung: 500k
favorisierte Heiztechnik: Luft-Wasser-Wärmepumpe mit Photovoltaik
Was ist die wichtigste/grundlegende Frage zum Grundriss in 130 Zeichen zusammengefasst?
Verliert sich der Zweifamilienhaus Charakter durch Öffnung des Treppenhauses im EG durch Glastür/- Front? Wie lässt sich der Bereich Flur, WC, Küche im EG optimal gestalten?
Anbei die ursprünglichen Baupläne entsprechend des aktuellen Zustandes und die bisherigen von uns erstellten Planungen/ Ideen.
Herzlichen Dank und beste Grüße









ich lese schon länger in unterschiedlichen Rubriken mit und konnte bereits viele sehr hilfreiche Informationen verwerten - danke hierfür!!
Wir haben ein Zweifamilienhaus Bj. 1957 gekauft, das wir kernsanieren (Energetische Sanierung + Innenausbau) und als Einfamilienhaus nutzen möchten.
Wir freuen uns sehr über Hilfe und konstruktive Kritik zu den Grundrissen!
Hier der etwas modifizierte Fragebogen:
Bebauungsplan/Einschränkungen
Größe des Grundstücks: 454qm
Hang: ja
Randbebauung: nein
Anzahl Stellplatz: 1 Garage
Dachform: Sattel
Anforderungen der Bauherren
Keller, Geschosse: Keller + 2 Vollgeschosse + Dachboden soll zum Teil ausgebaut werden
Anzahl der Personen, Alter: 3 Personen, 32J., 38J. und 10 Monate
Raumbedarf im EG, OG: EG - Wohnen, Essen, Küche, WC
OG - 3 Schlafzimmer + Bad
Büro: - Büro für 2 notwendig für teilweise Homeoffice im DG geplant
Schlafgäste pro Jahr: 3x im Jahr
offene oder geschlossene Architektur: eher geschlossen, basierend auf Gegebenheiten
offene Küche, Kochinsel: geschlossene Küche ist auch in Ordnung
Anzahl Essplätze: 4-6
Kamin: ja
MusikStereowand: nein
Balkon, Dachterrasse: ja
Garage, Carport: Garage vorhanden, zusätzlicher Stellplatz soll angelegt werden
Hausentwurf
Von wem stammt die Planung: Do-it-Yourself
Was gefällt besonders? Warum?
OG ergibt gleichmäßige Zimmer und ein ausreichend großes Bad, Orientierung von Wohn- und Essbereich zur Südseite Richtung Garten mit großen Fensterfronten
Was gefällt nicht? Warum?
Anordnung Flur, Gästebad, Küche inkl. Türen und Zugänge im EG "verschachtelt", Küche darf offen oder geschlossen sein, soll nicht stetiger Durchgangsraum werden, Verlust des Zweifamilienhaus-Charakters ausreichend?
Preisschätzung lt Architekt/Planer:
400k - 500k
Persönliches Preislimit für Sanierung, inkl Ausstattung: 500k
favorisierte Heiztechnik: Luft-Wasser-Wärmepumpe mit Photovoltaik
Was ist die wichtigste/grundlegende Frage zum Grundriss in 130 Zeichen zusammengefasst?
Verliert sich der Zweifamilienhaus Charakter durch Öffnung des Treppenhauses im EG durch Glastür/- Front? Wie lässt sich der Bereich Flur, WC, Küche im EG optimal gestalten?
Anbei die ursprünglichen Baupläne entsprechend des aktuellen Zustandes und die bisherigen von uns erstellten Planungen/ Ideen.
Herzlichen Dank und beste Grüße
H
hanghaus202303.02.23 13:33kbt09 schrieb:
Ich werde es einfach nicht verstehen ... warum kann man, wenn man Antworten wünscht, nicht wenigstens alle Grundrisse einheitlich ausrichten?Weil man dann nur schwer was lesen könnte. Leider kann man das sowieso kaum. @letosaspe Ich sehe den Eingang nicht. Soll der verlegt werden?
L
letosaspe03.02.23 13:54Danke für die schnellen Reaktionen.
Entschuldigt, das ist mein erster Beitrag hier. Soll ich alle Bilder in besserer Qualität hochladen? Was kann man schlecht lesen - Originalpläne oder unser Entwurf?
Der Hauseingang befindet sich auf Podesthöhe zwischen Keller und EG und ist deshalb nicht eingezeichnet. Danke für den Hinweis. Wir hatten keine Verlegung geplant.
Entschuldigt, das ist mein erster Beitrag hier. Soll ich alle Bilder in besserer Qualität hochladen? Was kann man schlecht lesen - Originalpläne oder unser Entwurf?
Der Hauseingang befindet sich auf Podesthöhe zwischen Keller und EG und ist deshalb nicht eingezeichnet. Danke für den Hinweis. Wir hatten keine Verlegung geplant.
H
hanghaus202303.02.23 13:59MMn ist das kein Umbau mit 500k.
EG: Die Wand zwischen WZ und Schlafzimmer sollte auf jeden Fall ein Statiker eine Lösung vorschlagen, wie die entfernt werden kann. Ebenso die Wand der Küche. Das Treppenhaus ist als Windfang konzipiert. Die Tür würde ich nicht weglassen. Der Eingang wird vermutlich aus der halben höhe so bleiben.
DG: Das Bad würde ich nicht groß verändern anstelle der Badewanne die Dusche. Das WC separat ist keine schlechte Lösung.
Die Wand zur ehemaligen Küche im Schlafzimmer sollte mMn kaum ein Problem darstellen. Dein Statiker sagt Dir wie das geht.
Wenn DU schon so versiert mit der Planung bist, Dann mach es richtig. Zeichne die Änderungen in den Plan. Abbruch gelb und Neu rot.
Da braucht man dann nicht Deine Pläne Alle drehen. Bitte mach ordentliche Bildschirmprints, damit man was lesen kann.
Heute sieht doch jedes Einfamilienhaus so ähnlich aus. Da kann man mit der Fassadengestaltung einiges verbessern.
EG: Die Wand zwischen WZ und Schlafzimmer sollte auf jeden Fall ein Statiker eine Lösung vorschlagen, wie die entfernt werden kann. Ebenso die Wand der Küche. Das Treppenhaus ist als Windfang konzipiert. Die Tür würde ich nicht weglassen. Der Eingang wird vermutlich aus der halben höhe so bleiben.
DG: Das Bad würde ich nicht groß verändern anstelle der Badewanne die Dusche. Das WC separat ist keine schlechte Lösung.
Die Wand zur ehemaligen Küche im Schlafzimmer sollte mMn kaum ein Problem darstellen. Dein Statiker sagt Dir wie das geht.
Wenn DU schon so versiert mit der Planung bist, Dann mach es richtig. Zeichne die Änderungen in den Plan. Abbruch gelb und Neu rot.
Da braucht man dann nicht Deine Pläne Alle drehen. Bitte mach ordentliche Bildschirmprints, damit man was lesen kann.
Heute sieht doch jedes Einfamilienhaus so ähnlich aus. Da kann man mit der Fassadengestaltung einiges verbessern.
L
letosaspe03.02.23 14:45Danke, dass du dir die Mühe gemacht hast, trotz allem drüber zu schauen!
Ein Statiker wird in ca. 2 Wochen kommen. Wir haben mal so "geplant", dass die 11,5er Wände raus können, notfalls mit Träger und die 17,5er Wand eher kompliziert zum Öffnen ist, bzw. Öffnungen dort besser eher schmal gehalten werden.
Die Überlegung am Eingang zum EG war es, den Durchgang zu verbreitern und eventuell mit einer Glastüre/ Glaselement zu verschließen. Zum einen um thermisch abzuschließen, aber vor allem auch um optisch den Charakter Zweifamilienhaus durch das Glaselement etwas zu nehmen.
Unschlüssig sind wir vor allem wie die Garderobe, WC und die Küche sinnvoll anzuordnen sind und wo man Zugänge/ Durchbrüche/Türen schafft.
Ich werde mal das Tool durchforsten wie ich Wände rot und gelb färben kann, dann versuche ich einen optimierten alles in einem Plan zu erstellen.
Bezüglich finanzieller Planung hatten wir drei Architekten da, wovon zwei bei mind. 500k und einer bei 600k als Erstschätzung war. Ein Bauleiter (Prokurist bei einem Bauträger) schätzte 400k. Das Haus ist weitestgehend im Zustand des Baujahres.
Ein Statiker wird in ca. 2 Wochen kommen. Wir haben mal so "geplant", dass die 11,5er Wände raus können, notfalls mit Träger und die 17,5er Wand eher kompliziert zum Öffnen ist, bzw. Öffnungen dort besser eher schmal gehalten werden.
Die Überlegung am Eingang zum EG war es, den Durchgang zu verbreitern und eventuell mit einer Glastüre/ Glaselement zu verschließen. Zum einen um thermisch abzuschließen, aber vor allem auch um optisch den Charakter Zweifamilienhaus durch das Glaselement etwas zu nehmen.
Unschlüssig sind wir vor allem wie die Garderobe, WC und die Küche sinnvoll anzuordnen sind und wo man Zugänge/ Durchbrüche/Türen schafft.
Ich werde mal das Tool durchforsten wie ich Wände rot und gelb färben kann, dann versuche ich einen optimierten alles in einem Plan zu erstellen.
Bezüglich finanzieller Planung hatten wir drei Architekten da, wovon zwei bei mind. 500k und einer bei 600k als Erstschätzung war. Ein Bauleiter (Prokurist bei einem Bauträger) schätzte 400k. Das Haus ist weitestgehend im Zustand des Baujahres.
Ähnliche Themen