Bebauungsplan/Einschränkungen
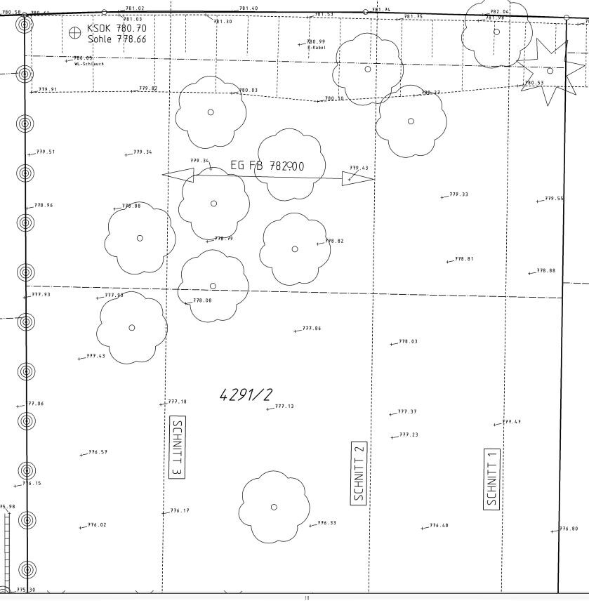
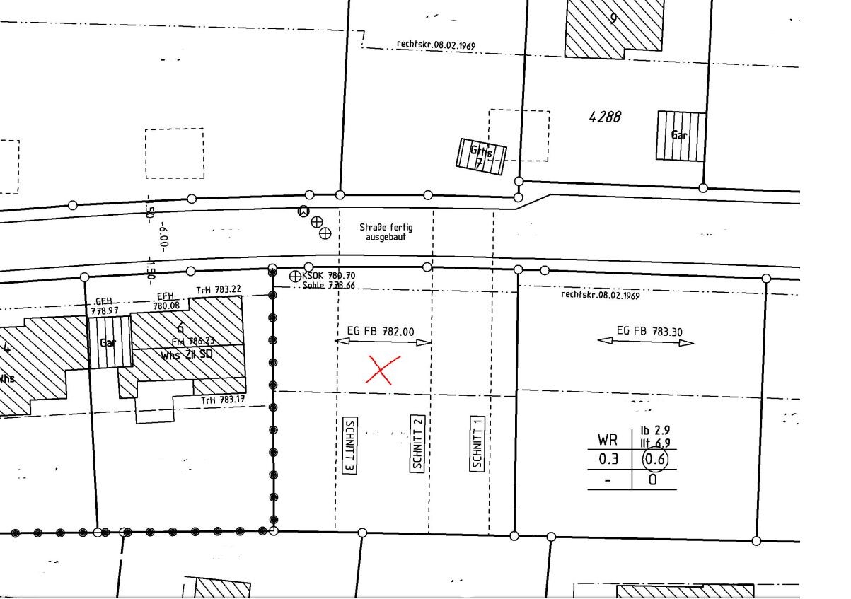
Größe des Grundstück. 1006 qm
Hang: Ja, Richtung Norden
Grundflächenzahl: unkritisch, eingehalten (s. Lageplan)
Geschossflächenzahl: unkritisch, eingehalten (s. Lageplan)
Baufenster, Baulinie und –grenze: unkritisch, eingehalten (s. Lageplan)
Randbebauung: min. 4 m Abstand nach Westen, min. 3 m Abstand nach Osten
Anzahl Stellplatz: 2
Geschossigkeit: max. 1,5 Richtung Straße (s. Lageplan)
Dachform: offen
Stilrichtung: -
Ausrichtung: First parallel Straße
Maximale Höhen/Begrenzungen: Keine vorgeschriebene Firsthöhe, nur Traufhöhe bis 3,52 m
Anforderungen der Bauherren
Stilrichtung, Dachform, Gebäudetyp: Bauhaus
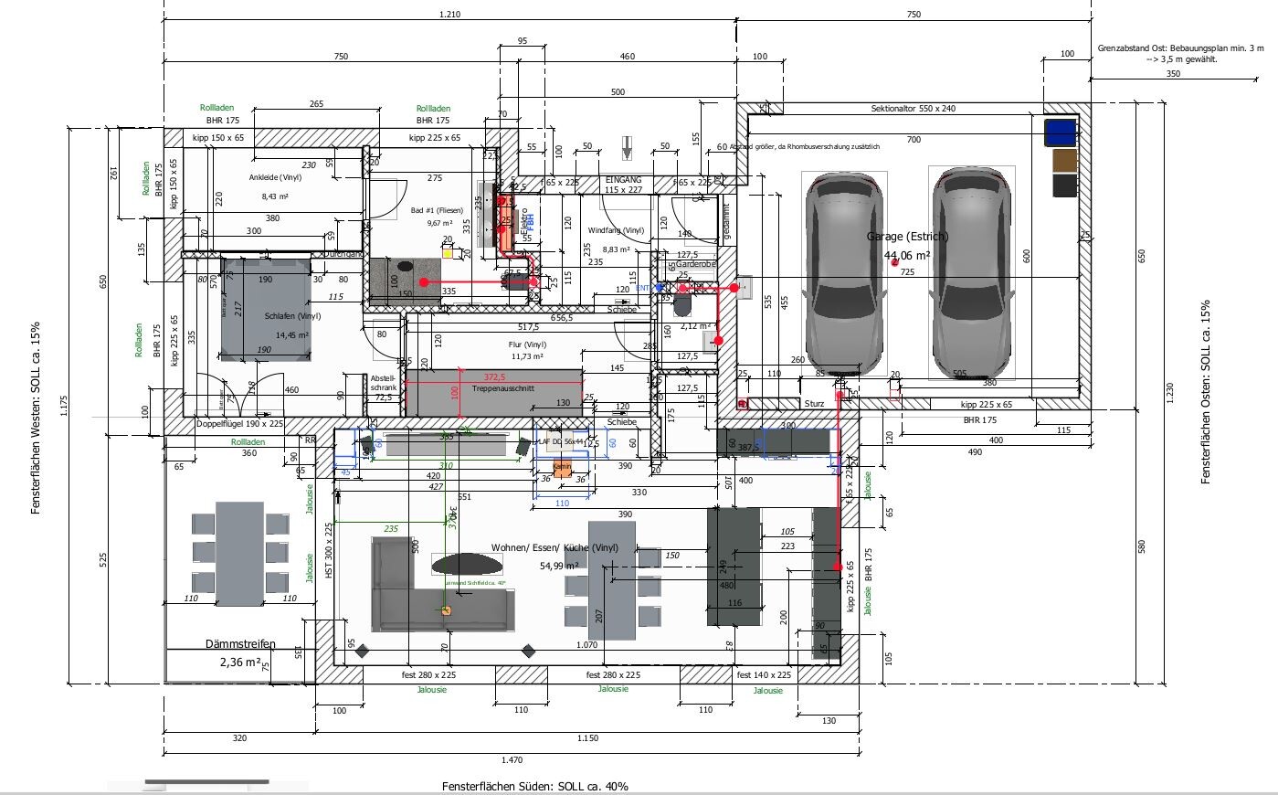
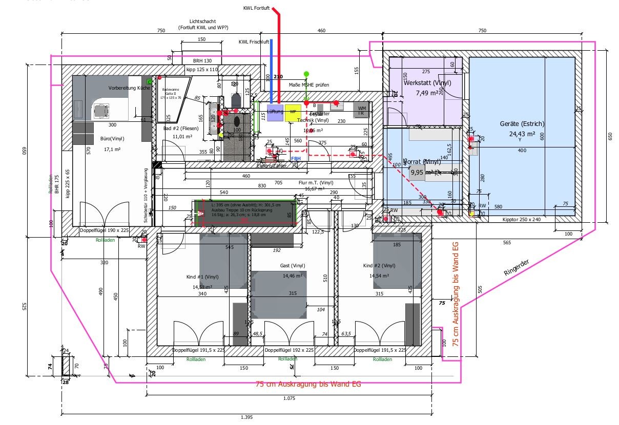
Keller, Geschosse: 2 Vollgeschosse (UG Wohngelder)
Anzahl der Personen, Alter: 4 Stk, Alter: 43, 38, 5, 2
Raumbedarf im EG, OG
Büro: Familiennutzung oder Homeoffice? Homeoffice, nach Feierabend Familie
Schlafgäste pro Jahr: ca. 1 WE jeden Monat.
konservativ oder moderne Bauweise: modern
offene Küche, Kochinsel: beides
Anzahl Essplätze: 6 Stk.
Kamin: ja
Musik/Stereowand : JA, WICHTIG. 5.1 + Athmos im Wohnzimmer. Leinwand + Beamer.
Balkon, Dachterrasse: Balkon EG
Garage, Carport: Doppelgarage
weitere Wünsche/Besonderheiten/Tagesablauf, gern auch Begründungen, warum dieses oder das nicht sein soll
Hausentwurf
Von wem stammt die Planung: Architektin vorhanden, aber Plan selbst erstellt. Architektin
Was gefällt besonders? Warum? Blickachse im Windfang, Kofferintegration von Leinwand, Kamin und Küche im WZ, Alles im Alter auf einer Ebene im EG (Straßenniveau).
Was gefällt nicht? Warum? Garderobe zu klein (127 cm), Werkstatt zu klein, Büro etwas zu groß. Evtl. zu verschachtelt.
Preisschätzung laut Architekt/Planer: 600.000 € (Architektin schätzt aber schlecht bisher)
Persönliches Preislimit fürs Haus, inkl. Ausstattung: 650.000€ (Reserven sind aber da)
favorisierte Heiztechnik: Sole-Wasser-Wärmepumpe (mit passiver Kühlung) mit Ringgrabenkollektor, Kontrollierte-Wohnraumlüftung
Wenn Ihr verzichten müsst, auf welche Details/Ausbauten
-könnt Ihr verzichten: T-Lösung Bad.
-könnt Ihr nicht verzichten: Hifi WZ, Kochinsel, bodentiefe Duschen, Doppelgarage
Warum ist der Entwurf so geworden, wie er jetzt ist?
Ich kann es nicht besser (Laie) :-D. Leider die Architektin auch nicht (durchaus objektiv betrachtet)
--------------------------------------------------------------------------------------------------------------------------------------------
Hallo zusammen,
hier mal wieder SweetHome Dateien (die Profis werden schon jetzt mit den Augen rollen) aber mit dem Unterscheid, dass wohl mehr Zeit von mir in die Planung gesteckt wurde als gewöhnlich bei einem Laienentwurf.
Zur Leidensgeschichte:
Ich habe eine Architektin, jedoch brachte diese nach 4 Monaten Wartezeit nur enttäuschendes auf das Blatt. Obwohl ich nach einem losgelösten Entwurf bat, wurden die Außenmaße übernommen und der Rest verschlimmbessert. Typisches Beispiel von keine Zeit und mal was hingerotzt in Verbindung mit wenig Talent.
Dann zu einem BU gegangen. Der Entwurfsvorschlag dort - wieder eine Frau Architektin - erneut katastrophal.
Dann das Vertrauen in den Berufsstand verloren und das Ding selbst in die Hand genommen. Mir scheint es gibt sehr viele schwarze Schafe unter Architekten/INNEN.
Darin wurde ich auch etwas bestätigt, dass nahezu ausnahmslos jeder Architektengrundriss hier im Forum zerrissen wird (für mich aber durch die Begründungen nachvollziehbar, Danke an die tollen Forumsteilnehmer!).
zum Haus:
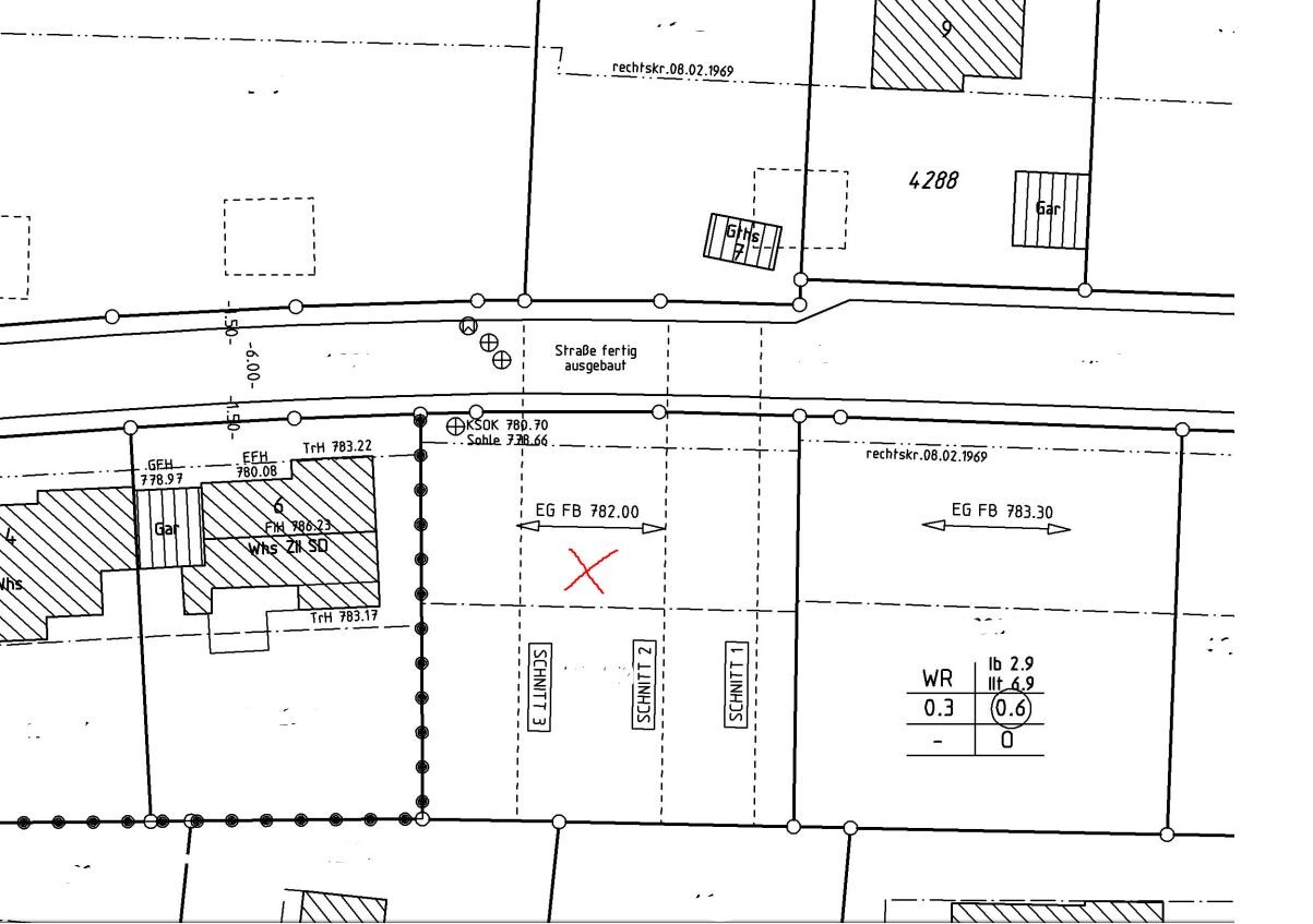
Alle Vorgaben des Bebauungsplan sind eingehalten.
Norden ist bis auf zwei Grad Abweichung wirklich auch oben bei den Plänen.
Im Norden ist eine Straße. Süden gute Aussicht. Osten und Westen viel Abstand zu den Nachbarn.
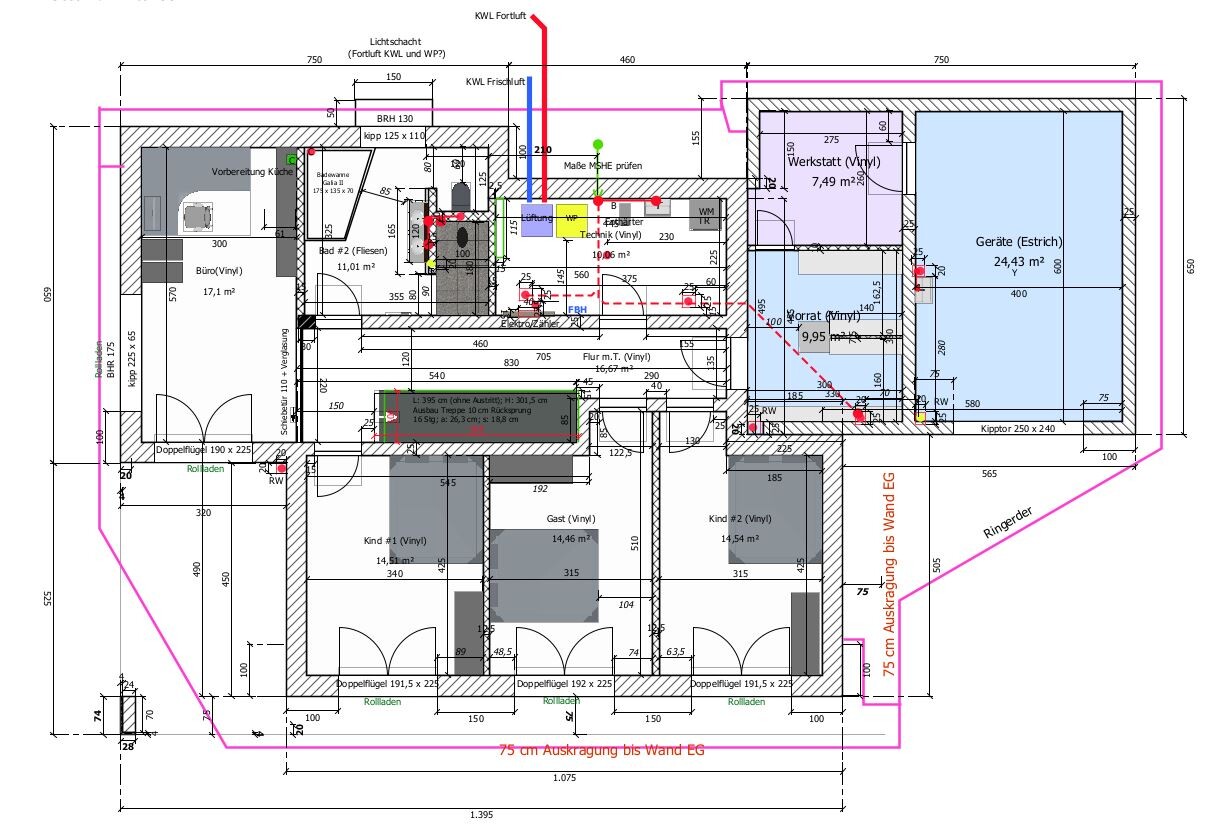
Für euch sind wahrscheinlich die unbemaßten Grundrisse im zweiten Post am wenigsten verwirrend (sind aber nicht ganz auf dem aktuellen Stand). Doppelgarage fehlt dort teilweise.
Viele Grüße und ich hoffe auf konstruktive Verbesserungsvorschläge!










Größe des Grundstück. 1006 qm
Hang: Ja, Richtung Norden
Grundflächenzahl: unkritisch, eingehalten (s. Lageplan)
Geschossflächenzahl: unkritisch, eingehalten (s. Lageplan)
Baufenster, Baulinie und –grenze: unkritisch, eingehalten (s. Lageplan)
Randbebauung: min. 4 m Abstand nach Westen, min. 3 m Abstand nach Osten
Anzahl Stellplatz: 2
Geschossigkeit: max. 1,5 Richtung Straße (s. Lageplan)
Dachform: offen
Stilrichtung: -
Ausrichtung: First parallel Straße
Maximale Höhen/Begrenzungen: Keine vorgeschriebene Firsthöhe, nur Traufhöhe bis 3,52 m
Anforderungen der Bauherren
Stilrichtung, Dachform, Gebäudetyp: Bauhaus
Keller, Geschosse: 2 Vollgeschosse (UG Wohngelder)
Anzahl der Personen, Alter: 4 Stk, Alter: 43, 38, 5, 2
Raumbedarf im EG, OG
Büro: Familiennutzung oder Homeoffice? Homeoffice, nach Feierabend Familie
Schlafgäste pro Jahr: ca. 1 WE jeden Monat.
konservativ oder moderne Bauweise: modern
offene Küche, Kochinsel: beides
Anzahl Essplätze: 6 Stk.
Kamin: ja
Musik/Stereowand : JA, WICHTIG. 5.1 + Athmos im Wohnzimmer. Leinwand + Beamer.
Balkon, Dachterrasse: Balkon EG
Garage, Carport: Doppelgarage
weitere Wünsche/Besonderheiten/Tagesablauf, gern auch Begründungen, warum dieses oder das nicht sein soll
Hausentwurf
Von wem stammt die Planung: Architektin vorhanden, aber Plan selbst erstellt. Architektin
Was gefällt besonders? Warum? Blickachse im Windfang, Kofferintegration von Leinwand, Kamin und Küche im WZ, Alles im Alter auf einer Ebene im EG (Straßenniveau).
Was gefällt nicht? Warum? Garderobe zu klein (127 cm), Werkstatt zu klein, Büro etwas zu groß. Evtl. zu verschachtelt.
Preisschätzung laut Architekt/Planer: 600.000 € (Architektin schätzt aber schlecht bisher)
Persönliches Preislimit fürs Haus, inkl. Ausstattung: 650.000€ (Reserven sind aber da)
favorisierte Heiztechnik: Sole-Wasser-Wärmepumpe (mit passiver Kühlung) mit Ringgrabenkollektor, Kontrollierte-Wohnraumlüftung
Wenn Ihr verzichten müsst, auf welche Details/Ausbauten
-könnt Ihr verzichten: T-Lösung Bad.
-könnt Ihr nicht verzichten: Hifi WZ, Kochinsel, bodentiefe Duschen, Doppelgarage
Warum ist der Entwurf so geworden, wie er jetzt ist?
Ich kann es nicht besser (Laie) :-D. Leider die Architektin auch nicht (durchaus objektiv betrachtet)
--------------------------------------------------------------------------------------------------------------------------------------------
Hallo zusammen,
hier mal wieder SweetHome Dateien (die Profis werden schon jetzt mit den Augen rollen) aber mit dem Unterscheid, dass wohl mehr Zeit von mir in die Planung gesteckt wurde als gewöhnlich bei einem Laienentwurf.
Zur Leidensgeschichte:
Ich habe eine Architektin, jedoch brachte diese nach 4 Monaten Wartezeit nur enttäuschendes auf das Blatt. Obwohl ich nach einem losgelösten Entwurf bat, wurden die Außenmaße übernommen und der Rest verschlimmbessert. Typisches Beispiel von keine Zeit und mal was hingerotzt in Verbindung mit wenig Talent.
Dann zu einem BU gegangen. Der Entwurfsvorschlag dort - wieder eine Frau Architektin - erneut katastrophal.
Dann das Vertrauen in den Berufsstand verloren und das Ding selbst in die Hand genommen. Mir scheint es gibt sehr viele schwarze Schafe unter Architekten/INNEN.
Darin wurde ich auch etwas bestätigt, dass nahezu ausnahmslos jeder Architektengrundriss hier im Forum zerrissen wird (für mich aber durch die Begründungen nachvollziehbar, Danke an die tollen Forumsteilnehmer!).
zum Haus:
Alle Vorgaben des Bebauungsplan sind eingehalten.
Norden ist bis auf zwei Grad Abweichung wirklich auch oben bei den Plänen.
Im Norden ist eine Straße. Süden gute Aussicht. Osten und Westen viel Abstand zu den Nachbarn.
Für euch sind wahrscheinlich die unbemaßten Grundrisse im zweiten Post am wenigsten verwirrend (sind aber nicht ganz auf dem aktuellen Stand). Doppelgarage fehlt dort teilweise.
Viele Grüße und ich hoffe auf konstruktive Verbesserungsvorschläge!
Könnte ich machen.
Steht aber nichts drin bis auf das oben genannte. Das Baugebiet ist aus den 70ern.
4 m Abstand zur Grenze im Westen, 3 m Abstand im Osten. 1,5 Geschosse von der Strasse. Traufhöhe max. 3,52 m, keine Firstbegrenzung. Giebel parallel Strasse. Rest alles offen.
Aufgrund der Grundstücksgröße von über 10 Ar ist alles kein Problem.
Steht aber nichts drin bis auf das oben genannte. Das Baugebiet ist aus den 70ern.
4 m Abstand zur Grenze im Westen, 3 m Abstand im Osten. 1,5 Geschosse von der Strasse. Traufhöhe max. 3,52 m, keine Firstbegrenzung. Giebel parallel Strasse. Rest alles offen.
Aufgrund der Grundstücksgröße von über 10 Ar ist alles kein Problem.
K
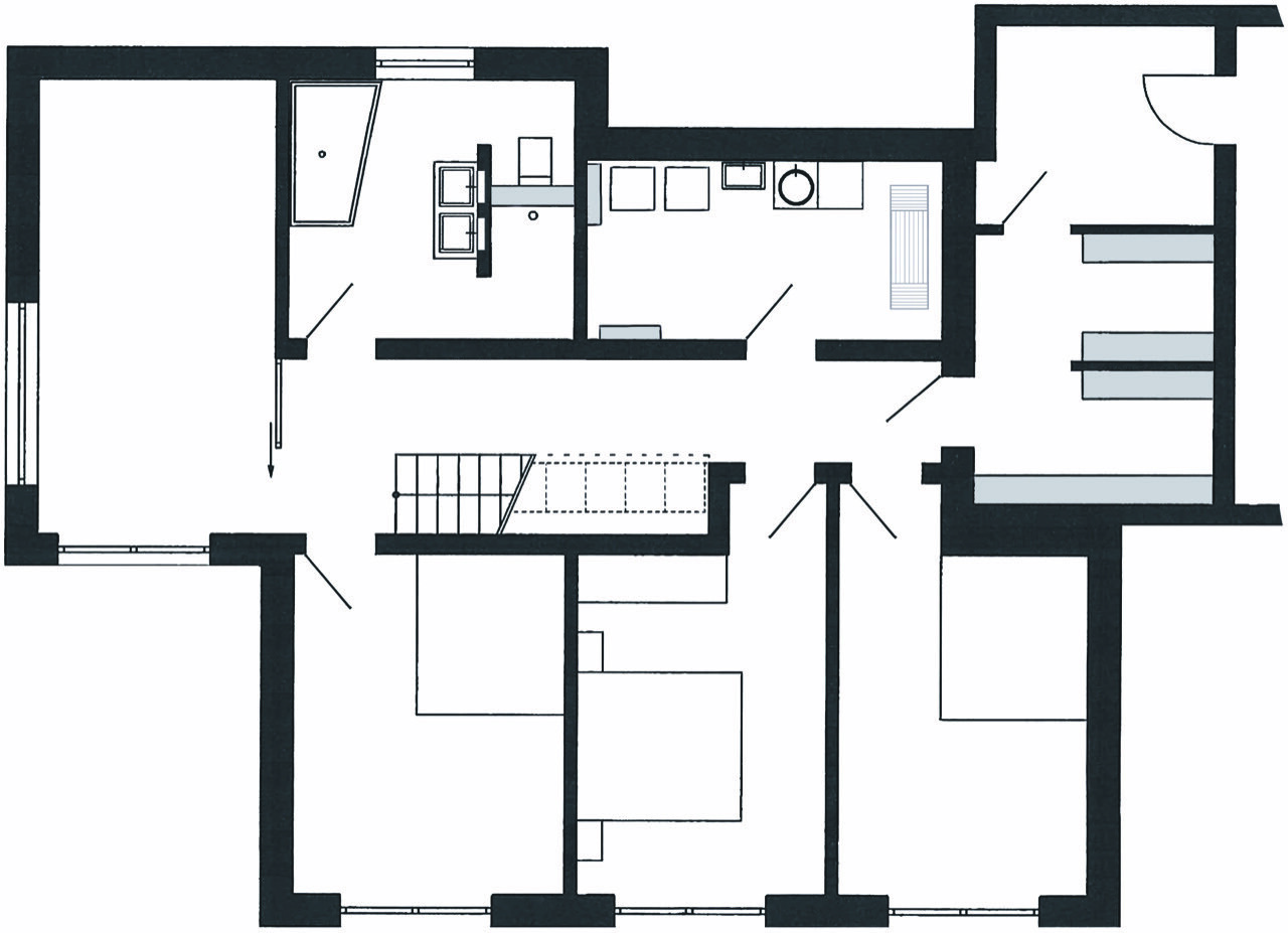
K a t j a11.08.24 21:06Also erstmal Hut ab, ich finde es nicht so schlecht. Ein paar Punkte zum Nachdenken:
EG:
EG:
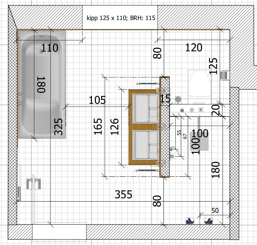
- Gäste-WC ohne Fenster ist immer bissl Schade. Wäre es eine Option, Garderobe und WC zu tauschen und den Windfang zu öffnen?
- Euer Schlafzimmer ist verhältnismäßig beengt. Ich würde dem Bad noch ein paar Zentimeter rauben und dafür dem Bett mehr Raum geben.
- Offene Dusche gegenüber WC ist meistens Mist. Bad würde ich neu planen und vermutlich dabei gleich versuchen, kleiner zu werden.
- Gefühlt gehören Küche und Chillraum getauscht, damit man direkt von der Küche auf die Terrasse treten kann. Bloß blöd, wegen der Speis. Aber so rennt immer jemand vor der Glotze rum. Das nervt total, wo Du doch so wert drauf legst. Da würde ich die Speis vermutlich eher vom Flur aus begehen und dann in den sauren Apfel beißen, 3m bis hin laufen zu müssen.
- Die Lage des Schornsteins kann ich leider nicht deuten. Ist der mitten im Raum? Nein, oder?
- Was macht man mit 'nem Waschbecken in der Garage? Friert das nicht ein im Winter?
- Lass die vorgezogenen Türen bei Gast und Kind 2 lieber hinten. Der Flur verliert sonst enorm an Ästhetik und Wohlfühlatmosphäre. Die anderen Räume gewinnen nichts dadurch.
- Die vielen Räume unter der Garage - braucht Ihr die? Man kommt schnell zu der Idee, diese in die thermische Hülle zu integrieren und dort Büro und Schlafzimmer zu verorten. Hier wäre m.E. noch einiges an Einsparungspotenzial, wenn das ein Thema würde.
Ähnliche Themen